Mẫu biệt thự 3 tầng mái thái kiểu song lập sân vườn chữ U
Hồ sơ mẫu biệt thự 3 tầng mái thái hiện đại đẹp thiết kế xây ở Đảo Rồng Đà Nẵng. Nay công ty thiết kế xây dựng Nhà Đẹp Mới chúng tôi cập nhật lại để anh chị tham khảo full hồ sơ kiến trúc biệt thự kiểu song lập chữ U này
- Cách trang trí nội thất đẹp nhà cấp 4 đơn giản nhẹ nhàng anh Lập
- Biệt thự sân vườn 1 trệt 1 lầu đẹp 200m2 có bể bơi ở Bình Dương
Phối cảnh biệt thự 3 tầng mái thái hiện đại anh Quang
Bản thiết kế biệt thự 3 tầng mái thái đẹp mà công ty thiết kế nhà đẹp mới. Thiết kế biệt thự theo kiểu nhà biệt thự đẹp 3 tầng hình chữ U. Kiến trúc song lập mái ngói khá độc đáo và khác biệt. So với những mẫu biệt thự đẹp đa phong cách cổ điển. Thường thiết kế bằng mái Mansard hay mái chóp.. Thì mẫu biệt thự đẹp 3 tầng kiểu Thái cách tân này cũng là một điển hình

Mẫu biệt thự 1 trệt 2 lầu mái thái được thiết kế trên khu đất rộng 500m2 2 mặt tiền ở Bờ Đông Sông Hàn thơ mộng nên thơ nơi được mệnh danh là “Hòn Ngọc Viễn Đông” thu nhỏ giữa cầu Rồng và cầu Trần Thị Lý cách trung tâm thành phố Đà Nẵng 2,5 km về hướng Đông bán đảo Sơn Trà.
Thông tin kiến trúc biệt thự song lập 3 tầng mái Đà Nẵng
Là một cán bộ cấp cao của tỉnh sau nhiều năm công tác gia đình anh Quang mong muốn thiết kế xây dựng một biệt thự song lập 3 tầng hiện đại mái thái vừa mang phong cách nhà biệt thự 3 tầng đẹp phong cách châu âu. Vừa kết hợp với kiến trúc biệt thự Á Đông hài hòa không gian thoáng. Kiến trúc nhà biệt thự hiện đại 3 tầng có sân vườn không gian mở mái lợp ngói. Phong cách kiến trúc giống mẫu nhà biệt thự hình chữ U ở giữa có tiền sảnh rộng thoáng mát nơi tiếp khách chung cho gia đình
- Thiết kế biệt thự nghỉ dưỡng kiểu Homestay Cửa Đại Hội An
- Bản vẽ biệt thự 1 tầng mái thái kiểu pháp sân vườn đẹp anh Năm

Thông tin dự án thiết kế biệt thự song lập 3 tầng mái thái hiện đại
- Dự án thiết kế nhà biệt thự 3 tầng hiện đại mái thái
- Chủ đầu tư: Nguyễn Văn Quang sinh Ất Mùi 1955
- Địa điểm: An Hải Tây – Sơn Trà – Đà Nẵng
- Diện tích thổng thể 500m2 = 20×25 2 mặt tiền
- Diện tích xây dựng : 15×20 = 300m2 3 tầng, diện tích sử dụng 936m2
- Kinh phí thiết kế xây dựng hoàn thiện: 5 tỷ
- Kiến trúc biệt thự kiểu song lập có bể bơi sân vườn châu âu
- Thông số công năng : 2 phòng khách chung và riêng, 5 phòng ngủ,
- 1 phòng sinh hoạt chung, phòng thờ, 8 wc, phòng bếp ăn rộng kết hợp tủ Bar
- Phòng massage, 2 kho, phòng ngồi thiền lịch sự..
Hình ảnh biệt thự kiểu song lập đẹp ba tầng mái thái 15x30m
Mẫu thiết kế nhà biệt thự 3 tầng 15×20 mái thái được thiết kế theo hướng chính Đông Nam. Hướng ra biển theo phong thủy nhà ở theo tuổi Ất Mùi 1955. Cung Thiên y Đông tứ trạch quẻ mệnh Ly ( hỏa ) Sa Trung kim. Tức Vàng trong cát , gam màu trắng vàng kết hợp với màu xanh của mái ngói.

Bản vẽ thiết kế biệt thự 3 tầng mái thái 300m2
Bản vẽ thiết kế biệt thự 3 tầng mái thái kiểu song lập đẹp kiểu hình chữ U 300m2. Diện tích 15×20 có 4 mặt phía bắc giáp sông Hàn và đường Trần Hưng Đạo. Phía nam của biệt thự đẹp hướng về cầu du lịch Nguyễn Văn Trỗi. Phía Đông mặt tiền hướng về ngọn núi Ngũ Hành Sơn và biển. Còn phía chính Tây ngược lại giáp Sông Hàn. Có thể nói là một vị trí rất lý tưởng ” thiên thời địa lợi nhân hòa”. Để biến Biệt thự đảo Rồng Đà Nẵng đẹp thành một nơi nghỉ dưỡng thư giãn. Sau những tháng năm cống hiến cho tổ quốc theo nguyện vọng.
Mặt bằng tầng 1 biệt thự 3 tầng mái thái 300m2


Mặt bằng tầng 3 biệt thự mái thái 3 tầng hiện đại
Bản vẽ biệt thự hình chữ U 3 tầng đẹp nhất HIỆN ĐẠI kiểu thái này do yêu cầu của gia đình 3 thế nên chú Quang mong muốn thiết kế từng không gian sống riêng biệt cho con trai. Ngoài ra kiến trúc biệt thự 3 tầng hình chữ U kiểu song lập 300m2 mái thái còn có các phòng ngủ cho cháu nội

Mặt bằng nhà 3 tầng mái thái hình chữ U
Mẫu biệt thự có 2 phòng khách 3 tầng mái thái 300m2 có 2 phòng khách tiếp khách chung và riêng. Còn lại thiết kế phòng sinh hoạt chung karaoke giải trí. Đặc biệt là có tiền sảnh rộng thoáng làm nơi sinh hoạt tiếp khách chung cơ quan. Mẫu nhà đẹp 3 tầng mái thái 2 mặt tiền Đà Nẵng. Còn có thêm tầng áp mái. Trên có sân phơi ở phía sau có vị trí đặt téc nước và bình năng lượng mặt trời

Bản vẽ thiết kế biệt thự 3 tầng mái ngói hiện đại
Bản vẽ thiết kế biệt thự nằm ngang 15m 3 tầng mái thái 15x20m 2 mặt tiền lợp ngói. Có đại sảnh rộng 30m2. Bản vẽ được thiết kế theo kiến trúc đổ bằng dán ngói. Theo hơi hướng biệt thự hiện đại phong cách châu âu. Nhưng các chi tiết liên quan đến phào chỉ, cột giả. Hay mũ tường .. đều loại bỏ hoàn toàn cho dễ thi công

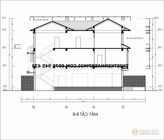
Bản vẽ mặt cắt biệt thự vườn hiện đại 3 tầng 15x20m song lập
Phong cách kiểu kiến trúc biệt thự hiện đại 3 tầng nằm ngang 15m mái dốc bánh Ú đua ra hơn 1,5m phủ bì. Diện tích mái của mẫu biệt thự đẹp 3 tầng mái thái 2 mặt tiền 15×20 hình chữ U đua ra xung quanh rộng 380m2.

Mặt tiền biệt thự song lập mái thái trang trí thêm các đường gờ chỉ trắng. Mục đích tạo sự thanh lịch thêm cho mẫu nhà 3 tầng đẹp 2 mặt tiền kiến trúc biệt thự đảo Rồng. Mẫu biệt thự đẹp tại Đà Nẵng tọa lạc nơi biệt danh là ” thành phố rất đáng sống” có sân vườn tinh tế gần gũi
Bản vẽ xây biệt thự đẹp 3 tầng mái thái mặt cắt A-B
Bản vẽ kỹ thuật thi công biệt thự vườn 3 tầng đẹp mái thái có chiều cao tầng trệt 4,2. Cốt tầng 2 3,6 tầng 3 cũng 3,6m. Còn từ phần đổ mê sàn trên lên đến nóc thái cao 2,56m. Tổng chiều cao ngôi nhà biệt thự mái thái 3 tầng đẹp. Kiến trúc kiểu song lập tính từ sàn đất và móng lên hơn 14,5m.

Móng biệt thự mái thái 3 tầng hiện đại anh Quang
Phần móng biệt thự đẹp mái thái 1 trệt 2 lầu đôn cao 5 bậc. Tương đương 1 tầng cấp 75m cao ráo thông thoáng. Tầng mái lợp ngói hiệu Cpac nhẹ hơn so với các loại ngói thông thường 20%. Kích thước 330x400x15(mm) khoảng 4 kg / viên. Tương đương với 10 viên/m2 sản xuất theo công nghệ ép mới hiện đại.

Phong cách biệt thự vườn 3 tầng mái thái có bể bơi mini
Mẫu biệt thự vườn 3 tầng hiện đại mái thái có bể bơi 1 bên. Thiết kế có 1 tiền sảnh chính và 1 tiền sảnh phụ bên trái. Xung quanh có lối đi thông thoáng. Hơn nữa mẫu nhà biệt thự mái thái vườn 3 tầng có bể bơi mini. Kiến trúc biệt thự thiết kế theo phong cách Zen Thiền kiểu Nhật hiện đại. Bên trái có không gian vườn thoáng ngoài trời thư giãn. Theo kiến trúc thiết kế biệt thự vườn 3 tầng mái thái xu thế mới hiện nay.

Mẫu biệt thự nhà vườn 3 tầng mái thái mặt tiền 15m hiện đại trên thiết kế hệ mái đa chiều. Độ dốc cao giúp thoát nước nhanh vào mùa mưa. Do kiến trúc biệt thự mái thái lợp ngói nên cũng thoáng mát. Vào mùa hệ và ấm áp vào mùa đông miền Trung. Xung quanh nhà mái thái 3 tầng có sân vườn cảnh quan hiện đại. Thiết kế nhiều cửa kính cường lực Eurowindow cánh trượt. Một phần giúp không gian nội thất bên trong sáng mát tươi mới và có thể nhìn ra xung quanh.
Ngắm nội thất biệt thự 3 tầng mái thái phong cách hiện đại
Không gian nội thất biệt thự 3 tầng mái thái 15x20m phục vụ nhu cầu sử dụng sinh hoạt. Nơi gặp gỡ trao đổi công tác anh em cơ quan. Hay hàn huyên vào những dịp cuối tuần. Nơi bà con dâu rể bà con thường hay ghé nhà thăm chơi. Nên khi yêu cầu thiết kế biệt thự đẹp 3 tầng nằm ngang 15m quy mô hiện đại 1 trệt 2 lầu chữ U mái thái kiểu mới.

Góc nhìn phòng khách biệt thự ba tầng mái thái hiện đại
Gia đình anh mong muốn thiết kế phòng khách rộng tiếp khách chung. Ngoài ra có thêm 1 nội thất phòng khách riêng khi nhà đông khách ghé chơi. Nên phương án thiết kế nội thất biệt thự có 2 phòng khách đẹp 3 tầng 300m2 kiểu thái được thiết kế với các không gian đại diện như sau

Nội thất biệt thự phong cách hiện đại Nhật Bản
Nhìn chung kiến trúc biệt thự 3 tầng kiểu thái 15×20 2 mặt tiền hình chữ U. Thiết kế bên bờ sông Hàn Đà Nẵng. Là một trong những mẫu biệt thự 3 tầng kiểu NHẬT song lập đẹp nhất hiện nay. Phong cách kiến trúc nội thất biệt thự khác biệt. Thiết kế theo kiểu hiện đại Nhật Bản.

Trang trí không gian biệt thự vườn 3 tầng mái thái kiểu Nhật
Không gian biệt thự đẹp nằm ngang 15m hợp với xu thế mới trên khu đất rộng ” Nhất cận thị, nhị cận giang”. Khá hoài hòa yên tĩnh. Mẫu nhà đẹp 1 trệt 2 lầu mái thái biệt danh ” biệt thự đảo Rồng” đúng nghĩa của người dân nơi đây.

Phong cách biệt thự 3 tầng mái thái hiện đại 2022
Phong cách kiến trúc biệt thự biển đẹp 3 tầng mái thái. Rất hợp với khí hậu nhiệt đới nước ta. Dinh thự biệt thự cao cấp mang 3 yếu tố kết hợp như truyền thống Đông Á bản địa. Kế thừa tinh hoa phóng khoáng của nền kiến trúc phương Tây. Đồng thời là một mối giao hòa giữa phong cách Zen mang giá trị Thiền định kiểu Nhật.

Mẫu Villa đẹp kiểu song lập 3 tầng mái thái kiểu mới phá cách hơi hướng phong cách Nhật Bản. Xung quanh sân vườn bể bơi có cây Tùng, cây Bách. Những mỏm phiến đá, sân chơi, chổ đậu xe lối đi quanh. Theo kiến trúc biệt thự sân vườn 3 tầng mái thái đẹp thi vị nên thơ.
Làm rõ về nhà mái thái 3 tầng hiện đại Đà Nẵng
Biệt thự 3 tầng mái thái 2 mặt tiền đẹp diện tích 15x20m thiết kế kiến trúc theo kiểu biệt thự nghỉ dưỡng. Phục vụ cho đại gia khá giả. Hồ sơ kiến trúc biệt thự song lập đẹp 1 trệt 2 lầu sân thượng hiện đại. Sáng tạo của các anh em KTS cùng các cộng sự công ty thiết kế nhà đẹp mới chúng tôi.

Không gian ngồi nghỉ ngơi thư giãn ở 3 khu ban công. Kết hợp với sân thượng ở tầng 3 đón gió mát từ hướng Đông Nam. Mẫu biệt thự đẹp 3 tầng 2 mặt tiền phố. Có thể ngắm được cầu Sông Hàn nơi là điểm nhấn bắn pháo hoa quốc tế nổi tiếng. Tổ chức hàng năm hay dòng sông Hàn thơ mộng dãy núi Ngũ Hành Sơn và toàn cảnh thành phố Đà Nẵng.
Các mẫu biệt thự đẹp 3 tầng mái thái khác mới đây
Mời quý vị tham khảo các mẫu biệt thự nhà vườn 3 tầng mái thái đẹp. Kiến trúc kiểu châu âu và bán cổ điển khác mới đây. Có kèm hình ảnh thi công ở một số tỉnh thành Việt Nam
Biệt thự 3 tầng mái thái bánh Ú chị Dung


Biệt thự 2 tầng 1 tum mái thái anh Giang Vũ Thư Thái Bình


- Bấm xem các thông tin biệt thự 2 tầng 1 tum mái ngói anh Giang này
Biệt thự lâu đài cổ điển 15 tỷ của Tuấn Linh Thanh Hóa


Biệt thự song lập 4 tầng của 2 anh em ruột anh Tạo Bắc Ninh


- Xem chi tiết hồ sơ biệt thự mái Thái lợp ngói đỏ anh Tạo 3 tầng 1 hầm nên gọi là 4 tầng này

Ngoài ra còn có khoảng 300 tư dinh các phong cách kiến trúc biệt thự 2 3 4 tầng hàng đầu có mặt trên 62/64 tỉnh thành Việt Nam khác. Anh chị ở đâu sẽ có kiến trúc sư công ty cổ phần thiết kế xây dựng Nhà Đẹp Mới chúng tôi đến làm việc tại nhà
- Tham khảo thêm thông tin công ty xây dựng NHÀ ĐẸP MỚI chúng tôi
Tổng quan về mẫu nhà vườn 3 tầng mái thái đẹp ở Đảo Rồng
Bản vẽ thiết kế biệt thự 3 tầng đẹp mái thái hiện đại trên gồm hơn 500 bản vẽ chi tiết. Anh em kiến trúc sư chúng tôi không gửi hết được. Bởi còn hồ sơ nội thất được thiết kế chỉnh sửa hoàn thành trong 40 ngày của các Kiến trúc sư, Kỹ sư xây dựng chúng tôi. Tuy nhiên những gì thể hiện trên đây với các góc view đẹp không gian trang trí bản vẽ kích thước cũng ok rồi

Mẫu biệt thự 3 tầng mái thái mặt tiền đẹp diện tích nhỏ hơn
Ngoài mẫu biệt thự chữ U 3 tầng sân vườn đảo Rồng trên. Công ty mình còn có những mẫu biệt thự 3 tầng mái thái dành cho các thế đất khác nhau. Anh chị thích mẫu nào thì bấm xem thông tin và làm theo hướng dẫn mẫu đó như

- Xem hồ sơ nhà anh Thao Trảng Bom Đồng Nai
- Nếu mặt tiền nhà 8m thì xem biệt thự 1 trệt 2 lầu mái thái chị Đài hình dưới đây

Các mẫu nhà biệt thự ba tầng mái thái 1 trệt 2 lầu khác
Ngoài ra còn các kiểu biệt thự 3 tầng mái thái tân cổ điển. Cũng như các kiểu biệt thự mini mái thái 3 tầng hình chữ L hay 2 mặt tiền khác. Anh chị cho biết đất mình như thế nào mình gửi mẫu cho y bài như chú Phước BẤM XEM để biết thêm bề nhà ngói đỏ này

Đây là biệt thự cổ Hà Nội 3 tầng của bác Huệ. Anh chị thích kiến trúc Phục Hưng thì XEM TẠI ĐÂY mà chọn

Còn đây là mẫu biệt thự 3 tầng mái thái nhưng lợp ngói Nhật. Vẽ cho nhà anh Tiếp hình chữ L. Đất hợp thì không nên bỏ qua bấm vào đây có đầy đủ. Còn đây là hình

Biệt thự mái thái có tầng hầm đẹp xây rồi
Cần xây nhà biệt thự tân cổ điển mái thái có tầng hầm và hành lang 1 bên. Thì xem hồ sơ full biệt thự chị Phượng Ở BÀI VIẾT NÀY có full đầy đủ

Bản vẽ nhà biệt thự 3 tầng rộng 10m dài 17m chữ L có sân thượng
Cần không gian thoáng mát thì xem biệt thự ba tầng mái thái chữ L này. Xem tại đây nếu thích thông thoáng hiện đại nhẹ nhàng mà tiết kiệm

Thông tin thiết kế nhà biệt thự vườn 3 tầng mái thái 15×20. Có diện tích 300m2 hiện đại mái thái trên quý vị. Vui lòng liên hệ 1800 6015 để được tư vấn thiết kế nhà đẹp hoàn mỹ theo nhu cầu tài chính của các gia chủ . Biệt thự đảo Rồng Đà Nẵng – Nơi nâng tầm giá trị cuộc sống cho hôm nay và cho mãi mai sau. Trân trọng.!