Mẫu biệt thự mái thái 2 tầng 10x13m tại Hà Nam NDBT2T137
Hiện nay, mẫu thiết kế biệt thự 2 tầng đẹp 10x13m kiểu Nhật thường được xây dựng với nhiều phong cách kiến trúc nhưng nhìn chung các chủ đầu tư thường ưa chuộng phong cách kiến trúc hiện đại để làm điểm nhấn. Không gian ngoại thất lung linh, tràn đầy sức sống. Ngoại thất mẫu thiết kế biệt thự 2 tầng đẹp thường được chú trọng đến màu sắc chủ đạo, cách bố trí cảnh quan xung quanh, cùng vật liệu, chi tiết trang trí,… làm sao thể hiện được vẻ đẹp mới mẻ, thời thượng cũng như mang đến vẻ đẹp ấn tượng, thu hút người nhìn. . Để quý vị và các bạn hiểu rõ hơn về ngôi biệt thự đẹp này, Nhà Đẹp xin giới thiệu bài viết chi tiết bao gồm đầy đủ hình ảnh phối cảnh 3D và mặt bằng công năng các tầng.
Thông tin về mẫu biệt thự mái thái 10x13m kiểu Nhật sang trọng
- Chủ đầu tư: Chị Vinh
- Địa điểm xây dựng: Phủ Lý - Hà Nam
- Kích thước nhà: 10x13m
- Diện tích sàn 1: 130m2
- Diện tích tầng 2: 130m2
- Diện tích diềm tầng 1: 130 × 0,4 = 52m2
- Diện tích diềm mái tầng 2: 130 × 0,4 = 52m2
- Tổng diện tích mái bê tông: 130 + 130 + 52 + 52 = 364m2
- Tổng giá trị xây dựng nhà: 364 × 5.500.000 = 2.002.000.000 đồng
- Diện tích mái ngói: (130 + 52) x1,6 = 291,2m2
- Tổng giá trị xây dựng mái Nhật: 291,2x 700.000 = 203.840.000 đồng
- Tổng giá trị hoàn thiện: 2.002.000.000 + 203.840.000 = 2.205.840.000 đồng
Phối cảnh 3D mẫu biệt thự 2 tầng hiện đại tại Hà Nam
Mẫu biệt thự mái thái đẹp 10x13m kiểu Nhật mang phong cách thiết kế hiện đại đẹp độc đáo dựa trên sự kết hợp của các hình khối phi đối xứng, kết cấu chắc chắn, bền vững, chủ yếu là hình khối. Bê tông dày, chắc, các góc và hình khối vuông vắn được lồng ghép, phối hợp tinh tế, hài hòa, ăn khớp với nhau.

Có lẽ điểm bắt mắt và thu hút nhất ở biệt thự 2 tầng đẹp 10x13m kiểu Nhật này chính là màu sắc. Hầu hết các mặt tiền của nhà phố đẹp đều sử dụng tông màu sáng chủ đạo để thể hiện sự sang trọng, quý phái như màu trắng tinh khôi kết hợp với những đường nét, phào chỉ trang trí đơn giản nhưng vô cùng tinh tế. tỉ mỉ. Cùng với đó, những gam màu đi kèm như đen, nâu, xám cũng được sử dụng để tạo nên sự tương phản cũng như sự quyến rũ và lôi cuốn người nhìn.

Cùng với lối kiến trúc hiện đại, mẫu biệt thự 2 tầng mái thái 10x13m đẹp của Nhật Bản được thiết kế theo không gian mở. Không gian ngôi nhà thoát khỏi sự u ám, bí bách nhờ hệ thống cửa kính khung nhôm lấy sáng, lấy gió được bố trí dày đặc và phân bổ hợp lý xung quanh tạo nên sự giao thoa và kết nối hoàn hảo với cảnh quan thiên nhiên. thiên nhiên bên ngoài. Kính là vật liệu tiêu biểu khá an toàn, bền và được sử dụng phổ biến, sở hữu khả năng lấy sáng vượt trội giúp gia đình chủ đầu tư có thể ngắm nhìn khung cảnh bên ngoài qua những khung kính. diện tích lớn mà không lo mưa nắng, tác hại của tia cực tím.

Ngoài ra, những ban công với diện tích sử dụng phù hợp, không quá rộng cũng tạo cho không gian nội ngoại thất của mẫu biệt thự 2 tầng đẹp 10x13m kiểu Nhật có đủ không gian để các thành viên sinh hoạt vui vẻ. có thể dùng làm nơi tập thể dục, thư giãn, xả stress sau những ngày làm việc mệt mỏi. Hệ thống đèn chiếu sáng dày đặc ở mép mái tầng 1 đến tầng 2 khiến ngôi biệt thự không chỉ đẹp lung linh mà còn lung linh, thơ mộng hơn về đêm.

Điểm nhấn có lẽ là mảng tường ngoại thất tầng 1 và tầng 2 được ốp gạch nâu kết hợp với màu xanh của hệ thống cây xanh, tiểu cảnh giúp ngôi nhà vừa ấm áp vừa sang trọng, cuốn hút hơn. trưởng phòng. Gạch men mang đến vẻ đẹp kiên cố, vững chãi cùng rất nhiều lợi ích vượt trội như giúp biệt thự luôn sáng bóng, không bị thấm, nứt, chịu được nhiều tác động xấu do thời tiết, môi trường gây ra. rất dễ lau chùi, tạo sự hấp dẫn, tinh xảo, bền vững theo năm tháng.

Hệ thống mái thái là một điểm cộng rất lớn cho mẫu nhà 2 tầng đẹp 10x13m kiểu Nhật này bởi nó có công năng hoàn hảo phù hợp với thời tiết ở nước ta. Hệ thống mái thái Nhật Bản được thiết kế với độ dốc lớn có tác dụng khắc phục triệt để các tình trạng: đọng nước, thấm nước, rêu mọc… Hệ thống mái thái có cấu tạo rất độc đáo đó là mái bằng sau đó lợp ngói. khung kèo sắt hộp và cuối cùng là dán ngói lên trên theo đúng quy trình nên đảm bảo độ an toàn và tính thẩm mỹ rất cao.

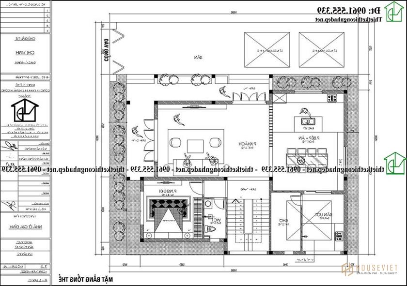
Bao quanh mẫu biệt thự 2 tầng mái thái 10x13m đẹp là hệ thống cổng tường rào trắng kiên cố. Hàng rào được thiết kế chạy song song với nhau tạo cho gia đình chủ đầu tư cảm giác yên tâm và riêng tư hơn. Hàng rào được thiết kế bởi hệ thống gạch bông gió và các trụ vuông chạy song song với nhau giúp view biệt thự và sân vườn thêm thoáng mát, trong lành, tràn ngập không khí trong lành hơn.

Cách bố trí sân vườn trong mẫu biệt thự 2 tầng đẹp 10x13m kiểu Nhật được phân chia rất rõ ràng và khoa học. Như trong bức tranh này, bạn có thể thấy hệ thống tiểu cảnh sân vườn thường được áp dụng cho những khoảng không gian trống trong ngôi nhà, từ đó nơi đây sẽ trở nên tràn đầy sức sống, không khí thoáng mát, trong lành, đảm bảo sức khỏe và năng lượng tích cực luôn dồi dào. và tươi, có lợi cho các thành viên thưởng thức.
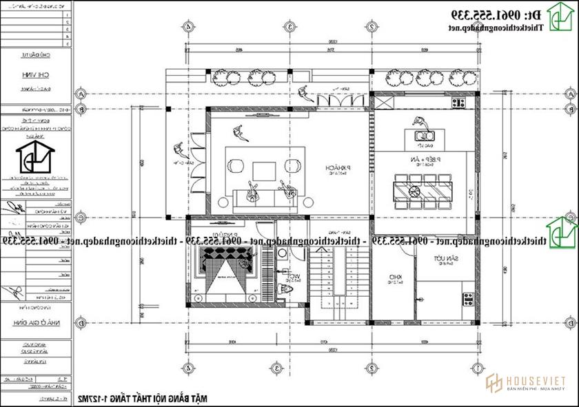
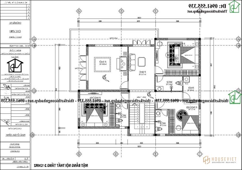
Mặt bằng công năng của mẫu biệt thự 2 tầng 5 phòng ngủ đẹp

Mặt bằng công năng của mẫu biệt thự 2 tầng mái thái 10x13m đẹp phải nói là rất tiện nghi với tầng 1 gồm 1 phòng khách cao cấp khá rộng bao gồm cả nội thất hiện đại như bộ sofa. tivi màn hình phẳng sang trọng. Liền kề phòng khách là không gian bếp + ăn với đầy đủ trang thiết bị cao cấp phục vụ cho quá trình nấu nướng và ăn uống của các thành viên. 1 phòng ngủ sang trọng, yên tĩnh, thoáng mát và 1 phòng vệ sinh chung tiện nghi được bố trí gần khu vực giếng trời cầu thang. Cuối nhà là khu sân ướt, kho chứa đồ khá rộng rãi.

Tầng 2 chủ yếu là không gian nghỉ ngơi và thờ cúng của gia đình gồm 1 phòng thờ trang nghiêm, 1 phòng giặt hiện đại và 3 phòng ngủ master yên tĩnh thoáng mát, đều có phòng tắm khép kín được trang bị đầy đủ mọi tiện nghi. thiết bị vệ sinh chất lượng cao.

Trên đây là những hình ảnh phối cảnh của mẫu biệt thự 2 tầng hiện đại 10x13m kiểu Nhật của gia đình anh Vinh ở Hà Nam cùng với công năng sử dụng vô cùng đầy đủ và tiện nghi. Nếu quý vị và các bạn yêu thích mẫu thiết kế biệt thự đẹp này, hãy liên hệ ngay với Nhà Đẹp qua hotline, Zalo để được đội ngũ KTS giàu kinh nghiệm tư vấn miễn phí.
- Biệt thự 2 tầng 4 phòng ngủ 8x14m tại Thái Nguyên NDBT2T136
- Biệt thự mái thái 2 tầng 13x20m ở Sài Gòn NDBT2T135
- Biệt thự 2 tầng 5x10m mái bằng đẹp ở Ninh Bình NDBT2T134
- Mẫu biệt thự 2 tầng mái Nhật 8x14m tại Thanh Hóa NDBT2T138