Mẫu biệt thự tân cổ điển 3 tầng 2 mặt tiền diện tích 180m2 - SH BTP 0151
Ngày nay, các mô hình Biệt thự 3 tầng tân cổ điển đang là một trong những xu hướng xây nhà biệt thự được các chủ đầu tư trên khắp Việt Nam ưa chuộng. Những mẫu biệt thự Pháp 3 tầng đẹp, sang trọng với không gian sống tiện nghi với diện mạo đồ sộ dưới bàn tay thiết kế của đội ngũ KTS Sơn Hà Group đã nhận được sự đánh giá cao cũng như sự quan tâm của đông đảo khách hàng. sự hài lòng của các nhà đầu tư. Trong bài viết này, chúng tôi xin giới thiệu đến bạn đọc hồ sơ thiết kế biệt thự tân cổ điển 3 tầng 2 mặt tiền đẹp tại Hà Nội - SH BTP 0151.
>>>> XEM NGAY: Mẫu biệt thự nhà phố 3 tầng
Biệt thự tân cổ điển 2 mặt tiền đẹp tại Hà Nội là một trong những mẫu biệt thự đẹp được thiết kế với phong cách mới bắt kịp xu hướng hiện nay. Để bạn đọc có thêm sự lựa chọn về mẫu thiết kế biệt thự tân cổ điển, dưới đây chúng tôi xin giới thiệu chi tiết ý tưởng thiết kế, phương án xây dựng cũng như cách bố trí mặt bằng công năng. Biệt thự tân cổ điển 3 tầng diện tích 183,04m2 (14,3mx 12,8m) của gia đình anh Xuân ở Hà Nội. Mời các bạn cùng đón đọc.

Thông tin dự án
- Tầng 1: Sảnh thang bộ; phòng khách; bếp và phòng ăn; phòng rượu; phòng ngủ của người giúp việc; phòng giặt ủi; phòng vệ sinh chung.
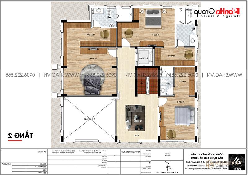
- Tầng 2: Phòng sinh hoạt chung; 3 phòng ngủ có phòng tắm riêng.
- Tầng 3: Bố trí 1 phòng ngủ chính; 1 phòng ngủ có vệ sinh khép kín; phòng tắm hơi; bàn thờ.
NỘI DUNG CHÍNH
- Đầu tiên Thông tin dự án
- 2 Thiết kế phối cảnh kiến trúc
- 3 Mặt bằng chi tiết công năng các tầng
- 4 Thiết kế nội thất biệt thự tân cổ điển đẹp hoàn hảo
[embed]https://www.youtube.com/watch?v=NWTlma9WpaI[/embed]
Thiết kế phối cảnh kiến trúc
Kiến trúc biệt thự được nhiều chủ đầu tư lựa chọn bởi thiết kế đơn giản mang vẻ đẹp trang nhã, tinh tế. Nét đặc trưng của ngôi nhà qua phong cách thiết kế tân cổ điển này mang hơi thở, mang âm hưởng kiến trúc Pháp nhưng hầu như các chi tiết rườm rà đều được lược bỏ. Không quá cầu kỳ, mẫu thiết kế biệt thự 3 tầng sử dụng tông màu sáng kết hợp các chi tiết theo tỷ lệ vàng dễ bắt mắt ngay từ cái nhìn đầu tiên.
Mời các bạn cùng chiêm ngưỡng vẻ đẹp kiến trúc của ngôi biệt thự 2 mặt tiền tân cổ điển tại Hà Nội qua các góc nhìn sau:

Mặt tiền của biệt thự tân cổ điển 3 tầng tại Hà Nội đặc biệt chú trọng đến hệ thống cột trụ vững chắc tạo nên tổng thể kiến trúc đẹp bền vững theo thời gian. Hệ thống cột thật và giả chạy xuyên suốt 3 tầng ở sảnh chính và sảnh phụ vừa tạo cảm giác chắc chắn cho công trình thêm bề thế vừa giúp che chắn, trang trí tránh góc chết cho ngoại thất biệt thự. Các cột giả sát tường được kiến trúc sư khéo léo thiết kế so le tạo góc nhìn đẹp mắt với tỷ lệ chuẩn giúp phân định rõ ràng khối chính và khối phụ của công trình biệt thự đẹp.
Toàn bộ ngoại thất được sử dụng tông màu trắng trang nhã vừa nâng tầm sang trọng vừa thu hút ánh nhìn của mọi đối tượng bởi sự phối hợp màu sắc hài hòa và bắt mắt. Việc sử dụng cửa chính bằng gỗ tự nhiên đơn giản giúp người nhìn cảm nhận rõ nét vẻ đẹp của khối kiến trúc biệt thự 3 tầng 2 mặt tiền đẹp. Toàn bộ hệ thống cửa sổ sử dụng kính khung trắng đảm bảo an toàn tuyệt đối mà không gian trong nhà trở nên gần gũi với thiên nhiên, vô cùng hoàn hảo.

Không chỉ gây ấn tượng qua cách phối hợp màu sắc và hệ thống cửa, mẫu biệt thự tân cổ điển 3 tầng còn nổi bật bởi hệ thống mái thái đẳng cấp riêng biệt mà còn hài hòa với tổng thể ngoại thất của ngôi biệt thự. Với thiết kế mái thái đơn giản nhưng màu sắc đẹp mắt thể hiện tính thẩm mỹ tối ưu nhất, ngôi nhà 3 tầng đã hoàn toàn chinh phục được con mắt thẩm mỹ của chủ đầu tư.

Mặt bằng chi tiết công năng các tầng
Dưới đây là toàn bộ các phương án quy hoạch, mặt bằng công năng của ngôi biệt thự 3 tầng mái Thái diện tích 180m2 một cách khoa học tại Hà Nội được bàn bạc và thống nhất giữa chủ đầu tư và KTS Sơn Hà. thông qua các không gian sống cụ thể như sau:
- Tầng 1: Sảnh thang bộ; phòng khách; bếp và phòng ăn; phòng rượu; phòng ngủ của người giúp việc; phòng giặt ủi; phòng vệ sinh chung.
- Tầng 2: Phòng sinh hoạt chung; 3 phòng ngủ có phòng tắm riêng.
- Tầng 3: Bố trí 1 phòng ngủ chính; 1 phòng ngủ có vệ sinh khép kín; phòng tắm hơi; bàn thờ.





Thiết kế nội thất biệt thự tân cổ điển đẹp hoàn hảo
Cuối bài viết xin mời các bạn đến với phương án thiết kế nội thất hoàn hảo đến từng đường nét của ngôi biệt thự này để thấy được sự linh hoạt đã phát huy hiệu quả trong thiết kế nội thất biệt thự tân cổ điển. từ điển như thế nào:
tầng 1




Phòng ngủ






Phòng karaoke, giải trí


Các phòng chức năng khác





Thiết kế vườn


Để biết thêm chi tiết vui lòng liên hệ:CÔNG TY CỔ PHẦN TƯ VẤN XÂY DỰNG SƠN HÀ (SHAC)Trụ sở chính: Số 318 - 319 HK3 Phố Bùi Viện, Lê Chân, Hải Phòng
- Điện thoại: 0225 2222 555
- Hotline: 0906 222 555
- Email: sonha@shac.vn
Văn phòng đại diện
- Tại hà nội: Số 4/172, Ngọc Hồi, Huyện Thanh Trì, TP. Hà nội
- Ở quảng ninh: Số 289, Phường Giếng Đáy, TP. Hạ Long, Tỉnh. Quang ninh
- Tại đà nẵng: Số 51m Đường Nguyễn Chí Thanh, Phường Thạch Thang. Q. Hải Châu, Tp. Đà Nẵng
- Ở sài gòn: Số 45 Đường 17, Khu B, An Phú, Quận 2, TP. Hồ Chí Minh
- Xưởng nội thất: Số 45 Thông Trực, Nam Sơn. Kiến An, Tp. Hải phòng