Mẫu biệt thự vườn 1000m2 đẹp 3 tầng kiểu Pháp tân cổ điển anh Tuyển
Tranh thủ những ngày giáp Tết 2022 cập nhật thêm mẫu thiết kế biệt thự 1000m2 Mr Tuyển. Đây là một trong những kiểu kiến trúc nhà biệt thự sân vườn cổ điển Pháp. Có nội ngoại thất cao cấp sang trọng cho mục đích nghỉ dưỡng ở vùng ven đô. Anh chị tham khảo mà chọn thêm
Ý tưởng của kiến trúc biệt thự 1000m2 3 tầng 1 tum kiểu cổ điển Pháp
Anh em kiến trúc sư công ty cổ phần kiến trúc xây dựng mình gọi là biệt thự Đông Dương. Bởi ý tưởng thiết kế biệt thự vườn 1000m2 mang nét châu âu. Nhưng dựa trên nền đất ngang 33m dài 30 tức 1000m2 tổng thể hướng Nam. Kích thước xây dựng 1 sàn 250m2. Quy mô xây dựng nhà vườn đẹp 1000m2 cả móng mái. Bao gồm 1 trệt 2 lầu 1 tầng tum sân thượng áp mái. Đây là 1 trong các mẫu biệt thự 3.5 tầng kiểu Pháp hệ mái Mansard kiểu châu âu. Nhưng thiết kế có phòng thờ cũng như phù hợp với nếp sống Thuần Việt của nước ta. Bởi lẽ theo phong tục tập quán sinh hoạt và thiết kế phong thủy Á Đông.
- Dự án thiết kế biệt thự cổ điển Pháp 3 tầng 1 tum
- Phong cách kiến trúc Villa cổ điển kiểu lâu đài mini 250m2
- Diện tích tổng thể rộng 1000m2 ngang 33m dài ra sau 30
- Kích thước xây dựng ngang 14m x 18m phủ bì cả sảnh
- Chủ đầu tư: Anh Tuyển
- Bản quyền kiến trúc: Công ty cổ phần kiến trúc xây dựng Nhà Đẹp Mới
- Tổng diện tích sàn xây dựng cả móng mái biệt thự pháp cổ này là 1000m2 chưa tính nhà gara để xe
- Năm cập nhật 2022
- Phụ trách hồ sơ: KTS Đức cùng team NHÀ ĐẸP MỚI

Hình ảnh nhà vườn đẹp 1000m2 kiểu 3 tầng cổ điển Pháp năm 2022
Biệt thự cổ điển Pháp đẹp nhất năm 2021 có ngoại thất màu trắng chủ đạo. Phía trên tầng lầu 3 hay gọi tầng tum dán ngói Bi tum màu xanh đen. Vừa giúp ngói bền màu cũng như theo màu sơn phong thủy mệnh Kim. Sinh năm 1963 Quý Mão Đông tứ trạch đất rộng 1000m2 ngang 33m hướng Nam. Nghĩa là chọn gam màu chủ đạo tông trắng tương sinh. Theo bản mệnh Kim sinh thủy màu sơn ngoại thất nhà đẹp biệt thự 3 tầng như vậy là hợp lý

Hình mặt tiền biệt thự 3 tầng tổng diện tích sàn xây 1000m2 kiểu pháp 14m
Ý tưởng nhà biệt thự 3 tầng kiểu Pháp anh Tuyển tối ưu theo cung Sinh Khí. Thiết kế mặt tiền biệt thự nhà vườn 1000m2 kích thước xây dựng trên đất hướng Nam. Mặt tiền biệt thự cổ điển 1 trệt 2 lầu 1 tum có khối ngang 14m phủ bì. Bề sâu dài ra sau 18m có nhà gara để xe 1 bên đi vào từ hướng cổng nhôm đúc. Với nước Ren màu sắc sáng đẹp tỷ lệ cân xứng. Mảng tường phía trước sảnh có cột i ô níc đăng đối chuẩn. Kiến trúc thiết kế biệt thự 1000m2 có ban công mềm mại hình bán nguyệt. Uy nghi diễm lệ như một căn biệt phủ 1000m2 kiểu lâu đài châu âu Pháp

Thuyết minh về biệt thự sân vườn 1000m2 3 tầng châu âu
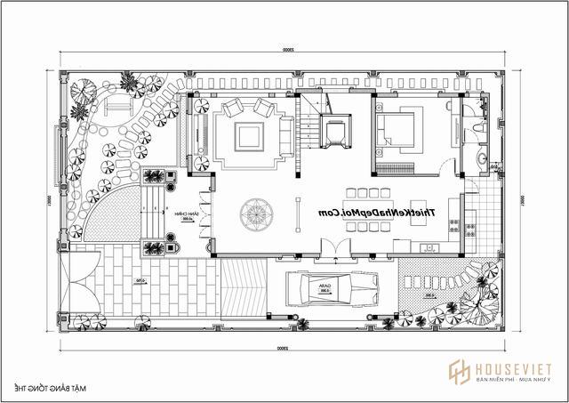
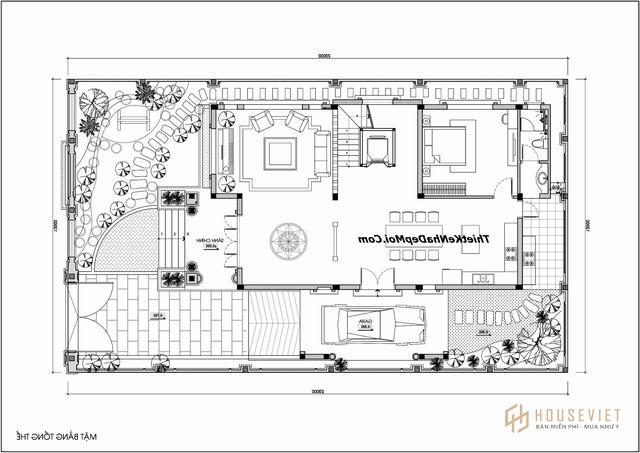
Mẫu biệt thự châu âu cổ điển Pháp thiết kế theo phong thủy nhà ở 1 mặt tiền hướng Nam. Xây về bên trái chia thành 3 khu nhà gara để xe rộng kích thước 5×8 đặt bên phải hàng rào. Mục đích chính là để khoảng sân vườn tiểu cảnh ở giữa đất trung tâm. Làm nơi sinh hoạt thư giãn ngoài trời có hòn non bộ bể cá và nhà chòi lục giác phía sau. Mẫu biệt thự sân vườn 1000m2 xây dựng hướng Nam cho người mệnh Kim. Hợp với tuổi Mão 1963 vừa gần gũi với thiên nhiên tạo cảm giác nhẹ nhàng.

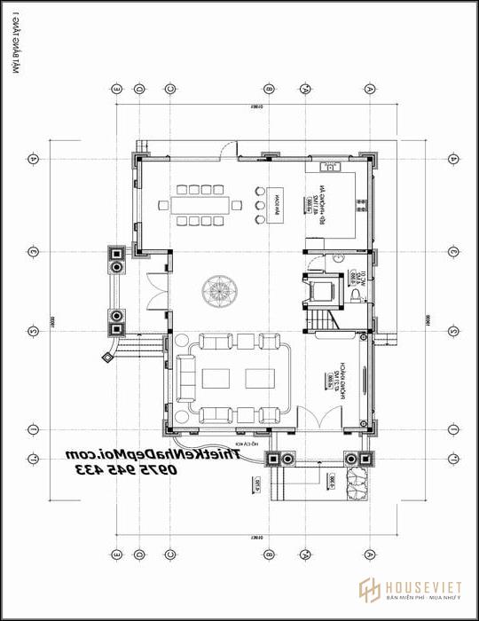
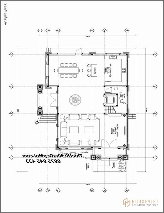
Mặt bằng kích thước thiết kế biệt thự 1000m2 1 trệt 2 lầu 1 áp mái 2022
Kích thước nhà biệt thự nhà vườn 3 tầng châu âu 1000m2 ngang mặt tiền ngoài 14m sâu 18m ra sau. Anh chị quan sát bản vẽ tầng 1 mặt bằng dưới đây nhìn từ dưới lên trên. Phía trước sảnh bên phải có hồ cá Koi và móng thiết kế cao ráo 75cm 5 bậc. Tạo cho kiến trúc bề thế. Kích thước mặt bằng trệt 250m2 1 sàn có không gian rộng rãi. Đây là cũng 1 trong các mẫu villa vườn 3 tầng đẹp ở nông thôn có thang máy hiếm hoi. Rất tiện cho người cao tuổi lên xuống các tầng bên trên

Mặt bằng các tầng còn lại của biệt thự vườn 1000m2 kiểu cổ điển
Lưu ý diện tích thiết kế biệt thự vườn kiểu châu âu đẹp 3 tầng ngang 14×18 nghĩa là 250m2. Đó là diện tích phủ bì tính cả sảnh trước và bên hướng Đông Nam. Chứ thật ra trừ ra các khoảng kích thước thiết kế sân vườn 1000m2 trên chỉ còn hơn 200m21 sàn. Tuy nhiên cách tính xây villa sân vườn 1000m2 cổ điển là bởi
- Tầng trệt: Sàn 190m2 + nhà gara để xe 40m2 nữa là 230m2
- Kích thước móng áp cọc tính 100m2
- Kích thước diện tích xây biệt thự cổ điển tầng 2 là 200m2 do có ban công
- Tầng lầu 2: 200m2
- Tầng tum: 150m2
- Tầng áp mái bê tông lợp ngói tính 120m2
- Như vậy anh chị đã hiểu lý do tại sao gói là mẫu biệt thự 1000m2 rồi nhé

Cách trang trí nội thất không gian biệt thự 1000m2 cao cấp sang trọng
Trong kiến trúc villa sân vườn châu âu khi thiết kế nội thất nhà vườn châu âu. Đòi hỏi phải có sự tương quan hài hòa tương xứng giữa mặt tiền mảng tường ngoại thất. Với không gian nội thất đẹp phong cách biệt thự châu âu rộng 1000m2. Tránh trường hợp ” Đầu voi đuôi chuột – râu ông nọ cắm cằm bà kia “. Dưới đây là ý tưởng thiết kế trang trí nội thất tân cổ điển châu âu cao cấp 2021 sang trọng. Tương ứng với kiến trúc mặt bằng và phối cảnh kích thước diện tích mặt bằng trên.





Mình nghĩ rằng: Ngoại thất đã đẹp thì yêu cầu trang trí các gam màu nâu gỗ. Kết hợp với tone nền chủ đạo trắng vân đá kết hợp với thảm trải sàn cổ điển là rất hợp lý. Không gian không nhất thiết phải quá mức cầu kỳ. Anh chị nếu đã và đang xây biệt thự kiểu pháp như này nên chọn style neo classic là Vip rồi. Ngoài ra nếu phòng khách nhỏ hơn hay ưa thích các màu gỗ sơn PU cánh dán nhẹ hơn. Thì xem 1000 hình ảnh nội thất trang trí nhà đẹp 2021. Vừa thiết kế của anh em team NHÀ ĐẸP MỚI mình TẠI ĐÂY mà biết thêm chuyên môn
Thông điệp xây nhà biệt thự nghỉ dưỡng 1000m2 hay nhỏ hơn năm 2022
Đây là mẫu biệt thự 3 tầng có thang máy kiểu Pháp. Đặc điểm của xu hướng xây nhà villa sân vườn kiểu châu âu Neo Classic luôn hấp dẫn các đại gia. Đây là mẫu biệt thự nghỉ dưỡng 5 phòng ngủ rộng rãi với nội thất cao cấp Vip. Tổng chi phí hòa thiện cả nội thất kiến trúc sân vườn đẹp dự toán hết 9 tỷ. Trong đó nội thất cơ bản và phần thô sân vườn hết 7 tỷ. Còn nội thất mua sắm bàn ghế gia công đóng nội thất ốp đá full. Cộng gara tiểu cảnh hết thêm 2 tỷ.

Phân tích cái hay của mẫu thiết kế sân vườn villa 1000m2 phong thủy
Cái hay của ý tưởng thiết kế biệt thự nhà vườn 1000m2 cổ điển Pháp này. Chính là kiến trúc không bao giờ lỗi thời vừa hợp với phong thủy. Cách chia mặt bằng tổng thể trên đất hình chữ nhật nằm ngang hợp lý. Cách bố trí thiết kế biệt thự 1000m2 có thang máy với nội thất hài hòa. Phía ngoài có cổng chính dành riêng cho gara để xe và cổng phụ. Cách thiết kế kiểu biệt thự cao cấp hình chữ L có phòng thờ view về hướng cung Phước Đức trên tầng tum Đông Nam. Vừa hài hòa với màu sơn tuổi năm sinh 1963 Qu ý Mão – chủ đầu tư

Mẫu biệt thự nhà vườn 2 tầng rưỡi kiểu châu âu theo phong thủy
Trường hợp anh chị thuộc các năm sinh như 1970 tuổi Tuất Chấn Mộc Thoa Xuyến Kim. Hay 1979 Kỷ Mùi Đông tứ trạch mệnh hỏa. Thậm chí tuổi giáp ngọ – Cấn Thổ 1964. Nhâm Thìn 1952 Trường Lưu Thủy… Nếu cần xây villa hay thiết kế sân vườn 1000m2 cho nhà 1 hay 2 tầng. Chuyên gia kiến trúc sư cao cấp hàng đầu Việt Nam mình khi đến xem đất khảo sát. Có chuyên môn sẽ giúp anh chị thiết kế nhà vườn 100m2 nghỉ dưỡng. Như quy hoạch tổng thể bao gồm
- Thiết kế cổng chính và hàng rào bao quanh
- Thiết kế hồ cá, bể bơi.. nếu cần
- Thiết kế nhà chòi, nhà ăn phòng bếp bên ngoài, hay gara để xe
- Quy hoạch khai triển chi tiết 3D hồ bơi nếu cần. Hay cách trồng cây gì xung quanh ..
- Ví dụ như mẫu nhà vườn châu âu anh Hậu xây trên đất ngang 13.3m dài 25m mặt bằng sau điển hình

Anh chị cần xem hồ sơ thiết kế biệt thự châu âu cao cấp 2 tầng rưỡi anh Hậu. Ý tưởng thiết kế sân vườn gần 1000m2 tổng thể dù đât không được đẹp. Và chi phí đầu tư khoảng 4 tỷ thì truy cập tại bài viết này mà khám phá thêm. Dành cho phong thủy xây biệt thự cho người mệnh Hỏa hay Thổ có màu sơn sẫm màu
Mẫu nhà mái thái biệt thự sân vườn 200m2 xây trên đất rộng 1000m2 anh Cao
Trường hợp anh chị cần thiết kế sân vườn 1000m2 tổng thể kiến trúc cấp 4 mái thái. Kiểu biệt thự trệt 3 phòng ngủ diện tích xây khoảng 200m2 còn lại 800m2 làm cảnh quan sân vườn hướng Nam. Thì xem bài viết này
- Mẫu biệt thự nhà vườn mái thái cấp 4 đẹp nông thôn anh Cao

Xem thêm các dự án biệt thự sang trọng tương ứng 1000m2 khác
Đây là dự án thiết kế biệt thự mái nhật hiện đại trên đất không hợp hướng. Hình vẽ hồ sơ của nhà anh Quảng đã xây xong quy mô xây 1 trệt 2 lầu sân thượng. Nếu anh chị cần xây nhà phía sau có bể bơi mini nhỏ và hóa giải xâu biệt thự sang trọng 1000m2 thì xem hình và thông tin nhà vườn anh Quảng như sau

Các công trình thiết kế sân vườn nội thất cao cấp sang trọng 1000m2 khác
Ngoài ra còn có các công trình nhà đẹp 100m2 hay diện tích lớn nhỏ khác anh chị đừng qua tại bài viết
- Cần xây biệt thự sang trọng kiểu hiện đại 3 tầng anh Quảng như hình thì xem bài này
- Hoặc tham khảo hồ sơ thiết kế nội thất biệt thự cao cấp cô Trúc mái thái tân cổ điển
- Cách xây nhà 1 tầng có gác lửng mái lệch đẹp hiện đại anh Nam
Cần xây biệt thự ở quê mái Nhật tân cổ điển. Mặt bằng có 4 phòng ngủ 1 phòng thờ 10×22 thì xem nhà em Nhung. Kích thước xây 220m2 1 bên trên đất rộng ở nông thôn. Còn lại thiết kế sân vườn 1000m2 có chòi nghỉ phía sau và đà phun nước..

Xem mẫu nhà vườn 1000m2 trệt đẹp có 4 phòng ngủ em Nhung kiểu tân cổ điển như hình thì tham khảo THÔNG TIN Ở ĐÂY mà chọn xem ý tưởng và kiến trúc trước khi gọi.
Tranh thủ ngày 28 Tết trước thềm năm mới 2022 cập nhật thêm kiểu biệt thự sân vườn 1000m2 anh Tuyển. Cũng như ý tưởng thiết kế riêng mẫu biệt thự kiểu pháp cổ điển phong thủy. Xây trên đất vườn hướng Nam ghé Đông ngang 33m x 30 chữ nhật ngang. Để anh chị tham khảo mô hình cũng như chuyên môn KTS hàng đầu Việt Nam mà chọn. Ngoài ra chuyên môn KTS mình còn chuyên về kiến trúc cảnh quan thiết kế sân vườn 1000m2 khác. Cần thì liên hệ đến thực tế khảo sát. Chúc anh chị năm mới nhiều sức khỏe, may mắn. vui tết nhưng nhớ cẩn thận dịch Cô Vít. ! Thân ái thi đua và quyết thắng