Mẫu nhà cấp 4 3 phòng ngủ 100m2 đẹp ở Thái Bình NDNC4121
Dường như các mẫu nhà cấp 4 đẹp vẫn là sự lựa chọn hàng đầu của nhiều hộ gia đình ở nông thôn khi sở hữu ngoại thất đẹp, gần gũi và đảm bảo công năng sử dụng cho nhiều hộ gia đình. Và cũng bởi một nguyên nhân quan trọng nữa mà chỉ những mẫu nhà cấp 4 mới đáp ứng được nhu cầu của nhiều hộ gia đình là giá thành rẻ, thời gian thi công ngắn. Mẫu nhà cấp 4 3 phòng ngủ 100m2 của gia đình chị Hà là một ví dụ điển hình cho những hộ gia đình đang băn khoăn lựa chọn mẫu nhà cấp 4 3 phòng ngủ. Trong bài viết này, chúng tôi sẽ đưa ra 2 phương án thiết kế, nếu bạn ấn tượng với mẫu nào và muốn tìm hiểu thêm hãy liên hệ ngay với Nhà Đẹp qua số điện thoại Hotline bên dưới.
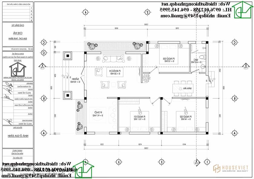
Thông tin mẫu nhà cấp 4 3 phòng ngủ 100m2
- Chủ đầu tư: Chị Hà
- Địa điểm xây dựng: Thái Bình
- Diện tích nhà: 9x12m
- Diện tích tiền sảnh: 10m2
- DTXD: 118m2
- Công năng: 1 phòng khách, 1 phòng thờ, 1 phòng ăn, 3 phòng ngủ và 1 vệ sinh chung.
- Chi phí dự kiến: 650 triệu đồng
- KTS: Nguyễn Văn Tuấn
| không gian nhà | Diện tích | Đơn vị | 
| Sảnh chính | mười | m2 | 
| Phòng khách | 22 | m2 | 
| Bàn thờ | 9,7 | m2 | 
| Phòng ăn | mười | m2 | 
| Phòng ngủ 1 | 13.1 | m2 | 
| Phòng ngủ 2 | 14 | m2 | 
| Phòng ngủ 3 | thứ mười hai | m2 | 
| Phòng vệ sinh | 4.2 | m2 | 
| toàn bộ khu vực | 118 | m2 | 
| Chi phí ước tính | 650 | triệu | 
Phối cảnh 3D mẫu nhà cấp 4 3 phòng ngủ 100m2
Phương án thiết kế 1 - Phương án cuối cùng

Phương án thiết kế thứ nhất được xây dựng mang những nét quen thuộc của mẫu nhà cấp 4 hiện nay với mái thái xanh mát, cột trụ vững chãi hai bên hiên, tam cấp và không gian sân vườn rộng rãi. Bạn sẽ thấy sơn màu vàng là gam màu được lựa chọn rất nhiều trong những ngôi nhà cấp 4 ở nông thôn bởi nó tạo nên vẻ đẹp gần gũi và trang nhã. Sự cộng hưởng thêm của đường mái, đường gờ thanh mảnh, sắc nét càng làm cho mặt tiền trở nên thu hút và ấn tượng hơn.
Các chi tiết chân tường, chân cột được lát bằng đá hoa cương nhằm mục đích tôn thêm mặt tiền. Ngoài ra, đây là hai vị trí dễ bị nhiễm bẩn nhất khi trời mưa gió nên việc thiết kế đá hoa cương sẽ giảm tác động xấu đến mặt tiền và cũng dễ dàng vệ sinh hơn.

Hệ thống mái thái cũng là yếu tố quan trọng tạo nên vẻ đẹp của tổng thể ngôi nhà. Với kết cấu nhiều mái, thuôn dài về hai phía, ngôi nhà trở nên thanh thoát, không quá nặng nề, vuông vức như các mẫu nhà mái thái Nhật Bản thể hiện. Ngoài ra, mái tôn còn có khả năng chống nóng, tản nhiệt tốt, bền đẹp theo thời gian nên được nhiều hộ gia đình ưa chuộng.
Phương án thiết kế 2
Phương án thiết kế thứ hai không quá khác biệt. Bạn có thể dễ dàng nhận ra ở sự thay đổi màu sắc của ngôi nhà. Thay vì màu vàng, ngôi nhà chủ yếu là màu xanh dương và điều đó mang đến cho bạn cảm giác mới lạ. Đó là cảm giác về một cuộc sống thanh bình, trong lành, mang nét đặc trưng của vùng quê. Màu sắc không chỉ có tác dụng về mặt thẩm mỹ mà còn là yếu tố quan trọng ảnh hưởng đến phong thủy của ngôi nhà. Đối với những bạn thuộc mệnh Thủy thì nên chọn màu xanh lam như thế này vì nó tốt cho sự phát triển, mở mang của cải và mang lại nhiều tiền tài, tài lộc cho gia đình.


Mặt bằng công năng thiết kế nội thất nhà cấp 4 mái thái
Phương án nội thất của mẫu nhà ống cấp 4 9x12m không có bếp do gia chủ bố trí khu vực nấu nướng riêng. Công năng sử dụng nhà gồm 1 phòng khách, 1 phòng thờ, 3 phòng ngủ và 1 vệ sinh riêng. Nội thất của ngôi nhà cũng được thể hiện rõ ràng trong mặt bằng nội thất. Với mỗi căn phòng, bạn nên có cách bài trí khác nhau để tạo nên sự đa dạng cho không gian sống. Ngoài ra, việc lựa chọn phong cách trang trí cũng cần quan tâm đến độ tuổi và sở thích của từng thành viên. Bạn không nên áp đặt sở thích của mình cho các thành viên khác mà nên tôn trọng điều đó. Chỉ có như vậy mới đảm bảo được cuộc sống êm ấm, hạnh phúc trong gia đình.

Mẫu nhà cấp 4 3 phòng ngủ mái thái là sự lựa chọn của gia đình anh Hà ở Thái Bình. Còn bạn, bạn đang có ý định xây dựng mẫu nhà mơ ước của mình như thế nào, hãy chia sẻ với Nhà Đẹp để chúng tôi giúp bạn thực hiện ước mơ này nhé.
= >>> Tham khảo thêm các mẫu nhà cấp 4 hiện đại khác:
- Các mẫu nhà cấp 4 mái thái 3 phòng ngủ đẹp giá rẻ
- Mẫu thiết kế nhà ống cấp 4 5x20m mái tôn giá 500 triệu NDNC4122
- Tư vấn thiết kế thi công nội thất chung cư tại Thanh Nhàn NDNTCC44
- https://thietkethicongnhadep.net/mau-nha-dep/biet-thu-2-tang/
- https://thietkethicongnhadep.net/mau-nha-dep/mau-nha-san-dep/
- https://thietkethicongnhadep.net/mau-nha-dep/mau-nha-2-tang/
- https://thietkethicongnhadep.net/mau-nha-dep/biet-thu-co-dien/
 
  
  
 ![[CẬT NHẬT!!!] 400+ Mẫu nhà vuông 3 tầng vượng khí với dòng chảy tuần hoàn (P2)](https://cdn.houseviet.vn/images/news/19042022/132948532019224198-m.png) 
 