Mẫu nhà cấp 4 5x17m đẹp tại Đồng Nai NDNC496
Mẫu nhà cấp 4 có gác lửng luôn là sự lựa chọn lý tưởng cho những gia đình muốn tiết kiệm chi phí nhưng vẫn đảm bảo được nhiều công năng sử dụng. Mẫu nhà cấp 4 mái thái 5x17m mà chúng tôi thiết kế cho gia chủ tại Đồng Nai cũng là một trong những mẫu nhà như vậy. Với vẻ đẹp kiến trúc và sự tiện lợi trong công năng sử dụng, mẫu nhà cấp 4 mái thái này dễ dàng hút hồn những gia chủ sở hữu mảnh đất mặt tiền 5m.
Khi liên hệ với chúng tôi, gia chủ muốn sử dụng dịch vụ thiết kế và thi công trọn gói nhưng do ở xa nên chúng tôi chỉ nhận thiết kế. Vì đã tìm hiểu nhiều mẫu nhà trên website của chúng tôi nên anh vẫn quyết định sử dụng dịch vụ thiết kế nhà của kiến trúc nhà đẹp. Chúng tôi rất vinh dự khi luôn được sự quan tâm và tin tưởng của quý khách hàng. Trở lại với mẫu nhà cấp 4 đẹp này, chúng ta cùng xem lại thông tin để khách hàng tiện theo dõi nhé.
Thông tin mẫu nhà cấp 4 5x17m
- Chủ đầu tư: Anh Trường
- Địa điểm xây dựng: Đồng Nai
- Diện tích nhà: 4,5mx 17,8m
- DTXD: 123,3m2
- Diện tích sảnh trước: 4,7m2
- Tổng diện tích xây dựng: 128m2
- Tổng kinh phí xây dựng dự kiến: 650 triệu đồng
Chi tiết mẫu nhà cấp 4 5x17m
Bản vẽ nhà cấp 4 này được thiết kế trên lô đất khá rộng nhưng theo ý của gia chủ muốn chừa diện tích làm sân chơi nên chúng tôi đã bố trí thiết kế với diện tích 5x17m, phần thừa dành cho lối vào. , sân chơi tiện lợi. Với tiêu chí đơn giản nhưng vẫn phải thoải mái cùng với đó là yếu tố gió và ánh sáng tự nhiên được đưa vào nhà giúp gia đình tận hưởng không khí thoải mái ngay trong ngôi nhà của mình.

Chúng tôi đưa ra 2 phương án để gia chủ lựa chọn, cuối cùng anh chốt phương án 1. Nói về phương án này, ngay khi nhìn mặt tiền của ngôi nhà, bạn có thể thấy nó rất đơn giản, đúng như những gì mà gia chủ mong muốn. ban đầu. Mái hiên được thiết kế cách điệu cho ngôi nhà, cột trụ hai bên tạo sự bề thế, vững chãi. Mặt tiền tiếp theo không quá chi tiết, chỉ có cửa chính được thiết kế theo phong cách hiện đại giúp không gian trở nên thông thoáng hơn. Trên mái hiên được thiết kế các thanh ngang giúp gió dễ dàng vào nhà.
Phần mái thái có phần bề thế khi kiến trúc sư quyết định thiết kế phần mái, nghe có vẻ phức tạp nhưng có thể nói đây chính là điểm nhấn của ngôi nhà. Mái thái màu xanh lam đồng nhất với màu sơn tạo nên sự thống nhất hài hòa. Không chỉ vậy, thời gian gần đây, mái ngói xanh rất được ưa chuộng bởi tính thẩm mỹ cũng như màu sắc nhẹ nhàng, tinh tế mà nó mang lại. Không quá nổi bật nhưng đủ thu hút mọi ánh nhìn.

Gam màu chủ đạo là màu trắng trang nhã kết hợp với màu xanh lam nhã nhặn rất dễ chịu. Bên trái từ sảnh chính của mẫu nhà cấp 4 nhỏ đẹp này chúng tôi dự định thiết kế thêm một cửa phụ giúp gia chủ có thể dễ dàng sử dụng các tiện ích khác trong nhà, nhưng không muốn nên chúng tôi không cho. anh ta. vào thiết kế. Hệ thống cửa kính cường lực khung nhôm hiện đại, an toàn cũng được bố trí xung quanh dễ dàng đưa ánh sáng tự nhiên vào nhà.
> Xem ngay: Mẫu nhà cấp 4 3 phòng ngủ
Công năng sử dụng của nhà cấp 4 5x17m

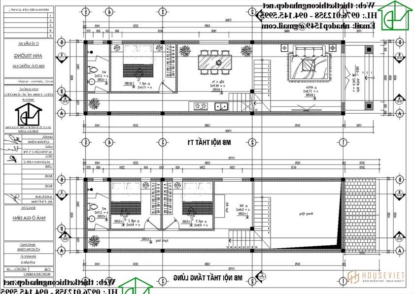
Mặt bằng tầng 1: Thiết kế phòng khách sang trọng ngay khi bước vào từ sảnh chính. Tiếp đến là phòng ăn kết hợp bếp tiện nghi ở cầu thang lên tầng thượng. Trong cùng là phòng ngủ master dành cho bố mẹ, phòng vệ sinh chung nằm cạnh phòng ngủ.
Tầng lửng: Gồm 2 phòng ngủ được thiết kế cạnh nhau, 1 phòng thờ và 1 phòng vệ sinh chung.
Mẫu nhà cấp 4 5x17m Đây là một trong những mẫu nhà lý tưởng dành cho những gia chủ có mặt tiền 5m, không quá nổi bật nhưng vẫn giữ được nét thanh thoát, nhẹ nhàng, truyền thống. Quý khách có nhu cầu vui lòng liên hệ theo số điện thoại 0978988780 hoặc để lại bình luận bên dưới bài viết này, rất hân hạnh được phục vụ quý khách!
- Mẫu nhà cấp 4 7x12m mái thái đẹp tại Hưng Yên NDNC499
- Mẫu nhà cấp 4 mái thái 90m2 tại Hải Phòng NDNC498
- Mẫu thiết kế nhà phố 3 tầng đẹp từ 1-1,5 tỷ đồng