Mẫu nhà cấp 4 6x13m ấn tượng nhất 2019 NDNC4101
Ngôi nhà cấp 4 mái thái truyền thống đã rất quen thuộc với người dân Việt Nam. Tuy nhiên, ngày nay những mẫu nhà cấp 4 đẹp được thiết kế với nhiều hình dáng và phong cách khác nhau, phá bỏ những quy tắc cũ cũng như mang những nét kiến trúc riêng. Hôm nay Nhà Đẹp sẽ gửi đến các bạn một mẫu nhà cấp 4 6x13m Phần mái chéo vô cùng ấn tượng có thể nói là đặc biệt nhất trong năm 2019 mà chúng tôi đã thiết kế.
Do sự du nhập của văn hóa phương Tây nên gia chủ chúng tôi rất ưa chuộng những mẫu nhà cấp 4 hiện đại với những nét chấm phá độc đáo, đường nét kiến trúc phá cách, không theo một khuôn khổ nhất định. Vì điểm mạnh nhất của nhà đẹp là mẫu thiết kế nhà cấp 4 truyền thống nên việc nhận được yêu cầu của khách hàng lần này là một thử thách đối với chúng tôi. Tuy nhiên với hơn 10 năm kinh nghiệm làm việc cùng đội ngũ luôn trau dồi kiến thức nên khi bàn giao hồ sơ gia chủ đã rất hài lòng, dự kiến trong tháng này sẽ khởi công để về quê kịp Tết.
Thông tin mẫu nhà cấp 4 6x13m
- Chủ đầu tư: Anh Tiến
- Địa điểm xây dựng: Hải Phòng
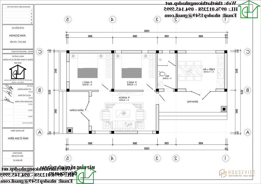
- Diện tích sử dụng: 62m2
- Diện tích sảnh chính và sảnh phụ: 14m2
- Tổng diện tích: 76m2
- Kinh phí dự kiến: 400 triệu (chưa bao gồm mái)
Chi tiết mẫu nhà cấp 4 6x13m
Mặt tiền mẫu nhà cấp 4 6x13m Gây ấn tượng với người nhìn bởi lối kiến trúc vuông vắn, trẻ trung và phóng khoáng. Nếu theo dõi các mẫu nhà đẹp trên website của chúng tôi, các bạn có thể dễ dàng nhận thấy đây là mẫu nhà độc đáo không thể tìm thấy ở bất kỳ mẫu thiết kế nào khác. Tuy lấy ý tưởng từ cách sắp xếp các mảng khối nhưng không hề tạo cảm giác thô cứng mà ngược lại, các khối này được chia thành các phần riêng biệt với các mảng kiến trúc rõ ràng dưới một bố cục thông minh và hợp lý. của kiến trúc sư trở nên hài hòa hơn.

Do đặc trưng của phong cách hiện đại nên ngôi nhà có sự kết nối thông thoáng với cảnh quan bên ngoài, các vách ngăn và cửa kính dễ dàng cho ánh sáng tự nhiên tràn ngập tự do trong không gian bên trong. Ngoại thất được thiết kế phi đối xứng, không theo quy luật nào, những điểm nhấn ấn tượng như bức tường gạch bên hông nhà tạo nên nét đột phá cho thiết kế.

Xem thêm: Nhà cấp 4 2 phòng ngủ
Tông màu trắng kết hợp với màu nâu vàng của gỗ và gạch thể hiện nét đặc trưng của đường nét và hình khối. Sự kết hợp giữa màu sơn tường trắng và nâu được sử dụng khéo léo tạo nên điểm nhấn ấn tượng trong tổng thể không gian. Ngoài ra, màu sắc hài hòa còn được tôn lên nhờ sự kết hợp với các vật liệu hiện đại như kính, ánh sáng, sơn tường.

Độc đáo nhất là phần mái của mẫu nhà cấp 4 400 triệu, nếu ai không yêu thích phong cách hiện đại chắc hẳn sẽ không thích mẫu nhà mái thái này. Phần mái chéo được đổ bê tông lợp ngói, đường nét thiết kế tự do, phóng khoáng đã thổi hồn kiến trúc sư vào ngôi nhà. Để tạo nên sự thành công của ngôi nhà hiện đại này thì phần mái là không thể thay thế được, đây cũng là phần mà gia chủ yêu thích nhất.
Tiện ích

Bố trí công năng sử dụng gồm phòng khách sang trọng ở giữa nhà, bên cạnh là 2 phòng ngủ tiện nghi. Phòng ăn kết hợp bếp và phòng vệ sinh chung bên ngoài được thông với nhau bằng sảnh phụ rất tiện lợi. Vì không thích mùi thức ăn nên gia chủ quyết định thiết kế phía ngoài là phòng vệ sinh chung.
Không phải tất cả khách hàng đều thích nó mẫu nhà cấp 4 6x13m Sở dĩ như vậy là do hầu hết những người này đều ưa chuộng mẫu nhà cấp 4 truyền thống. Tuy nhiên, hiện nay phong cách hiện đại đang dần chiếm ưu thế và trở thành một nét đẹp trong kiến trúc của Việt Nam. Tại công ty nhà đẹp chúng tôi luôn nỗ lực tạo ra những sản phẩm tốt nhất đáp ứng nhu cầu của từng khách hàng. Đừng quên gọi điện cho chúng tôi nếu bạn đang có ý định xây cho mình một ngôi nhà đẹp nhé!
Có thể bạn sẽ thích mẫu nhà tầng 4 này:
- Mẫu nhà cấp 4 7x14m mái thái đơn giản tại Long An NDNC4105
- https://thietkethicongnhadep.net/mau-nha-dep/nha-cap-4-3-phong-ngu/
- Mẫu nhà cấp 4 dưới 400 triệu không thể bỏ qua