Mẫu nhà cấp 4 7 × 15 nhỏ gọn và độc đáo tại Hà Nội NDNC4115
Hà Nội luôn được coi là mảnh đất màu mỡ để phát triển con người, phát triển kinh tế và mọi lĩnh vực của xã hội. Vì lẽ đó, người dân nào cũng mong muốn có một ngôi nhà tại đây. Dù quy mô lớn hay nhỏ thì nó cũng chứng tỏ một nền tảng vững chắc cho sự phát triển sau này của gia đình. Nếu bạn đang có ý định xây nhà tại Hà Nội thì nên tham khảo các mẫu nhà của Nhà Đẹp để có cho mình hướng đi và tính toán kinh phí phù hợp. Chúng tôi có rất nhiều mẫu nhà được xây dựng tại đây, bao gồm các mẫu nhà cấp 4 đẹp, nhà phố hay biệt thự. Mẫu nhà cấp 4 7 × 15 Mẫu nhà đẹp giới thiệu đến các bạn dưới đây phù hợp với những hộ gia đình có kinh phí vừa phải.
Thông tin mẫu nhà cấp 4 7 × 15 tại Hà Nội
- Chủ đầu tư: Anh Kiên
- Địa điểm xây dựng: Hà Nội
- Kích thước nhà: 7,4 × 15,2m
- DTXD: 100m2
- Diện tích tiền sảnh: 7m
- Kinh phí dự kiến: 600 triệu đồng
- Công năng: 1 phòng khách, 3 phòng ngủ, 1 phòng ăn - bếp, 1 vệ sinh chung
- KTS: Phạm Văn Chính
Phối cảnh 3D mẫu nhà cấp 4 7 × 15 tại Hà Nội

Xem thêm: Nhà cấp 4 3 phòng ngủ
Mặt tiền nhà rộng 7,2m không quá lớn nhưng cũng đủ để các kiến trúc sư Nhà Đẹp có nhiều điểm sáng tạo cho ngôi nhà. Nếu nhắc đến nhà ống cấp 4 hiện đại bạn sẽ hình dung ngay đến những khối tường vuông vắn, vững chãi và có phần thô sơ, đơn điệu thì mẫu nhà cấp 4 đẹp của gia đình anh Kiên đã được cải tiến rất nhiều. nhiều. Mặt tiền không chỉ được sơn tường thông thường mà được ốp bằng gạch giả cổ với bề mặt nhám, màu sắc ấn tượng để tạo điểm nhấn. Chi phí ban đầu sẽ đắt hơn sơn nước nhưng về lâu dài gạch giả cổ có tuổi thọ cao hơn, chống thấm hiệu quả.
Tuy là kiến trúc thấp tầng nhưng với các biện pháp chống nóng hiệu quả như sử dụng hệ thống dầm thông gió, mái thái cùng với hệ thống cửa nhôm kính đóng mở dễ dàng giúp ngôi nhà luôn mát mẻ và thông thoáng. Ngoài ra, cửa nhôm kính còn giúp ngôi nhà trở nên sang trọng và hiện đại hơn, không chỉ đảm bảo nguồn ánh sáng tự nhiên vào ban ngày mà còn tạo hiệu ứng ánh sáng đẹp mắt vào ban đêm.

Phần còn lại của ngôi nhà được lát gạch sạch sẽ làm không gian sinh hoạt ngoài trời kết hợp với chỗ để xe. Hàng rào kiên cố đảm bảo an ninh tuyệt đối cho ngôi nhà nhưng vẫn đạt hiệu quả thẩm mỹ nhờ sự thống nhất về màu sắc của toàn bộ công trình.
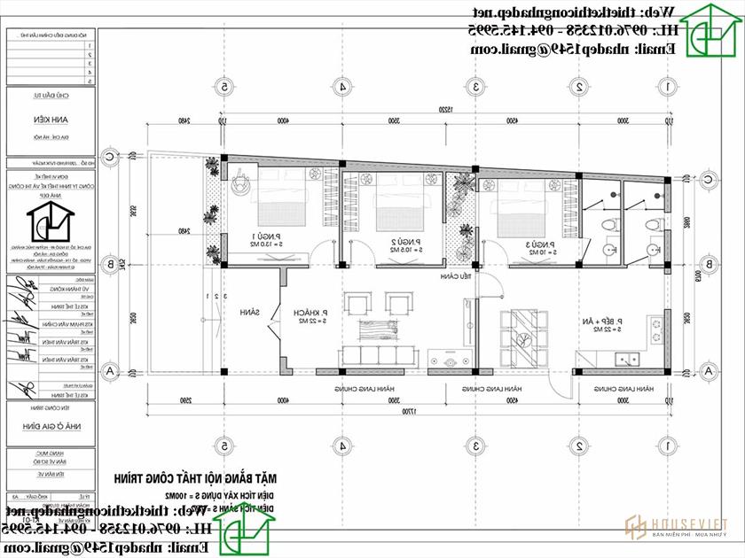
Mặt bằng nội thất của dự án

Nhìn vào phối cảnh 3D chắc hẳn bạn sẽ không biết mảnh đất của gia đình anh Kiên có đường chéo nhưng thực tế mảnh đất xây dựng không được vuông vắn cho lắm. Mặt tiền rộng 7,4m và mặt sau chỉ rộng 6,7m. Đất xéo không chỉ ảnh hưởng đến không gian sống mà xét về mặt phong thủy đây là dạng đất không đẹp, khó xây nhà. Tuy nhiên, mảnh đất của gia đình anh Kiên vẫn đảm bảo được việc bố trí không gian nên về mọi mặt không ảnh hưởng quá nhiều đến sinh hoạt của gia đình.
Công năng sử dụng nhà gồm 3 phòng ngủ (1 phòng master), 1 phòng khách, 1 bếp và 1 vệ sinh chung. Ngoài sảnh chính còn có sảnh phụ để tiện đi lại.
Đến đây chúng tôi đã giới thiệu đến các bạn thông tin sơ bộ về mẫu nhà cấp 4 7 × 15 Tại Hà Nội. Nếu bạn cảm thấy hài lòng và tìm hiểu thêm về mẫu nhà này, hãy để lại bình luận bên dưới bài viết hoặc gọi đến Hotline của Nhà Đẹp để nhận được sự hỗ trợ tốt nhất.
Tham khảo thêm các kiểu nhà cấp 4 khác:
- Nhà cấp 4 ở nông thôn, mẫu nhà cấp 4 nông thôn đơn giản NDNC4116
- Mẫu nhà cấp 4 kiểu mỹ với thiết kế không gian mở, gần gũi với thiên nhiên
- https://thietkethicongnhadep.net/mau-nha-dep/biet-thu-2-tang/
- https://thietkethicongnhadep.net/mau-nha-dep/mau-nha-san-dep/
- https://thietkethicongnhadep.net/mau-nha-dep/mau-nha-2-tang/
- https://thietkethicongnhadep.net/mau-nha-dep/biet-thu-co-dien/