Mẫu nhà cấp 4 7x12m mái thái đẹp tại Hưng Yên NDNC499
Nếu bạn muốn tiết kiệm chi phí xây nhà thì nên làm nhà cấp 4 mái thái kiểu nhật như mẫu nhà cấp 4 7x12m mà chúng tôi chia sẻ đến các bạn. Nguyên nhân là do giá xây nhà cấp 4 phụ thuộc vào diện tích xây dựng nên khi chúng ta làm nhà mái thái thì diện tích làm mái tôn sẽ ít hơn. Theo kinh nghiệm của mình thì diện tích mái thái của mái Nhật bằng khoảng 30 - 40% diện tích xây dựng. Nhưng nếu để mái thì khoảng 40 - 50% diện tích xây dựng. Tức là bạn tiết kiệm được thêm 10%, ví dụ bạn xây nhà 1 tỷ thì bạn chỉ cần khoảng 900 triệu. Đây chỉ là một trong những vấn đề cần lưu ý khi xây nhà.
Có thể nói mẫu nhà cấp 4 đẹp là kiểu kiến trúc được ưa chuộng nhất hiện nay. Với nhiều kiểu dáng độc đáo luôn tạo cho mọi người những ấn tượng khác nhau. Giống mẫu nhà cấp 4 7x12m Nhà mái thái mà Nhà Đẹp thiết kế cho gia chủ ở Hưng Yên là một trong những mẫu nhà có kiến trúc ngoại thất đẹp.
Chỉ hơn 80m2 nhưng mẫu nhà cấp 4 này đáp ứng được nhu cầu tiện nghi và công năng. Gia chủ tuy hiện tại không có nhiều người nhưng vẫn muốn xây một lần để sau này không phải cơi nới thêm quá nhiều. Chúng tôi rất ủng hộ quan điểm này, vì sau này xây thêm nhà không chỉ tốn thêm tiền của mà còn mất nhiều thời gian, công sức.
Thông tin và đơn giá xây dựng mẫu nhà cấp 4 7x12m
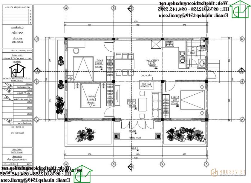
- Chủ đầu tư: Anh Tiến
- Địa điểm xây dựng: Hưng Yên
- Diện tích sử dụng: 84m2
- Diện tích tiền sảnh: 6m2
- Diện tích vành mái: 90 × 0,4 = 36 m2
- Tổng diện tích xây dựng: 84 + 6 + 36 = 126m2
- Chi phí dự kiến: 650 triệu đồng
Chi tiết mẫu nhà cấp 4 7x12m

Mẫu nhà cấp 4 7x12m Ngôi nhà này có kiến trúc rất quen thuộc, có thể nói đây là một trong những mẫu nhà rất đặc trưng ở nông thôn. Mặt tiền được thiết kế đơn giản với các chi tiết tạo nên sự vững chãi và bề thế. Các đường gờ chỉ ngang màu trắng tạo điểm nhấn cho mặt tiền, không quá cầu kỳ nhưng mang lại cảm giác nhẹ nhàng hơn.

Mái Thái xanh hiện nay rất được ưa chuộng, nếu như cách đây 1-2 năm hầu hết mọi người đều chuộng mái Thái đỏ hoặc xây nhà bằng mái ngói, tôn để tiết kiệm chi phí thì nay dường như màu xanh đang lên ngôi. . Trong nửa đầu năm 2019, có rất nhiều mẫu nhà cấp 4 7x12m, biệt thự 1 tầng mái thái xanh được khách hàng của Nhà Đẹp yêu cầu. Bởi lẽ, màu xanh luôn tạo cảm giác thanh thoát, tinh tế hơn màu đỏ, không quá nổi bật nhưng vẫn khiến tổng thể không gian trở nên bắt mắt.

Tham khảo: Mẫu nhà cấp 4 3 phòng ngủ
Màu sắc chủ đạo trong thiết kế là màu trắng, kết hợp với cửa kính cường lực khung nhôm cao cấp màu nâu nhạt và mái thái xanh đen. Đây là sự kết hợp màu sắc khéo léo và tinh tế giúp tôn lên vẻ đẹp của từng chi tiết trong ngôi nhà. Những chậu hoa lát gạch được bố trí xung quanh nhà không chỉ mang không gian xanh vào không gian sống mà còn giúp chân tường luôn sạch đẹp, không bị rêu mốc hay ẩm mốc khi trời mưa.
Công năng sử dụng của mẫu nhà cấp 4 7x12m

Mục đích của gia chủ là không gian sống thoải mái, phục vụ nhu cầu sinh hoạt của gia đình là chính nên Nhà Đẹp đã thiết kế mẫu nhà 3 phòng ngủ ở các góc của ngôi nhà. Phòng khách rộng rãi nằm phía trước cửa ra vào, phòng thờ được bố trí ngay phòng khách, có vách ngăn với phòng bếp bên trong. Khu vực bếp là sự kết hợp giữa bếp và ăn, bên cạnh là phòng vệ sinh chung cho cả gia đình.
Đối với những gia đình ở nông thôn mẫu nhà cấp 4 7x12m Mái nhà này là một ngôi nhà lý tưởng. Với số lượng thành viên từ 2-5 người có thể dễ dàng sinh hoạt cùng nhau. Nếu bạn có nhu cầu thiết kế, thi công nhà cấp 4 nói riêng và các mẫu biệt thự, nhà phố nói chung, đừng quên liên hệ với chúng tôi để được tư vấn nhanh chóng và tận tình nhất.
- Cùng chiêm ngưỡng 10 mẫu nhà cấp 4 đẹp nhất hiện nay
- Ngắm mẫu biệt thự 2 tầng 8x12m đẹp tại Hà Nam NDBT2T74