Mẫu nhà cấp 4 7x13m đẹp ở Cà Mau NDNC493
Đây là một trong những mẫu nhà cấp 4 mái thái đẹp theo phong cách Nhật Bản mà tôi dám cá là ở Việt Nam sẽ không có. Với kinh nghiệm thiết kế nhiều năm của mình, tôi chưa thấy một đơn vị nào thiết kế nhà cấp 4 7x13m giống với phong cách này. Bạn có thể thấy những nét phương Tây trong thiết kế này phải không? Không chỉ có thiết kế đơn giản, trang nhã mà vẫn mang đến cho bạn cảm giác tươi mới. Và Nhà Đẹp cũng đã thi công một công trình như mẫu thiết kế này đó là mẫu nhà 1 tầng tại Cẩm Phả Quảng Ninh. Bạn sẽ cảm thấy mới lạ, không quá cầu kỳ nhưng rất bắt mắt đúng không? Điều quan trọng là với mẫu nhà cấp 4 này giá xây dựng không quá cao, chỉ với 500 - 600 triệu là bạn hoàn toàn có thể xây được ngôi nhà này. Tuy nhiên, quyết định lựa chọn mẫu nhà cấp 4 7x13m này bạn phải xem nó có phù hợp với gia đình mình không. Nếu bạn cho rằng nó quá nhỏ, chúng ta có thể liên hệ với các kiến trúc sư để chỉnh sửa lại cho phù hợp với nhu cầu của gia đình mình.
Mẫu nhà cấp 4 mái thái Nhật Bản luôn được săn đón bởi lối kiến trúc tinh tế và độc đáo. Không chỉ đẹp về mặt thẩm mỹ mà còn tiết kiệm chi phí cho gia chủ. Hôm nay Nhà Đẹp xin gửi tới quý khách hàng 1 mẫu nhà cấp 4 7x13m đẹp mà chúng tôi vừa thiết kế tại Cà Mau. Hy vọng mẫu nhà này cho bạn những gợi ý khi tham khảo mẫu nhà đẹp cho mình.
Thông tin mẫu nhà cấp 4 7x13m
- Chủ đầu tư: Anh Thi
- Địa điểm xây dựng: Cà Mau
- DTXD: 72m2
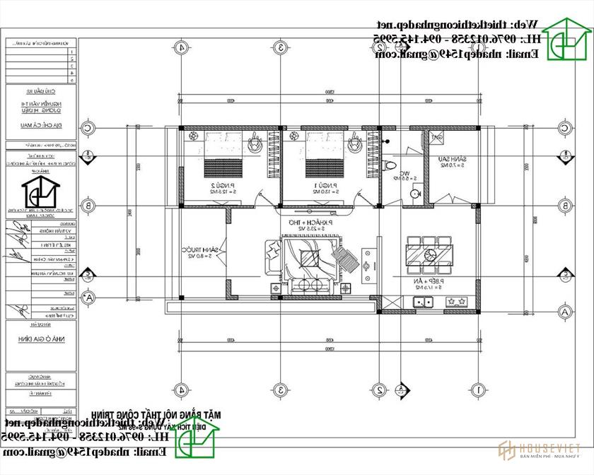
- Diện tích sảnh trước: 8m2
- Diện tích sảnh sau: 7m2
- Tổng kinh phí xây dựng dự kiến: 480 triệu đồng
Chi tiết mẫu nhà cấp 4 7x13m

Tham khảo: Nhà cấp 4 2 phòng ngủ
Mẫu nhà cấp 4 được thiết kế theo phong cách hiện đại, các đường nét vuông vắn, khỏe khoắn nổi bật. Với sự kết hợp hài hòa giữa gam màu trắng trang nhã với ngói thái sang trọng và mái thái truyền thống đã tạo nên một mẫu nhà cấp 4 mái thái độc đáo, hài hòa về màu sắc và cân đối về bố cục.
Toàn bộ hệ thống cửa đi và cửa sổ đều được làm bằng kính cường lực cao cấp vừa mang đến sự an toàn cho các thành viên vừa tạo nên sự hiện đại cho ngôi nhà. Các cột trụ hai bên mặt tiền được thiết kế chắc chắn tạo nên sự khỏe khoắn và bề thế cho mẫu nhà cấp 4 đẹp. Không chỉ vậy, do đặc thù của khu vực nên chúng tôi thiết kế đèn chiếu sáng hành lang để gia chủ dễ dàng đi lại vào buổi tối.

Mái thái truyền thống đã rất quen thuộc với người dân nước ta, mẫu nhà này cũng không ngoại lệ. Các kiến trúc sư tại Nhà Đẹp đã khéo léo vận dụng những nét tinh tế của quá khứ với nét hiện đại ngày nay để tạo nên sự khác biệt nổi bật cho nhà mái thái nói riêng và ngôi nhà nói chung. Các đường nét mềm mại nhưng không gò bó, thoải mái với các hình khối hứa hẹn chiếm ưu thế toàn diện.

Mặt tiền ngôi nhà thiết kế những thanh lam gỗ có tác dụng đón gió giúp không gian bên trong thông thoáng hơn, ngoài ra nó còn là điểm nhấn trang trí cho ngôi nhà. Có thể nói, toàn bộ thiết kế là sự kết hợp hài hòa giữa màu sắc và kiến trúc ấn tượng.
Tiện ích của mẫu nhà cấp 4 7x13m

Với mỗi mẫu, chúng tôi thiết kế những công năng khác nhau phù hợp với từng mục đích sử dụng của gia chủ. Ở mẫu nhà này chúng tôi thiết kế phòng khách rộng, phòng thờ được đặt phía trước tiền sảnh. 2 phòng ngủ nằm ở góc liền kề của nhà, phòng ăn và bếp nằm trước sảnh sau rất tiện sử dụng vào nhiều mục đích, 1 phòng vệ sinh chung cuối nhà.
Mẫu nhà cấp 4 7x13m Mái Thái hiện đại do chúng tôi thiết kế và anh Thi đã hài lòng ngay khi gửi bản vẽ đầu tiên. Với hàng nghìn công trình khác nhau trên cả nước, chúng tôi luôn nỗ lực không ngừng để đáp ứng những mong muốn của gia chủ. Nếu có nhu cầu thiết kế xây nhà trọn gói, hãy liên hệ ngay với Nhà đẹp, chắc chắn bạn sẽ không thất vọng.
- Nhà cấp 4 mái thái 8x9m tiện nghi ở Đồng Nai NDNC494
- Mẫu nhà phố 2 tầng 5x13m hiện đại tại Hạ Long NDNP2T8