Mẫu nhà cấp 4 8x13m gác lửng tại Chương Mỹ NDNC4106
Mẫu thiết kế nhà cấp 4 có gác lửng luôn nhận được sự quan tâm đặc biệt của nhiều gia đình khi công năng sử dụng hợp lý lại có thể tiết kiệm được nhiều chi phí. Mẫu nhà cấp 4 8x13m Vẻ đẹp mà công ty Nhà Đẹp thiết kế cho gia chủ ở Chương Mỹ hoàn toàn đáp ứng được những nhu cầu trên, không những thế còn tạo nên một không gian sống vô cùng thoáng đãng.
Sở hữu diện tích nhà rộng nên gia chủ của chúng tôi đang hướng đến một ngôi nhà đầy đủ tiện nghi với 3 phòng ngủ. Sau khi nghiên cứu nhiều mẫu nhà cấp 4 đẹp khác nhau, anh mong muốn có một thiết kế nhà thông thoáng nên khi làm việc với chúng tôi, anh đã yêu cầu ngôi nhà phải cao ráo và đảm bảo các yếu tố về thông gió, tận dụng ánh sáng tự nhiên cho mình.
Thông tin mẫu nhà cấp 4 8x13m
- Chủ đầu tư: Anh Tuấn
- Địa điểm xây dựng: Chương Mỹ
- Diện tích nhà: 8,6mx 12,8m
- Diện tích sàn 1: 92,5m
- Diện tích tầng lửng: 15,7m
- Diện tích tiền sảnh: 7m
- Tổng diện tích: 115m2
- Kinh phí dự kiến: 580 triệu đồng
Chi tiết mẫu nhà cấp 4 8x13m
Nhìn từ phía trước mẫu nhà cấp 4 8 × 13 Điều này cũng rất giống nhà 2 tầng nhưng thực chất là nhà cấp 4 gác lửng, tầng lửng chỉ bố trí thêm 1 phòng ngủ, không gian còn lại là mặt bằng để ngôi nhà được thoáng và cao theo yêu cầu. của chủ nhà.

Tham khảo: Nhà cấp 4 3 phòng ngủ
Hầu hết các mẫu nhà cấp 4 nông thôn ngày nay đều rất chuộng kiểu mái thái, tuy nhiên gia chủ của chúng tôi lại đặc biệt không thích kiểu kiến trúc mái thái truyền thống mà muốn thiết kế theo phong cách hiện đại. Chúng tôi lên ý tưởng kết hợp giữa mái bằng và mái chéo để tạo điểm nhấn cho ngôi nhà, ưu điểm của mái bằng là tiết kiệm tối đa chi phí mà vẫn tạo được nét kiến trúc độc đáo riêng. Ngoài ra, kết cấu bền vững, có khả năng chống cháy cao, rất phù hợp với khí hậu Việt Nam.

Như tôi đã nói, rất dễ nhầm lẫn nếu bạn nhìn vào nó mẫu nhà cấp 4 8x13m Đây là một ngôi nhà 2 tầng, việc sử dụng phong cách thiết kế hiện đại với những đường nét vuông vắn, góc cạnh khiến mọi người dễ nhầm hai mẫu kiến trúc này với nhau. Tổng thể thiết kế là một khối sắc nét tạo nên sự bề thế và vững chãi cho ngôi nhà. Mặt tiền khá đơn giản nhưng không mất đi sự tinh tế cần có.

Nói đến thiết kế hiện đại thì không thể thiếu gam màu trắng trung tính kết hợp với đá ốp tường tối màu tạo nên vẻ đẹp của từng chi tiết, chúng bổ sung và làm nổi bật cho nhau. Hệ thống kính cường lực khung nhôm từ cửa chính, cửa sổ và lan can gác lửng mang đến sự thống nhất hài hòa trong tổng thể thiết kế ngoại thất.
Tiện ích nhà cấp 4 gác lửng |

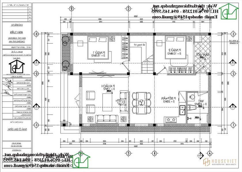
tầng 1: Các không gian bên trong được bố trí hợp lý, khoa học, tận dụng tối đa không gian cho sinh hoạt gia đình với phòng khách sang trọng tích hợp phòng thờ ngay lối đi từ sảnh chính vào. Phòng bếp kết hợp phòng ăn rất tiện nghi, cạnh phòng vệ sinh chung. Tầng 1 bố trí 2 phòng ngủ 1 lớn 1 nhỏ, phòng ngủ lớn đặt cạnh cửa sổ có không gian thoáng, phòng ngủ nhỏ đặt cuối nhà cạnh sân sau. Cầu thang được bố trí ở giữa 2 phòng ngủ lên tầng lửng.

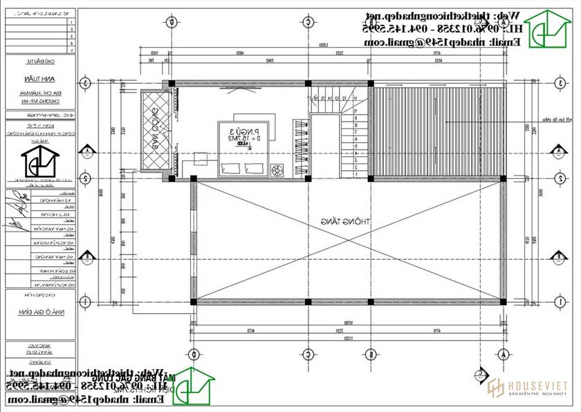
Gác lửng: Tầng lửng của mẫu nhà cấp 4 mái thái này không quá công năng chỉ có 1 phòng ngủ rộng rãi cạnh ban công view cực đẹp. Không gian còn lại chúng tôi phải làm thông tầng để mang lại diện tích cao và thoáng cho gia chủ.
Mẫu nhà cấp 4 8x13m Phong cách thiết kế hiện đại đầy đủ tiện nghi cho một gia đình từ 2-5 thành viên sinh sống. Công ty Nhà Đẹp luôn hướng đến những mẫu thiết kế nhà phù hợp với thói quen sinh hoạt của từng khách hàng đến với chúng tôi. Vui lòng liên hệ trực tiếp qua số điện thoại của công ty hoặc để lại bình luận dưới bài viết để nhận được sự tư vấn và hỗ trợ nhanh nhất từ Công ty Kiến Trúc Nhà Đẹp.
Hình ảnh thực tế công trình nhà cấp 4 gác lửng

Xem chi tiết: https://thietkethicongnhadep.net/mau-nha-dep/nha-cap-4-mai-bang/
Đây là hình ảnh thi công thực tế của mẫu nhà cấp 4 đẹp hiện đại này, hiện tại công trình đang trong quá trình hoàn thiện. Do thợ ở quê xây nên mất nhiều thời gian, thời gian thi công công trình kéo dài hàng năm khiến gia chủ khá vất vả chờ đợi.

Đây là hình ảnh mà gia chủ đã chụp và chia sẻ với chúng tôi khi công trình hoàn thành. Rất tiếc là chúng tôi chưa có thời gian chụp ảnh thực tế để chia sẻ với các bạn và chia sẻ thêm với các bạn những hình ảnh thực tế của công trình này.

Đây là nội thất phòng ngủ bạn có thể tham khảo. Chất liệu được sử dụng cho phòng ngủ là MDF ép melamine kết hợp MDF xanh chống ẩm.

Đây là vị trí khi bạn đứng ngoài cửa nhìn vào sẽ thấy bên tay phải là 2 phòng ngủ, giếng trời ở phòng khách tạo không gian rất thoáng. Đây cũng là một cách khá hay mà nhiều người ưa chuộng phong cách này.

Trên đây là những hình ảnh thực tế của mẫu nhà cấp 4 gác lửng đã được Nhà Đẹp thiết kế. Nếu có cơ hội chúng tôi sẽ tiếp tục chia sẻ đến các bạn nhiều hình ảnh hơn nữa về mẫu nhà cấp 4 mái thái này. Cảm ơn bạn đã theo dõi sản phẩm của chúng tôi. Các bạn có thể tham khảo thêm mẫu nhà cấp 4 có gác lửng cũng tương tự như mẫu nhà cấp 4 mái thái này tại: Mẫu nhà cấp 4 mái xéo ở Nam Định hoặc mẫu nhà:
- Mẫu nhà cấp 4 7x14m mái thái đơn giản tại Long An
- Ngắm nhìn mẫu nhà cấp 4 có gác lửng 5x24m đẹp tại Hà Giang
- Mẫu nhà cấp 4 9x15m có 3 phòng ngủ tại Bắc Giang
- 9 mẫu nhà cấp 4 gác lửng - xu hướng mới năm nay
- Mẫu thiết kế nhà cấp 4 kiểu Nhật đơn giản, tiện nghi NDNC4112
- Penthouse nghĩa là gì? Những lưu ý khi thiết kế và xây dựng căn hộ áp mái