Mẫu nhà cấp 4 8x15m mái bằng đẹp tại Hưng Yên NDNC4100
Nhà mái bằng luôn được yêu thích bởi những tiện ích mà nó mang lại cũng như tiết kiệm chi phí xây dựng cho gia chủ. Công ty Nhà Đẹp đã thiết kế và thi công rất nhiều mẫu nhà cấp 4 mái bằng trên toàn Miền Bắc. Hôm nay chúng tôi xin giới thiệu đến các bạn một mẫu nhà cấp 4 8x15m mái bằng tại Hưng Yên, đảm bảo yếu tố tiện nghi và kiến trúc ấn tượng.
Chủ nhân hiện đang làm việc ngoài đảo Cô Tô nên làm việc với chúng tôi hoàn toàn thông qua mạng xã hội và các kênh liên lạc khác. Anh muốn thiết kế và xây một ngôi nhà cấp 4 đẹp ở quê ở Hưng Yên để bố mẹ anh ở, vợ chồng gia chủ thỉnh thoảng về quê thăm bố mẹ và cũng có nơi ở. Là một người theo xu hướng hiện đại nên anh cũng đã yêu cầu chúng tôi thiết kế ngôi nhà theo phong cách hiện đại, đây cũng là thế mạnh của công ty Nhà Đẹp nên khi bàn giao hồ sơ thì gia chủ rất ưng ý mà không cần chỉnh sửa gì nữa, chúng tôi nhé. hãy xem nhà mẫu này!
Thông tin mẫu nhà cấp 4 8x15m
- Chủ đầu tư: Anh Kiên
- Địa điểm xây dựng: Hưng Yên
- Diện tích nhà: 8,4mx 14,9m = 91m2
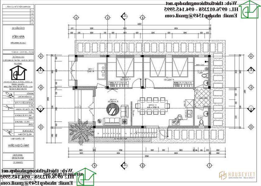
- Diện tích tiền sảnh: 12m2
- Tổng diện tích: 91m2 + 12m2 = 103m2
- Chi phí ước tính: 103 × 5.000.000 = 515.000.000
Chi tiết mẫu nhà cấp 4 8x15m

Mẫu nhà cấp 4 diện tích 8 × 15 Thiết kế của anh Kiên theo mẫu nhà cấp 4 mái bằng hiện đại. Mặt tiền tuy đơn giản nhưng vẫn tạo được ấn tượng mạnh cho người nhìn bởi những hình khối vuông vắn, khỏe khoắn. Dễ dàng nhận thấy mặt tiền được chia làm hai phần độc đáo với những vách ngăn bằng gạch trang trí sang trọng. Phần tiếp theo được thiết kế một phòng riêng có lối đi bên hông vô cùng tiện lợi. Hệ thống đèn ban công được bố trí ở hành lang chính và hành lang xung quanh để phục vụ gia chủ vào buổi tối.

Toàn bộ hệ thống cửa được làm bằng kính cường lực khung nhôm đảm bảo an toàn cho người sử dụng, đây cũng là vật liệu rất được ưa chuộng hiện nay bởi kính còn có tác dụng đưa ánh sáng tự nhiên vào nhà. giúp ngôi nhà nhỏ xinh luôn tràn đầy năng lượng. Màu trắng chủ đạo kết hợp với màu xám tạo nên sự tương phản màu sắc nổi bật giúp kiến trúc ngoại thất bắt mắt hơn.

Tham khảo: nhà cấp 4 2 phòng ngủ
Bạn có thể thấy bên trái nhà có cầu thang đi lên mái, đây là yêu cầu của gia chủ vì muốn trồng hoa trên đó, đây vừa là sở thích của gia chủ vừa là sở thích của bố mẹ. Sở thích này thể hiện ở những bồn hoa xung quanh hành lang nhà, chúng tôi thiết kế rất nhiều bồn hoa cũng như cắm hoa để treo, điều này rất phù hợp với không gian sống của những ngôi nhà cấp 4 ở nông thôn, là một sự kết hợp vui nhộn. hài hòa giữa thiên nhiên và môi trường sống.
Tiện ích

Do không thường xuyên ở nhà nên anh Kiên yêu cầu bố trí công năng sử dụng gồm 2 phòng ngủ, trong đó có 1 phòng ngủ 2 giường lớn cho bố mẹ, do 2 chú đã lớn tuổi nên thường xuyên thức đêm nên không được. để ảnh hưởng đến sức khỏe của gia đình. Người còn lại nên bố trí phòng ngủ 2 giường.
Phòng khách sang trọng được bố trí ngay trước sảnh chính. Phòng bếp và phòng khách được ngăn cách bằng vách ngăn gỗ lịch sự. Phòng bếp kết hợp phòng khách được gia chủ đặc biệt yêu cầu rộng với bộ bàn ghế đủ cho hơn 10 người sử dụng. Phòng thờ được đặt cạnh phòng ngủ 2 có lối đi ra ngoài rất thuận tiện. 2 phòng vệ sinh chung được bố trí ở sân sau, đây là yêu cầu của gia chủ, mặc dù chúng tôi đã tư vấn thiết kế nhà vệ sinh trong nhà và khép kín 1 phòng ngủ nhưng anh không chịu nên đành thiết kế theo yêu cầu. của chủ sở hữu. mong muốn của chủ sở hữu.
Mẫu nhà cấp 4 8x15m Điều này được gia chủ rất hài lòng, bằng chứng là sau khi nhận bản vẽ mặt bằng và 3D, anh không yêu cầu chỉnh sửa gì thêm. Nếu bạn có nhu cầu thiết kế và thi công trọn gói các mẫu nhà đẹp như nhà phố đẹp, biệt thự, nhà cấp 4 đẹp… thì hãy liên hệ ngay với Nhà đẹp để được tư vấn và hỗ trợ nhanh nhất.
- Mẫu nhà cấp 4 6x13m ấn tượng nhất 2019 NDNC4101
- Mẫu nhà cấp 4 dưới 400 triệu không thể bỏ qua
- https://thietkethicongnhadep.net/mau-nha-dep/nha-cap-4-3-phong-ngu/