Mẫu nhà cấp 4 9x13m có gác lửng tại Hải Phòng NDNC4102
Mẫu nhà cấp 4 gác lửng luôn là sự lựa chọn lý tưởng cho những gia đình yêu thích kiến trúc nhà cấp 4 nhưng muốn sử dụng nhiều công năng khác nhau. Hôm nay Nhà Đẹp xin giới thiệu một mẫu nhà cấp 4 9x13m Có gác lửng tiện nghi cho gia đình chú Sơn ở Hải Phòng. Với cách bố trí công năng hợp lý và thiết kế ngoại thất ấn tượng, sẽ thật đáng tiếc nếu bạn bỏ qua mẫu thiết kế nhà này.
Mẫu nhà đẹp được thiết kế trên mảnh đất có quần thể với nhà thờ tổ, đây là mảnh đất rất rộng, một phần xây nhà thờ, phần còn lại để gia chủ ở vì mảnh đất sở hữu 2 mặt tiền. , nhà thờ và nhà được thiết kế 2 cổng riêng biệt phục vụ các nhu cầu khác nhau của gia đình. Khác với những mẫu nhà cấp 4 thông thường, mẫu nhà cấp 4 này được thiết kế độc đáo theo phong cách hiện đại, chúng ta cùng tìm hiểu nhé!
Thông tin mẫu nhà cấp 4 9x13m
- Chủ đầu tư: Chú Sơn
- Địa điểm xây dựng: Hải Phòng
- Diện tích nhà: 9m x 13,4m
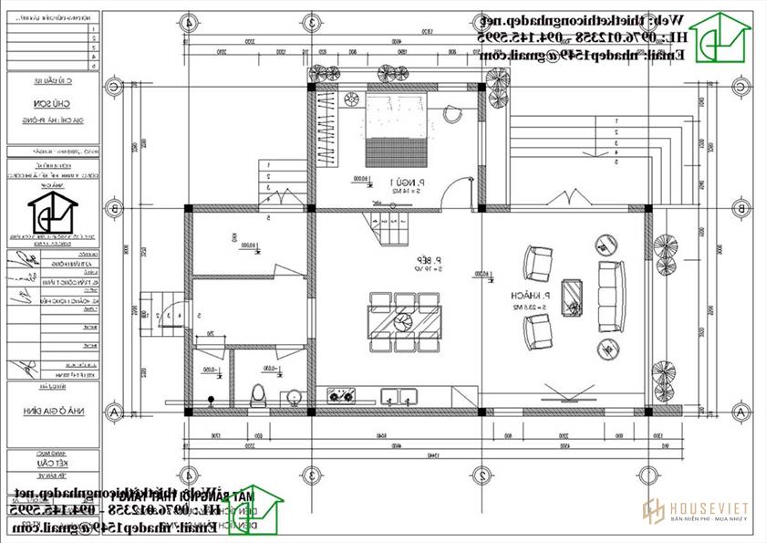
- DTXD: 88m2
- Diện tích sảnh: 7m2
- Tổng diện tích: 95m2
- Kinh phí dự kiến: 480 triệu đồng
Chi tiết mẫu nhà cấp 4 9x13m

Mặt tiền mẫu nhà cấp 4 9x13m Được thiết kế ấn tượng với phần đường đua độc đáo. Do thiết kế có gác lửng nên phần nhô ra có chiều cao xây dựng tương đương với nhà 2 tầng mang đến sự bề thế cho mẫu nhà này. Những đường nét góc cạnh hiện đại và mái chéo ấn tượng tôn lên nét sắc sảo cho mặt tiền, tạo nên tổng thể đẹp mắt.

Mặt tiền sảnh chính của chúng tôi được ốp bằng đá hoa cương sang trọng, có độ cứng và độ bền cao, rất phù hợp với thời tiết khí hậu Việt Nam. Mái thái chéo được lợp trên nền xi măng bên dưới nhằm tiết kiệm chi phí làm mái mà vẫn giữ được vẻ đẹp vốn có. Toàn bộ hệ thống cửa của mẫu biệt thự đồng quê này được sử dụng kính cường lực khung nhôm cao cấp vừa mang lại hiệu quả thẩm mỹ vừa giúp ánh sáng tự nhiên dễ dàng tiếp xúc với không gian bên trong và hạn chế. hạn chế tối đa ánh sáng của đèn điện.

Xem thêm: Mẫu nhà cấp 4 3 phòng ngủ
Tông màu trắng chủ đạo kết hợp với tông đen của đá ốp tường và các họa tiết trang trí tối màu tạo nên sự tương phản mạnh mẽ. Sự kết hợp màu sắc này không hề gây khó chịu cho người nhìn mà khi đứng cạnh nhau sẽ làm nổi bật nhau và tôn lên vẻ đẹp của nhau. Để hoàn thiện mẫu nhà này, chúng tôi đã thiết kế sân vườn xung quanh nhà, mang đến không gian xanh mát cho không gian sống của gia đình.

Tiện ích

tầng 1: Gia chủ mong muốn một không gian sống với các phòng rộng rãi nên chúng tôi đã bố trí tầng 1 gồm phòng khách sang trọng, phòng bếp kết hợp phòng ăn tiện nghi với lối đi lên tầng 2, bên cạnh là phòng ngủ rộng rãi có cửa sổ lớn. Ngoài ra, chúng tôi bố trí thêm một kho chứa đồ và một phòng vệ sinh riêng cạnh cửa hông.

Gác lửngTầng lửng gồm 2 phòng trong đó có 1 phòng ngủ và 1 phòng thờ rất rộng. Vì gia chủ rất coi trọng việc thờ cúng nên nội thất phòng thờ rất được chú trọng.
Mẫu nhà cấp 4 9x13m Được thiết kế dựa trên nhu cầu và mong muốn của gia chủ, chúng tôi luôn hướng đến những mẫu nhà kết hợp giữa kiến trúc ngoại thất ấn tượng và kiến trúc nội thất tiện nghi nhất. Nếu bạn có nhu cầu thiết kế nhà đẹp, tiện nghi đừng quên liên hệ trực tiếp với Nhà đẹp qua số điện thoại của Nhà Đẹp hoặc để lại bình luận để được hỗ trợ nhanh nhất.
- Mẫu nhà cấp 4 6x13m ấn tượng nhất năm
- Mẫu nhà cấp 4 7x12m mái thái đẹp tại Hưng Yên
- Mẫu nhà cấp 4 mái thái 90m2 tại Hải Phòng
- Mẫu nhà cấp 4 9x15m có 3 phòng ngủ ở Bắc Giang NDNC4103