Mẫu nhà cấp 4 9x18m có 4 phòng ngủ tại Hải Phòng NDNC4162
Xin chào các bạn, nếu nói về mẫu nhà cấp 4 mái thái hay nhà cấp 4 mái thái thì Nhà Đẹp đã thiết kế rất nhiều. Nhưng những mẫu nhà cấp 4 mái bằng thì hạn chế hơn. Làm nhà cấp 4 mái bằng đẹp rất khó như chúng tôi đã phân tích rất nhiều cho các bạn. Đối với mẫu nhà cấp 4 mái thái để làm đẹp thì khá dễ dàng nhưng nhà mái bằng thì khó thực hiện hơn. Ngoài ra, các mẫu nhà cấp 4 mái bằng có chi phí xây dựng tiết kiệm hơn so với các mẫu nhà mái thái. Vì vậy nếu bạn không có nhiều kinh phí để xây nhà mái thái thì chúng ta có thể xây mái bằng như mẫu nhà 9x18m này. Không chỉ làm được mái bằng mà để tiết kiệm thêm một khoản chi phí, bạn còn có thể lợp mái tôn mà không ảnh hưởng đến thẩm mỹ. Điều kiện tiên quyết là bên trong chúng ta cần đóng trần thạch cao vì nếu không có trần thạch cao sẽ nhìn thấy xà gồ thép mái.
Công trình này được nhà đẹp thiết kế cho gia chủ tại Hải Phòng, sau một vài phương án thiết kế chúng tôi đã đưa ra mẫu nhà cấp 4 9x18m được thiết kế theo kiểu mái bằng hiện đại. Với phong cách thiết kế đơn giản như mẫu nhà cấp 4 mái bằng này không biết các bạn có thích không. Tuy nhiên hiện nay hầu như ai cũng thiết kế theo phong cách hiện đại không giống như những mẫu nhà ở nông thôn. Phong cách hiện đại và tân cổ điển kết hợp tất cả. Tuy nhiên, chúng không cùng một phong cách, chúng đều mang tính ngẫu hứng. Bạn có thể thấy nếu nhìn những mẫu nhà cấp 4 ở nông thôn hiện đại thì không phải là tân cổ điển mà là không. Vì phong cách tân cổ điển nên các đường gờ phào chỉ phải đủ rộng mới đẹp, còn những ngôi nhà ở quê thường thêm thắt một vài chi tiết không cần thiết. Đó là lý do tại sao chúng tôi nói rằng phong cách không hiện đại cũng không phải tân cổ điển. Nói chung là chẳng giống ai đúng không các bạn.
Xây nhà cấp 4 9x18m mái bằng hết bao nhiêu tiền?
Như tôi đã nói ở trên, giá xây nhà mái bằng rẻ hơn nhà mái thái, đơn giá rẻ hơn nhà mái thái khoảng 20 - 30%. Đây là một phần kinh nghiệm mà chúng tôi đã tích lũy trong nhiều năm. Giả sử bạn định xây nhà cấp 4 100m2 mái thái với giá hoàn thiện khoảng 800 triệu thì nhà mái bằng chỉ hoàn thiện khoảng 640 triệu.
- Chủ đầu tư dự án: Anh Trung
- Địa điểm xây dựng: Hải Phòng
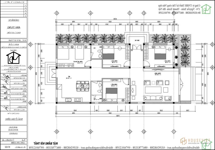
- DTXD: 150m2
- Giá xây dựng dự kiến: 150 × 5.000.000 = 750 triệu đồng
Để hoàn thiện ngôi nhà này, bạn cần chuẩn bị 750 triệu với gói vật tư tiết kiệm. Các vật tư không nên quá đắt như sơn thì dùng sơn Maxilite, cửa nhôm kính, gạch lát nền và vệ sinh khoảng 150.000 / 1m2.
Mẫu nhà cấp 4 9x18m có 4 phòng ngủ tại Hải Phòng

Đây là mặt tiền chính của mẫu thiết kế nhà cấp 4 mái thái này. Tất cả những vật liệu mới nhất, hiện đại nhất hiện nay trên thị trường đều được chúng tôi áp dụng và ứng dụng trong ngôi nhà này. Cũng giống như lam nhôm che nắng, gạch inax Nhật Bản giả gỗ được ốp vào hai bên tường và trên trần nhà.

Đây là phối cảnh tổng thể của ngôi nhà, từ đây bạn sẽ thấy phía trước được xây cao hơn để tạo hình, tạo mặt đứng cho ngôi nhà, bên trong sẽ được làm đơn giản hơn. Bên tay trái của bạn sẽ là sân vườn trồng cây và đi lại cho gia chủ.

Xem thêm: Nhà cấp 4 4 phòng ngủ
Bên này xây sát đất vẫn mở được cửa sổ, ở quê mở cửa lấy sáng cũng không ảnh hưởng nhiều. Vì mẫu nhà cấp 4 9x18m giáp nhà hàng xóm nên mặt tiền bên này sẽ không được đầu tư nhiều, chỉ là thiết kế trơn đơn giản không được chú trọng nhiều.

Đây có lẽ là góc nhìn đẹp nhất của ngôi nhà, bạn sẽ thấy đây sẽ là mặt chính, một bên là sân trước, một bên là vườn phụ.

Công năng của mẫu nhà cấp 4 9x18m thiết kế 4 phòng ngủ, Nhà đẹp xin mô tả lại để các bạn tham khảo. Từ cửa chính đi vào sẽ là một phòng khách rất rộng rãi có thể đặt bàn thờ ở phòng khách, bên trái là phòng ngủ, ngay phía sau cũng là phòng ngủ. Tiếp đến sẽ là 2 phòng ngủ cuối nhà có 1 phòng vệ sinh chung. Tiếp đến sẽ là khu bếp và nhà vệ sinh chung cho tất cả các thành viên trong gia đình.
Trên đây là những giới thiệu của Nhà Đẹp về mẫu nhà cấp 4 mái bằng này. Nếu yêu thích phong cách này, bạn có thể liên hệ với Nhà Đẹp để được tư vấn kỹ hơn.
- Nhà cấp 4 mái thái 4 phòng ngủ 8x14m ở Sơn La NDNC4169
- https://thietkethicongnhadep.net/mau-nha-dep/nha-cap-4-mai-bang/
- 20 mẫu thiết kế nhà cấp 4 đẹp năm 2021