Mẫu nhà cấp 4 có ba phòng ngủ phong cách tối giản độc đáo tại Quảng Ninh NDNC4138
Một công trình kiến trúc có giá trị là sự kết hợp giữa ngoại thất phù hợp với môi trường sống của công trình kiến trúc đó với nội thất đầy đủ tiện nghi phục vụ thói quen sinh hoạt hàng ngày của gia chủ. Mẫu thiết kế nhà cấp 4 3 phòng ngủ được kiến trúc sư nhà đẹp thiết kế đáp ứng đúng và đủ các điều kiện của một công trình nhà ở với mọi giá trị của nó.
Mẫu thiết kế nhà cấp 4 3 phòng ngủ được kiến trúc sư sáng tạo từ kiến trúc nhà cấp 4 mái thái truyền thống xưa, hạ thấp phần mái xuống một chút, giảm thiểu các chi tiết trang trí, tạo sự cách tân không gian bằng cách cách tân thiết kế các cửa, cửa sổ,… Vậy như thế nào là một ngôi nhà hiện đại được xây dựng theo kiến trúc hiện đại, không gian mở rộng ra sao? Hãy cùng chúng tôi khám phá ngôi nhà mà các KTS Nhà Đẹp đã thực hiện qua bài viết dưới đây.
Thông tin mẫu nhà cấp 4 3 phòng ngủ
- Chủ đầu tư: Anh Minh
- Địa điểm xây dựng: Quảng Ninh
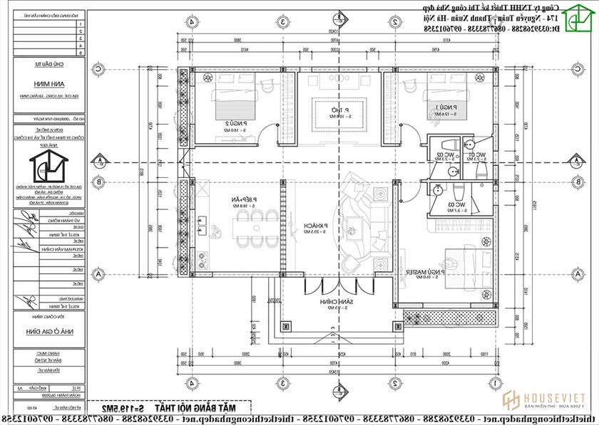
- Diện tích nhà và sảnh: 119,5m2
- Diện tích đất xây dựng: 9x13m
- Tổng kinh phí xây dựng dự kiến: 750 triệu đồng

Giới thiệu của kiến trúc sư nhà đẹp về mẫu nhà cấp 4
Phối cảnh 3D mẫu nhà cấp 4 3 phòng ngủ hiện đại
Kiến trúc của ngôi nhà là sự kết hợp hài hòa giữa các yếu tố tự nhiên và xã hội của vùng đất Quảng Ninh. Khi bắt tay vào thiết kế, kiến trúc sư của Nhà Đẹp đã dày công tính toán, bố trí sao cho ngoại thất hiện đại, đơn giản nhưng không nhàm chán.

Thiết kế nhà ở là việc áp dụng các nguyên tắc cơ bản của thiết kế kiến trúc, đồng thời kết hợp với mong muốn của khách hàng. Mẫu thiết kế nhà cấp 4 3 phòng ngủ là mẫu nhà dành cho những gia chủ yêu thích sự tối giản, không thích những chi tiết rườm rà, cầu kỳ.
Hai bên cửa chính sử dụng thanh lam gỗ tạo màu sắc nhã nhặn cho hình ảnh mặt tiền. “Màu sơn được sử dụng ở đây là màu trắng, được tạo điểm nhấn bằng màu sơn xanh đen để làm nổi bật các khối chi tiết tối giản từ ván chân tường, cột, trụ. Tối giản nhưng không buồn tẻ mà nổi bật mà không phá vỡ tổng quan về sự tối giản là điều tôi hướng đến ”.

Tham khảo: Biệt thự cổ điển
Hệ thống cửa được thiết kế đồng bộ cửa kính cường lực khung nhôm mở rộng tầm nhìn từ trong ra ngoài ngôi nhà. Chắc hẳn bạn sẽ lo lắng về sự riêng tư của gia đình mình không được đảm bảo, tuy nhiên, bên trong mẫu nhà cấp 4 3 phòng ngủ được chúng tôi bố trí rèm cửa dễ dàng che phủ tùy theo nhu cầu sử dụng của gia đình. chủ nhân.

Phần mái Nhật được thiết kế dựa trên kiến trúc cơ bản của mẫu nhà cấp 4 mái thái nhưng được rút ngắn lại một chút giúp ngôi nhà trông cao và thoáng hơn. Hệ thống màu sắc được sử dụng từ mái đến sơn nhà, gạch lát sân đều có tông màu gần gũi, tạo nên một tổng thể hài hòa, thống nhất.
Tạo điểm nhấn cho mẫu nhà cấp 4 3 phòng ngủ bằng những chậu cây xanh xung quanh tường ngoài, ngay cạnh cửa kính kết nối không gian trong nhà với thiên nhiên bên ngoài, mang ngôi nhà hay những thành phần chính của thành phố. các thành viên trong gia đình ra ngoài gần gũi với thiên nhiên.
Tiện ích

Có thể nói, mẫu nhà cấp 4 3 phòng ngủ được tận dụng tối đa không gian cho mục đích sinh hoạt một cách hợp lý nhất. Phòng thờ đáp ứng được tinh thần tôn nghiêm của gia chủ được nối liền với phòng khách có thể thu gọn lại bằng vách ngăn CNC thẩm mỹ khi gia chủ bố trí một số nội thất. Từ không gian trung tâm, các công năng được triển khai sang trái và phải, bao gồm 1 phòng ăn, 1 phòng ngủ chính đầy đủ tiện nghi và 2 phòng ngủ đơn.
Sự hợp lý của không gian nội thất nằm ở việc bố trí nhà vệ sinh chung ngay cạnh phòng ngủ đơn là phòng của con nhỏ giúp bé sử dụng thuận tiện hơn; Phòng bếp kết hợp ăn uống hợp lý bởi diện tích bếp khá rộng rãi, từ bếp có cửa góc dẫn ra bên ngoài nên việc đi lại vô cùng thuận tiện trong mẫu thiết kế nhà cấp 4 3 phòng ngủ.
Mỗi ngày thiết kế ra những ngôi nhà mới, đẹp và được lòng khách hàng là niềm vui của các kiến trúc sư, kiến trúc sư, Nhà đẹp luôn cố gắng đưa những giá trị tốt nhất, những giá trị tinh túy nhất vào những thiết kế của mình, mang lại cho khách hàng. Bạn đọc có nhu cầu tư vấn, thiết kế, có thể liên hệ với chúng tôi qua phương thức liên hệ bên dưới để được tư vấn tận tình và nhanh chóng.
Tham khảo thêm các mẫu thiết kế nhà cấp 4 đẹp và hiện đại:
- Mẫu thiết kế nhà nhỏ đẹp 8x11m tại Phú Thọ
- Mẫu nhà cấp 4 3 phòng ngủ mái thái 10x11m
- Mẫu thiết kế nhà cấp 4 mái thái đẹp 130m2 3 phòng ngủ
- https://thietkethicongnhadep.net/mau-nha-dep/biet-thu-2-tang/