Mẫu nhà cấp 4 có gác lửng 10x10m tại Hải Dương NDNC4174
Nếu nói về mẫu nhà cấp 4 có gác lửng 10x10m này thì có lẽ tôi cũng hơi ấn tượng. Vì ban đầu thiết kế mẫu thiết kế này nên tôi là người thực hiện đầu tiên, sau đó mới lên ý tưởng để các kiến trúc sư thực hiện phương án. Và cho đến nay, có khá nhiều mẫu thiết kế nhà khác được thiết kế và ra đời như, hoặc lấy ý tưởng và triển khai. Thực tế nhìn từ bên ngoài bạn sẽ thấy giống mẫu nhà 2 tầng hơn và nếu thích chúng ta cũng có thể làm thành 2 tầng. Và khi chuyển đổi thành nhà 2 tầng thì chi phí sẽ tăng cao hơn một chút so với nhà cấp 4 gác lửng. Ở Hải Dương, chúng tôi cũng có 2 người thiết kế kiểu nhà giống nhau như thế này. Vị khách đặc biệt này là một phụ nữ và cũng là vị khách thứ hai ở Hải Dương thiết kế ngôi nhà tương tự như mẫu nhà này.
Một mẫu thiết kế nhà cấp 4 có gác lửng tuyệt vời khác được thiết kế cho chủ đầu tư tại Hải Dương, ngôi nhà là sự thống nhất giữa ý tưởng thiết kế và công năng sử dụng tiện lợi của gia đình chủ đầu tư và các kiến trúc sư. kiến trúc sư. Một mẫu thiết kế nhà cấp 4 có gác lửng hiện đại nhưng thực sự sang trọng và chứa đựng nhiều ý nghĩa đối với chị Dương và gia đình. Chính vì vậy hôm nay chúng tôi xin giới thiệu đến quý vị và các bạn cùng tham khảo mẫu nhà cấp 4 có gác lửng 10x10m hiện đại qua bài viết dưới đây của công ty nhà đẹp chúng tôi nhé!
Thông tin xây dựng mẫu nhà cấp 4 có gác lửng 10x10m
Mời các bạn tham khảo và so sánh mẫu nhà cấp 4 gác lửng đẹp này với các mẫu nhà 2 tầng như chúng tôi đã giới thiệu ở trên thì không có sự khác biệt là bao. Mời các bạn tham khảo đơn giá xây nhà tại Hải Dương
- Địa điểm xây dựng: Hải Dương
- Chủ đầu tư: Chị Dương
- Kích thước nhà: 10x10m
- Diện tích sàn 1: 65m2
- Diện tích tầng lửng: 30m2
- Diện tích mái: 24m2
- Tổng diện tích xây dựng: 65 + 30 + 24 = 119m2
- Tổng giá trị xây nhà: 119 × 5.000.000 = 595.000.000 đồng
Phối cảnh 3D mẫu thiết kế nhà cấp 4 có gác lửng 10x10m

Kết cấu mái của mẫu nhà cấp 4 có gác lửng 10x10m này được sử dụng là mái chéo và mái bằng để đặt bồn nước và máy phát năng lượng mặt trời. Kết cấu mái chéo của mẫu nhà cấp 4 có gác lửng được đổ bê tông chắc chắn sau đó dán ngói thái. Điều này giúp tăng độ bền và sự vững chắc của ngôi nhà lên rất nhiều. Khác với những mẫu thiết kế nhà cấp 4 khác, mẫu nhà cấp 4 có gác lửng này có thiết kế với kiểu 2 mái giúp mang đến những ưu điểm tuyệt đối cho kiến trúc công trình. Mái chéo có chức năng thoát mưa rất nhanh, chống nóng hiệu quả. Mái bằng mang đến sự chắc chắn, bề thế và tiện dụng cho tổng thể ngôi nhà. Tóm lại, với kết cấu 2 kiểu mái thái như thế này, ngôi nhà toát lên vẻ hiện đại, sang trọng và đẳng cấp hơn so với những ngôi nhà cao tầng đồ sộ bên cạnh.

Tham khảo: Nhà cấp 4 3 phòng ngủ
Mẫu nhà cấp 4 có gác lửng 10x10m đẹp không chỉ nằm ở ngoại thất của ngôi nhà đó mà còn phải được quy hoạch sử dụng không gian một cách hợp lý? Diện tích đất mà gia đình chị Dương đang sở hữu cũng rất rộng rãi. Toàn bộ diện tích phía trước của mẫu nhà cấp 4 có gác lửng được tận dụng làm sân, làm vườn trồng cây xanh che mát mang lại vẻ đẹp hài hòa với thiên nhiên cho ngôi nhà cấp 4. Đây cũng là ưu điểm lớn mà Chỉ tại khu đất rộng mới có được, cùng không gian sân vườn rộng rãi, thoáng mát, đây thực sự là nơi an cư - nghỉ dưỡng tuyệt vời cho các thành viên trong gia đình chủ đầu tư.

Mẫu nhà cấp 4 có gác lửng 10x10m thể hiện những chi tiết kiến trúc vô cùng tinh tế với tông màu chủ đạo là màu sơn trắng kem kết hợp xám đen. Màu trắng là màu nổi bật nhất và dễ kết hợp với các màu khác.
Hệ thống cửa sổ, cửa chính, lan can được làm bằng chất liệu kính cao cấp phía trước ngôi nhà thể hiện sự tinh tế và tiện nghi cho toàn bộ công trình. Hệ thống chân tường được ốp toàn bộ bằng đá rối sẫm màu tạo nên một khối vững chắc và bền bỉ cho toàn bộ mẫu nhà cấp 4 có gác lửng. Hệ thống cửa kính và đá ốp chân tường có những lợi ích rất tốt cho vẻ đẹp ngoại thất của ngôi nhà như dễ dàng lau chùi, bảo vệ vẻ đẹp của ngôi nhà luôn bền vững theo năm tháng.
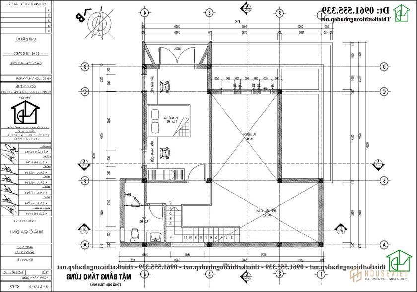
Mặt bằng công năng mẫu nhà cấp 4 có gác lửng 10x10m

Bước đến không gian mẫu nhà cấp 4 có gác lửng 10x10m đi qua cửa chính đầu tiên là không gian phòng khách rộng với bộ sofa cao cấp, tivi, .. Đi vào bên trong là khu vực bếp ăn thông thoáng và có cửa phụ để đi vào. ra ngoài để tạo sự thuận tiện cho quá trình nấu nướng và thưởng thức món ăn mà không cần qua phòng khách. Bên trái phòng khách là 2 phòng ngủ nối tiếp nhau, được bố trí và thiết kế theo nhu cầu và sở thích của từng thành viên. Cuối cùng là một phòng vệ sinh chung tiện nghi ở cuối nhà.

Từ cầu thang lên tầng 2 là không gian thư giãn của cả gia đình chủ đầu tư với 1 phòng ngủ rộng rãi với đầy đủ nội thất hiện đại. 1 phòng vệ sinh chung với trang thiết bị hiện đại phục vụ nhu cầu sinh hoạt của các thành viên trở nên riêng tư và dễ dàng.
Thiết kế nội thất mẫu nhà cấp 4 có gác lửng 10x10m
Chủ quán là một phụ nữ còn rất trẻ năm nay mới 25 tuổi nhưng đã được bố mẹ cho xây nhà ở quê. Nghĩ đến ngày mình 25 tuổi, mới ra trường được vài năm, kiếm đủ nuôi sống bản thân. Nhưng bây giờ thời thế thay đổi, tuổi trẻ năng động lắm cũng có tài sản riêng, xây những ngôi nhà nguy nga ở quê để đền đáp công ơn sinh thành dưỡng dục của cha mẹ. Rất may là công trình mẫu nhà cấp 4 có gác lửng 10x10m này được thiết kế cả bên trong và bên ngoài nên chúng tôi sẽ chia sẻ toàn bộ thông tin mà Nhà Đẹp có được cho các bạn tham khảo.
Thiết kế nội thất phòng khách và bếp ăn nhà cấp 4 gác lửng
Trước hết chúng ta cùng xem qua mẫu thiết kế nội thất phòng khách và bếp ăn của ngôi nhà này trước nhé. Vậy thì hãy tham khảo phòng ngủ sau đây. Chất liệu chính được sử dụng cho nội thất của toàn bộ ngôi nhà này là MDF chống ẩm phủ melamine của An Cường.






Thiết kế nội thất các phòng ngủ của mẫu nhà cấp 4 có gác lửng 10x10m
Và bây giờ mời các bạn cùng tham khảo những mẫu thiết kế nội thất phòng ngủ, có 2 phòng ngủ ở tầng 1 và 1 phòng ngủ ở tầng 2. Mời các bạn cùng xem và đánh giá.







Trên đây là thiết kế nội thất của toàn bộ mẫu nhà cấp 4 có gác lửng 10x10m. Với phong cách thiết kế nội ngoại thất trẻ trung rất phù hợp với gia chủ từ 20-40 tuổi. Với những người lớn tuổi, bạn có thể thấy phong cách nội thất này không phù hợp lắm.
- Nhà cấp 4 mái thái đẹp 12x10m ở Đông Hưng Thái Bình NDNC4175
- Nhà cấp 4 gác lửng 3 phòng ngủ 1 phòng thờ 9x11m ở Quảng Bình NDNC4181