Mẫu nhà cấp 4 đẹp 100m2 3 phòng ngủ ở nông thôn anh Toàn
Khi thiết kế nhà 100m2 3 phòng ngủ nằm ngang ở nông thôn kiểu cấp 4 mái thái. Kiến trúc 3 gian hiện đại ở quê mái lợp ngói đẹp anh Toàn. Nay NHÀ ĐẸP MỚI cập nhật lại năm 2021 để anh chị tham khảo xây nhà ở quê
- Bản vẽ nhà vườn đẹp 1 tầng diện tích 100m2 nông thôn anh Tâm
- Mẫu thiết kế nhà thái đẹp 1 tầng 100m2 kiêu sa tráng lệ
- Ghé thăm ngôi nhà biệt thự mini 100m2 sang chảnh đẹp chị Ngoan
Thông tin thiết kế nhà 100m2 3 phòng ngủ mái thái
Diện tích mặt sàn sử dụng nhà cấp 4 mái thái 100m2 lợp ngói . Đây sẽ là một thiết kế hoàn hảo cho các bạn ở quê yêu thích nhà vườn ba gian. Muốn có một thiết kế rẻ đẹp với chi phí thấp nhưng xây tường 20cm chắc chắn. Mô hình thiết kế nhà 100m2 3 phòng ngủ không thể chê trách vào đâu được. Bởi lẽ công năng rộng rãi đáp ứng được nhu cầu tối đa một gia đình 3 thế hệ. Hãy cùng chúng tôi tìm hiểu về thiết kế nhà diện tích 100m2 của anh Toàn đơn giản hiện đại 1 tầng này

Bản vẽ nhà cấp 4 diện tích 100m2 sử dụng khung gỗ kính cuờng lực 10 ly. Thiết kế diện mạo 3 gian truyền thống có 3 mái giật cấp cho ngoại thất bên ngoài. Mặt tiền sảnh chính đi vào ở gian trung tâm giữa nhà. Còn nếu anh chị có mảnh đất ngang 5m dài 20m hay sâu hơn. Cần xây nhà ống cấp 4 mái bằng rẻ hơn khoảng 450 triệu. Thì xem bản vẽ thiết kế nhà 100m2 5×20 của gia đình chị Diệp
Thông tin mẫu nhà cấp 4 đẹp 100m2 ở nông thôn
Mẫu thiết kế nhà diện tích 100m2 mà chúng tôi thực hiện cho anh Toàn, Không gian có 3 phòng ngủ theo phong cách nhà vườn châu âu. Vẻ đẹp bên ngoài mẫu nhà cấp 4 đẹp 100m2 ở nông thôn có nhiều cửa sổ. KTS đầu tư kỹ lưỡng và có phần sang trọng thiết kế cao ráo mái ngói. Nhìn bề ngoài và kết hợp với diện tích 100m2 xây dựng ở bản vẽ. Đây chính xác là một thiết kế biệt thự mini 100m2 nhỏ xinh xắn dễ thương dành cho gia đình 4 thành viên thoải mái sinh hoạt
- Mẫu nhà cấp 4 1 tầng 100m2 đẹp mái ngói phong cách Nhật Bản anh Công
- Xem bản vẽ nhà 2 tầng nông thôn 100m2 chi phí 1.2 tỷ chị Tú Bình Phước
Tối ưu cho nhà cấp 4 mái thái 100m2 3 phòng ngủ đơn giản
Khác với những phương án thiết kế nhà cấp 4 diện tích 100m2 mái bằng dấu mái. Hay bản vẽ nhà trệt 100m2 lợp tôn ở nông thôn giá rẻ khác. Bản vẽ thiết kế nhà vườn 100m2 anh Toàn sử dụng cách thức tối giản. Trang trí bên ngoài đơn giản, chọn lựa vật liệu hoàn thiện loại khá, không cầu kỳ trong đường nét kiến trúc. Có sự khác biệt so với nhà cấp 4 chân phương khác
Phong cách thiết kế nhà 1 tầng diện tích 100m2
Mẫu thiết kế nhà 1 tầng diện tích 100m2 mái ngói của anh Toàn xây hết 520 triệu. Đây là một mẫu nhà vườn cấp 4 trệt mái ngói chứ không phải mái tole. KTS tối ưu giảm chi phí giá thành xây dựng hết cỡ để không phát sinh. Phương án giảm diện tích để tiết kiệm tại chính, thu nhỏ diện tích còn 100m2. Nhưng vẫn có đủ 3 phòng ngủ 1 phòng thờ cho 4 – 5 thành viên hoàn chỉnh. Tùy theo tài chính mà nới rộng diện tích sử dụng như các mẫu nhà 1 tầng 100m2 mái thái 3 phòng ngủ trước điều chỉnh cho hợp lý
Tối ưu bản vẽ nhà cấp 4 diện tích 100m2 mái thái cho khớp với tài chính 500 triệu
Ê kíp các KTS vẫn đảm bảo sự tiện lợi di chuyển dễ dàng thuận tiện mở mặt bằng phía trong. Bản vẽ thiết kế nhà diện tích 100m2 tài chính 520 triệu mái ngói. Kiến trúc theo như phương án thiết kế ban đầu giảm diện tích.Vị trí tiền sảnh cũng được thiết kế vừa đủ rộng. Cách thức thiết kế phù hợp hơn với tiền sảnh nhà cấp 4 mái thái 100m2 ở nông thôn. Như giống như tiền sảnh nhà hình chữ L ngang 100m2 bên hông nhà thông thoáng.

Bản vẽ nhà cấp 4 diện tích 100m2 nằm ngang
Cũng giống như các mẫu biệt thự mini cấp 4 diện tích 100m2 mái thái trước. Mẫu nhà 1 tầng đẹp diện tích 100m2 có 3 phòng ngủ 1 phòng thờ. Bản thiết kế có mặt tường để loại bỏ đi một cột trụ giảm thiểu chi phí thi công. Sự sang trọng nhà đẹp diện tích 100m2 đến từ cách phối màu và vật liệu hoàn thiện ngoại thất.
Vật liệu cho mẫu thiết kế nhà cấp 4 diện tích 100m2
Vật liệu ốp lát bằng đá rối sử dụng hoàn thiện phần chân tường và gạch thẻ trang trí. Là bất kỳ thiết kế nhà đẹp nào cũng cần thiết để khác biệt. Cách thiết kế mái nhà ngói này vừa tăng vẻ đẹp. Đồng thời vừa đảm bảo độ bền cho vị trí chống ẩm cao và hay có nước mưa xâm nhập này. Nếu quý vị cần không gian rộng hơn và kinh phí xây dựng kiến trúc nhà 400 triệu. Xin mời xem thêm thiết kế nhà 100m2 có sân vườn anh Đạt & Nguyên 2020. Hiện đang xây tại đường dẫn này nhà ống 1 tầng 2 phòng ngủ 100m2. Tại chuyên mục nhà cấp 4 đẹp ngang 5m dài 20m có sân vườn

Ngoại thất mẫu thiết kế nhà diện tích 100m2 hướng Đông Nam
Màu trắng sơn tường của mẫu thiết kế nhà cấp 4 đẹp diện tích 100m2 3 phòng ngủ hoàn toàn khác biệt. Ngoại thất nhà 100m2 3 phòng ngủ mái thái sơn màu trắng đục có sự mịn màng độ hoàn thiện cực kỳ cao. Có thể so sánh nước sơn và độ mịn của mặt tường với làn da mịn màng của những em bé sơ sinh vậy.
Bản vẽ xây nhà cấp 4 mái thái 100m2 tỷ lệ hài hòa
Hình khối và cách thức bản vẽ nhà cấp 4 diện tích 100m2 cân đối tỉ lệ đồng đều. Phương án bản vẽ tiết kiệm đầu tư và hạn chế phát sinh. Bằng cách giảm kích thước các cửa sổ mẫu nhà đẹp cấp 4 nông thôn. Thay vì cửa vuông lớn mà các bạn thường thấy thì thiết kế phân tách thành các cụm cửa sổ đôi. Phương án xây nhà cấp 4 diện tích 100m2 lấy sáng tại mặt tiền chính. Còn ở giữa là một hình chữ nhật tương ứng như kích thước cửa sổ ốp bằng đá thẻ màu đồng.
Bản vẽ thiết kế nhà cấp 4 diện tích 100m2 3 phòng ngủ
Các hệ thống cửa sổ của bản vẽ thiết kế nhà diện tích 100m2 kiểu mái thái cấp 4 đẹp phía bên và phía sau thiết kế cánh đôi. Cửa sổ và cửa ra vào có chung cách thức thiết kế kết hợp khung khổ kích thước khá lớn nâu đỏ và ô kính phía trong. Còn lại thiết kế làm kính trắng xám màu hổ phách rất đẹp
Cửa khung gỗ kính cường lực cho nhà đẹp diện tích 100m2
Mẫu thiết kế nhà trệt diện tích 100m2 có hiệu ứng màu sắc rất tốt phù hợp không gian nhà vườn. Phía trong đảm bảo an toàn kết cấu kết hợp khung thép. Thiết kế nhà cấp 4 chữ L ngang lớn diện tích mái tăng lên, phương án phân chia mái thành nhiều phần hơn, các vị trí có độ cao khác nhau, để phù hợp từng phần thiết kế.

Hình ảnh ghép nhà cấp 4 mái thái 100m2 3 phòng ngủ
Hình ảnh bên ngoài biệt thự mini 1 tầng 100m2 3 phòng ngủ lợp ngói ở nông thôn có mái hiên đưa ra trước. Thiết kế mặt tiền nhà ngang chữ L góp phần trang trí và nhấn nhá đẹp. Kết cấu xây dựng nhà 100m2 3 phòng ngủ có toàn bộ mái hiên sơn màu nâu. Có khung tam giác bao bọc xung quanh mái hiên.
Bản vẽ nhà cấp 4 diện tích 100m2 cho chống nóng cho mái
Trên mái thái chính của mẫu nhà đẹp 100m2 thiết kế có thêm một mái nhỏ. Phương án bản vẽ thiết kế nhà cấp 4 diện tích 100m2 cũng được xoay hướng chính. Nhiệm vụ mục đích là trang trí kết hợp thông gió vào trong không gian mái, tránh nóng. Nếu không có những phương án thông gió. Không khí trong mái nhà 100m2 sẽ bị nung nóng vào các ngày hè. Hay nói cách khác là không trao đổi với bên ngoài. Cách thức thiết kế truyền nhiệt xuống phòng phía dưới tăng nhiệt độ của thiết kế nhà diện tích 100m2 lên rất cao.
Tối ưu sân vườn nhà cấp 4 mái thái diện tích 100m2 anh Toàn
Không gian sân vườn thơ mộng bao quanh bản vẽ thiết kế nhà 1 tầng 100m2 là sân rộng. Thiết kế ốp lát gạch đỏ Hạ Long, một loại gạch có độ bền cao chịu lực tốt, ma sát tốt. Phù hợp ốp ngoài trời mưa gió không bị trơn trượt, giá thành lại rẻ hơn rất nhiều.
Bản vẽ chi tiết thiết kế nhà 1 tầng diện tích 100m2 mái thái
Bản vẽ xây nhà 100m2 3 phòng ngủ 500 triệu không chỉ là phần ốp gạch dân dụng. Sân bao quanh còn là những thiết kế lối đi tham cỏ và bồn hoa nhỏ theo từng khu vực. Không gian và vị trí sắp xếp bản vẽ xây nhà trệt mái thái 100m2 thành một bố cục trọn vẹn hoàn thiện. Hàng rào bao quanh nhà dạng khung bê tông sơn giả gỗ. Theo hướng tách biệt thiết kế nhà cấp 4 nông thôn 100m2 cùng sân với vườn cách xây bao quanh.

Bản vẽ trục 1-5 nhà cấp 4 đẹp diện tích 100m2
Bản vẽ thiết kế nhà cấp 4 hiện đại diện tích 100m2 bằng vật liệu nhẹ thi công đơn giản và nhanh chóng, mẫu nhà cấp 4 mái thái 100m2 3 phòng ngủ có hệ mái lợp ngói thi công 2 lớp. Phía dưới là mái bằng bê tông cốt thép chắc chắn. Ở trên thiết kế sử dụng các kèo thép rất gọn nhẹ và lợp ngói đơn giản.
Nhà mái thái sẽ tốn kém hơn so với mái bằng lợp tôn kích thước 100m2
So với các bản vẽ thiết kế nhà 1 tầng 2 phòng ngủ 100m2 có vỉ kèo gỗ tốn kém hơn. Nhà cấp 4 mái thái đẹp 100m2 có khung thép chắc chắn và độ bền lâu. Chi tiết thi công mái ngói nhà cấp 4 gắn kết với nhau dễ dàng không chịu sự công vênh. Công nghệ hiện đại giúp thép cứng hơn nhưng mỏng và nhẹ hơn. Cũng như giá xây nhà cấp 4 đẹp diện tích 100m2 như trên tiết kiệm hơn. Phù hợp cho kinh tế trong điều kiện xây dựng hiện nay mà các bạn cần phải lựa chọn.
Bản vẽ thiết kế nhà diện tích 100m2 cho không gian
Công ty thiết kế xây dựng nhà đẹp mới chúng tôi gửi thêm bản vẽ hoàn chỉnh mặt bằng thiết kế nhà 100m2 ở mẫu nhà đẹp cấp 4 nông thôn để bà con tham khảo dưới. Sau khi đã bàn giao cho gia đình anh Toàn ở Bắc Ninh cho tin cậy và các bạn có thể nhận ra về kết cấu thiết kế kỹ thuật thi công.
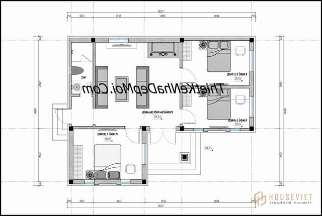
Mặt bằng nhà cấp 4 4 phòng ngủ thiết kế gói gọn 100m2 diện tích sàn
Mẫu nhà mái thái 1 tầng diện tích 100m2 ở quê đã xây xong hoàn chỉnh 500 triệu. Hồ sơ thiết kế có kích thước xây dựng chính xác 11.5x9m xấp xỉ diện tích sàn 100m2. Phương án thiết kế nhà đẹp 100m2 tạo ra một phòng lớn có diện tích 25m2 là không gian chính đặt vào công năng phòng khách và phòng thờ kết hợp, gồm thêm một phòng vệ sinh dùng chung tại góc bên tay phải.

Không gian thiết kế nhà 100m2 có 3 phòng ngủ
Còn lại là diện tích nhà 100m2 dành cho 3 phòng ngủ kích thước tương đối nhỏ. Phòng ngủ vị trí trước bên cạnh tiền sảnh là phòng lớn nhất 12m2. Bên cạnh phòng khách là 2 phòng ngủ còn lại có diện tích lần lượt 9m2 và 11m2. Các phòng ngủ trong nhà vườn cấp 4 100m2. Đều có thiết kế tương tự nhau và đều là phòng ngủ thường vì diện tích nhỏ.
Không gian nhà trệt mái thái 100m2 có các phòng khác như
Kiến trúc nhà 100m2 trệt cấp 4 mái ngói thiết kế theo hình dáng nhà hình chữ L nằm ngang. Vì thế mà kích thước thực sự được tạo ra cho gia đình anh Toàn. Có diện tích sử dụng trong khoảng trên 100m2. Kích thước diện tích 9m2 gộp vào làm sân và tiền sảnh.
Chính vì thế mà công năng bếp + bàn ăn đưa ra ngoài nấu nướng riêng. Bản vẽ mặt bằng thiết kế chính biệt thự mini 100m2. Thiết kế 3 phòng ngủ. Bố trí nằm rìa ngoài bao quanh mặt bằng. Nhưng kết nối chung với phòng khách để tạo sự gắn kết. Diện tích sử dụng phòng khách làm hành lang di chuyển cũng rất thuận lợi và hợp lý không hề bất lợi.
Bản vẽ nhà trệt mái thái diện tích 100m2 lợp ngói
Mẫu nhà trệt 100m2 đẹp có 3 phòng ngủ hợp với văn cảnh sinh hoạt ở vùng nông thôn. Do một số đặc thù riêng của gia đình. Nên anh Toàn mong muốn đưa phòng bếp + bàn ăn ra phía ngoài để thiết kế riêng theo dạng công trình phụ.
Phương án thiết kế nhà cấp 4 diện tích 100m2
Phương án thiết kế nhà cấp 4 diện tích 100m2 có phòng bếp. Sẽ được chia thành nhiều phần, như bàn ăn, bếp gara theo thiết kế hiện đại. Theo phong tục sinh hoạt tại địa phương thì thường thiết kế bếp củi hay bếp than tách riêng. Ở sau nhà mái ngói truyền thống. Kết hợp kho chứa đồ nhỏ không ảnh hưởng tới nhu cầu sinh hoạt bên trọng của gia đình.
Phương án thiết kế nhà cấp 4 diện tích 100m2 tiết kiệm tài chính
Đây cũng là một phương án thiết kế nhà cấp 4 diện tích 100m2 rất hợp lý và cần thiết. Vì diện tích nhỏ nếu đưa phòng bếp vào trong thì kích thước xây. Và tài chính xây rộng hơn tỷ lệ thuận với nhau. Ngoài ra rất dễ làm ảnh hưởng tới bầu không khí chung. Như mùi thức ăn, khói bụi tới từ thiết kế bếp than và bếp củi.

Giải pháp bản vẽ nhà cấp 4 diện tích 100m2 chỉ 500 triệu
Nhu cầu xây nhà cấp 4 3 phòng ngủ 1 phòng thờ kết hợp phòng khách có thể thấy phương án bố trí mặt bằng rất tốt và đẹp thoáng mát rộng rãi phải 120m2 đến 150m2 mới đủ. Cũng mặt bằng thiết kế nhà cấp 4 diện tích 100m2 chúng tôi có thể đưa ra các phương án khác nhau như có đủ phòng bếp + bàn ăn vào trong
Có thể đưa phòng bếp vào trong nhà diện tích phải rộng hơn 100m2
Nếu bạn chỉ cần xây nhà cấp 4 mái thái 100m2 giảm thiểu xuống 2 phòng ngủ 100M2. Hoặc thiết kế đầy đủ nhưng phòng bếp trong sẽ rất nhỏ gọn và tiện lợi. Việc băn khoăn lựa chọn một bản vẽ thiết kế nhà cấp 4 3 phòng ngủ hợp lý. Là điều thường thấy ở các chủ đầu tư năm 2022 tới vì dịch khó khăn. Kiểu nhà cấp 4 mái thái hiện nay, vì cùng mục đích sử dụng, cùng phong cách. Có cùng công năng, cùng giá thành có thể có nhiều phương án khác nhau mà hoàn toàn khác biệt cho các bạn lựa chọn.


Tùy cơ ứng biến khi xây nhà cấp 4 hiện nay
Từ việc thay đổi đi hình dáng, thêm bớt các phần trang trí. Hay giảm đi chất lượng vật liệu là đã tạo nên sự khác biệt rất lớn mà khó có thể so sánh. Nhân tiện thiết kế của gia đình anh Toàn chúng tôi cũng xin nói thêm cho: Câu hỏi xây nhà cấp 4 giá bao nhiêu tiền khoảng 500 triệu trở lên nếu mái lợp ngói


Hiện nay chi phí xây nhà cấp 4 đẹp thường tính theo m2 sàn xây dựng khoảng trên 4.2 triệu/m2. Nên phương án thiết kế nhà diện tích 100m2 nhỏ xinh. Kiến trúc lợp ngói gọn gàng mái ngói tối ưu diện tích sàn có ưu điểm nhất. Giảm đi diện tích xây dựng mái móng vẫn tính vào giá thành xây dựng. Giảm giá thành vật tư giảm vật liệu đơn giản hoa trang trí. Cũng là một cách cũng rất hay được sử dụng, từ nhiều mẫu thiết kế nhà 3D khác nhau.
Xây nhà cấp 4 giá bao nhiêu tiền diện tích 100m2
Mẫu nhà cấp 4 chữ L nằm ngang diện tích 100m2 mái thái khung thép như mẫu thiết kế của anh Toàn cũng là ví dụ về việc thay đổi thiết kế hoàn thiện mái thái để giảm giá thành. Chi phí xây dựng nhà cấp 4 còn đến từ địa điểm xây dựng, như nông thôn sẽ rẻ hơn tại thành phố rất nhiều. Còn nếu đất anh chị hẹp hơn ngang khoảng 7m thì xem mẫu nhà mái thái 1 tầng 3 phòng ngủ hơn 100m2 của chị Thanh tại đường dẫn nhà 1 tầng đẹp của anh Thắng chị Thanh

Hoàn thiện xây nhà diện tích 100m2 có nhiều mức khác nhau
Thiết kế nội thất nhà đẹp cấp 4 diện tích 100m2 thì chúng tôi xin không được nhắc đến. Vì đây là phần thiết kế có đặc thù riêng, tùy theo từng mẫu mà lại có được kinh phí đầu tư hoàn thiện khác biệt. Tùy vào tài chính của bạn
Chi phí xây nhà cấp 4 giá rẻ diện tích 100m2
Giá thành một thiết kế nhà 3D không phải chỉ tính bằng diện tích mặt sàn xây dựng mà còn được kết hợp với mái thái hay gác lửng thông tầng nếu mẫu thiết kế có được. Chi phí giá xây nhà cấp 4 diện tích 100m2 mái ngói như trên của anh Toàn như sau

Dự toán chi tiết nhà đẹp 100m2 3 phòng ngủ mái thái anh Toàn
- Cách tính xây thô: 3 triệu/m2 x 100m2 = 300 triệu bao gồm nhân công
- Vật tư trang trí hoàn thiện mức khá tốt trở lên: = 200 triệu ( Cửa gỗ căm xe kính cường lực..)
- Các chi phí phát sinh linh tinh: 20 triệu
- Tổng chi phí xây nhà đẹp 100m2 mái ngói : 520 triệu

Mẫu thiết kế nhà cấp 4 diện tích 100m2 520 triệu là chưa tính sân cổng
Mỗi công ty xây dựng uy tín hiện nay khi xây nhà mới đẹp. Có rất nhiều cách tính giá theo mét vuông sàn khác nhau. KTS không thể qua mạng mà có thể tính tổng chính xác được. Tùy đồ nội thất mức trung bình hay khá, hay tốt mà giá thành hoàn thiện. Của mẫu thiết kế nhà cấp 4 100m2 3 phòng ngủ ở nông thôn khác nhau.
Không nên sử dụng vật tư xây nhà cấp 4 giá rẻ hiện nay
Giá thành xây nhà cấp 4 mái thái thường được tính toán dựa trên các gói thiết kế ở mức khá, tốt, hoặc cao cấp trở lên. Không thể dùng mức trung bình được bởi kém đi sự sang trọng. Nếu bạn có yêu cầu thiết kế xây nhà 2020 với các gói sẽ có sự chênh lệch nhau từ 1 đến vài triệu đồng/m2.


Mẫu nhà trệt đẹp mái đổ bê tông 100m2 3 phòng ngủ mái bằng
Nhưng dù sao các bạn chọn lựa gói nào đi chăng nữa. KTS Chúng tôi cũng đảm bảo về chất lượng thi công, kết cấu xây dựng, chủ yếu khác biệt về vật liệu được chọn lựa. Chi phí thực hiện thiết kế hồ sơ bản vẽ nhà cấp 4 diện tích 100m2 xây dựng. Hay thiết kế nội thất cũng là một phần. Được nằm trong tổng chi phí hoàn thiện mẫu nhà 1 tầng mái thái 100m2. Các bạn cần có sự tính toán kỹ lưỡng và đầy đủ nhất. Để đưa ra được mức giá thành đầu tư mà gia đình cần hay hiện có.


- =>> Xem thêm: +100 bản vẽ nhà cấp 4 3 phòng ngủ 1 phòng thờ đẹp nhất xu hướng 2022 tới
Xem bản vẽ nhà hợp diện tích 100m2 ngang 6m
Kiểu nhà diện tích 100m2 nên vẽ sao cho cảm giác sang trọng nhưng vẫn hiền hòa cùng thiên nhiên cây xanh hài hòa. Bản thiết kế nhà diện tích 100m2 dành cho khu vực nông thôn bình yên. Phương án phân chia mặt bằng bố trí công năng theo lối sống nhu cầu sinh hoạt cần có. Tỉ lệ hình khối, chất lượng vẫn được đảm bảo. Mà không có sự suy giảm về mặt thẩm mỹ.


- Ngoài ra xem những mẫu nhà đẹp mới để biết thêm chuyên môn KTS chúng tôi
Bản vẽ nhà vuông mái bằng diện tích 100m2
Bản vẽ nhà chú Nam dưới đây là mẫu nhà mái bằng 1 tầng diện tích 100m2. Do mình vừa vẽ tháng 7 năm 2021 đang xây. Phương án nhà cấp 4 mái bằng có chi phí 500 triệu thiết kế phòng ăn ngoài. Phía sau có cầu thang dự phòng chổ vệ sinh lên mái bằng. Còn lại vẫn bố trí khách, thờ và 3 phòng ngủ hoàn chỉnh.

- Để hạn chế phát sinh xây nhà đẹp 100m2 bạn nên chọn bản vẽ nhà vuông 10×10 500 triệu này
Ngoài diện tích nhỏ nếu nhu cầu lớn chưa hợp lý. Còn lại đây được đánh giá là một thiết kế hoàn hảo với nhu cầu cần có ở quê. Anh chị gọi nếu cần thiết kế nhà vườn 100m2. Chi phí khoảng 450 đến 600 triệu 3 phòng ngủ mới 2022 sau dịch tới. Số điện thoại 1800 6015 có zalo giờ hành chính nhé. Thân ái thi đua và quyết thắng!