Mẫu nhà cấp 4 đẹp 12x12m mái thái được nhiều người quan tâm tại Thái Bình NDNC4193
Mẫu nhà cấp 4 mái thái đẹp 12x12m kiểu Nhật được thiết kế phù hợp với gia đình có đông thành viên cùng sinh sống. Bên cạnh những ngôi biệt thự, lâu đài nguy nga, tráng lệ thì những năm gần đây những mẫu nhà cấp 4 đẹp cũng đang trở nên sốt. Sở dĩ như vậy bởi những mẫu thiết kế nhà cấp 4 3 phòng ngủ mang đến nhiều ưu điểm riêng như thời gian thi công nhanh chóng, chi phí đầu tư vừa phải, đầy đủ tiện nghi.
Để hiểu thêm về mẫu nhà cấp 4 đẹp này, mời quý vị và các bạn cùng theo dõi bài viết chi tiết dưới đây của Nhà Đẹp. Chắc chắn quý vị và các bạn sẽ không hối hận khi lựa chọn mẫu thiết kế này để khởi công xây dựng.
Thông tin mẫu nhà cấp 4 hiện đại 12x12m mái thái NDNC4193
- Địa điểm xây dựng: Thái Bình
- Chủ đầu tư: Anh Đài
- Kích thước nhà: 12x12m
- Diện tích nhà: 144m2
- Diện tích sảnh: 10,4m2
- Diện tích diềm mái: 57,6m2
- Tổng diện tích mái bê tông: 144 + 10,4 + 57,6 = 212m2
- Tổng giá trị xây dựng nhà theo m2 mái bê tông: 212 × 5.500.000 = 1.166.000.000 đồng
- Diện tích mái ngói: 144 × 1,6 = 230,4m2
- Giá trị xây dựng mái ngói: 230,4 × 750.000 = 172.800.000 đồng
- Tổng giá trị hoàn thiện: 1.166.000.000 + 172.800.000 = 1.338.800.000 VND
Hình ảnh 3D mẫu nhà cấp 4 đẹp 1 phòng ngủ NDNC4193

Bạn cũng có thể thấy, gam màu chủ đạo trong mẫu nhà cấp 4 mái thái đẹp 12x12m kiểu Nhật là màu trắng tinh khôi, bền đẹp. Ngoài ra còn có một số màu sắc trang trí sinh động khác như màu đen của khung cửa, màu xám của đá ốp và màu nâu của viền mái, màu xanh than của hệ mái, tất cả được kết hợp hài hòa, liên kết về mặt hỗ trợ nhau một cách xuất sắc. Việc sử dụng những tông màu trung tính này đã góp phần không nhỏ mang đến cho không gian ngoại thất sự gần gũi, mới mẻ, trẻ trung và vô cùng khác biệt.

Các mặt tường của mẫu nhà cấp 4 mái thái đẹp 12x12m kiểu Nhật được trang trí bằng những đường chỉ lõm chạy ngang tạo nên sự khác biệt, nổi bật lên sự tinh tế. Tiếp đến là hệ thống cửa sổ và cửa phụ đều được sử dụng chất liệu kính cường lực khung nhôm cao cấp vừa mang đến sự gần gũi với thiên nhiên vừa đảm bảo yếu tố thẩm mỹ, vừa mang đến vẻ đẹp hiện đại cho không gian. không gian nội ngoại thất cũng như đón gió và lấy sáng hiệu quả.
Về phần chính thì hoàn toàn khác với việc sử dụng cửa kính. Với chất liệu gỗ tự nhiên cao cấp đã qua xử lý công nghệ hiện đại chống cong vênh, chống mối mọt tốt, chống ồn, cách âm hiệu quả, đảm bảo sự an toàn và riêng tư tuyệt đối. cho gia đình chủ đầu tư.

Phần chân tường mẫu nhà mái thái đẹp 12x12m kiểu Nhật này cũng được ốp gạch cẩn thận. Không chỉ có tác dụng trang trí mà nó còn có tác dụng bao che, bảo vệ chân tường không bị bám bẩn, không mọc rêu, nứt nẻ cũng như tránh tác động của mối, mọt, mối mọt.

Ngoài ra, với nét đẹp của kiến trúc hiện đại, các kiến trúc sư đã khéo léo lồng ghép hệ thống mái thái Nhật Bản 4 tầng mái dốc vô cùng đồ sộ và lạ mắt. Hệ thống mái thái Nhật Bản với chất liệu ngói cao cấp, mẫu nhà cấp 4 mái thái 12x12m kiểu Nhật dường như trở nên mát mẻ hơn vào mùa hè và ấm áp hơn vào mùa đông. Hơn nữa, mái Nhật được thiết kế với độ dốc vừa phải giúp tăng cường khả năng thoát nước, tạo nền móng kiên cố, vững chãi mang lại nhiều lợi thế lớn về chiều cao, điều hòa không khí và đặc biệt là phần mái. tồn tại với khí hậu nắng nhiều mưa như ở nước ta qua các thời kỳ.

Thiết kế hệ thống cổng, tường rào cao bao quanh mẫu nhà cấp 4 mái thái 12x12m kiểu Nhật tạo sự an toàn và riêng tư cho gia đình chủ đầu tư. Phía trước được thiết kế với khoảng sân rộng rãi được lát gạch chống trơn trượt tối màu làm nơi vui chơi, giải trí, tập thể dục vào các buổi sáng, buổi chiều và có thể để xe cộ đi lại. lần nữa.

Cuối cùng, hệ thống hoa lá, cây xanh dày đặc có tác dụng rất lớn giúp mẫu nhà cấp 4 12x12m kiểu Nhật trở nên hài hòa, kết nối tạo thành một bức tranh phong cảnh vô cùng sinh động. Chỉ nhìn qua phối cảnh 3D, bạn có thể hình dung rõ ràng đây là một ngôi nhà cấp 4 vô cùng đẹp. Bạn có thể xả stress sau một ngày làm việc mệt mỏi bằng cách hòa mình vào không gian thiên nhiên và hướng tới một cuộc sống xanh, trong lành và tràn đầy năng lượng.
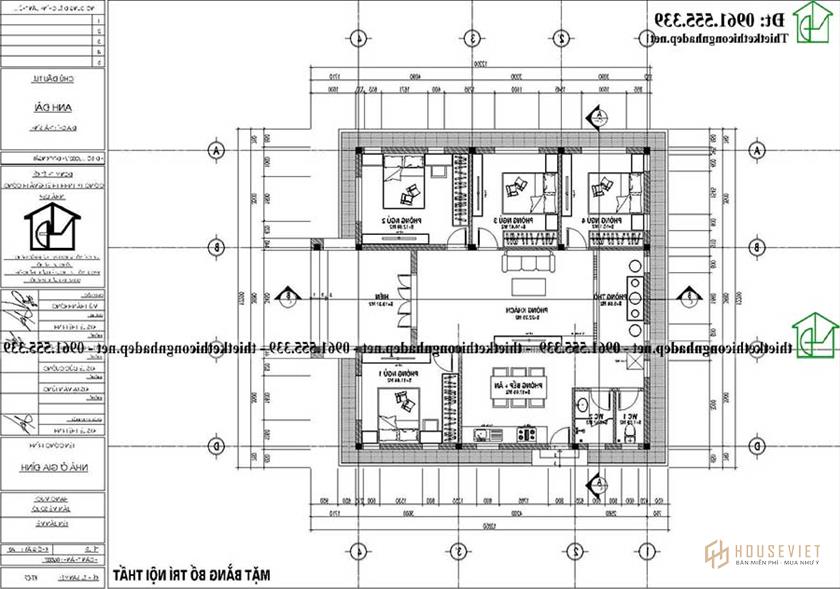
Mặt bằng công năng mẫu nhà cấp 4 kiến trúc hiện đại NDNC4193

Bước vào không gian đẹp của mẫu nhà cấp 4 mái thái 12x12m kiểu Nhật đầu tiên là phòng khách rộng rãi và thoáng mát. Tiếp đến là phòng thờ trang nghiêm được ngăn cách với khách bằng vách trang trí. Không gian 4 phòng ngủ được bố trí xung quanh ngôi nhà vô cùng yên tĩnh và trong lành bởi các phòng đều được thiết kế cửa sổ lớn. Đi vào bên trong là khu bếp + ăn được trang bị đầy đủ các thiết bị hiện đại phục vụ cho việc nấu nướng của các bà nội trợ dễ dàng. Cuối cùng là phòng tắm và vệ sinh chung tiện nghi, rất thuận tiện cho việc đi lại và sinh hoạt riêng tư của các thành viên.
Mẫu thiết kế nhà cấp 4 mái thái đẹp 12x12m đẳng cấp ngày càng trở nên đa dạng và phong phú, được thiết kế theo phong cách hiện đại và nổi bật, mẫu nhà cấp 4 đẹp này đã làm say lòng biết bao gia đình gia chủ. đầu tư. Mong rằng mẫu thiết kế nhà sang trọng và độc đáo mà chúng tôi vừa giới thiệu sẽ giúp quý vị và các bạn có thêm ý tưởng mới cho ngôi nhà mơ ước của gia đình mình.
- Siêu phẩm nhà cấp 4 mái thái có 4 phòng ngủ 17x11m tại Hòa Bình NDNC4194