Mẫu nhà cấp 4 hiện đại, nhà mái thái đẹp tại Hà Nam NDNC4118
Xây dựng mẫu nhà cấp 4 mái thái 3 phòng ngủ hiện đại được lựa chọn trong thời gian gần đây vì nó đảm bảo được những vấn đề mà nhiều hộ gia đình gặp phải như chi phí xây dựng thấp, công năng sử dụng nhiều nhưng vẫn cần sử dụng. đảm bảo tính thẩm mỹ. Nếu như trước đây, nhà mái thái có kết cấu rất đơn giản, mái ngói đỏ, cột dọc, tam cấp thì nay với sự cải tiến của mẫu nhà cấp 4 hiện đại đã mở ra ngôi nhà cấp 4. Về mặt thẩm mỹ mà nói, nhờ những chi tiết phào chỉ tạo điểm nhấn cho ngôi nhà.
Mẫu nhà cấp 4 hôm nay Nhà đẹp giới thiệu đến các bạn được xây dựng tại tỉnh Hà Nam. Đây là mẫu nhà tiêu biểu trong bộ sưu tập những mẫu nhà cấp 4 mái thái hiện đại năm nay. Với kiến trúc đơn giản, công năng phân chia khoa học và chi phí phù hợp với túi tiền của nhiều hộ gia đình, chúng tôi tin rằng đây sẽ là mẫu nhà vô cùng được ưa chuộng trong thời gian sắp tới.
Thông tin chi tiết về mẫu nhà cấp 4 hiện đại
- Chủ đầu tư: Chú Dùng
- Địa điểm xây dựng: Duy Tiên - Hà Nam
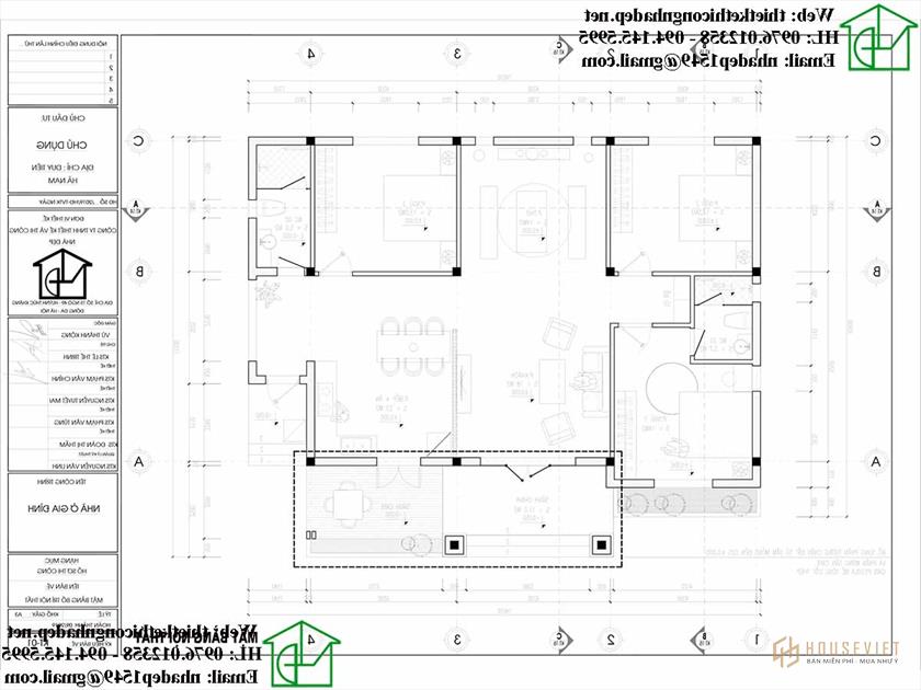
- Kích thước nhà: 11,5x14m
- DTXD: 161m2 (bao gồm sảnh)
- Kinh phí dự kiến: 900 triệu đồng
- KTS: Phạm Văn Chính
Mẫu nhà cấp 4 hiện đại tại hà nam

Sở hữu mặt tiền rộng 14m, không khó để các kiến trúc sư của Nhà Đẹp có những ý tưởng sáng tạo cho ngôi nhà. Thay vì mẫu cột chữ nhật thông thường, chúng tôi đã thay đổi mẫu cột sao cho kiểu cách hơn, cao dần từ đỉnh cột xuống chân. Chi tiết này giúp ngôi nhà không quá thô và nặng nề do sử dụng nhiều bê tông và sắt.
Mái thái được sử dụng để tăng thêm sự mềm mại cho ngôi nhà. Màu mái xanh nhạt rất phù hợp với không gian sân vườn ở quê. Ngoài ra, vì là kiến trúc thấp tầng nên những mẫu nhà cấp 4 mái thái ở nông thôn khó tránh khỏi hiện tượng hấp thụ nhiệt. Sử dụng mái thái sẽ giúp ngôi nhà của gia chủ luôn mát mẻ nhờ khả năng chống nóng, tản nhiệt và chống ồn cao.

Tham khảo: Nhà cấp 4 3 phòng ngủ
Từ góc nhìn này sẽ giúp bạn có cái nhìn chi tiết về từng góc của ngôi nhà. Thêm vào đó, sự góp mặt của đèn điện vàng và sơn trắng vàng tạo nên vẻ ấm cúng, yên bình, đúng với bản chất của những ngôi nhà cấp 4 ở nông thôn. Đó là một cuộc sống yên bình, thư thái và gần gũi với thiên nhiên. Trước nhà kê thêm bồn hoa và bàn trà, vừa tăng tính thẩm mỹ vừa tạo bóng mát cho mặt tiền.

Đây là phối cảnh từ trên cao nhìn xuống, với góc nhìn này, bạn sẽ dễ dàng hình dung hơn về tổng thể kiến trúc của ngôi nhà. Một điều mà tôi thích nhất ở những ngôi biệt thự ở quê là diện tích đất rất rộng nên sinh sống sẽ rất thoải mái.

Cổng rộng với nhiều khoảng thông với bên ngoài cũng là một trong những đặc điểm của những ngôi nhà cấp 4 ở nông thôn. Vẫn đảm bảo an ninh cho toàn bộ ngôi nhà, cổng được thiết kế cao, hàng rào kiên cố, màu sắc đồng bộ với ngôi nhà chính. Bước chân vào cổng bạn sẽ được chiêm ngưỡng một không gian sân vườn trong lành, tràn đầy sức sống.
Công năng mẫu nhà cấp 4 mái thái hiện đại 11x14m

Diện tích 161m2 để không gian sống của mỗi thành viên được thuận tiện và thoải mái thì việc bố trí công năng sử dụng của ngôi nhà là vô cùng quan trọng. Với nhu cầu sử dụng 3 phòng ngủ, mẫu nhà cấp 4 được sửa lại như sau: 1 phòng khách, 1 phòng thờ, 3 phòng ngủ (trong đó có 1 phòng ngủ master), 1 vệ sinh chung và 1 quán cafe phía trước. Trang Chủ.
Chọn cho mình cuộc sống bình yên, gần gũi với thiên nhiên, chú Dũng chưa bao giờ hối hận. Ngôi nhà dự kiến hoàn thành trong năm nay. Nhà đẹp sẽ cập nhật thông tin thi công thực tế trên website. Hãy tiếp tục theo dõi Nhà Đẹp để nhận được những thông tin mới nhất. Và dưới đây là video hướng dẫn chi tiết hơn cách đọc bản vẽ nhà chi tiết.
- Tư vấn thiết kế mẫu nhà cấp 4 100m2 tại Nam Định NDNC4120
- Mẫu nhà cấp 4 khoảng 400 triệu đẹp ở Thái Bình NDNC4119
- Thiết kế mẫu biệt thự 2 tầng đẹp 9x12m tại Vĩnh Phúc NDBT2T90