Mẫu nhà cấp 4 kết hợp kinh doanh thuận tiện nhất NDNC4109
Kiểu kiến trúc mẫu nhà cấp 4 kết hợp kinh doanh đã không còn là xa lạ. Không chỉ giúp gia đình có diện tích kinh doanh tạo thêm thu nhập mà còn là không gian sinh hoạt khoa học. Một trong những mẫu nhà cấp 4 đẹp vừa để ở vừa kinh doanh phải kể đến mẫu nhà ở Thanh Hóa mà công ty Nhà Đẹp đã hoàn thiện gần đây nhất.
Được xây dựng theo kiểu nhà ống, ngôi nhà khá dài nhưng nhu cầu gia đình chỉ có 2 phòng ngủ nên gia chủ quyết định sử dụng một phần diện tích trước nhà để kết hợp kinh doanh. Ngoài ra, theo thông tin chúng tôi nhận được thì công trường là nơi sầm uất, dân cư đông đúc nên rất phát triển về mặt kinh doanh.
Thông tin mẫu nhà cấp 4 kết hợp kinh doanh
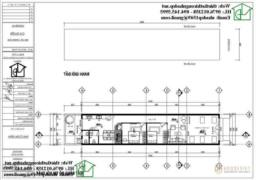
- Chủ đầu tư: Chị Duyên
- Địa điểm xây dựng: Thanh Hóa
- Diện tích nhà: 5m x 22,2m
- Diện tích sử dụng: 111,5m2
- Kinh phí dự kiến: 600 triệu đồng
Chi tiết mẫu nhà cấp 4 kết hợp kinh doanh.

Có thể nói, tổng thể kiến trúc của ngôi nhà khá đơn giản. Khác với nhiều mẫu nhà cấp 4 nông thôn hiện đại mang tính chất kinh doanh, mẫu nhà cấp 4 này có mặt tiền thông thoáng bằng kính cường lực. Các chi tiết rườm rà được lược bỏ và thay vào đó là gạch ốp tường hiện đại. Để tránh sự đơn điệu, chúng tôi trang trí bằng những đường kẻ ngang đẹp mắt.

Sự thông thoáng luôn là yếu tố để tạo nên một ngôi nhà toàn diện. Chúng tôi bố trí cửa sổ trên nóc nhà để đảm bảo ánh sáng luôn tràn ngập bên trong gia đình. Đối với mẫu thiết kế nhà này thì đây là giải pháp hữu hiệu nhất giúp không gian trong nhà luôn thông thoáng. Yếu tố phong thủy nhà cấp 4 cũng vô cùng quan trọng đối với những ngôi nhà có hình thức kết hợp giữa nhà ở và kinh doanh. Nó không chỉ đảm bảo cho công việc kinh doanh suôn sẻ mà còn đảm bảo cuộc sống ấm no, hạnh phúc.

Do nằm giữa hai phía Bắc và Nam nên Thanh Hóa thường xuyên chịu ảnh hưởng của bão. Để giải quyết vấn đề này, toàn bộ phần mái được lợp bằng ngói đỏ truyền thống. Không chỉ tôn lên vẻ đẹp của kiến trúc mà mái ngói chống nóng vào mùa hè, thoát nước nhanh vào mùa mưa rất phù hợp với thời tiết Việt Nam nói chung.
Tiện ích

Ngôi nhà có mặt tiền 5m với chiều sâu gần 23m. 22m2 đầu chủ dùng làm diện tích kinh doanh. Khu phía sau được bố trí 2 phòng ngủ, phòng khách rộng rãi, cuối cùng là phòng bếp kết hợp phòng ăn vô cùng tiện nghi. Để tạo sự thông thoáng cho ngôi nhà, gia chủ dành một khoảng diện tích nhỏ trong nhà để làm tiểu cảnh và sân sau để sinh hoạt, phơi đồ và làm nhà kho.
Mẫu nhà cấp 4 kết hợp kinh doanh Điều này rất phù hợp với mong muốn của gia chủ. Không chỉ tạo thêm thu nhập mà không gian được bố trí khoa học còn giúp gia chủ rất thoải mái khi sinh hoạt. Nếu bạn có nhu cầu thiết kế và thi công hãy để lại bình luận dưới bài viết này hoặc liên hệ trực tiếp với chúng tôi qua số điện thoại để được tư vấn và hỗ trợ.
- Mẫu nhà cấp 4 8x20m thiết kế ấn tượng tại Đồng Tháp NDNC4110
- Mẫu thiết kế nhà phố 2 tầng hiện đại mặt tiền NDNP2T10
- https://thietkethicongnhadep.net/mau-nha-dep/biet-thu-2-tang/
- https://thietkethicongnhadep.net/mau-nha-dep/biet-thu-co-dien/
- https://thietkethicongnhadep.net/mau-nha-dep/nha-cap-4-3-phong-ngu/