Mẫu nhà cấp 4 mái bằng hiện đại tại Kiến An Hải Phòng NDNC4111
Từ xưa đến nay mẫu nhà cấp 4 đẹp là cái tên được sử dụng nhiều ở các vùng nông thôn bởi đây là mẫu nhà phổ biến và tiêu biểu nhất. Người xưa cho rằng nhà cấp 4 là những ngôi nhà tồi tàn, thô sơ, tạm bợ chỉ bằng vật liệu tự nhiên như gỗ, tre, nứa, rơm rạ và lợp bằng mái ngói. một chiếc áo mới. Kết cấu và công năng của ngôi nhà cấp 4 hiện nay đã được cải tiến rất nhiều, phục vụ cho mức sống ngày càng cao của người dân. Các căn hộ nhà cấp 4 mái bằng hiện đạiNhững ngôi nhà cấp 4 mái thái hay mái tôn xuất hiện thay thế hàng loạt những ngôi nhà cấp 4 cũ kỹ.
Hôm nay Nhà Đẹp sẽ giới thiệu đến các bạn mẫu nhà cấp 4 mái bằng hiện đại tại Kiến An - Hải Phòng. Đây là mẫu nhà cấp 4 tiêu biểu cho sự đổi mới và đột phá của các công trình nhà ở hiện nay. Và đây là thông tin chi tiết về ngôi nhà:
- Chủ đầu tư: Cô Mai
- Địa điểm xây dựng: Kiến An - Hải Phòng
- Diện tích nhà: 7,5mx 16m
- Diện tích sử dụng: 120m2
- Kinh phí dự kiến: 600 triệu đồng
Phối cảnh chi tiết mẫu nhà cấp 4 mái bằng hiện đại

Mẫu nhà cấp 4 mái bằng hiện đại được xây dựng trên khu đất có diện tích 120m2 với mặt tiền rộng 7,5m và sâu 16m. Chúng tôi có lợi thế về chiều sâu nhưng hai bên nhà lại sát vách nhà hàng xóm nên không có nhiều điều kiện để sáng tạo để ngoại thất thêm độc đáo, mới lạ. Thay vào đó, chúng tôi sẽ cố gắng thiết kế nội thất khoa học và tiện nghi nhất.
Qua trao đổi, gia chủ chúng tôi có nhu cầu xây nhà cấp 4 hiện đại, tiết kiệm chi phí và muốn có sân vườn rộng rãi để trồng hoa, cây cảnh. Để đáp lại mong muốn, chúng tôi cố gắng làm cho thiết kế càng đơn giản càng tốt. Nhìn vào mặt tiền có thể thấy sân vườn được bài trí vô cùng bắt mắt với nhiều loại cây và hoa giúp tăng tính thẩm mỹ cho ngôi nhà.

Phong cách hiện đại đặc trưng bởi những khối kiến trúc đơn giản, đồ sộ để tạo sự bề thế, vững chãi nên để giúp ngôi nhà không quá đơn điệu, nhàm chán chúng tôi sử dụng gạch thẻ làm điểm nhấn trên tường. Giữa. Những viên gạch trang trí bằng đá khiến bức tường trở nên thô cứng, rất giống với tự nhiên. Chính sự liên kết giữa chúng đã tạo cho bức tường của ngôi nhà một cảm giác vững chãi và chắc chắn. Các bạn có tìm hiểu thì sẽ biết kiến trúc này, chúng ta đã học được từ những lâu đài của Nhật Bản rất độc đáo và mới lạ.

Không gian kết nối giữa bên trong và bên ngoài cũng là nét đặc trưng của những ngôi nhà mang phong cách hiện đại. Đó là lý do tại sao chúng tôi chọn kính xingfa cho mặt tiền. Không chỉ giúp tận dụng nắng gió tự nhiên vào nhà, cửa kính xingfa còn có ưu điểm là cản nhiệt rất tốt nên dù thời tiết khắc nghiệt đến đâu thì ngôi nhà của bạn cũng luôn trong trạng thái thông thoáng, dễ chịu. thú vị nhất.
Phương án nội thất nhà cấp 4 mái bằng tại Kiến An - Hải Phòng

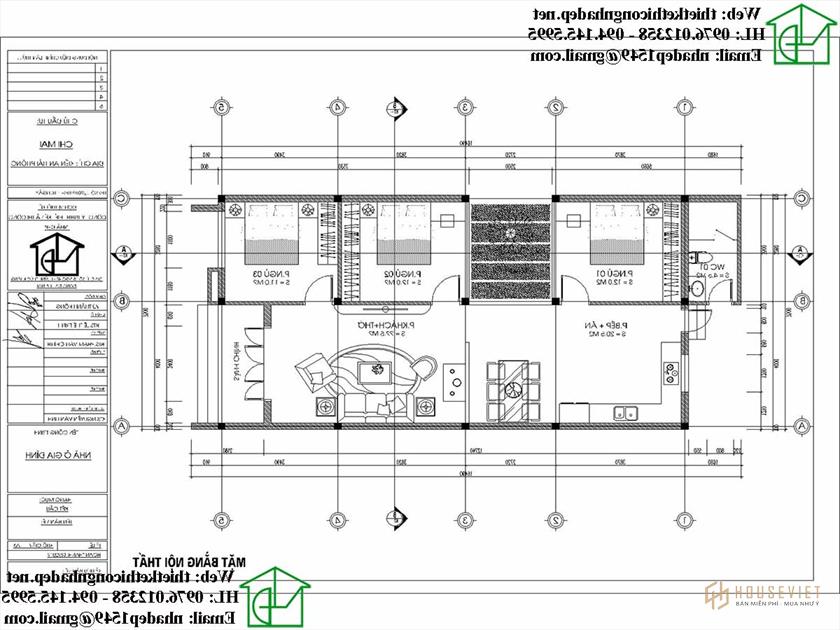
Đây là thiết kế nội thất của mẫu nhà mái bằng hiện đại. Nếu không nhìn vào bản vẽ mặt bằng, chắc hẳn bạn đang nghĩ rằng bức tường mà chúng tôi thiết kế ở mặt tiền chỉ mang tính chất trang trí, nhưng thực tế nó đóng vai trò rất quan trọng trong việc ngăn cách không gian nghỉ ngơi. với không gian sinh hoạt chung của gia đình. Với sự sáng tạo này, chúng tôi đã nhận được rất nhiều lời khen ngợi và hài lòng từ gia chủ. Và đó cũng chính là động lực để Nhà Đẹp mang đến nhiều mẫu nhà độc đáo hơn nữa.
Trở lại với căn nhà cấp 4 của chị Mai, công năng sử dụng của căn nhà gồm 1 phòng khách, 1 phòng ăn - bếp và 3 phòng ngủ. Cả gia đình chỉ có 1 nhà vệ sinh để sinh hoạt, tuy hơi bất tiện nhưng đây là giải pháp tốt nhất cho nhà cấp 4. Cuối nhà, chúng tôi thiết kế thêm một cửa thông ra bên ngoài có tác dụng thông gió. , đảm bảo kết nối tốt nhất với không gian bên ngoài.
Hình ảnh thi công thực tế nhà cấp 4 hiện đại
Và dưới đây là hình ảnh thi công thực tế của mẫu nhà cấp 4 mái bằng hiện đại. Dự kiến sẽ hoàn thành ngôi nhà trước Tết để gia đình có nhà mới đón Tết.

Trên đây chúng tôi đã giới thiệu đến các bạn những thông tin chi tiết nhất về mẫu nhà cấp 4 3 phòng ngủ. Và chắc hẳn suy nghĩ về một ngôi nhà cấp 4 tạm bợ, thô sơ đã được thay thế bằng một ngôi nhà khang trang, hiện đại không kém bất cứ ngôi biệt thự vườn 1 tầng nào phải không nào? Mọi thắc mắc về mẫu nhà cấp 4 hay đang có nhu cầu thiết kế xây dựng nhà ở hãy liên hệ ngay với chúng tôi để nhận được sự hỗ trợ tốt nhất.
Thiết kế nội thất nhà cấp 4 đẹp tại Kiến An Hải Phòng
Nhà đẹp xin giới thiệu đến các bạn thêm những hình ảnh thiết kế nội thất của công trình này để các bạn tham khảo cho gia đình mình.








- Mẫu thiết kế nhà cấp 4 8x20m ấn tượng tại Đồng Tháp
- Mẫu nhà cấp 4 kết hợp kinh doanh tiện ích nhất
- Mẫu thiết kế nhà cấp 4 9x12m 3 phòng ngủ ở Thái Bình
- Bí quyết bố trí nội thất nhà phố 2 tầng đẹp theo xu hướng
- https://thietkethicongnhadep.net/mau-nha-dep/biet-thu-2-tang/
- https://thietkethicongnhadep.net/mau-nha-dep/biet-thu-co-dien/