Mẫu nhà cấp 4 mái thái 3 phòng ngủ 8x16m tại Hải Phòng NDNC4180
Có những người xây nhà cấp 4 đã chuẩn bị từ rất lâu như nhà anh Đoàn ở Vĩnh Bảo Hải Phòng. Anh đã trao đổi với chúng tôi về mẫu thiết kế nhà cấp 4 3 phòng ngủ 8x16m mái thái này hơn 1 năm trước. Nhưng phải đến năm nay mới bắt đầu xây dựng cho gia đình anh. Mẫu nhà này bạn xây dựng ở quê mình là Vĩnh Bảo - Hải Phòng, xây cho ông bà ở quê để có không gian sống tiện ích nhất. Trước đây ông bà sống với anh chị ở Thành phố, nay không quen nên muốn về quê sinh sống. Vì vậy, không thể sống trong căn nhà cũ nát được nữa. Ngoài ông bà, cuối tuần hay lễ tết, anh chị em cũng về quê nên cần 3 phòng ngủ, trong đó 1 phòng ngủ cho ông nội, 1 phòng ngủ cho anh chị và 1 phòng ngủ cho cháu ngoại. Diện tích đất của gia đình không quá rộng chỉ 10x25m nên chiều ngang của ngôi nhà chỉ được thiết kế chiều ngang 8m và chiều sâu 6m. Phần đất còn lại phía trước làm sân vườn và để xe ô tô, phía sau nhà cũng có sân vườn rộng để trồng cây và làm sân. Mời các bạn xem qua hình ảnh và giới thiệu của công ty nhà đẹp về công trình này.
Tại Việt Nam, những mẫu nhà cấp 4 mái thái Nhật Bản đã và đang trở thành một xu hướng mới trong lĩnh vực thiết kế. Các phong cách thiết kế nhà cấp 4 3 phòng ngủ 8x16m ra đời đã giải quyết được nhiều vấn đề của mọi gia đình chủ đầu tư muốn thiết kế xây dựng nhà ở với đầy đủ không gian sống tiện nghi với chi phí đầu tư. hợp lý. Chính vì những lý do đó mà hôm nay chúng tôi xin giới thiệu đến quý vị và các bạn một mẫu nhà đẹp 3 phòng ngủ khác tại thành phố Hải Phòng. Mời mọi người cùng xem qua.
Đơn giá xây dựng mẫu thiết kế nhà cấp 4 mái thái 3 phòng ngủ tại Hải Phòng
Vì diện tích đất không nhiều và bạn không muốn đầu tư nhiều tiền vào xây dựng vì ít được sử dụng. Vậy bạn muốn xây dựng tiết kiệm thì từ đó chúng tôi thiết kế nhà cấp 4 mái thái kiểu nhật và phần diềm mái tương đối nhỏ chỉ có 30cm đua ra khỏi tường. Như vậy, bạn sẽ tiết kiệm được nhiều nguyên vật liệu, tiết kiệm được nhiều nhân công xây dựng cho ngôi nhà của mình. Thường thì vành mái sẽ đua ra ngoài khoảng 60cm nhưng ở thiết kế này chỉ là 30cm. Như vậy bạn sẽ tiết kiệm được khoảng 17,6m2 mái.
- Địa điểm xây dựng: Vĩnh Bảo - Hải Phòng
- Chủ đầu tư: Anh Đoàn
- Diện tích nhà: 106m2
- Diện tích tiền sảnh: 10m2
- Diện tích mái: 17,6m2
- Tổng diện tích xây dựng: 106 + 10 + 17,6 = 133,6m2
- Tổng giá trị xây dựng dự kiến: 133,6 × 5.000.000 = 668.000.000 đồng
- Kích thước nhà: 8x16m
Phối cảnh 3D mẫu thiết kế nhà cấp 4 kiểu Nhật 3 phòng ngủ 8x16m 3 phòng ngủ

Một số chi tiết trang trí mà kiến trúc sư tư vấn cho chủ đầu tư lựa chọn sử dụng trong mẫu nhà 8x16m 3 phòng ngủ hiện đại là gạch men ốp tường. Gạch men được biết đến với độ bền cao, độ tương phản ánh sáng cực tốt, tạo nên vẻ đẹp sáng bóng, sang trọng cho ngôi nhà và vô cùng cuốn hút, tinh tế. Loại gạch này có độ bền lâu, cũng rất khó bám bụi bẩn, dễ lau chùi nên giúp giữ gìn vẻ đẹp ngoại thất của ngôi nhà rất tốt.

Màu sắc được sử dụng trong mẫu nhà cấp 4 3 phòng ngủ 8 x 16m này là màu trắng sữa sang trọng và cuốn hút. Màu trắng được sử dụng ở đây được lựa chọn phù hợp với sở thích và nhu cầu phong thủy của gia đình. Hơn nữa, màu trắng trong kiến trúc được coi là gam màu trung tính cổ điển bởi tính ứng dụng rộng rãi, được sử dụng trong nhiều trường phái kiến trúc khác nhau, dễ dàng kết hợp với các gam màu khác giúp hỗ trợ lẫn nhau. Nhau tạo điểm nhấn về vẻ đẹp mềm mại, uyển chuyển mà không quá nặng nề. Hơn hết, vì là không gian ngoại thất với những bức tường dài và rộng, sẽ phải hứng chịu trực tiếp điều kiện nắng mưa, gió bão nên chủ đầu tư cần lựa chọn những dòng sơn cao cấp, có khả năng chống ẩm, mốc cao. hấp thụ và không hấp thụ nhiệt.

Ngoài vẻ đẹp ngoại thất của mẫu nhà cấp 4 mái thái Nhật Bản này, hệ thống cửa chính và cửa sổ được sử dụng kính cường lực khung nhôm cao cấp tạo nên không gian sống thoáng đãng, gần gũi với thiên nhiên. cho gia đình chủ đầu tư. Ngoài ra, chất liệu kính còn giúp ngôi nhà có không gian rất thoáng, ánh sáng tự nhiên được tận dụng tối đa len lỏi vào từng ngóc ngách của không gian nội thất giúp mang lại cảm giác cân bằng với thiên nhiên. Một đặc điểm nổi bật nữa của chất liệu kính được nhiều người yêu thích sử dụng đó là dễ dàng vệ sinh lau chùi, không lo bị ngấm nước, cong vênh, nứt vỡ,… Chính vì vậy mà chất liệu kính luôn được ưu tiên hàng đầu. được sử dụng trong những ngôi nhà cấp 4 mái thái hiện đại của Nhật Bản.

Đây là sảnh phụ ban đầu chúng tôi thiết kế cột sảnh nhưng có vẻ hơi chật sau đó đã bỏ cột sảnh đi chỉ để lại phần ban công mái. Mời các bạn cùng tham khảo.

Nổi bật trên nền trắng trang nhã của mẫu nhà cấp 4 mái thái 3 phòng ngủ 8x16m mái thái Nhật góp phần tạo nên sự sang trọng và đẳng cấp. Hệ mái ngói xanh than kiểu Nhật có kết cấu rất vững chãi, có độ dốc lớn tạo thành hình chóp nên rất cân đối và hài hòa cho tổng thể công trình. Hệ thống mái thái Nhật Bản còn có những ưu điểm như chống ẩm, chống thấm và tản nhiệt rất tốt, giúp giữ được nhiều may mắn, hạn chế tà khí xâm nhập vào nhà. Mái thái màu xanh than kiểu Nhật sang trọng, lịch lãm thường xuất hiện trong các mẫu nhà ở các nước Châu Âu nên khi du nhập về Việt Nam không chỉ giúp kiến trúc ngôi nhà của người Việt trở nên uy nghi hơn mà còn thu hút sự chú ý của mọi người. Mọi người xung quanh nhìn thấy nó nhiều hơn.
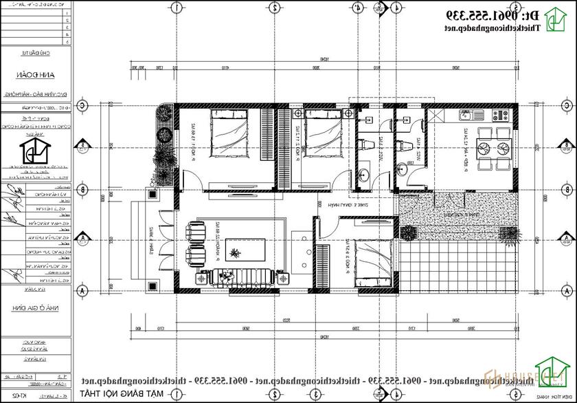
Mặt bằng công năng của mẫu nhà mái thái 3 phòng ngủ kiểu Nhật

Không gian bên trong mẫu nhà cấp 4 mái thái 3 phòng ngủ 8x16m. Đi từ sảnh chính vào là phòng khách kết hợp phòng thờ - phù hợp với văn hóa tín ngưỡng ở vùng quê có nhiều ngày lễ, giỗ. Bên phải phòng khách là khu vực dành cho các phòng ngủ với diện tích vừa phải, phù hợp với sở thích của các thành viên trong gia đình. Tiếp đến là 2 phòng vệ sinh chung tiện nghi gần các phòng ngủ góp phần tạo nên sự thoải mái và dễ chịu khi sinh hoạt riêng tư. Cuối cùng là khu bếp + ăn cuối nhà - đây là nơi tụ họp nấu nướng và ăn uống của gia đình chủ đầu tư.
Nội thất mẫu thiết kế nhà cấp 4 mái thái 3 phòng ngủ 8x16m kiểu nhật








Trên đây là một số hình ảnh phối cảnh 3D và mặt bằng công năng sử dụng của ngôi nhà của gia đình anh Ngôi nhà cấp 4 mái thái Nhật Bản có diện tích khá rộng và được phát triển theo kiến trúc mái thái hiện đại với không gian nội thất 3 phòng ngủ sang trọng. Nếu bạn yêu thích mẫu nhà cấp 4 hiện đại này hãy liên hệ ngay với công ty nhà đẹp chúng tôi qua hotline để được tư vấn và báo giá cụ thể.
- Nhà cấp 4 mái bằng 3 phòng ngủ 7x15m NDNC4188
- Mẫu thiết kế nhà cấp 4 mái bằng 2 phòng ngủ 7x10m tại Hải Dương NDNC4186