Mẫu nhà cấp 4 mái thái 90m2 tại Hải Phòng NDNC498
Mẫu nhà cấp 4 mái thái 90m2 đơn giản tiết kiệm chi phí đang là sự lựa chọn của nhiều cặp vợ chồng trẻ và đang xuất hiện ngày càng phổ biến. Điều này sẽ được chứng minh qua mẫu nhà cấp 4 mái thái đẹp tại Hải Phòng mà nhà đẹp đã thiết kế gần đây nhất.
Nói đến mẫu nhà cấp 4 đẹp chắc hẳn các bạn không còn xa lạ bởi kiểu kiến trúc này đã có từ rất lâu đời ở nước ta và thường được xây dựng ở các vùng nông thôn. Tuy nhiên, vài năm trở lại đây, những mẫu nhà cấp 4 mái thái thường xuất hiện ở những công trình nhà cấp 4 ở nông thôn nhận được sự quan tâm đông đảo của các chủ đầu tư kể cả ở nông thôn hay thành thị. Hiện nay, kiểu kiến trúc nhà cấp 4 mái thái đã được cách tân khá nhiều, mang đến sự độc đáo, mới lạ, hiện đại, tính thẩm mỹ cao so với lối kiến trúc truyền thống xưa.
Với mặt tiền lên tới 12 mét, mẫu thiết kế nhà cấp 4 90m2 mái thái theo phong cách mái thái là sự lựa chọn không thể hợp lý hơn của chị Vân bởi nó không chỉ đảm bảo không gian sống thoải mái cho gia đình. các thành viên. dạng viên, giúp chống nóng, mát về mùa hè, ấm về mùa đông và đặc biệt độc đáo, mang tính thẩm mỹ cao. Chi tiết nội ngoại thất mẫu thiết kế nhà cấp 4 90m2 mái thái mà chúng tôi mang đến cho chị Vân sẽ được cụ thể hóa ngay dưới đây.
Thông tin mẫu nhà cấp 4 mái thái 90m2 tại Hải Phòng
- Chủ đầu tư: Chị Vân
- Địa điểm xây dựng: Hải Phòng
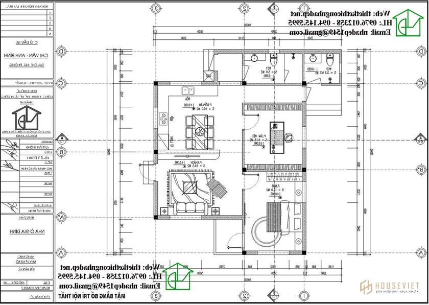
- Diện tích sử dụng: 90m2
- Kiểu kiến trúc: Nhà cấp 4 mái thái
- Kinh phí xây dựng dự kiến: 500 triệu đồng
- Chi tiết mẫu nhà cấp 4 mái thái 90m2

Sau khi khảo sát công trình, nhận được thông tin và yêu cầu của chị Vân, chúng tôi đã quyết định đưa ra cho chị mẫu nhà cấp 4 kiến trúc mái thái phong cách hiện đại. Mẫu thiết kế nhà đẹp hướng đến sự đơn giản, lược bỏ mọi họa tiết trang trí rườm rà, phức tạp của kiến trúc cổ điển mang đến tổng thể thông thoáng, trang nhã. Thiết kế mái ngói dốc sang hai bên tạo sự cân đối, hài hòa khiến ngôi nhà cao ráo, thanh thoát và vẻ đẹp hiện đại.
Việc bố trí cửa kính lớn giúp lấy ánh sáng và gió tự nhiên từ bên ngoài vào, không gian bên trong luôn sáng sủa, mát mẻ, đón tài lộc, vượng khí. Cạnh nhà được bố trí một khoảng nhỏ để trồng hoa và cây cảnh, gia chủ có thể kê một bộ bàn ghế nhỏ để hóng mát và nhâm nhi tách trà vào mỗi buổi sáng hoặc chiều. Từ đó, các thành viên được hòa mình vào thiên nhiên đất mẹ, xua tan mọi căng thẳng, mệt mỏi trong công việc.

Về cách phối hợp màu sắc, kiến trúc sư đã chọn gạch ốp tường màu trắng để tạo sự gần gũi và hài lòng cho người nhìn. Để tránh sự nhàm chán và đơn điệu, kiến trúc sư đã khéo léo sử dụng gạch đỏ để ốp phần chân móng và phần mái xám đen.

Công năng sử dụng của mẫu nhà cấp 4 mái thái 90m2
Mẫu nhà cấp 4 mái thái này được xây dựng cho một gia đình nhỏ nên mẫu nhà đẹp đã được bố trí công năng sử dụng như sau:
Bên cạnh sảnh là phòng khách diện tích 16,5m2, bên cạnh là khu bếp + ăn. Ngay phía sau phòng khách là phòng ngủ rộng rãi, bên cạnh là phòng làm việc, bên cạnh là phòng tắm lớn có vách kính ngăn khu vực tắm. Ngoài ra, theo yêu cầu của gia chủ, thiết kế còn bố trí thêm một phòng vệ sinh nhỏ phía sau khu đất và cửa phụ ra phía sau.

Mẫu nhà cấp 4 mái thái 90m2 có tính thẩm mỹ cao mang đến cho các thành viên một không gian sống độc đáo, tiện nghi mà không quá tốn kém chi phí xây dựng. Nếu bạn muốn sở hữu một mẫu nhà cấp 4 đẹp và độc đáo hãy liên hệ với Nhà Đẹp để được tư vấn và hỗ trợ ngay hôm nay.
- 6 mẫu nhà cấp 4 2 phòng ngủ đáng sống nhất
- https://thietkethicongnhadep.net/mau-nha-dep/nha-cap-4-3-phong-ngu/
- Biệt thự vườn 1 tầng 6x18m 3 phòng ngủ tại Hải Phòng NDBT1T95