Mẫu nhà ống 3 tầng 5x12m đẹp hiện đại
Mẫu nhà đẹp 3 tầng 5x12m đang là sự lựa chọn hàng đầu của nhiều gia chủ tại thành phố hiện nay. Thiết kế nhà với kiến trúc thông minh tạo cảm giác rộng rãi, thoáng mát và sinh động cho không gian trong nhà. Trong bài viết hôm nay, House Viet xin chia sẻ đến bạn đọc một số mẫu nhà 3 tầng 5x12m ấn tượng. Mời các bạn cùng tham khảo!
Mặt tiền mẫu nhà đẹp 3 tầng 5x12m
Trong thiết kế nhà 3 tầng mặt tiền là điều đầu tiên mà kiến trúc sư luôn phải chăm chút để sao cho ấn tượng và thẩm mỹ nhất.

Mẫu nhà đẹp 5x12m 3 tầng Sử dụng gam màu trắng làm chủ đạo kết hợp với màu gỗ sáng mang đến sự ấm cúng và mát mẻ. Ngoài ra, thiết kế cửa kính và ban công còn giúp đón ánh sáng và không khí tự nhiên vào nhà dễ dàng hơn, tạo sự thông thoáng.

Kiến trúc sư đã khéo léo gửi cả thiên nhiên vào nhà bằng cách tận dụng không gian chết ở ban công. Không chỉ mang lại không khí trong lành mà còn giúp ngôi nhà trở nên thẩm mỹ và tinh tế hơn rất nhiều.
Bản vẽ thiết kế nhà đẹp 3 tầng 5x12m
Với diện tích 5x12m, đòi hỏi kiến trúc phải phân chia công năng mặt bằng sao cho hợp lý để đảm bảo không gian sống thoải mái và tiện dụng. Đây là bản vẽ mặt bằng nhà ống 3 tầng 5x12m với 3 mẫu phòng ngủ đẹp, hiện đại mà bạn có thể tham khảo:
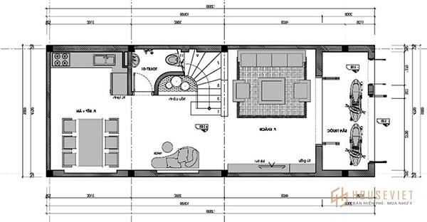
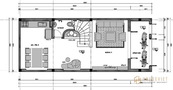
Bản vẽ mặt bằng công năng tầng 1
Công năng tầng 1 gồm: Sân trước + Phòng khách + Bếp + 1 WC .
Mặt bằng tầng 1 được thiết kế giúp không gian rộng và thoáng hơn. Khoảng sân trước được tận dụng để làm chỗ để xe cũng như bố trí thêm cây xanh, tạo khoảng cách với mặt tiền để đảm bảo sự yên tĩnh, hạn chế khói bụi.

Tiếp đến là khu vực phòng khách - sinh hoạt chung của gia đình được bố trí gần cửa chính. Việc sắp xếp nội thất gọn gàng và sử dụng cửa kính giúp tràn ngập ánh sáng bên trong.
Khu vực cầu thang được bố trí ở trung tâm và kết nối với khu bếp và phòng ăn. Dưới gầm cầu thang là khu vệ sinh được thiết kế kín đáo nhằm tối ưu diện tích và cảnh quan mang không khí trong lành vào nhà.
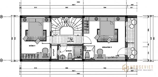
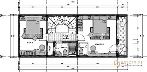
Mặt bằng tầng 2
Công năng tầng 2 gồm 2 phòng ngủ + 2 vệ sinh .

Phòng ngủ chính có diện tích rộng, được bố trí đầy đủ tiện nghi, có phòng tắm riêng đảm bảo sự riêng tư. Có ban công bên ngoài thích hợp để nghỉ ngơi, thư giãn.
Phòng ngủ dành cho con nhỏ hơn, được bố trí nội thất khoa học. Ngoài ra còn có một phòng vệ sinh chung nằm gần không gian giếng trời thoáng mát.
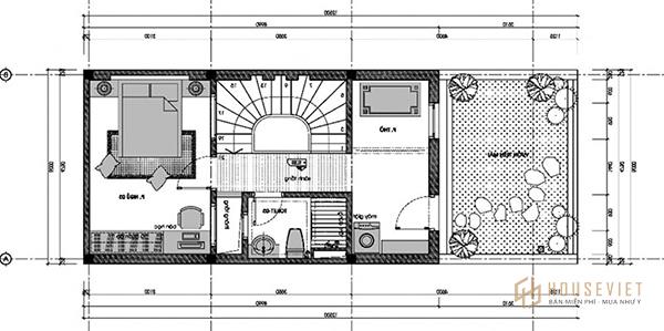
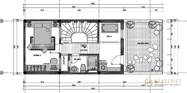
Bản vẽ mặt bằng công năng tầng 3
Công năng tầng 3 gồm phòng thờ, sân phơi, phòng ngủ nhỏ và cuối cùng là sân vườn sân thượng rộng rãi.

Khu sân vườn tương đối rộng rãi có thể dùng để thư giãn. Liền kề là khu vực phòng thờ tuy nhỏ nhưng vẫn đảm bảo tính phong thủy và sự thông thoáng nhất định.
Sảnh tầng bao gồm nhà vệ sinh và giếng trời. Sân phơi và phòng ngủ cho con được bố trí hợp lý, đáp ứng đầy đủ công năng và thẩm mỹ.
Thiết kế nội thất mẫu nhà đẹp 3 tầng 5x12m
Căn cứ vào độ tuổi, sở thích, tài chính cũng như phong thủy của từng người mà gia chủ sẽ lựa chọn phương án thiết kế nội thất nhà đẹp 3 tầng 5x12m phù hợp nhất để mang đến không gian sống lý tưởng, sang trọng và hiện đại cho cả gia đình.










Mẫu nhà đẹp 3 tầng 5x12m
House Viet sẽ giới thiệu đến các bạn những mẫu thiết kế ấn tượng và độc đáo của mẫu Nhà 3 tầng 5x12m rất tốt ở đây.







Hy vọng các thiết kế mẫu nhà đẹp 3 tầng 5x12m nhưng House Viet Phần giới thiệu trên đã giúp bạn có thêm ý tưởng để tạo nên một công trình nhà ở hiện đại, tinh tế và tiện nghi nhất.
Nếu bạn đang muốn sở hữu một chiếc thiết kế nhà đẹpsang trọng với chi phí hợp lý hãy liên hệ ngay qua hotline:1800 6015 trở thành đội ngũ kiến trúc sư của House Viet Tư vấn miễn phí. Với tay nghề, kinh nghiệm dày dặn và sự tận tâm, trách nhiệm với khách hàng, chúng tôi đảm bảo bạn sẽ nhận được những sản phẩm chất lượng và ưng ý, hài lòng nhất.
Các bài tham khảo:
- Mẫu nhà 3 tầng 4x16m hiện đại và ấn tượng nhất
- Tư vấn thiết kế mẫu nhà cấp 4 đẹp có gác lửng 5 × 12
- Xây nhà 3 tầng hiện đại 5 mẫu thiết kế nhà 3 tầng 5x10m
House Viet - Vững niềm tin