Mẫu nhà ống 3 tầng mặt tiền 5m mái bằng ở Quảng Ninh NP3T046
Với sự phát triển của xã hội ngày nay, nhà ống là sự lựa chọn hoàn hảo cho các gia chủ. Nếu bạn đang muốn có một mẫu nhà 3 tầng hiện đại mặt tiền 5m ấn tượng thì hãy tham khảo mẫu nhà này của VTKONG Xin vui lòng!
Danh mục nội dung
Thông tin mẫu nhà ống 3 tầng mặt tiền 5m. mặt tiền

- Chủ đầu tư: Bác Thi
- Địa điểm: Quảng Ninh
- Kích thước: 5x13m
- Diện tích sàn 1: 66m2
- Diện tích tầng 2: 76,56m2
- Diện tích tầng 3: 76,56m2
- Tổng diện tích xây dựng: 219,12m2
- Chi phí xây dựng dự kiến: 219,12 x 5.000.000đ / m2 xây dựng = 1.080.600.000đ
Không gian Quảng Ninh là khu vực xây dựng ấn tượng về chi tiết, có tốc độ phát triển kinh tế - xã hội nhanh nhất khu vực phía Bắc. Quảng Ninh cũng là một khu vực như vậy khi có rất nhiều chủ đầu tư - thượng đế với những ý tưởng thiết kế xây dựng khác nhau.
Phối cảnh nhà ống 3 tầng mặt tiền 5m tại Quảng Ninh

Gia chủ là người không thích rườm rà, cầu kỳ nhưng đòi hỏi sự sáng tạo trong thiết kế của kiến trúc sư VTKONG đã thiết kế ngôi nhà theo hướng đơn giản và tinh tế. Các chi tiết đặc biệt cắt bỏ các khoảng trống bằng các họa tiết trang trí phức tạp. Màu sắc chủ đạo được lựa chọn cho mẫu nhà ống 3 tầng là gam màu trầm trung tính mang đến vẻ đẹp ấn tượng, bình dị, nhẹ nhàng, thanh thoát và trang nhã. Không gian ấn tượng của ngôi nhà này được thiết kế với tông màu trắng sáng ở tầng một.

Ngôi nhà được lát gạch trắng bóng tạo sự sang trọng và sạch sẽ cho ngôi nhà. Thiết kế của ngôi nhà được kiến trúc sư tận dụng tối đa chiều cao để đáp ứng nhu cầu sinh hoạt. Khối tầng 1 sử dụng thanh thoát, sạch sẽ, khối tầng 2 sử dụng các khối vuông vắn tạo cảm giác khỏe khoắn, mạnh mẽ. Phong cách hiện đại khỏe khoắn kết hợp mặt tiền mái bằng có khả năng chống gió bão, chống cháy, chống thấm. Thiết kế nhà lệch tầng có thể tận dụng để đặt bồn nước trên mái.

Ngoài ra, quan điểm nhà ống mẫu 3 tầng mặt tiền 5m được bố trí tận dụng không gian xanh thiên nhiên. Vì không gian nhà ở phải phù hợp với nhu cầu của gia đình. Với chi tiết cây xanh mang hơi thở thiên nhiên hài hòa nhất tạo cảm giác mát mẻ. Khu vực sảnh tầng 1 có tông màu trắng và tông màu nâu trầm ở tầng 2 bố trí thêm một vài cây cảnh vừa mang đến không gian sống trong lành, mát mẻ. Thiết kế phối cảnh 3d độc đáo với không gian sống động và thu hút hơn.

Ngoài ra, việc sử dụng toàn bộ hệ thống cửa nhôm kính Xinfa màu trắng giúp không gian bên trong mẫu nhà phố 3 tầng hiện đại luôn tràn ngập ánh sáng. Kính được sử dụng rộng rãi trong các công trình nhà ở hiện đại. Thiết kế bằng kính có thể được sử dụng làm mái che để đón những tia sáng ở giếng trời. Thiết kế nhà tăng tính thẩm mỹ và không gian đẹp, hợp phong thủy cũng như không tốn nhiều chi phí xây dựng. Mỗi ngày, bạn hãy mở cửa đón ánh nắng ban mai, tận hưởng những chi tiết tuyệt vời sau khi mặt bằng nghỉ ngơi.

Công năng sử dụng của mẫu nhà ống mái thái mặt tiền 5m
Các không gian chức năng của mẫu nhà được bố trí một cách chi tiết nhất với các công năng xây dựng cơ bản. Công năng của mẫu nhà ống mái thái mặt tiền 5m với các công năng như:

Tầng 1 được thiết kế 1 phòng khách. Không gian tiếp khách có bộ ghế sofa êm ái. Đi vào bên trong là không gian 1 phòng bếp - ăn với các chi tiết nội thất đặc biệt hài hòa và hợp phong thủy. Không gian 1 phòng vệ sinh chung ngay cạnh cầu thang. Trước phòng khách là sảnh và sân để xe. Khu vực sảnh thoáng mát được bố trí đặc biệt hài hòa.

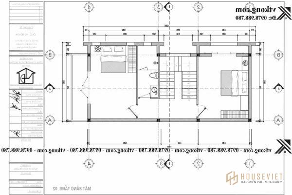
Sơ đồ mặt bằng tầng 2Ao gồm 1 phòng ngủ lớn cho bố mẹ, 1 phòng ngủ nhỏ cho con và 1 phòng vệ sinh chung ở giữa 2 phòng. Phòng ngủ master được bố trí rộng rãi để bố mẹ tận dụng không gian ánh sáng bên ngoài.

Vị trí tầng 3 được thiết kếCó phòng thờ rộng rãi, phía sau là sân phơi. Phòng thờ được bố trí riêng ở tầng 1 là tầng cao nhất của ngôi nhà tạo cảm giác rộng rãi và thoáng mát nhất cho gia đình.
Cảm ơn quý vị đã tham khảo chi tiết mẫu nhà ống mái thái mặt tiền 5m của VTKONG. Nếu bạn có nhu cầu thiết kế và xây nhà đừng quên nhấc máy và gọi ngay cho chúng tôi nhé!