Mẫu nhà ống 5 tầng đẹp mặt tiền 4m 2 cầu thang
Mẫu nhà phố 5 tầng Mặt tiền 4,2m thiết kế vừa kinh doanh vừa ở theo kiến trúc Nhà ống 5 tầng hiện đại diện tích sàn xây dựng 55m2. Quy mô kiến trúc của mẫu nhà 1 trệt 3 lầu 1 sân thượng đẹp còn có tầng hầm chính để các bạn xem mẫu nhà ống mặt tiền 4m đẹp 6 tầng cũng không sai.
- Biệt thự 4 tầng kiểu Pháp cổ đẹp có tầng hầm theo phong cách Baroque
- Mẫu biệt thự tân cổ điển 1 trệt 2 lầu sân thượng Anh Hùng
- Mẫu thiết kế nhà phố hiện đại mặt tiền 5m 2 - 3 tầng 750 triệu đồng

Mẫu thiết kế mặt tiền nhà phố 5 tầng đẹp anh Hùng
Trong phạm vi tư vấn thiết kế kiến trúc Nhà 5 tầng mặt tiền công ty rộng hơn 4m thiết kế nhà đẹp Chúng tôi sẽ không nêu rõ địa chỉ vì anh Hùng - Chủ sở hữu bản quyền thiết kế nhà ống 5 tầng hiện đại mặt tiền 4,2m, nở hậu 4,5m. Mẫu nhà phố đẹp 5 tầng rộng hơn 4,2m được thiết kế theo kiểu nhà lệch tầng đẹp nghĩa là từ tầng hầm lên tầng 1 sử dụng chung một cầu thang bộ nhưng bắt đầu từ tầng 2 trở lên. lên tầng 5 có thêm cầu thang bộ. ở giữa nhà

Với thiết kế Nhà ống 5 tầng hiện đại Kiến trúc lệch tầng giúp tạo thêm hiệu ứng ánh sáng cho không gian bên trong mẫu nhà đẹp 5 tầng có giếng trời, đón gió mát từ sau ra trước cũng như trung tâm, có khoảng thông lõi vào các ngóc ngách. những vết nứt. giúp ngôi nhà trở nên thông thoáng và thoáng mát hơn.
Mặt tiền ngoại thất mẫu nhà ống đẹp 5m 5 tầng được thiết kế với tông màu trắng kem. Bên ngoài, tường được ốp bằng đá đen trắng và vàng nâu. Ngoài ra, các lan can kính đặc trưng và gạch bông được sử dụng để tăng thêm sự gần gũi cũng như tạo một số điểm nhấn cho ngôi nhà. Bản vẽ thi công Nhà phố 5 tầng Có ghi chú chi tiết cho từng khu vực cụ thể. Các bạn có thể xem thêm hướng dẫn trong bản vẽ thiết kế nhà vừa ở vừa kinh doanh bên dưới ở gần cuối bài viết.
Mặt bằng mẫu nhà ống 5 tầng hiện đại mặt tiền 4,4m nở hậu 4,5m.
Mẫu thiết kế nhà liền kề hiện đại do kiến trúc sư Công Ty Xây Dựng Nhà Đẹp Mới chúng tôi lên phương án hoàn chỉnh hồ sơ công trình nhà phố. Bên cạnh phương án kích thước mặt bằng, chúng tôi đăng tải cả mặt cắt và bản vẽ mặt bằng của mẫu thiết kế nhà ống đẹp để quý khách hàng tin tưởng hơn vì công trình đã hoàn thiện.
- Các phong cách thiết kế nội thất đẹp mà anh Hùng ưa chuộng là phong cách cổ điển
- Nhà 2 tầng hình chữ L mái thái có sân thượng hướng Nam Anh Hùng

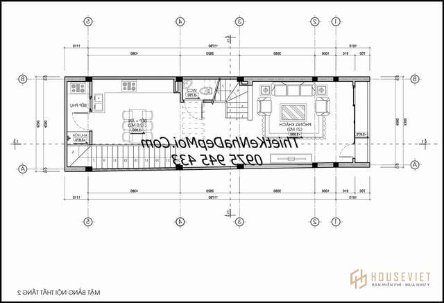
Đất nội thất nhà ống 5 tầng đẹp Gia đình anh Hùng dành một tầng hầm rộng để làm hầm rượu rộng 37m2, đi từ tầng 1 xuống theo không gian phía sau cầu thang góc nhằm tối ưu diện tích. Đằng sau mô hình nhà phố hiện đại Có hầm rượu và khu bảo quản, tái chế. Tầng hầm có 1 phòng tắm. Tầng 1 được thiết kế chung cho việc kinh doanh với tủ trưng bày rượu hai bên, sát tường. Phía sau có căn góc làm văn phòng làm việc và tiếp khách.

Khu vực tầng 1 của mẫu nhà phố 5 tầng mặt tiền 4m hiện đại được thiết kế dành cho không gian kinh doanh. Lưu ý mẫu thiết kế nhà phố hiện đại 1 trệt 3 lầu 1 sân thượng không cần có gara ô tô và gia chủ cũng không yêu cầu thiết kế nhà phố 5 tầng có thang máy vì mục đích chính của gia chủ là chi toàn bộ không gian để ở. kinh doanh, trưng bày sản phẩm rượu ngoại nhập khẩu nhưng nếu cần gara thì có thể để dưới tầng hầm. Nếu bạn có nhu cầu xây nhà ống có thang máy hãy tham khảo mẫu nhà đẹp dưới đây
- Nhà 5 tầng có thang máy Mrs Thuy
Phương án kiến trúc nhà 5 tầng nhìn từ không gian tầng 2
Kiến trúc nhà 5 tầng Mặt tiền 4,2m dài gần 12m, diện tích sàn xây dựng 52m2, như vậy do ban công ngoài được đua ra ngoài mặt đường 80cm tính từ tầng 2 trở lên, tổng diện tích Mỗi tầng còn lại xây tạm. tính ra 55m2. Trong đó
- Phòng khách rộng diện tích 21m2
- Phòng bếp và công trình phụ 12m2. Cầu thang được đặt chính giữa tầng, dưới chân cầu thang có 1 phòng vệ sinh.

Từ phòng khách của mẫu nhà ống lệch tầng đẹp có ban công đến mặt tiền được sử dụng kính cường lực màu trắng. Phía sau kiến trúc nhà đẹp 55m2 còn có khoảng sân phơi nắng thông tầng và 1 góc bếp phụ nhỏ theo yêu cầu của gia chủ anh Hùng. .
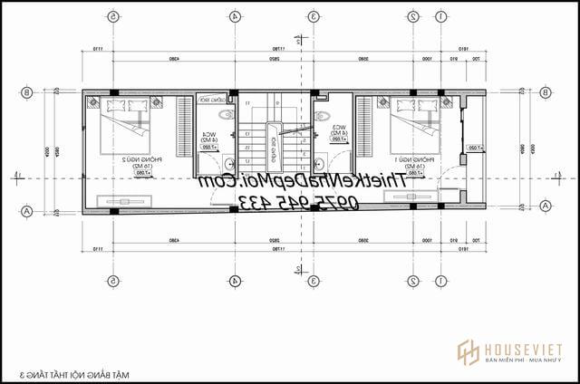
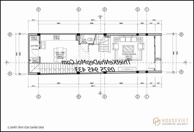
Cách bố trí mặt bằng không gian bên trong mẫu nhà ống 5 tầng đẹp mặt tiền 3
Mẫu nhà ống 5 tầng Rộng 4,2m mỗi tầng được bố trí không gian khác nhau, không rập khuôn như những mẫu nhà 5 tầng đẹp khác. Trong đó không gian tầng 3 được thiết kế 2 phòng ngủ và giếng trời cầu thang được thiết kế 1 giường đôi rộng rãi.

Mẫu nhà đẹp 55m2 anh Hùng có nội thất phòng ngủ rộng 20m2 có vệ sinh riêng trong đó vệ sinh và phòng tắm được thiết kế rộng 4m2. Phòng ngủ phía trước rộng 16m2 hướng ánh sáng chủ yếu qua giếng trời và ban công mặt tiền nhà phố đẹp rộng 4,2m. Thiết kế nội thất phòng ngủ phía sau có cửa sổ lớn phía sau và thêm 1 ô thông gió với giếng trời sát tường giúp không gian thêm thông thoáng.
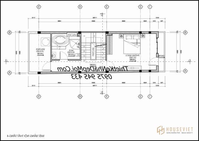
Nhà phố 5 tầng đẹp, tầng 4
Không gian 4 tầng Nhà phố 5 tầng đẹp Chỉ 4m cho vợ chồng thiết kế hoàn hảo 1 phòng ngủ master rộng 21m2 thiết kế theo kiến trúc lệch tầng có cửa sổ kính cường lực dày 12mm cánh lùa nhìn ra mặt tiền nhà đẹp 55m2 đây. Đây là không gian phòng ngủ của vợ chồng anh Hùng.

Phía sau thiết kế phòng tắm Vip có bồn tắm nằm, phòng thay đồ, phòng xông hơi cao cấp rộng 8,5m2. Phía sau giống với mô hình nội thất DT: 55m2. thiết kế nhà ống 5 tầng để lại 9,5m2 làm phòng giặt và sân phơi cũng như cửa thoát hiểm phía sau bằng kính cường lực lấy ánh sáng và gió mát.
Bản vẽ thiết kế nhà ống 5 tầng hiện đại có sân thượng
Mẫu nhà đẹp 5 tầng Tầng thượng 4,2 × 12 được thiết kế sân thượng rộng 22m2 có thể trồng cây xanh hoặc treo chậu hoa Hoàng Lan nếu thích. Diện tích tầng tum khá rộng rãi có thể bố trí không gian thư giãn như bàn trà ngoài trời, tạo thác nước sân vườn mini đẹp mắt để thư giãn. Buổi tối bạn có thể lên đây để ngắm toàn cảnh thành phố.

Không gian nội thất Nhà phố 5 tầng đẹp Rộng 55m2 thiết kế 1 phòng thờ hướng chính Tây Phước đức rộng 13,5m2, 1 kho để đồ linh tinh và sân chơi phía sau thông thoáng.
Bản vẽ kiến trúc nhà 5 tầng hiện đại mặt tiền 4,2m sau anh Hùng
Mẫu nhà đẹp 5 tầng Thiết kế mặt tiền 4,2m vừa để ở vừa kinh doanh rượu ngoại nhập khẩu Hồng sâm Hàn Quốc anh Hùng có tất cả 186 bản vẽ chi tiết xây dựng cũng như hồ sơ xin phép xây dựng nhà phố có tầng hầm bao gồm cả mặt cắt. , mặt đứng, bản vẽ thi công cầu thang đi ống, bản vẽ chi tiết cửa đi, dầm sàn hầm tự hoại, cấp thoát nước, chiếu sáng .. Đầy đủ tuy nhiên do lượng truy cập website hạn chế nên công ty xây dựng chúng tôi chỉ đăng tải một số bản vẽ để các kỹ sư xây dựng của chúng tôi tham khảo đến

Tổng chiều cao của mô hình Nhà phố đẹp 5 tầng rộng 4m lên đến 16,4m để ngăn việc xây dựng cao hơn. Sử dụng vữa xi măng cát vàng M75 dày trung bình 25mm. Cách chống thấm nhà đẹp 55m2 bằng 3 lớp SiKa, BTCT. Phù hợp với nền đất cứng tự nhiên, giải pháp làm móng chỉ cần đá dăm và dầm chặt, đừng quên tưới nước và đầm chặt giúp chống mối mọt và xử lý móng không bị nứt sau vài năm sử dụng.


Giờ bạn sẽ thắc mắc xây nhà ống hiện đại ngang 4m dài 12m với chiều cao tầng hầm là bao nhiêu và thông gió mỗi tầng là bao nhiêu. Cầu thang của nhà ống 4m có mấy bậc. Chúng tôi khuyên bạn nên xây dựng Nhà phố 5 tầng đẹp với kích thước sau
- Tầng hầm: 2,6m
- Tầng 1: 3,9m
- Tầng 2 và 3 tầng 4 5 cao 3.2m
- Cầu thang tầng hầm cao 19 bậc 2 nhịp
- Cầu thang lên tầng 2 trở lên cao 21 bậc.
Kinh phí xây dựng mẫu nhà ống 5 tầng 55m2 có tầng hầm
Mẫu nhà đẹp 5 tầng Diện tích nở hậu 4,5m2 mặt tiền 4,2m với tổng diện tích sàn xây dựng khác biệt so với những mẫu thiết kế nhà ống 55m2 khác. Nếu có tầng hầm thì chi phí tính diện tích sàn xây dựng công ty chúng tôi nhận là 1,8 lần 1 tầng tức là 180m2 sàn tầng hầm. Như vậy mẫu thiết kế nhà phố có tầng hầm có diện tích 50m2 x 2 nên 100m2 đã bao gồm cả phần móng.

Tổng diện tích sàn của mẫu nhà phố 5 tầng đẹpp từ tầng 1 trở lên tầng 5 tức là 55m2 x 5 là 275m2 cộng thêm tầng hầm 100m2 nữa là 375m2. Do phần mái trên tạm bằng 25% sàn nên kiến trúc chính xác của ngôi nhà 5 gian rộng 4,2m, dài 4,5m, sàn chính xác là 400 m2.
Chi phí xây dựng phần thô: 3 triệu / m2 như ý. Nhà ống 5 tầng hiện đại 1,2 tỷ để xây dựng phần thô. Còn hoàn thiện nội thất như cửa chính, cửa sổ, hệ thống đèn, điện nước, lắp đặt thiết bị cầu thang, lan can, ban công nhà phố đẹp cũng như dọn nhà tạm giá 5 triệu / m2. Như vậy, tổng kinh phí đầu tư xây dựng nhà ống 5 tầng đẹp Doanh nghiệp của anh Hùng là 2 tỷ.
Trên đây công ty thiết kế xây dựng chúng tôi vừa cập nhật Mẫu nhà ống 5 tầng Mặt tiền 4,2m kết hợp kinh doanh ở của gia đình anh Hùng. Tuy là 5 tầng nhưng lại có tầng hầm nên khoảng cách xây nhà ống lệch tầng đẹp 4m được tính lên đến 6 tầng. Lưu ý nếu bạn sinh sống tại tphcm hoặc các quận huyện tại Hà Nội thì khi xây nhà cần lưu ý đến quy định phải xin phép xây dựng đối với từng khu vực. Kiểu dáng Nhà ống 5 tầng hiện đại Đã có tầng hầm liền kề đẹp khi ký nhận thi công công ty chúng tôi hoàn toàn miễn phí giấy phép xây dựng và hoàn công nếu quý khách ký hợp đồng xây nhà trọn gói tại tphcm hoặc các địa phương lân cận.
Tìm hiểu thêm
- Mẫu nhà phố 3 tầng kinh phí 1, 2 tỷ chị Đào Hà Nội thiết kế theo kiến trúc Nhà ống lệch tầng 4m đẹp