Mẫu nhà ống hiện đại 6 tầng kết hợp kinh doanh 12,32mx 10,16m tại Hà Nội - SH NOD 0211
Ngày nay, ý tưởng thiết kế nhà ở kết hợp kinh doanh và văn phòng đã và đang là mô hình nhà ở rất được ưa chuộng bởi kiểu nhà này tận dụng được mặt tiền và các tầng bên dưới để phục vụ công năng. gia đình kinh doanh, các tầng trên vẫn bố trí không gian sinh hoạt như một ngôi nhà bình thường. Là sự kết hợp 2 trong 1 vô cùng tiện lợi cho các hộ gia đình đang có ý tưởng kinh doanh tại gia đình mình mà không cần phải đầu tư chi phí thuê mặt bằng.
Vì vậy, để có một thiết kế nhà ở kết hợp kinh doanh vừa công năng vừa độc đáo, chủ đầu tư luôn phải cân nhắc lựa chọn đơn vị thiết kế nhà chuyên nghiệp, uy tín. để đưa ra giải pháp thiết kế tốt nhất cho mục đích sử dụng.
Hồ sơ thiết kế nhà ống 6 tầng hiện đại kết hợp kinh doanh 12,32mx 10,16m tại Hà Nội - SH NOD 0211 do Sơn Hà Group thực hiện dưới đây sẽ minh chứng cho bạn sự kết hợp giữa các loại hình. Nhà ở hiệu quả này là hoàn toàn đơn giản và hiệu quả nhất.
- Tầng 1: Gara ô tô; trình diễn; Kho; vệ sinh chung cho cả tầng.
- Tầng 2: Sảnh tầng; trình diễn; Kho; 1 phòng ngủ có phòng tắm riêng.
- Tầng 3: Phòng Giám đốc; gặp gỡ; khu vực văn phòng; nhà vệ sinh chung.
- Tầng 4: Phòng khách; bếp và phòng ăn; 1 phòng ngủ và phòng vệ sinh chung.
- Tầng 5 + 6: Mỗi tầng 2 phòng ngủ; nhà vệ sinh chung.
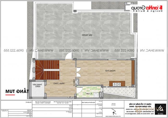
- Tầng áp mái: Phòng thờ; phòng giặt ủi.
NỘI DUNG CHÍNH
- Đầu tiên THIẾT KẾ NHÀ ỐNG HIỆN ĐẠI 5 Tầng MẶT TIỀN 12M32 KẾT HỢP KINH DOANH TẠI HÀ NỘI
- 2 CÁCH MẶT BẰNG TẦNG KINH DOANH KẾT HỢP NHÀ ỐNG HIỆN ĐẠI XÂY DỰNG 6 MẶT TIỀN ĐẸP MẶT TIỀN 125,17M2 TẠI HÀ NỘI
- 3 Ý TƯỞNG THIẾT KẾ NỘI THẤT NHÀ ỐNG KẾT HỢP KINH DOANH HIỆN ĐẠI TẠI HÀ NỘI
[embed]https://www.youtube.com/watch?v=OHSC1yN6VXA[/embed]
THIẾT KẾ NHÀ ỐNG HIỆN ĐẠI 5 Tầng MẶT TIỀN 12M32 KẾT HỢP KINH DOANH TẠI HÀ NỘI
Mẫu thiết kế nhà phố hiện đại kết hợp kinh doanh siêu đẹp tại Long Biên - Hà Nội mà KTS Sơn Hà thực hiện dưới đây là một mẫu thiết kế nhà phố hiện đại tiêu biểu và ấn tượng từ chính không gian kiến trúc và nội thất. nội thất đẹp của nó. Sau khi bàn giao hồ sơ, công trình thiết kế nhà ống hiện đại 6 tầng đẹp tuyệt vời mang mã số SH NOD 0211 này đã nhận được rất nhiều sự đánh giá cao của các đối tác, các chủ đầu tư khác đã có thể tận mắt chiêm ngưỡng. ngưỡng mộ và hoàn toàn đồng ý với ý tưởng bố trí công năng mà chị Thủy và KTS Sơn Hà phối hợp triển khai.
Ngoại thất nhà phố 6 tầng diện tích 12,32mx 10,16m đẹp khang trang thể hiện sự tinh tế, khoáng đạt từ những đường nét kiến trúc nhỏ nhất. Khi nhìn vào bạn sẽ có cảm giác về sự vững chãi, bề thế tạo nên bởi đường nét, cách bài trí cũng như cách phối hợp màu sắc của ngôi nhà kết hợp với nội thất vô cùng hiện đại và cao cấp. như thế này.



Qua những hình chiếu phối cảnh mà chúng tôi giới thiệu ở trên, bạn cũng có thể dễ dàng nhận thấy kiến trúc của ngôi nhà phố này được thiết kế nhằm làm nổi bật lên toàn bộ không gian sống bằng những tinh hoa của kiến trúc hiện đại. Đặc biệt, những điểm nhấn được phân bổ duyên dáng trên mặt tiền ngôi nhà hay các khối kiến trúc tạo nên sự chắp vá cho ngôi nhà, gam màu trắng sáng được áp dụng phổ biến và hoàn hảo cho ngôi nhà ống. mặt tiền 12m32 đẹp.
CÁCH MẶT BẰNG SÀN KINH DOANH KẾT HỢP NHÀ ỐNG HIỆN ĐẠI XÂY DỰNG 6 MẶT TIỀN ĐẸP DIỆN TÍCH 125,17M2 TẠI HÀ NỘI
Mời các bạn xem thêm bản vẽ thiết kế nhà ống 6 tầng hiện đại tại Hà Nội để thấy được cách bố trí khoa học và hợp lý các phòng chức năng của ngôi nhà này.







Ý TƯỞNG THIẾT KẾ NỘI THẤT NHÀ ỐNG KẾT HỢP KINH DOANH HIỆN ĐẠI TẠI HÀ NỘI
Ngôi nhà phố 6 tầng của gia đình chị Thủy ở Hà Nội được bố trí hài hòa giữa không gian kinh doanh và văn phòng nhưng cũng chú trọng đến sự tiện dụng của các thành viên. So với các kiểu nhà cùng kiểu, nhà của gia đình chị Thủy cũng có một số ưu điểm hơn hẳn về độ cao của các tầng. Nội thất của ngôi nhà được thiết kế theo phong cách hiện đại đơn giản trong các mảng điểm nhấn, mạnh về màu sắc tương phản đậm nhưng phải đẳng cấp về thẩm mỹ và công năng.
Mời độc giả cùng khám phá không gian nội thất của ngôi nhà qua những hình ảnh dưới đây:
1, thiết kế nội thất showroom và khu văn phòng




2, Mẫu thiết kế nội thất không gian sống gia đình






Quý vị cũng có thể xem thêm bộ sưu tập thiết kế nhà đẹp của SHAC tại đây:
- Tính nhanh: 1m3 tường 220 cần bao nhiêu viên gạch để xây?
- Nguyên nhân dẫn đến tình trạng nứt tường nhà mới xây là gì?
- Kích thước và hướng bố trí cửa phòng ngủ hợp phong thủy tránh đại kỵ.
- Phong cách nhà phố hiện đại đẹp và tiện nghi
- Nhà hướng Nam, đặt bếp hướng nào hợp phong thủy?
- Những mẫu biệt thự cổ điển với kiến trúc đẹp và sang trọng
- Mẫu thiết kế biệt thự Pháp đẹp tại Thanh Hóa mặt tiền 8m
- Cập nhật xu hướng thiết kế biệt thự vườn đang “làm mưa làm gió” hiện nay
- Mẫu biệt thự 2 tầng kiểu pháp đẹp với gam màu tinh tế
- Ngỡ ngàng với mẫu thiết kế biệt thự kiến trúc hiện đại tại Long An
Để biết thêm chi tiết vui lòng liên hệ:CÔNG TY CỔ PHẦN TƯ VẤN XÂY DỰNG SƠN HÀ (SHAC)Trụ sở chính: Số 318 - 319 HK3 Phố Bùi Viện, Lê Chân, Hải Phòng
- Điện thoại: 0225 2222 555
- Hotline: 0906 222 555
- Email: sonha@shac.vn
Văn phòng đại diện
- Tại hà nội: Số 4/172, Ngọc Hồi, Huyện Thanh Trì, TP. Hà nội
- Ở quảng ninh: Số 289, Phường Giếng Đáy, TP. Hạ Long, Tỉnh. Quang ninh
- Tại đà nẵng: Số 51m Đường Nguyễn Chí Thanh, Phường Thạch Thang. Q. Hải Châu, Tp. Đà Nẵng
- Ở sài gòn: Số 45 Đường 17, Khu B, An Phú, Quận 2, TP. Hồ Chí Minh
- Xưởng nội thất: Số 45 Thông Trực, Nam Sơn. Kiến An, Tp. Hải phòng