Mẫu nhà phố 2 tầng 8x12m phong cách hiện đại NDNP2T11
Nếu bạn đang sở hữu một mảnh đất đủ rộng hoặc một mảnh đất có kích thước 8x12m như ngôi nhà này. Giải pháp nhà phố 2 tầng 8x12m là giải pháp tiết kiệm chi phí nhưng vẫn mang đến cho gia đình bạn một ngôi nhà phù hợp, sang trọng và hiện đại nhất. Hãy cùng Nhà Đẹp tham khảo xem ngôi nhà phố 2 tầng này có gì đặc biệt nhé. Căn nhà phố này được chúng tôi thiết kế cho một khách hàng ở Thái Nguyên. Và đây cũng là khách hàng do khách hàng cũ của công ty chúng tôi giới thiệu. Nếu nói về xây dựng thì có thể nói Thái Nguyên là một trong những khu vực có chi phí xây dựng thấp, giá nhân công cực rẻ, có thể nói là rẻ nhất trong các tỉnh phía Bắc. Tất nhiên, Thái Nguyên vẫn có những khu vực giá cao như gần các khu công nghiệp của Samsung nên giá cả cũng là một vấn đề lớn. Tuy nhiên, dự án này được xây dựng sát thành phố Thái Nguyên, trên bãi đậu xe nên giá nhân công, vật liệu cũng rất rẻ. Vì vậy, dự kiến để hoàn thiện mẫu nhà phố 2 tầng hiện đại này gia chủ chỉ cần đầu tư với mức kinh phí khoảng 800 triệu là có thể hoàn thiện được rồi.
Trong bài viết này, công ty Nhà Đẹp xin gửi đến quý khách hàng mẫu Nhà phố 2 tầng 8x12m Trang nhã với những đường nét thiết kế tinh tế. Với phong cách hiện đại thời thượng, mẫu thiết kế nhà phố 2 tầng đẹp này dễ dàng thuyết phục được cả những khách hàng khó tính nhất.
Nếu bạn đang sở hữu mặt tiền 8m và muốn xây nhà phố 2 tầng thì công trình này chính là gợi ý lý tưởng cho ngôi nhà của bạn. Gia chủ liên hệ với chúng tôi với mong muốn ngôi nhà hiện đại và khoa học. Anh đặc biệt mong muốn một không gian sống thoáng đãng, tạo cảm giác thoải mái cho mọi thành viên trong gia đình.
Thông tin thiết kế nhà phố 2 tầng 8x12m
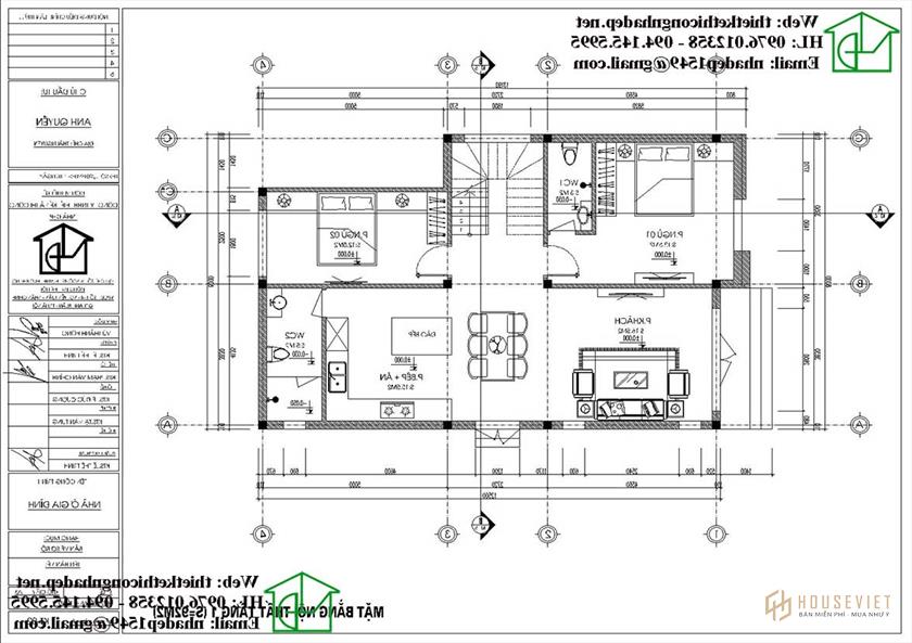
- Chủ đầu tư: Anh Quyền
- Địa điểm xây dựng: Thái Nguyên
- Diện tích: 8m x 12,5m
- Diện tích sàn 1: 92m2
- Diện tích tầng 2: 42m2
- Tổng diện tích xây dựng: 134m2
- Phong cách hiện đại
- Tổng kinh phí xây dựng dự kiến: 730 triệu đồng
Chi tiết mẫu thiết kế nhà phố 2 tầng 8x12m
Để đưa ra phương án tốt nhất cho gia chủ, đội ngũ nhân viên công ty Nhà Đẹp đã nhanh chóng lên đường xuống Thái Nguyên để khảo sát hình ảnh thực tế. Dù ở thành phố sầm uất nhưng mảnh đất của anh Quyền rất rộng và vuông vắn. Với mảnh đất này anh có thể lựa chọn nhiều phong cách khác nhau nhưng cuối cùng anh vẫn quyết định thiết kế theo phong cách hiện đại.

Điểm nhấn ấn tượng của ngôi nhà phải kể đến những khối vuông vắn được sắp xếp tự do, phóng khoáng. Khác với những mẫu nhà truyền thống với các cột trụ đối xứng, kiến trúc vuông vắn kết hợp với mái thái rất mới lạ tạo thế vững chãi và vô cùng tinh tế cho mặt tiền.
Kiến trúc là sự thống nhất của bố cục tổng thể theo hướng tự do. Các khối kéo dài từ mái đến chân tường phối hợp hài hòa với các khối cách điệu tạo nên sự độc đáo, mới lạ.

Các vật liệu hiện đại được sử dụng xen kẽ như gạch, đá và gỗ để ốp tường, sơn tường cao cấp được sơn phẳng, mịn và loại bỏ hoàn toàn các vết mốc nhỏ. Lan can kính cường lực và cửa kính khung nhôm hiện đại không chỉ mang lại hiệu quả về vật liệu, thẩm mỹ mà còn đảm bảo ánh sáng tự nhiên luôn tràn ngập không gian bên trong. Cửa chính 2 cánh gỗ lớn tạo sự bề thế cho ngôi nhà.
Để giảm thiểu chi phí và đồng bộ với thiết kế chúng tôi lựa chọn mái bằng. Thay vì sử dụng toàn bộ diện tích để xây nhà, gia chủ dành diện tích sân vườn kết hợp sân chơi trên tầng 2. Là nơi bạn có thể trồng hoa mà vẫn có thể thưởng thức trà. Không gian mở tạo nên vẻ đẹp cho kiến trúc và không gian sống lý tưởng cho gia đình.

Màu sơn tường trắng đi cùng gam màu trầm của gạch ốp tường, vân gỗ và khung cửa kính tạo nên sự tương phản về màu sắc. Đây là sự kết hợp khéo léo của các kiến trúc sư nhằm tinh tế khoe khéo từng nét đẹp của từng chi tiết của ngôi nhà. Hứa hẹn sẽ mang đến một diện mạo mới và kiến trúc sắc nét cho khu vực.
Xem thêm: Muốn xây nhà 2 tầng đẹp nên kết hợp màu sơn như thế nào?
Công năng sử dụng của nhà phố 2 tầng 8x12m

tầng 1: Với diện tích 92m2 chúng tôi thiết kế 2 phòng ngủ trong đó có 1 phòng ngủ có phòng vệ sinh riêng thuận tiện cho bố mẹ. Phòng khách sang trọng được đặt ở trung tâm của ngôi nhà. Đi thẳng vào bên trong là phòng bếp kết hợp phòng ăn vô cùng tiện lợi, phòng vệ sinh chung được bố trí bên cạnh.

tầng 2: Chỉ với một phòng ngủ và một phòng thờ đơn giản, phòng vệ sinh chung được thiết kế cạnh cầu thang vô cùng tiện lợi. Gia chủ tận dụng diện tích tầng 2 để tạo không gian sinh hoạt chung cho gia đình với sân phơi, sân chơi - nơi có thể trồng hoa, thưởng thức cà phê.
Đây là mẫu Nhà phố 2 tầng 8x12m Không chỉ để ở mà còn để tận hưởng một cuộc sống tốt nhất với thiết kế sang trọng và không gian được phân bổ khoa học. Để được tư vấn về nhà phố 2 tầng nói riêng và các mẫu nhà phố, nhà cấp 4, biệt thự nói chung, quý khách vui lòng liên hệ trực tiếp với chúng tôi. Công ty Nhà Đẹp cam kết sẽ tư vấn cho khách hàng những mẫu nhà phù hợp nhất.
Xem thêm các mẫu nhà phố, nhà ống 2 tầng đẹp:
- Thiết kế nhà phố 2 tầng hiện đại
- Các mẫu nhà phố 2 tầng đơn giản chỉ từ 450 triệu đồng
- Nhà phố 2 tầng 4x10m tiện nghi tại Hà Nội
- Tham khảo ngay mẫu thiết kế nhà ống 2 tầng 5 × 15 dưới 800 triệu
- Thiết kế biệt thự 2 tầng
- Thiết kế biệt thự cổ điển