Mẫu nhà phố 3 tầng 4,5x18m kiến trúc hiện đại NDNP3T42
Nhà phố 3 tầng hiện đại hiện đang được rất nhiều người ưa chuộng và trở thành một phong cách kiến trúc độc đáo hiện nay. Để đáp ứng nhu cầu thiết kế của gia chủ, thiết kế nhà đẹp đã liên tục bàn giao những công trình ấn tượng, như mẫu Nhà phố 3 tầng 4,5x18m hiện đại mà chúng tôi đã hoàn thành gần đây tại Thái Bình.
Thái Bình quả thực rất có duyên với những mẫu nhà đẹp, chúng tôi đã nhận rất nhiều công trình thiết kế nhà tại đây. Nhiều gia chủ sau khi làm việc với chúng tôi đã giới thiệu cho người thân và bạn bè của họ. Điều đó để thấy, Nhà đẹp đã tâm huyết trong từng công trình và nhận được phản hồi hài lòng từ gia chủ. Đó là những gì chúng tôi đã phấn đấu trong hơn 10 năm qua, cũng là niềm tự hào của toàn thể đội ngũ trong công ty nhà đẹp. Trở lại với mẫu nhà phố 3 tầng hiện đại, sau đây tôi xin gửi đến các bạn một số thông tin để các bạn cùng tham khảo.
Thông tin mẫu nhà phố 3 tầng 4,5x18m
- Chủ đầu tư: Anh Long
- Địa điểm xây dựng: Thái Bình
- Diện tích: 4,5mx 17,8m
- DTXD: 240m2
- Kinh phí xây dựng dự kiến: 1,2 tỷ đồng
- Số tầng: 3 tầng
Hình ảnh chi tiết mẫu nhà phố 3 tầng 4,5x18m

Diện tích thực tế của căn nhà là 4,5 × 17,8m, nhà đẹp xin phép làm tròn lên 18m để quý khách hàng dễ tìm. Ngôi nhà được thiết kế theo phong cách hiện đại nhưng có kiến trúc độc đáo nhất. Gia chủ là một người rất thích cây cảnh và yêu thiên nhiên nên đã nhờ chúng tôi thiết kế một ngôi nhà với nhiều cây xanh nhất. Nhìn vào mặt tiền của ngôi nhà có thể thấy chúng tôi đã bố trí rất nhiều loại cây xanh khác nhau trên các tầng ban công. Vừa mang lại cảm giác thư thái của thiên nhiên vừa mang vẻ đẹp của cây xanh.

Một Nhà phố 3 tầng 4,5x18m không thể thiếu yếu tố nắng, không gian, gió… Đối với mẫu nhà này, kiến trúc sư nhà đẹp đã lên phương án tối ưu nhất để có thể tận dụng ánh sáng và gió tự nhiên vào nhà, mang ánh sáng và gió tự nhiên vào nhà. không gian sống rộng mở giữa thành phố. Hệ thống cửa kính lớn và ban công kính không chỉ thể hiện vẻ đẹp hiện đại mà còn đảm bảo các yếu tố về ánh sáng, gió, không gian… Là sự kết hợp ăn ý tạo nên tổng thể hoàn hảo của mẫu thiết kế. chương trình này.

Màu trắng trang nhã chủ đạo kết hợp các gam màu nâu của gỗ, màu be của gạch ốp tường và màu xanh của cây lá tạo nên sự sang trọng hiếm có cho ngôi nhà. Tuy không có những chi tiết rườm rà như phong cách cổ điển hay tân cổ điển nhưng mẫu nhà vẫn hút mắt người nhìn bằng sự độc đáo ấn tượng riêng. Có thể nói đây là một mẫu thiết kế nổi bật của khu vực.
>> Tham khảo ngay: Mẫu nhà phố 3 tầng hiện đại 7x13m tại Thái Bình NDNP3T41
Công năng sử dụng của mẫu nhà phố 4,5x18m 3 tầng hiện đại
Chúng tôi xin giới thiệu ngắn gọn việc sử dụng Nhà phố 3 tầng 4,5x18mđể biết thêm chi tiết vui lòng để lại bình luận bên dưới để được nhà đẹp giải đáp.

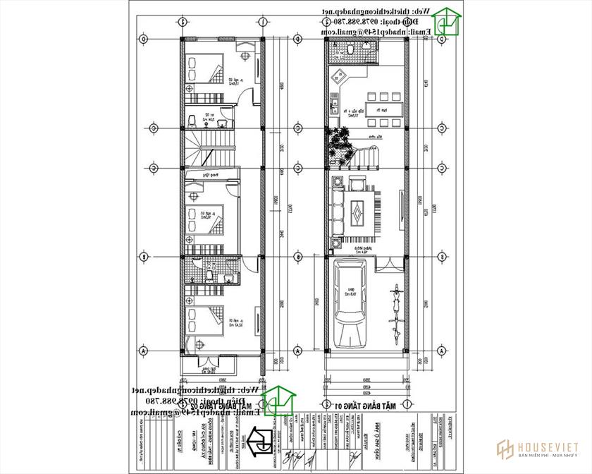
tầng 1: Phía trước là sân trước rộng 20m2 làm gara, đi vào trong là phòng khách rộng rãi, phòng ăn kết hợp bếp, phòng vệ sinh chung. Ngoài ra, nối liền phòng ăn và phòng khách là khu tiểu cảnh gồm cây xanh mang đến không gian xanh mát ngay trong nhà.
tầng 2: Gồm 3 phòng ngủ, trong đó có phòng ngủ master dành cho bố mẹ có phòng vệ sinh riêng, phòng ngủ master được thiết kế cạnh ban công thông thoáng. 2 phòng ngủ còn lại sử dụng chung 1 phòng vệ sinh được bố trí bên ngoài.

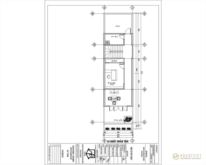
Tầng 3: Bố trí tầng thượng trồng cây xanh, 1 phòng thờ, 1 phòng giặt, bên cạnh là sân phơi cho cả gia đình. Ngoài ra, phòng làm việc của bố nằm ở cầu thang.
Mỗi mẫu mang một vẻ đẹp khác nhau tùy theo cá tính của từng gia chủ. Giống Mẫu nhà phố 3 tầng 4,5x18m Cũng như vậy, anh Long là một người rất yêu thiên nhiên và là người hiền lành, nhẹ nhàng nên khi nhìn vào thiết kế nhà anh cũng rất trang nhã. Hơn 10 năm phát triển và thành công, thiết kế nhà đẹp luôn làm hài lòng khách hàng tứ phương. Vì vậy nếu bạn có nhu cầu hãy liên hệ trực tiếp với chúng tôi để nhận được dịch vụ tốt nhất ngay hôm nay.
>> Tham khảo thêm các mẫu thiết kế nhà phố hiện đại khác:
- Mẫu nhà phố 3 tầng hiện đại 7x13m tại Thái Bình
- Ngôi nhà phố 3 tầng mặt tiền 10m ấn tượng
- Nhà phố 3 tầng hiện đại mặt tiền 7m
- Giải pháp xây nhà phố 3 tầng hướng Tây cho mọi nhà
- Nhà cấp 4 mái thái hiện đại 9x12m ở Thường Tín NDNC484