Mẫu nhà phố 3 tầng 5x17m tiện nghi tại Hải Phòng NDNP3T44
Với đầy đủ các yếu tố lấy sáng, đón gió tự nhiên, không gian hợp lý, thoáng mát, Mẫu nhà phố 3 tầng 5x17m mà chúng tôi thiết kế tại Hải Phòng là sự lựa chọn tối ưu cho những ai đang chuẩn bị xây nhà. Đáp ứng mong muốn của gia chủ về một mẫu nhà đơn giản mang phong cách hiện đại, kiến trúc sư nhà đẹp đã lên phương án và cho ra đời mẫu nhà với đầy đủ công năng yêu cầu, hãy cùng tìm hiểu qua bài viết nhé. Xuống đây.
Thông tin mẫu nhà phố 3 tầng 5x17m
Trước đây, gia chủ có thuê chúng tôi thiết kế biệt thự 2 tầng với diện tích rất rộng nhờ sự giới thiệu của một người bạn. Sau lần hợp tác đó anh rất hài lòng và tin tưởng chúng tôi nên ngay khi có nhu cầu thiết kế nhà phố 3 tầng hiện đại anh đã tiếp tục liên hệ và làm việc với Nhà đẹp. Đây là một trong những tiêu chí mà chúng tôi luôn hướng tới, phục vụ khách hàng và đáp ứng sự kỳ vọng cao nhất để khách hàng quay lại lần sau. Hãy tin rằng tất cả những ai đã và đang làm việc với chúng tôi đều tin tưởng vào cách làm việc chuyên nghiệp mà chúng tôi hướng tới.
Trở lại với ngôi nhà phố 3 tầng này, chúng tôi xin cung cấp một số thông tin để bạn tham khảo:
- Chủ đầu tư: Anh Trường
- Địa điểm: Hải Phòng
- Diện tích sàn 1: 85m2
- Diện tích tầng 2: 90m2
- Diện tích tầng 3: 90m2
- Tổng diện tích xây dựng: 268m2
- Tổng kinh phí dự kiến: 1,3 tỷ đồng
Chi tiết mẫu nhà phố 3 tầng 5x17m

Không quá hoàn hảo về diện tích nhưng mảnh đất rộng 5x17m cũng là một diện tích đẹp tạo 1 Mẫu nhà phố 3 tầng độc đáo. Tất nhiên, điều kiện quan trọng là sự vận dụng khéo léo của kiến trúc sư để đồng nhất phong cách kiến trúc giữa ngoại thất và nội thất.
Nhìn vào mẫu nhà phố này có thể dễ dàng nhận thấy những đặc điểm nổi bật của kiến trúc hiện đại. Không gian mở, thông thoáng với các chi tiết thiết kế góc cạnh, hình khối sắc sảo nhưng không tạo cảm giác cứng nhắc. Sự hài hòa không chỉ thể hiện ở đường nét mà chúng còn được kết hợp hài hòa với hệ thống cửa kính hợp lý trên cả 3 tầng của ngôi nhà phố. Sự kết hợp thông minh này giúp ánh sáng tự nhiên vào không gian nội thất dễ dàng hơn, đảm bảo tính thẩm mỹ nhưng vẫn tối ưu hóa công năng.

Màu trắng trang nhã, hiện đại kết hợp với màu sơn nâu sẫm làm nổi bật nhau. Ở tầng 1, chúng tôi đặt đá để Mẫu nhà phố 3 tầng 5x17m sang trọng hơn cũng như tạo sự vững chãi cho ngôi nhà. Gia chủ muốn sử dụng cửa cuốn nên chúng tôi thiết kế cửa cuốn hiện đại ngoài cửa kính cường lực theo ý muốn của gia chủ nhưng ở phối cảnh 3D này chúng tôi sẽ không đưa vào.
> Xem ngay: Mẫu nhà cấp 4 8x9m mái bằng 2 phòng ngủ tại Hưng Yên NDNC492
Công năng sử dụng của mẫu nhà phố 3 tầng 5x17m

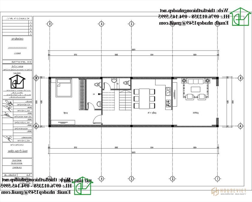
tầng 1: Gồm phòng khách rộng được đặt phía trước sảnh chính, tiếp đến là phòng bếp kết hợp phòng ăn tiện nghi, phòng vệ sinh chung được bố trí cạnh cầu thang lên tầng 2. Phòng ngủ chính của bố mẹ nằm trong cùng một phòng. , thiết kế vệ sinh khép kín.

tầng 2: Thiết kế gồm 2 phòng ngủ, 1 phòng vệ sinh chung, 1 phòng thờ rộng. Bên ngoài là ban công thoáng mát phục vụ nhu cầu sinh hoạt của gia chủ.

Tầng 3: Tầng 3 chủ yếu gia chủ muốn làm kho, sân phơi nên chúng tôi thiết kế theo nhu cầu của gia chủ. 1 phòng giặt nằm cạnh sân phơi phía sau, phía trước là sân thượng để chơi và trồng cây cảnh.
Mẫu nhà phố 3 tầng 5x17m Điều này khá đơn giản nhưng đúng với mong muốn của gia chủ. Mỗi mẫu thiết kế tại công ty đều dựa trên nhu cầu về công năng nội thất và thẩm mỹ kiến trúc của khách hàng để tạo ra những mẫu nhà đẹp nhất. Nếu bạn cần thiết kế và thi công trọn gói hãy gọi ngay cho chúng tôi để được tư vấn miễn phí.
Cùng xem những mẫu nhà phố 3 tầng hiện đại khác của chúng tôi:
- Mẫu nhà phố 3 tầng 5x13m mái bằng tại Quảng Ninh
- Mẫu nhà phố 3 tầng 4,5x18m kiến trúc hiện đại
- Mẫu nhà phố 3 tầng hiện đại 7x13m tại Thái Bình
- Mẫu thiết kế nhà phố 3 tầng đẹp từ 1-1,5 tỷ đồng
- Mẫu nhà cấp 4 7x13m đẹp ở Cà Mau NDNC493