Mẫu nhà phố 3 tầng kết hợp phòng khám hiện đại NDNP3T49
Thời gian gần đây, mô hình nhà ở kết hợp kinh doanh được nhiều hộ gia đình lựa chọn, áp dụng chủ yếu cho những hộ gia đình mới vào nghề và chúng tôi cho rằng đây là hình thức xây dựng. rất thông minh. Việc kết hợp nhà ở với kinh doanh giúp bạn rất nhiều trong việc tiết kiệm chi phí mặt bằng và hoạch định những phương án phù hợp khi công việc kinh doanh không mấy thuận lợi. Bạn có thể kết hợp nhà ở với nhiều loại hình kinh doanh khác nhau như mở shop quần áo, nhà hàng, kinh doanh nhỏ lẻ… Và hôm nay Nhà Đẹp xin giới thiệu đến các bạn mẫu nhà phố 3 tầng kết hợp phòng khám. tại Thái Bình. Đây là mẫu nhà phố điển hình nếu bạn đang cần tham khảo cách thiết kế nhà ở kết hợp kinh doanh.
Thông tin mẫu nhà phố 3 tầng tại Thái Bình
- Chủ đầu tư: Anh Du
- Địa điểm xây dựng: Thái Bình
- Kích thước nhà: 4,5x15m
- Diện tích sàn 1: 67,5m2
- Diện tích tầng 2: 72,9m2
- Diện tích tầng 3: 72,9m2
- Tổng diện tích xây dựng: 213,3m2
- Tổng giá trị dự kiến: 1,3 tỷ đồng
Phối cảnh nhà phố 3 tầng kết hợp phòng khám hiện đại

Trước khi đi vào chi tiết, tôi xin giới thiệu với các bạn về kiến trúc mặt tiền của ngôi nhà. Đối với các hộ kinh doanh, mặt tiền công trình ấn tượng cũng là một trong những yếu tố quan trọng tạo được nhiều thiện cảm với khách hàng. Ngoài việc chọn cho mình một vị trí giao thông đắc địa thì mặt tiền càng ấn tượng, rộng rãi, sạch sẽ thì việc kinh doanh của bạn càng thuận lợi.
Mẫu nhà phố 3 tầng của gia đình anh Dư được xây dựng với mục đích làm phòng khám nha khoa nên chúng tôi ưu tiên thiết kế mặt tiền theo phong cách hiện đại, đơn giản nhưng ấn tượng về độ sáng. Dù là mô hình nhà ở kết hợp nhưng bạn cũng cần cho khách hàng thấy được sự chuyên nghiệp ngay từ cái nhìn đầu tiên. Từ đó, khách hàng sẽ dần tạo dựng được niềm tin và đến cửa hàng của bạn thường xuyên hơn cũng như giới thiệu cửa hàng của bạn cho bạn bè, người thân.


Mặt tiền tầng 1 sử dụng gạch granite họa tiết hoa nổi bật và ấn tượng. Không chỉ có tác dụng thẩm mỹ, khi sử dụng đá hoa cương cho mặt tiền còn giúp hạn chế ngấm nước, ẩm mốc và dễ dàng vệ sinh, lau chùi. Chúng tôi lựa chọn cho gia chủ loại cửa cuốn kết hợp cửa kính trong vì những lý do sau:
- Đảm bảo an ninh tuyệt đối cho gia chủ
- Phòng khám nằm ngay cửa chính nên việc sử dụng cửa kính sẽ giúp khách hàng dễ dàng nhận biết
- Nhà gần đường nên lượng khói bụi bay vào nhà rất lớn, sử dụng cửa cuốn, cửa kính giúp giảm thiểu lượng khói bụi bay vào nhà.

Chúng tôi có demo cho chủ nhân của bảng hiệu về vị trí đặt và kích thước phù hợp. Gia chủ có thể lựa chọn loại bảng hiệu in bạt hiflex có ưu điểm là thời gian thi công ngắn, dễ dàng thay đổi kích thước. Hoặc lựa chọn bảng hiệu đèn led vẫy để thu hút nhiều khách hàng hơn.
Tiện ích

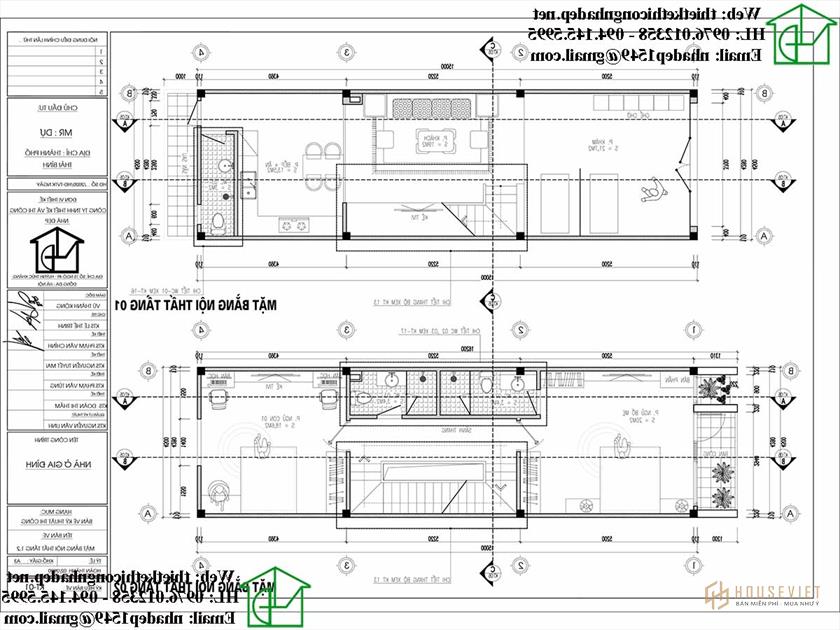
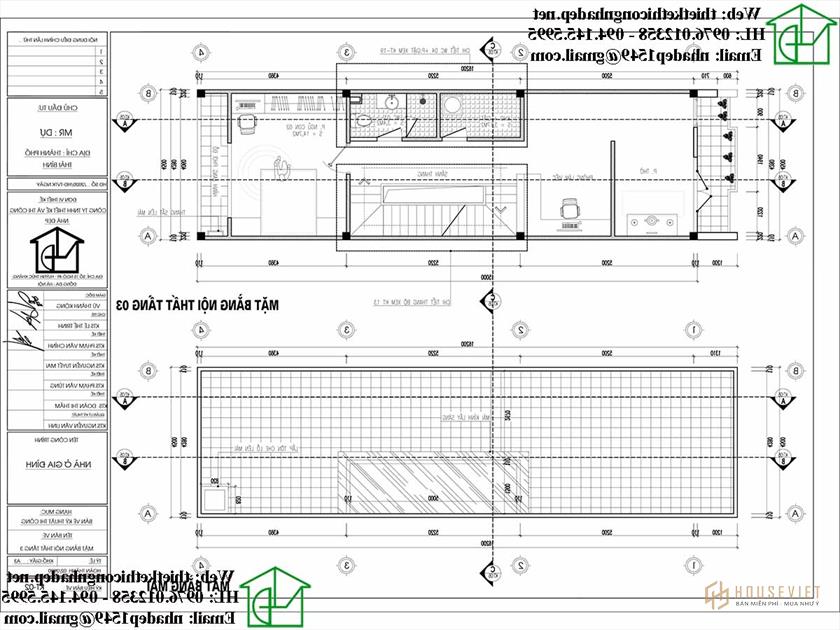
Công năng sử dụng của nhà phố 3 tầng kết hợp phòng khám được bố trí như sau:
- Tầng 1: 1 phòng khám, 1 phòng khách, 1 phòng ăn - bếp và 1 vệ sinh.
- Tầng 2: 2PN, 2 vệ sinh .
- Tầng 3: 1 phòng thờ, 1 phòng làm việc, 1 phòng ngủ, 1 kho kết hợp phòng giặt và 1 vệ sinh.

Cách bố trí này rất thoải mái trong sinh hoạt nhưng hơi bất tiện cho khách hàng khi không có nhà vệ sinh riêng cho phòng khám. Vì làm dịch vụ y tế nên chắc chắn khách hàng sẽ phải chờ đợi lâu nên bạn cần cân nhắc phương án đặt bồn cầu cho phù hợp. Với nhà của chủ nhà, để có thể đi vệ sinh, khách hàng phải đi qua phòng khách và phòng bếp, gây bất tiện cho cả khách hàng và gia chủ. Chính vì vậy bạn cần có những tính toán kỹ lưỡng trước khi xây nhà.
Trên đây chúng tôi đã giới thiệu đến các bạn những thông tin cơ bản về mẫu nhà phố 3 tầng kết hợp phòng khám tại Thái Bình. Tuy còn một số khuyết điểm trong thiết kế nhưng đây vẫn là mẫu nhà lý tưởng cho những gia đình mới bắt đầu kinh doanh. Nếu bạn có nhu cầu thiết kế và thi công nhà phố hay bất cứ mẫu nào khác, hãy liên hệ với Nhà Đẹp. Chúng tôi sẽ giúp bạn xây dựng ngôi nhà mơ ước của bạn.
- Phương án thiết kế nhà phố 3 tầng mặt tiền 3m. mặt tiền
- Mặt tiền nhà phố 5m 3 tầng ấn tượng tại Hưng Yên
- Tư vấn thiết kế nhà phố 4,5x15m 3 tầng hiện đại
- Mẫu thiết kế nhà phố 3 tầng 7x20m kết hợp kinh doanh NDNP3T50
- https://thietkethicongnhadep.net/mau-nha-dep/biet-thu-2-tang/
- https://thietkethicongnhadep.net/mau-nha-dep/biet-thu-co-dien/