Mẫu nhà thờ họ 3 gian 8x8m tại Vĩnh Phúc NDNTH30
Để xây dựng nhà thờ họ hầu hết đều rất cẩn thận và bài bản, có gia đình chuẩn bị khá lâu từ vài tháng đến hàng năm trong giai đoạn chuẩn bị. Từ mẫu thiết kế nhà thờ 3 gian 8x8m cho đến sự quyên góp, đóng góp của từng thành viên trong gia đình. Có những gia đình con cháu trong họ có tiềm lực tài chính lớn, có thể lập công gây dựng gia đình. Có những gia đình được tài trợ hoàn toàn từ những người có công để xây dựng nhà thờ họ. Vì công trình nhà thờ từ đường là công trình công cộng nên công tác chuẩn bị xây dựng tốn rất nhiều thời gian và công sức.
Nhắc đến mẫu thiết kế nhà thờ 3 gian 8x8m đẹp thì đây là một trong những công trình được rất nhiều chủ đầu tư và gia đình lựa chọn xây dựng trên khắp 63 tỉnh thành của Việt Nam. Chính vì vậy để bạn có thể hiểu rõ hơn về mẫu thiết kế nhà thờ họ độc đáo này. Hôm nay, chúng tôi xin chia sẻ những hình ảnh phối cảnh 3D và mặt bằng công năng liên quan đến thiết kế nhà thờ họ qua bài viết dưới đây. Xin mời quý vị và các bạn bớt chút thời gian chiêm ngưỡng.
Đơn giá thi công mẫu thiết kế nhà thờ 3 gian 8x8m
Đơn giá xây dựng nhà thờ họ vẫn được chúng tôi áp dụng theo đơn giá m2, giá xây dựng theo m2 từ 10 - 15 triệu / 1m2, có tách rời 2 trụ lửa trước nhà. Do hai trụ cứu hỏa này không ở mái bê tông nên giá nhân công xây dựng nhà thờ họ từ 3-3,5 triệu / 1m2 mái bê tông.
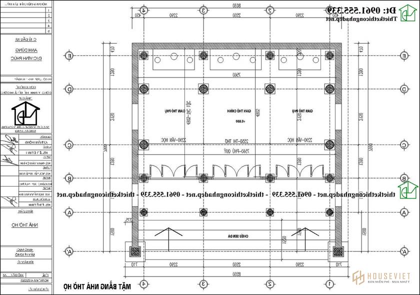
- Địa điểm xây dựng: Vĩnh Phúc
- Chủ đầu tư: Anh Phúc
- Diện tích nhà: 8x8m = 64m2
- Diện tích mái bê tông: 64 × 1,3 = 83,2m2
- Giá trị xây dựng cột chống cháy: 50.000.000 đ / 2 cột
- Tổng giá trị xây dựng dự kiến: 83,2 × 10.000.000 = 832.000.000 đồng
- Tổng giá trị căn nhà: 832.000.000 + 50.000.000 = 882.000.000 đồng
Phối cảnh 3D mẫu thiết kế nhà thờ họ 3 gian 8x8m

Mẫu thiết kế nhà thờ 3 gian 8x8m được thiết kế khoáng đạt với những đường nét độc đáo, cân đối hài hòa. Khi nhìn vào diện mạo không gian ngoại thất toát lên vẻ uy nghiêm vốn có của nó: Một sự uy nghiêm, trang trọng và rất linh thiêng.
Hai bên sân được đắp hai cột đá nguy nga, có hàng chữ Hán linh thiêng dùng để thể hiện tinh thần hiếu thảo và công đức của tổ tiên. Sự biến hóa mềm mại trong đó các đường gờ trang trí mang đến cái nhìn bắt mắt, đồng thời trên đỉnh cột được chạm nổi hình ảnh 4 con phượng hoàng đang chụm đầu vào nhau, đầu hướng ra bốn hướng. là tinh tế. Hình ảnh giản dị ấy đã góp phần tượng trưng cho khí phách anh hùng của vùng đất này, khẳng định sự uy nghiêm, bề thế.

Điểm độc đáo nữa đó là hệ thống cửa của mẫu thiết kế nhà thờ 3 gian 8x8m được sử dụng là cửa gỗ tự nhiên bàn đã qua xử lý nhiều kỹ thuật tiên tiến, có khả năng chống mối mọt, cong vênh. hiệu quả. Để rồi từ đó tạo nên giá trị tuyệt vời về mặt thẩm mỹ hài hòa và tạo nên vẻ nguy nga, lộng lẫy cho toàn bộ không gian nội - ngoại thất của công trình mà ai nhìn vào cũng phải trầm trồ khen ngợi. .

Mẫu thiết kế nhà thờ 3 gian 8x8m tạo nên sự bề thế, mang vẻ vững chãi qua những bậc tam cấp được ốp đá xanh trang nhã với mục đích làm cho công trình thêm uy nghi. Ngoài ra, viền móng được ốp gạch giúp tạo sự chắc chắn và sinh động hơn, hơn nữa nó còn giúp bảo vệ khỏi các tác nhân tự nhiên xâm hại như rêu, nấm, mốc làm ảnh hưởng đến mỹ quan.
Toàn bộ hệ thống cột, kèo được thiết kế theo hệ thống bê tông giả gỗ. Mang lại độ bền cao với giá thành rẻ hơn so với vật liệu gỗ tự nhiên, không những vậy, bê tông xây dựng có khả năng tạo hình phong phú đẹp mắt về mặt phong thủy.

Thêm một đặc điểm để nhận biết mẫu thiết kế nhà thờ 3 gian 8x8m tâm linh này chính là phần mái được thiết kế theo kiểu mái ngói đỏ tươi truyền thống. Chính giữa đỉnh mái được đặt một bức trướng phong thủy ghi tên dòng họ, hai bên bờ nóc có chạm nổi đôi kìm có tác dụng đảm bảo an toàn cho ngôi nhà từ đường, tránh thiên tai, hỏa hoạn. (vì theo quan niệm dân gian). thì con kìm là linh vật có chức năng gọi mưa gọi gió, dập lửa). Điểm nhấn của mái đình đó chính là những chi tiết hình thú trang trí xung quanh được sắp xếp hài hòa, cân đối, góp phần gợi nhớ công ơn sinh thành của ông cha ta cách đây hàng nghìn năm. , lưu truyền đến nay để thế hệ con cháu nhìn vào và lấy đó làm tấm gương sáng để học tập và noi theo.
Mặt bằng công năng mẫu thiết kế nhà thờ họ 3 gian sang trọng
Tổng thể mẫu thiết kế nhà thờ 3 gian 8x8m đẹp được thiết kế từ bố cục đến các chi tiết phối hợp đi kèm tạo nên sự hoàn mỹ, từ mái ngói xếp tầng bắt mắt cho đến sự liên kết. liên kết chặt chẽ từ hệ thống cột, kèo đến hệ thống móng, móng cân đối.

Không gian bố trí bên trong mẫu thiết kế nhà thờ 3 gian 8x8m gồm: gian chính, gian thờ 3 gian với bàn thờ lớn nhất ở giữa gọi là chính điện, hai gian bên cạnh là gian thờ phụ dùng để thờ cúng. tất cả các thành viên của cùng một thị tộc. Nhìn chung, không gian bên trong nhà thờ họ vô cùng đầy đủ các công năng cần thiết để phục vụ cho việc thờ cúng của con cháu một cách dễ dàng và thoải mái.

Trên đây là những thông tin về mẫu thiết kế nhà thờ 3 gian 8x8m đẹp mà kiến trúc sư công ty nhà đẹp đã thực hiện cho gia đình anh Dũng ở Vĩnh Phúc. Công trình được thực hiện, hoàn thành mang vẻ đẹp giản dị, mộc mạc nhưng gần gũi thân thương. Nếu gia đình có mong muốn, nhu cầu xây dựng, thiết kế kiến trúc, nội ngoại thất có thể liên hệ trực tiếp với các kiến trúc sư của chúng tôi để được tư vấn phương án phù hợp nhất.
- Mẫu nhà thờ họ bằng bê tông cấp 4 mái 12x9m tại Thanh Hóa NDNTH29
- Thiết kế nội thất nhà thờ họ đẹp