Mẫu nhà thờ họ 8x8m tại Hưng Yên NDNTH21
Đây là công trình thiết kế và thi công trọn gói nhà thờ họ 8x8m do công ty Ngôi Nhà Đẹp tư vấn thiết kế và xây dựng. Hiện tại dự án đang trong quá trình hoàn thiện chúng tôi sẽ cập nhật những thông tin mới nhất về dự án để quý khách hàng tham khảo. Hiện tại đang triển khai phần móng trước và khi nào hoàn thiện mình sẽ chia sẻ với các bạn sản phẩm và hình ảnh thực tế của công trình để các bạn tham khảo.
Hiện nay xu hướng thiết kế nhà ở kết hợp nhà thờ đang thu hút rất nhiều sự quan tâm của các chủ đầu tư và xây dựng bởi đây là một hình thức xây dựng khá mới “2 trong 1” tức là vừa có thể làm không gian ngoài trời. Một không gian tiện nghi dùng để thờ cúng tổ tiên và cũng là nơi nghỉ ngơi, thư giãn của các thành viên trong gia đình. Nhắc đến kiến trúc thiết kế nhà không thể không kể đến những mẫu nhà thờ cấp 4 mái ngói đỏ đặc trưng của 63 tỉnh thành Việt Nam. Các công trình thiết kế và thi công nhà thờ họ 8x8m đều mang đậm dấu ấn, nét riêng của từng dòng họ trên khắp các vùng miền. Thiết kế nhà thờ họ kết hợp nhà ở mang đậm giá trị tâm linh, thể hiện nét đẹp gìn giữ văn hóa truyền thống uống nước nhớ nguồn của mỗi người dân Việt Nam từ bao đời nay.
Hiểu được giá trị và ý nghĩa to lớn đó, mẫu thiết kế nhà thờ họ 8x8m do chị Hà (hiện đang sinh sống và làm việc tại tỉnh Hưng Yên) thiết kế và xây dựng với mục đích vừa là nơi thờ cúng vừa là nơi thờ cúng. Ban thờ gia tiên vừa là nơi để gia đình bạn thư giãn, nghỉ ngơi sau một ngày làm việc mệt mỏi, căng thẳng ...
Giới thiệu mẫu thiết kế nhà thờ họ 8x8m tại Hưng Yên
Nhà đẹp rất hân hạnh được giới thiệu đến các bạn mẫu thiết kế nhà gồm 1 công trình nhà thờ họ và 1 công trình phụ được thiết kế trên tổng thể lô đất có kích thước 23x26m.
- Chủ đầu tư dự án: Đỗ Ngọc Mai
- Địa điểm xây dựng: Khoái Châu - Hưng Yên
- Tổng thể gồm: nhà phụ 90m2, nhà thờ họ 60m2
- Nhà thờ họ: Kích thước 8x8m
- Nhà phụ: Kích thước 5x17m
- Tổng kinh phí xây dựng trọn gói: 2,1 tỷ đồng
Phối cảnh 3D mẫu thiết kế và thi công nhà thờ họ 8x8m tại Hưng Yên
Hình ảnh mẫu 3D nhà thờ họ 8x8m mái ngói đỏ tươi đã đi sâu vào tiềm thức của người dân miền Bắc, đặc biệt là thế hệ trước. Đó là những hình ảnh gắn liền với tuổi thơ của nhiều người, những mẫu nhà thờ họ đều được xây dựng theo kiến trúc nhà cấp 4 mái ngói đỏ tươi, khá đơn giản nhưng có lẽ sẽ không bao giờ phai nhạt trong tương lai. tâm thức của mỗi con người Việt Nam.

Các mẫu thiết kế xây dựng nhà thờ họ 8x8m được thiết kế theo kiểu mặt tiền rộng. Không gian kiến trúc nhà thờ họ thường có điểm nhấn tạo điểm đặc biệt, cổ kính cũng như tạo sự bề thế, rộng lớn cho không gian. Vì vậy, mẫu thiết kế nhà độc đáo của gia đình chị Hà được chúng tôi thiết kế theo kiểu nhà 3 gian có sự hài hòa trong cách bố trí và phân chia các mảng kiến trúc một cách hợp lý tạo nên sự tiện nghi và không gian thoáng cho ngôi nhà.

Cửa chính của mẫu thiết kế nhà thờ trọn gói 8x8m được làm hoàn toàn bằng chất liệu gỗ tự nhiên sang trọng và tinh tế. So với các chất liệu khác như cửa nhôm kính thì chất liệu gỗ tự nhiên vẫn là chất liệu đáng tin cậy nhất, đắt nhất và thu hút người dùng nhất. Chất liệu gỗ tự nhiên không bị cong vênh do yếu tố thời tiết, ít bị mối mọt, đục phá. Gỗ tự nhiên giúp giữ nguyên màu sắc tự nhiên theo thời gian, không ảnh hưởng đến vẻ đẹp thẩm mỹ và chất lượng của toàn bộ công trình.


Không gian mặt tiền của nhà thờ họ cổ được thiết kế đối xứng qua các chi tiết ở sảnh chính, qua các cột tròn bê tông giả gỗ. Nếu như trước đây, nhà thờ họ hay đình, chùa, miếu đều được thiết kế và thi công bằng chất liệu truyền thống hoàn toàn bằng gỗ tự nhiên. Trong hóa học, các vật liệu mới lần lượt được sử dụng và thay thế cho các vật liệu truyền thống. Với ưu điểm thi công nhanh, bền, mẫu mã đẹp, không bị ảnh hưởng và tác động bởi các yếu tố thời tiết, mưa gió hay mối mọt nên các loại vật liệu cao cấp như bê tông giả gỗ ngày càng được tin dùng. ngày càng phổ biến.

Kiến trúc của mẫu thiết kế nhà thờ trọn gói 8x8m kết hợp nhà ở thường có cách bố trí và trang trí hình khối khá đơn giản. Hệ thống mái ngói là tổng thể kết hợp hài hòa từ kích thước đến màu sắc và vật liệu hoàn thiện. Màu sắc chủ đạo của ngôi nhà sử dụng tông màu nâu và đỏ, trắng - đây là những gam màu trầm ấm rất phù hợp với không gian kiến trúc nhà thờ họ kết hợp nhà ở. Màu trắng nhạt được sơn cho tường ngoài của ngôi nhà dùng để ở, còn màu đỏ được sử dụng cho hệ thống mái ngói, màu nâu đỏ của hệ thống cửa, cột bê tông giả gỗ. Màu sắc được kết hợp hài hòa khá tinh tế phù hợp với những thiết kế đơn giản nhưng không kém phần hiện đại và trang nghiêm. Việc lựa chọn màu sắc hài hòa không chỉ mang lại vẻ đẹp thẩm mỹ cho tổng thể ngôi nhà mà còn phù hợp với yếu tố tâm linh, phong thủy của ban thờ bên cạnh.
Mẫu thiết kế xây dựng nhà thờ họ 8x8m mái ngói kết hợp nhà ống có kết cấu khá đơn giản nhưng tạo được sự gần gũi, thân thuộc và hơn hết là sự đại diện cho không gian kiến trúc nhà cấp 4. 3 ngăn của ông cha ta từ xa xưa. Mái ngói đỏ được đánh giá là rất phù hợp với điều kiện thời tiết của Việt Nam, đặc biệt là khu vực miền Bắc khi có mùa đông lạnh giá và mùa hè nóng nực. Những ngôi nhà cấp 4 mái ngói khá thoáng nên vào mùa hè rất mát mẻ. Nhìn chung, nhà cấp 4 mái ngói rất phù hợp với không gian làng quê, sân vườn, yên tĩnh, hài hòa, mát mẻ. Chính vì vậy xu hướng xây nhà kết hợp nhà thờ họ ngày càng trở nên phổ biến trong thời gian gần đây.



Không gian nhà ở cũng khá hiện đại, không gian nhà ở được thiết kế nhiều, hệ thống thông gió, cửa kính từ chính ra phụ, cửa sổ, giúp đón được nhiều nắng và gió tự nhiên. Bước vào nhà khiến không gian bên trong ngôi nhà trở nên thông thoáng và mát mẻ hơn bao giờ hết.
Hệ thống cây xanh xung quanh cũng làm nên vẻ đẹp của mẫu nhà cấp 4 hiện đại này. Cây xanh giúp mang nguồn năng lượng tươi mới, hài hòa vào nhà, tạo cảm giác trong lành, thông thoáng, gần gũi với thiên nhiên. Mang đến cho các thành viên trong gia đình nơi thư giãn sau một ngày làm việc mệt mỏi.

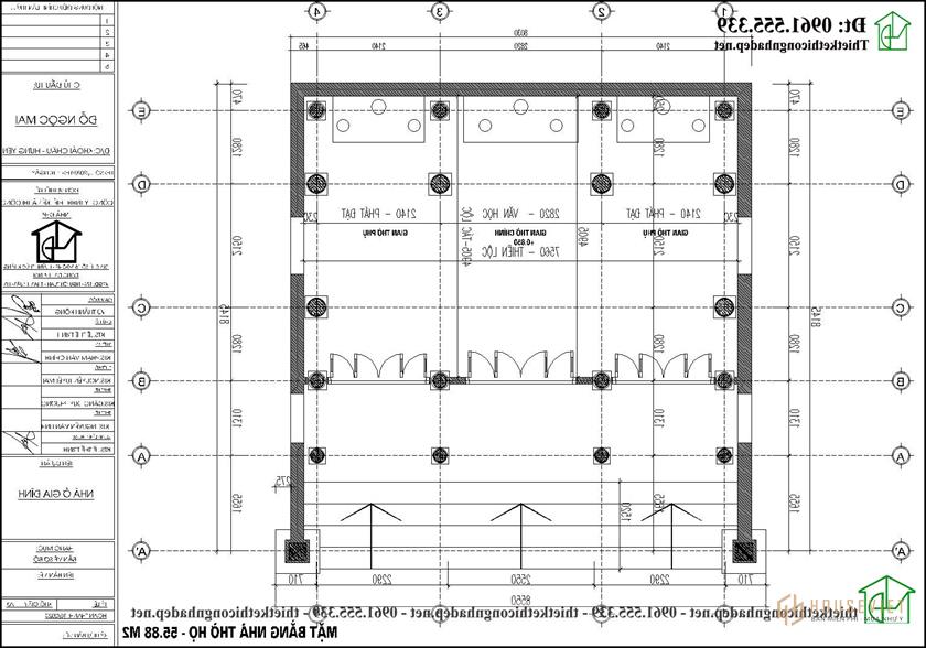
Mặt bằng công năng sử dụng của nhà thờ họ 8x8m tại Hưng Yên

Mẫu thiết kế nhà thờ mái ngói 8x8m trọn gói tại Hưng Yên với diện tích khá rộng với 3 gian. Bố cục sắp xếp hài hòa, các kiến trúc sư đã thiết kế từ cửa chính đến 3 gian thờ rộng rãi được đặt trong 3 gian của nhà thờ. Các vật dụng được bài trí và bày biện rất nhiều bên trong phòng thờ, mang đến không gian ấm cúng, trang nghiêm, thuận tiện cho con cháu thắp hương tưởng nhớ tổ tiên.

Đến với không gian nhà ở, điều đầu tiên qua cửa 4 cánh chính là không gian phòng khách rộng rãi - nơi dùng để tiếp khách. Bên phải phòng khách là khu vực bếp nấu với bàn bếp rộng rãi dễ dàng nấu nướng cho cả gia đình. Tiếp đến là không gian 2 phòng ngủ tiện nghi với đầy đủ nội thất cao cấp phục vụ cho việc ngủ nghỉ của các thành viên. Có phòng ngủ chính, phòng vệ sinh khép kín. Cuối cùng là khu vệ sinh chung được thiết kế cạnh bếp để tiện cho việc sinh hoạt cá nhân và riêng tư một cách dễ dàng.
Ngắm nhìn hình ảnh phối cảnh 3D và bản vẽ công năng của mẫu thiết kế nhà thờ họ mái ngói 8x8m trọn gói do kiến trúc sư công ty nhà đẹp thiết kế rất phù hợp với nhu cầu sử dụng của nhiều gia đình. Người chủ hiện tại. Quý khách có nhu cầu vui lòng liên hệ với chúng tôi để được tư vấn miễn phí.

Đây là bản vẽ mặt bằng nhà thờ họ với chiều rộng 8,05m và chiều sâu 8,145m. Vui long tham khảo thông tin đo.
Hình ảnh thi công thực tế của dự án
Công ty chúng tôi sẽ liên tục cập nhật những hình ảnh thi công thực tế của công trình để quý khách hàng tham khảo. Hiện tại chỉ còn vài ngày nữa công trình sẽ hoàn thành nên chúng tôi liên tục cập nhật để các bạn tham khảo. Khi công trình hoàn thành Ngôi nhà xinh sẽ chia sẻ với các bạn những hình ảnh và video về công trình này.






Nếu các bạn cần nhà đẹp hỗ trợ thêm về công trình nhà thờ họ hoặc cần tư vấn thiết kế thi công trọn gói nhà thờ họ 8x8m như mẫu nhà thờ họ này. Hãy liên hệ với Nhà Đẹp để được tư vấn thêm. Cám ơn rất nhiều
- Đơn giá xây dựng nhà thờ họ, dự toán xây dựng nhà thờ họ tại Ninh Bình
- Nhà truyền thống và nhà thờ họ ở Thái Bình NDNTH22
- Mẫu thiết kế nhà phố 3 tầng 5x20m hiện đại NDNP3T68