Mẫu nhà thờ họ gỗ 2 gian 10x8m tại Hà Nội NDNTH25
Có nhiều người xây nhà thờ họ để thờ cúng nhưng đối với mẫu nhà thờ họ 2 gian 10x8m bằng gỗ này mà chúng tôi thiết kế cho gia chủ ở Hà Nội thì mục đích chính không phải là để thờ cúng. Tất nhiên nhà nào cũng phải thờ thủ công nhưng mục đích chính của gia chủ là làm nhà để ở nên trong bản vẽ mặt bằng công năng sử dụng của nhà thờ họ này chúng ta sẽ thấy được không gian sinh hoạt chính của các thành viên trong gia đình. Cụ thể, tầng 1 sẽ có bếp, khu ăn uống và tầng 2 bố trí 2 giường ngủ cùng 1 vệ sinh. Quy mô của công trình này là vì nó là một ngôi nhà cho các gia đình, không giống như một nhà thờ họ cho hay cho họ. Tuy nhiên nhìn bề ngoài bạn sẽ thấy nó giống với nhà thờ họ nhưng về công năng, mục đích sử dụng là nhu cầu của gia đình. Thay đổi công năng phù hợp không khó, về cơ bản nguyên lý hoạt động của hai mô hình, hai kiểu nhà này là giống nhau.
Mẫu nhà thờ họ 2 gian bằng gỗ 10x8m mang một ý nghĩa to lớn đó là nơi lưu truyền những giá trị truyền thống tốt đẹp cho hậu thế. Đồng thời cũng là nơi lưu giữ gia phả của cả một dòng họ, nơi con cháu tưởng nhớ tổ tiên. Chính vì vậy mà hôm nay công ty chúng tôi xin giới thiệu đến quý vị và các bạn mẫu thiết kế nhà thờ họ 2 gian 10x8m bằng gỗ của gia đình anh Biều tại Hà Nội do đội ngũ kiến trúc sư bên ngoài thực hiện. Chúng tôi lên ý tưởng và thực hiện chúng. Mời các bạn bớt chút thời gian quý báu của mình tham khảo bài viết dưới đây để biết thêm thông tin.
Thông tin về mẫu nhà thờ họ 2 gian bằng gỗ 10x8m
Áp dụng vào ngôi nhà này ta tính được 2 kiểu nhà trong đó 1 kiểu là đồ thờ gia tiên bằng gỗ, tùy theo chất lượng gỗ, loại gỗ mà bạn chọn mà đơn giá cũng khác nhau. Dự toán này được áp dụng cho nhà thờ họ bằng bê tông cốt thép nên bạn có thể tham khảo đơn giá xây dựng.
- Địa điểm xây dựng: Hà Nội
- Kích thước nhà: 10x8m
- Chủ đầu tư: Anh Biều
- Diện tích sàn 1: 82m2
- Diện tích áp mái nhà thờ tầng 2: 94m2
- Diện tích cầu thang: 9,94 m2
- Đơn giá xây dựng tầng 1: 82 × 5.500.000 = 451.000.000 vnđ
- Đơn giá xây dựng nhà thờ tầng 2: 94 × 10.000.000 = 94.000.000 đồng
- Giá trị xây dựng cầu thang: 9,94 × 3.500.000 = 34.790.000 đồng
- Tổng giá trị xây dựng nhà: 451.000.000 + 94.000.000 + 34.790.000 = 1.425.790.000 đồng
Phối cảnh 3D mẫu nhà thờ gỗ 2 gian
Đây là mẫu nhà thờ họ 2 tầng bê tông giả gỗ 10x8m mà chủ đầu tư mong muốn thiết kế vừa là nơi sum họp của gia đình vừa là nơi thờ cúng tổ tiên. Sự kết hợp rất tài tình giữa phong cách hiện đại và truyền thống đã tạo nên sự khác biệt tuyệt vời, giúp các thành viên có được cảm giác cân bằng và hài hòa giữa hai kiến trúc độc đáo quy tụ trong một không gian.

Hai tone màu chủ đạo trong mẫu nhà thờ 2 tầng gỗ 10x8m là màu trắng và nâu đỏ. Màu trắng là màu trung tính làm nền để làm nổi bật màu nâu đỏ. Về lý thuyết, hai gam màu này đối lập nhau nhưng khi kết hợp với nhau trên cùng một mẫu xe lại tạo nên điểm nhấn nổi bật, hút mắt không hề nhẹ, giúp thu hút mọi ánh nhìn của người qua đường. quay lại để ngắm vẻ đẹp hùng vĩ, lung linh của nó.
Với cửa chính dùng để ra vào được sử dụng hoàn toàn bằng cửa gỗ màu nâu đẹp, đảm bảo cách âm, chống ồn hiệu quả. Còn lại, các khu vực cửa sổ, cửa phụ đều được thay thế bằng hệ thống cửa kính cường lực khung nhôm màu đen tạo điều kiện hấp thụ ánh nắng vào không gian bên trong một cách trọn vẹn nhất.

Điểm độc đáo nhất mà ai cũng có thể dễ dàng nhận thấy chính là hệ thống cầu thang ngoài trời vô cùng chắc chắn. Bậc cầu thang dùng để đi lên khu vực tầng 2 được sử dụng sơn giả đá bền đẹp. Đặc biệt lớp sơn giả đá rất khó bám bẩn và dễ lau chùi góp phần làm cho không gian ngoại thất của mẫu nhà thờ gỗ 2 gian 10x8m luôn tươi mới, sáng bóng và vĩnh cửu. Vào lúc.
Toàn bộ hệ thống cột, kèo, lan can cầu thang, lan can chánh điện của mẫu nhà thờ họ 2 gian bằng gỗ 10x8m đều được sử dụng chất liệu gỗ cao cấp. Đây là loại vật liệu mang đến độ bền và đẹp rất cao cùng với đó là chi phí đầu tư rẻ hơn rất nhiều so với sử dụng gỗ tự nhiên, không những vậy sử dụng gỗ còn rất bền giúp giữ được vẻ đẹp của gỗ. Thẩm mỹ đẹp và sang trọng cho ngôi nhà trường tồn theo tháng năm.

Mái ngói đỏ nâu truyền thống ấn tượng được sử dụng trong mẫu nhà thờ họ 2 gian 10x8m bằng gỗ này mang đến nét thẩm mỹ độc đáo và vẻ đẹp nổi bật, tinh xảo. Mái ngói trong mẫu nhà thờ họ 2 tầng này là một trong những yếu tố vô cùng quan trọng để tạo nên giá trị thẩm mỹ, cũng như vẻ đẹp hình thức hoàn thiện và sắc nét nhất. Màu sắc mái ngói được sử dụng là gam màu truyền thống pha chút cổ kính, mộc mạc giản dị rất phù hợp với mọi yếu tố phong thủy. Mái ngói được sử dụng trong mẫu nhà thờ 2 gian 10x8m bằng gỗ này thực sự mang đến vẻ đẹp hài hòa, gần gũi, ẩn chứa ý nghĩa may mắn, thuận buồm xuôi gió, thịnh vượng… đến với mọi thành viên trong gia đình chủ đầu tư.

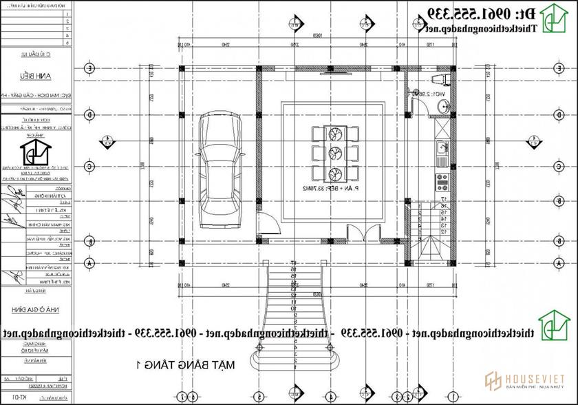
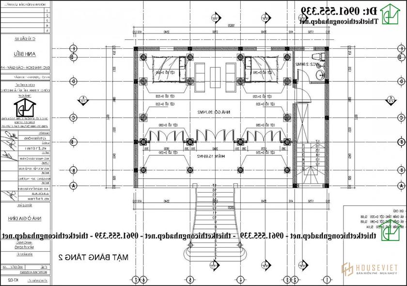
Mặt bằng công năng nhà thờ họ gỗ 2 tầng 10x8m

Đến với tầng 1 của mẫu nhà thờ họ 2 tầng 10x8m bằng gỗ là phòng bếp hiện đại được trang bị đầy đủ các thiết bị cao cấp phục vụ cho việc sáng tạo và nấu những món ăn ngon. 1 phòng ăn rộng rãi - nơi hâm nóng tình cảm gia đình. Phòng vệ sinh chung cuối phòng bếp tiện nghi rất thuận tiện cho việc đáp ứng nhu cầu sinh hoạt cá nhân của các thành viên.

Tầng 2 gồm: 1 phòng rất rộng rãi, được bố trí nội thất cơ bản như giường ngủ, bộ bàn ghế, tủ thờ,… Nơi đây vừa dùng để tiếp khách vừa để thờ cúng tổ tiên. Nó còn được dùng để nghỉ ngơi, thư giãn cho các thành viên sau một ngày làm việc mệt mỏi. 1 phòng vệ sinh chung tiện nghi, gần khu vực cầu thang.
Trên đây là toàn bộ những thông tin liên quan đến mẫu nhà thờ họ 2 gian bằng gỗ 10x8m của gia đình anh Biều ở Hà Nội. Nếu quý vị và các bạn yêu thích mẫu nhà thờ họ này và có nhu cầu tư vấn thiết kế, hãy liên hệ trực tiếp với đội ngũ kiến trúc sư tài ba của chúng tôi để được tư vấn miễn phí!
- So sánh giữa làm nhà thờ họ bằng bê tông và nhà thờ họ bằng gỗ
- Mẫu thiết kế mộ tổ 20x25m tại Thanh Hóa đẹp NDNTH26