Mẫu nhà thờ kết hợp nhà ở 1 tầng tại Nam Định NDNTH23
Trong bài viết này Nhà đẹp sẽ chia sẻ với các bạn 2 phương án của mẫu nhà thờ kết hợp nhà ở 1 tầng tại Nam Định. Vì sao lại là 2 phương án vì thực ra kiểu dáng nhà thì vẫn giống nhưng mà vị trí, công năng của nhà lại có sự khác biệt. Các bạn sẽ thấy được trong phần hình ảnh của công trình mà thôi. Sau khi đã thiết kế xong nhưng gia chủ có mời thầy phong thủy về xem lại công năng và vị trí nhà cho nên đã điều chỉnh và sửa đổi lại. Chúng tôi đã phải sửa lại và điều chỉnh lại công năng và phối cảnh để có thể gửi lại cho gia chủ. Và trong bài viết này Nhà đẹp sẽ chia sẻ với các bạn 2 phương án để các bạn có thể có cái nhìn tổng quan nhất về tổng thể cũng như vị trí bố trí, sắp xếp của căn nhà ở 1 tầng kết hợp với nhà thờ cho gia đình nhé.
Những mẫu nhà thờ kết hợp nhà ở được đánh giá rất cao nhờ vẻ đẹp bình yên, êm đềm và khơi gợi đến những giá trị xa xưa rất đáng trân quý. Không khó để bắt gặp những gia đình sở hữu cho mình những mẫu nhà thờ kết hợp nhà ở 1 tầng mái ngói nằm len lỏi giữa những con đường làng quanh co. Nó đã trở thành một hình ảnh quen thuộc và in dấu trong kí ức của mỗi người dân về một nơi gọi là quê nhà yên ấm, thanh bình. Gia đình chú Bài ở Nam Định tìm đến với công ty nhà đẹp chúng tôi với mong muốn được tìm về với một không gian nhà ở truyền thống kết hợp với nhà thờ sạch sẽ, khang trang. Chúng tôi nghĩ mẫu nhà thờ kết hợp nhà ở 1 tầng chúng tôi muốn giới thiệu cho các bạn hôm nay là một mẫu nhà vôi cùng độc đáo hiện đại và rất phù hợp với nhiều gia đình đang sinh sống ở vùng nông thôn hiện nay. Mời các bạn và quý vị cùng theo dõi nhé!
Thông tin chi tiết nhà thờ kết hợp nhà ở 1 tầng
Hiện tại công trình này được chúng tôi thiết kế và thi công trọn gói cho công trình, tổng kinh phí xây dựng nhà là hơn 1,.7 tỉ chưa tính cổng, hàng rào và sân vườn. Nếu tính tổng thể cho cả nhà này thi chi phí khoảng hơn 2 tỉ nhé. Hiện tại công trình đang trong giai đoạn đổ cột và xây tường bao, tường ngăn. Nếu các bạn có dịp về qua khu này có thể qua thăm quan những sản phẩm của chúng tôi nhé.
- Địa điểm: Nghĩa Hưng – Nam Định
- Chủ đầu tư: Chú Bài – Anh Nam
- Tổng giá trị hoàn thiện: 1.7 tỉ
- Hình thức thi công: Thi công trọn gói
- Kích thước nhà thờ: 6.77×7.03m, nhà 3 gian
- Kích thước nhà phụ: 14x11m gồm 4 phòng ngủ
Phối cảnh 3D mẫu nhà thờ kết hợp nhà ở 1 tầng
Đến với nhà ở thì không gian mặt tiền được sử dụng gam màu trắng chủ đạo: Tông màu trắng kết hợp với màu xanh lam của mái ngói mang lại cảm giác của sự chân thành, mộc mạc, sang trọng cho tổng thể không gian kiến trúc mặt tiền. Gam màu xanh trắng kết hợp hài hòa giữa khoảng không thiên nhiên mang lại những cảm giác của sự nhẹ nhàng, phóng khoáng và đầy xúc cảm. Phần tường của toàn bộ ngoại thất được sơn toàn bộ màu trắng, nhưng không bị đơn điệu mà lại trở nên gần gũi, thân thương và đầy ấn tượng bởi hệ thống trang trí tường kẻ chỉ lồi lõm đơn giản khiến cho không gian ngoại thất thêm phần ấn tượng và thu hút tạo không gian rộng lớn và sự phá cách cho không gian tổng thể của ngôi nhà. Và trong mẫu nhà thờ kết hợp nhà ở 1 tầng này sẽ có 2 phương án cho nên chúng tôi sẽ chia thành 2 phần để các bạn có thể tiện theo dõi nhé.
Phương án chốt thiết kế mẫu nhà thờ kết hợp nhà ở 1 tầng

Nhìn tổng thể cảnh quan của mẫu nhà thờ kết hợp nhà ở 1 tầng từ trên cao xuống chúng ta có thể thấy được ở mẫu nhà này có 1 khoảng sân vườn rất rộng rãi, được quy hoạch rất hợp lý được lát hệ gạch chống trơn cao cấp giúp cho việc đi lại và di chuyển của các thành viên được dễ dàng và không bị ngã vào những ngày trời mưa gió. Đồng thời cũng tạo ra một khoảng không gian mát mẻ, là nơi các thành viên có thể giải trí, tu tập tổ chức các buổi liên hoan, ăn uống ngoài trời sau một ngày làm việc đầy căng thẳng và mệt mỏi.

Đến với mẫu nhà thờ kết hợp nhà ở 1 tầng với khu vực nhà thờ thì mái ngói đỏ tươi chắc chắn là hình ảnh gắn liền với tuổi thơ của không ít người và cũng đã đi cùng một khoảng thời gian khá dài. Cửa chính của nhà thờ được làm toàn bộ bằng vật liệu gỗ tự nhiên chắc khỏe sang trọng và đẳng cấp vô cùng. So với các vật liệu khác như cửa nhôm kính, cửa gỗ khung kính,… thì vật liệu gỗ tự nhiên vẫn là đắt nhất, thu hút người nhìn nhiều nhất. Chất liệu gỗ tự nhiên không bị cong vênh, ảnh hưởng do yếu tố thời tiết, ít bị ảnh hưởng bởi mối mọt xâm hại. Vì thế hệ cửa gỗ rất phù hợp với không gian các nhà thờ bởi nó có thể làm toát lên vẻ cổ kính, tinh tế, đẳng cấp cho bộ mặt của gia đình chủ đầu tư hay là 1 dòng họ.

Với góc nhìn này chúng ta sẽ nhìn thấy tổng thể toàn bộ nhà ở cũng như nhà thờ, với mặt tiền rộng 14m cho nhà ở và gần 7m mặt tiền cho nhà thờ. Nếu các bạn đang có định làm một công trình có quy mô như thế này thì cần phải có một mảnh đất đủ rộng thì mới có thể làm được nhé.

Phương án mái được sử dụng trong nhà ở là kiểu mái Nhật hiện đại, sang trọng. Biện pháp thực hiện là đổ bê tông phần mái sau đó dán ngói lên. Mái Nhật còn được thiết kế giật cấp theo kiểu tầng lớp, tạo nên sự sang trọng, bề thế mang lại nhiều lợi ích phong phú cho ngôi nhà như giúp điều hòa không khí cho toàn bộ không gian nội thất mang lại một cuộc sống vô cùng độc đáo, thoáng mát, tinh tế, đẳng cấp cho các thành viên trong gia đình chủ đầu tư.

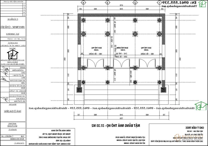
Đây là phần mặt bằng định vị vị trí của công trình, đường đi cùng với ranh giới của lô đất. Các bạn có thể sử dụng để tham khảo cho nhà mình nhé. Do công trình làm quá gấp cho nên phần mặt bằng vẽ chưa được chi tiết, chưa được công phu cho lắm. Nên nếu các bác đang định xây nhà thờ thì nên chuẩn bị thời gian thiết kế khoảng 1-2 tháng cho một công trình. Đừng để thời gian gấp rút rồi sẽ khó tránh khỏi những sai xót đáng có. Có những khách hàng để xây nhà thờ thì thời gian thiết kế lên tới 1 năm trời, sau khi hoàn thiện xong mới bắt đầu thi công.

Thiết kế nhà thờ tại Nam Định với diện tích khá rộng rãi, thoáng mát nên được xây dựng với kiến trúc 3 gian như các mẫu nhà thờ truyền thống khác. Với bố cục 3 gian nhà, các kiến trúc sư thiết kế có 3 cửa chính đi vào là không gian 3 bàn thờ cao to – nơi để thắp hương thờ cúng báo hiếu ông bà tổ tiên. Không gian ấm cúng rộng rãi rất phù hợp với những họ tộc có số lượng vừa phải không quá đông.

Đi qua sảnh của mẫu nhà thờ kết hợp nhà ở 1 tầng đầu tiên là không gian phòng khách với diện tích khá rộng rãi, thoáng mát – đây là nơi dùng để tiếp khách của gia đình. Tiếp đến là khu vực 4 phòng ngủ được thiết kế gần nhau tạo sự kết nối hài hòa, ấm cúng. 2 nhà vệ sinh chung bố trí gần khu vực các phòng ngủ tạo sự thuận tiện cho việc sinh hoạt đi lại của các thành viên. Cuối cùng là phòng bếp – ăn với bàn bếp chữ L và bàn ăn rộng rãi – nơi gia đình chủ đầu tư tổ chức ăn uống, trò chuyện thư giãn, thể hiện tình cảm gắn bó sau ngày vất vả.
Phương án 2: Phương án tham khảo mẫu nhà thờ kết hợp nhà ở 1 tầng mái nhật
Như đã nói ở trên đây là phương án đầu tiên chúng tôi đã thiết kế cho gia chủ, các bạn có thể tham khảo thấy vị trí của các căn nhà đã được thay đổi lại nhé. Mời các bạn cùng tham khảo và cho công ty Nhà đẹp biết những đánh giá của các bác về mẫu thiết kế nhà này nhé.




Trên đây là mẫu nhà thờ kết hợp nhà ở 1 tầng của gia đình chú Bài ở Nam Định do công ty nhà đẹp thiết kế và khởi công vào đầu năm 2021. Dự kiến ngôi nhà sẽ hoàn thiện vào thời gian sắp tới đây. Nếu quý vị có nhu cầu tư vấn thiết kế hoặc thi công trọn gói vui lòng liên hệ ngay với công ty nhà đẹp chúng tôi qua hotline, zalo để được tư vấn miễn phí.
Thiết kế nội thất mẫu nhà thờ kết hợp nhà ở 1 tầng
Hiện tại công trình đang sắp đi vào giai đoạn cuối và chuẩn bị bàn giao cho công trình. Nhà đẹp có thiết kế thêm phần nội thất để thi công trọn gói cả nhà và nội thất. Vì thế chúng tôi sẽ chia sẻ thêm cho các bạn những hình ảnh thiết kế nội thất của công trình này luôn để các bạn cùng tham khảo nhé. Phần thiết kế nội thất thì gia chủ chỉ thiết kế không gian chung của công trình bao gồm phòng khách, phòng bếp và có thêm cả phần báo giá thi công nội thất luôn để các bạn cùng tham khảo. Vật liệu sử dụng trong thiết kế là gỗ công nghiệp MDF cốt xanh của An Cường phủ Melamin
Thiết kế nội thất phòng khách gỗ óc chó đẹp mẫu nhà thờ kết hợp nhà ở 1 tầng
Nhìn trong thiết kế các bạn sẽ thấy toàn bộ phần nội thất được thiết kế bằng gỗ óc chó với phong cách hiện đại nhưng vật liệu sử dụng để thi công là gỗ công nghiệp phủ Melamin. Bộ bàn ghế phòng khách được làm bằng gỗ tần bì sơn giả óc chó.



Thiết kế nội thất phòng bếp hiện đại nhà ở 1 tầng
Đây là phần thiết kế nội thất phòng bếp, không gian thiết kế của bếp liền cùng với phòng khách và được ngăn cách với nhau bằng 1 chiếc tủ rượu như các bạn đã thấy ở trên. Không gian này vừa kín lại vừa hở và không sử dụng tường xây để ngăn cách giống như ở các vùng nông thôn nữa.




Báo giá thi công nội thất mẫu nhà thờ kết hợp nhà ở 1 tầng tại Nam Định
Đây là đơn giá được áp dụng tại thời điểm hiện hành và các bạn có thể tham khảo, hiện nay giá vật tư đầu vào của gỗ an cường và thái lan đang tăng lên chóng mặt và các loại vật tư xây dựng khác cũng tăng lên. Thế nên nếu khi các bạn thi công các bạn hãy liên hệ với Nhà đẹp để nhận được báo giá theo thời điểm hiện tại nhé.

Trên đây là những chia sẻ của Nhà đẹp về mẫu thiết kế mẫu nhà thờ kết hợp nhà ở 1 tầng cùng với thiết kế nội thất của khu nhà ở. Xin mời các bạn cùng đọc và tham khảo, nếu các bạn cần hỗ trợ gì hãy liên hệ với Nhà đẹp để được tư vấn thêm nhé.
Hình ảnh thực tế nhà thờ họ kết hợp với nhà ở 1 tầng mái nhật đẹp
Những ngày cuối năm công trình đã được hoàn thiện và bàn giao, hiện tại toàn bộ đội thợ đang bố trí và sắp xếp thu dọn đồ để chuyển về quê. Các bạn có thể xem qua những hình ảnh thực tế của công trình mà chúng tôi đã thi công trọn gói, xây nhà trọn gói cho khách hàng dưới đây nhé.





Hiện tại nhà đẹp là đơn vị chuyên thiết kế và thi công trọn gói nhà thờ họ, thi công trọn gói, chìa khóa trao tay các loại nhà ở. Nếu các bạn đang cần tham khảo hay đang cần tìm đơn vị thi công có thể liên hệ với chúng tôi để được tư vấn thêm nhé. Xin cám ơn các bạn đã quan tâm!
- Đơn giá xây dựng nhà thờ họ, dự toán xây nhà thờ họ tại Ninh Bình NDNTH20
- Nhà thờ bê tông giả gỗ 10x8m tại Hưng Yên NDNTH24
- Biệt thự 1 tầng mái nhật 4 phòng ngủ 1 phòng thờ 18x13m tại Vĩnh Phúc NDBT1T121