Mẫu thiết kế biệt thự 2 tầng 6 phòng ngủ 600m2 20x18m NDBT2T130
Đây là một trong những mẫu nhà 2 tầng có số phòng ngủ lớn nhất mà công ty thiết kế. Với tổng diện tích lên đến 600m2 và được bố trí 6 phòng ngủ. Có thể nói đây là một trong những mẫu thiết kế biệt thự 600m2 2 tầng 6 phòng ngủ tốn nhiều thời gian và công sức nhất của chúng tôi. Từ thiết kế mặt bằng công năng, bố trí sân vườn đến bản thiết kế 3D được chỉnh sửa video công phu với đội ngũ kiến trúc sư của Nhà Đẹp. Tác phẩm này xứng đáng là một trong những tác phẩm tiêu biểu, một trong những tác phẩm nghệ thuật nhất của năm nay. Công ty nhà đẹp xin mời các bạn cùng tham khảo công trình biệt thự 2 tầng của chú Đoài ở Vĩnh Phúc này.
Trong mẫu thiết kế biệt thự 2 tầng 6 phòng ngủ diện tích 600m2 20x18m này là kết quả của sự kết hợp tài tình giữa ngôi nhà mang phong cách hiện đại với cảnh quan thiên nhiên tươi đẹp và đầy màu sắc. Sự kết hợp độc đáo và ăn ý giữa vẻ đẹp hiện đại và vẻ đẹp trong lành, mát mẻ của thiên nhiên đã mang đến cho không gian nội ngoại thất của ngôi biệt thự 2 tầng một nét cá tính riêng và mạnh mẽ. , rất khó quên.
Khi thiết kế biệt thự 2 tầng đẹp diện tích 20x18m thường đòi hỏi kiến trúc sư phải am hiểu và có tay nghề cao để có thể dung hòa được yếu tố khắt khe của kiến trúc với sở thích. tính cách và mong muốn của chủ đầu tư. Vậy hãy cùng xem các kiến trúc sư tài ba đã giải quyết vấn đề cụ thể này như thế nào nhé!
Thông tin về mẫu thiết kế biệt thự 2 tầng 6 phòng ngủ 600m2 kích thước 20x18m
Đây là một trong những dự án rất lớn nên giá trị xây dựng của dự án cũng rất cao. Mời các bạn tham khảo cách tính đơn giá xây dựng của mẫu nhà 2 tầng tại Vĩnh Phúc này.
- Địa điểm xây dựng: Vĩnh Phúc
- Chủ đầu tư: Chú Đoài
- Diện tích nhà: 20x18m
- Diện tích sàn 1: 254m2
- Diện tích sảnh tầng 1: 52m2
- Diện tích tầng 2: 217m2
- Diện tích sảnh tầng 2: 50m2
- Diện tích vành mái: 217 × 0,4 = 86,8m2
- Tổng diện tích mái bê tông: 254 + 52 + 217 + 50 + 86,8 = 659,8 m2
- Tổng giá trị xây dựng trên m2 mái bê tông: 659,8 × 5.500.000 = 3.628.900.000 đồng
- Diện tích mái ngói: (217 + 50) x1,6 = 427,2m2
- Tổng giá trị xây dựng mái ngói: 427,2 × 750.000 = 320.400.000 đồng
- Tổng giá trị hoàn thiện biệt thự 2 tầng: 3.628.900.000 + 320.400.000 = 3.949.300.000 đồng
Xem thêm: Biệt thự 2 tầng cổ điển hình chữ L 10x13m tại Hải Phòng NDBT2T129
Phối cảnh 3D mẫu thiết kế biệt thự 600m2 2 tầng 6 phòng ngủ tại Vĩnh Phúc

Mẫu thiết kế biệt thự 2 tầng 6 phòng ngủ 600m2 diện tích 20x18m giải quyết được nhu cầu tiện nghi, thoải mái cho không gian sống và kinh phí xây dựng của gia đình chủ đầu tư. Với thiết kế vuông vắn, công trình đã mang đến sự ấn tượng, độc đáo nhờ cách phối màu hài hòa, sang trọng. Màu trắng chủ đạo được sử dụng cho các mảng tường trát phẳng nhằm làm nổi bật và nổi bật các gam màu trang trí xung quanh. Tất cả các gam màu được sử dụng, bố trí hài hòa, hòa quyện vào nhau khiến không gian ngoại thất trở nên lộng lẫy và đẹp hơn bao giờ hết.

Khu vực tầng 2 được bố trí ban công rộng rãi, thoáng mát. Nó có tác dụng rất lớn là nơi hội tụ, giao thoa, dẫn nguồn năng lượng tích cực từ thiên nhiên bên ngoài vào không gian bên trong ngôi nhà và xét về mặt phong thủy thì ban công là nơi diễn ra quá trình hút sinh khí, cát tường. mang đến sự may mắn và hạnh phúc cho gia đình chủ đầu tư.

Hệ thống phào chỉ, cột,… đã được kiến trúc sư thiết kế và ốp gạch một cách khéo léo. Điều này có tác dụng rất lớn vừa làm cho mẫu thiết kế biệt thự 600m2 2 tầng 6 phòng ngủ diện tích 20x18m2 trở nên nổi bật và còn trở thành lớp bảo vệ, che chắn rất tốt - đây là điều mà mọi người thường chú ý. . sự quan tâm, chú ý nhất. Bể bơi là thứ không thể thiếu đối với một ngôi biệt thự 2 tầng quy mô lớn như thế này.
Xem thêm: Biệt thự mái thái 2 tầng 4 phòng ngủ 14x10m tại Phú Thọ NDBT2T128

Sự kết hợp giữa phong cách hiện đại và mái thái Nhật Bản đã giúp cho mẫu thiết kế biệt thự 2 tầng 6 phòng ngủ 600m2, diện tích 20x18m hiện lên vô cùng thanh thoát, thoáng mát và cao ráo. Không gian ngoại thất ngôi nhà gây ấn tượng mạnh cho bất cứ ai khi ngắm nhìn bởi những đường nét kiến trúc độc đáo, hình khối góc cạnh, vật liệu trang trí độc đáo, mới lạ. Từ đó góp phần tạo nên một diện mạo hoàn toàn mới, sang trọng, bề thế và trường tồn với thời gian.

Mẫu thiết kế biệt thự 2 tầng 6 phòng ngủ 600m2 diện tích 20x18m gây ấn tượng với người nhìn bởi hệ thống cửa được thiết kế dày đặc. Cửa đi và cửa sổ được sử dụng kính khung nhôm cao cấp sang trọng hài hòa với hệ thống lan can ban công kính mang đến không gian sống rộng mở, thoáng mát và thư thái. Đồng thời, với chất liệu kính cường lực cao cấp còn có khả năng cách âm tốt, hấp thụ ánh nắng hiệu quả, mang đến không gian sống mát mẻ, trong lành và thông thoáng cho không gian nội thất.


Khuôn viên sân vườn rộng lớn xanh mát trước biệt thự 2 tầng mái Nhật hiện đại được thiết kế bể bơi sang trọng như công trình khách sạn cao cấp khiến nhiều người phải trầm trồ, ao ước. Thiết kế bể bơi có hình dáng khá vuông vắn và đẹp mắt, xung quanh là cỏ cây tạo nên vẻ đẹp xanh mát và đẳng cấp. Phía trên hồ bơi có những chòi gỗ với những chiếc ghế nằm thư giãn độc đáo, bạn có thể ngồi tại đây để tận hưởng không gian trong lành, mát mẻ của sân vườn rộng rãi. Bể bơi còn giúp điều hòa nhiệt độ, góp phần tạo nên những không gian rất riêng, vô cùng phù hợp với điều kiện khí hậu của nước ta.

Mẫu thiết kế biệt thự 2 tầng 6 phòng ngủ 600m2 diện tích 20x18m được đánh giá là phù hợp với điều kiện thời tiết của Việt Nam, đặc biệt là khu vực miền Bắc khi có mùa đông lạnh giá và mùa hè nóng nực. Biệt thự 2 tầng mái ngói có không gian khá thoáng nên vào mùa hè rất mát, ngược lại do cách nhiệt và điều hòa nhiệt độ tốt nên vào mùa đông sẽ vô cùng ấm cúng. Nhìn chung, các mẫu biệt thự 2 tầng hiện nay đang là xu hướng thiết kế và xây dựng được ưa chuộng nhất.

Hơn nữa, mẫu thiết kế biệt thự 2 tầng 6 phòng ngủ diện tích 20x18m được thiết kế với không gian cảnh quan thiên nhiên tươi đẹp tạo nên cuộc sống thoải mái, mát mẻ và trong lành cho gia đình gia chủ. riêng. Khi nhìn từ trên cao, khuôn viên sân vườn được bố trí rất khoa học, hợp với phong thủy, sân vườn có sự kết hợp của cây xanh, thảm cỏ, hoa lá, chòi nghỉ ngơi,… đã góp phần tạo nên một không gian. cho một kỳ nghỉ tuyệt vời dành cho các thành viên vào những ngày nghỉ lễ hay sau những khoảng thời gian vật lộn với công việc.
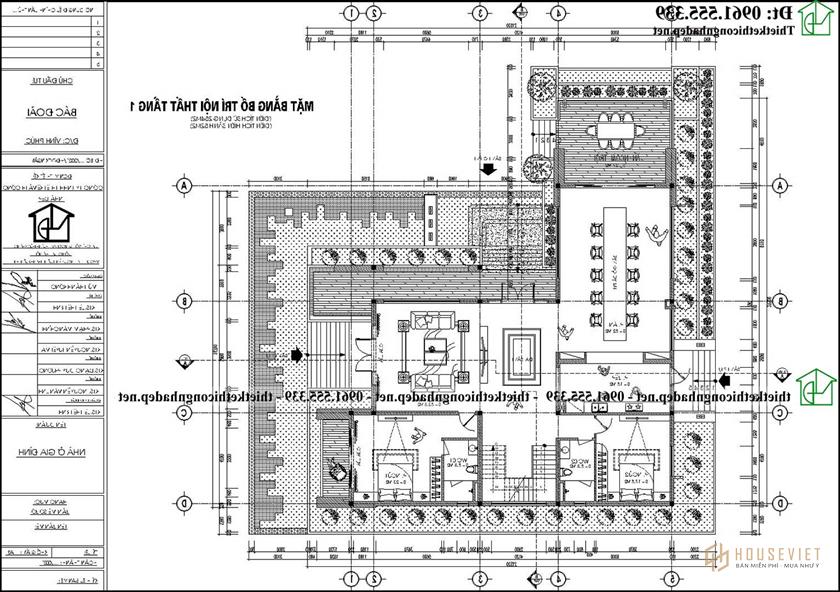
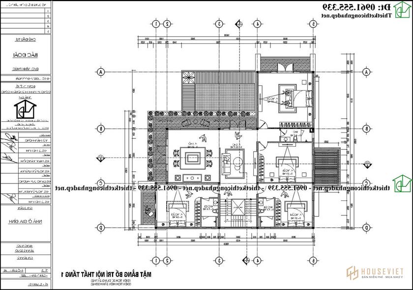
Mặt bằng công năng biệt thự 2 tầng 6 phòng ngủ 600m2 diện tích 20x18m

Tầng 1 của mẫu biệt thự 2 tầng 6 phòng ngủ 600m2 diện tích 20x18m này được kiến trúc sư bố trí công năng và không gian sống vô cùng hợp lý và tiện nghi. Cụ thể, chúng ta có thể thấy công năng được bố trí bao gồm: Sảnh chính, sảnh phụ, phòng khách, phòng ngủ, bếp, phòng ăn, phòng vệ sinh chung. Trong đó phòng ăn và phòng khách được thiết kế rộng rãi, thoáng mát, phòng bếp được trang bị đầy đủ các thiết bị cao cấp và sang trọng nhất giúp cho việc nấu nướng và nội trợ trở nên dễ dàng nhất. 1 phòng ngủ thường và 1 phòng master được bố trí hài hòa xung quanh nhà và mỗi phòng ngủ đều có cửa sổ lớn để các thành viên có thể ngắm cảnh thiên nhiên xung quanh bên ngoài.

Tiếp đến là không gian tầng 2 được bố trí công năng như sau: 2 phòng ngủ master và 2 phòng ngủ thường với diện tích vừa đủ, vô cùng yên tĩnh rất thích hợp cho việc nghỉ ngơi, thư giãn. Phòng thờ trang trọng ở trung tâm tầng 2 - đây là nơi con cháu tề tựu về thắp hương tri ân tổ tiên. Cuối cùng là phòng vệ sinh chung được bố trí ở giữa 2 phòng ngủ - rất thuận tiện cho việc đi lại và sinh hoạt riêng của các thành viên.
Phối cảnh ban đêm của mẫu biệt thự 2 tầng hiện đại 600 m2 kiểu Nhật
Ngoài những mẫu thiết kế trên, chúng tôi sẽ chia sẻ đến các bạn những phối cảnh thiết kế ban đêm của căn biệt thự này. Từ những góc nhìn này, bạn có thể thấy và biết được cách bố trí, cách đặt đèn cho phần sân vườn, cách thiết kế cho phần sân vườn. Mời các bạn cùng tham khảo và trải nghiệm những mẫu thiết kế của công ty Ngôi nhà xinh.








Trên đây là những thông tin liên quan đến mẫu thiết kế biệt thự 2 tầng 6 phòng ngủ 600m2 diện tích 20x18m. Nếu quý vị và các bạn yêu thích và mong muốn trở thành chủ nhân thực sự của không gian sống đẹp như vậy thì hãy lựa chọn công ty nhà đẹp chúng tôi và liên hệ theo số hotline để được các kiến trúc sư tư vấn. tự do.
Tìm hiểu thêm:
- Biệt thự 2 tầng hình thang vuông 7x15m tại Hải Dương NDBT2T127
- Biệt thự 2 tầng mái Nhật hiện đại 14x11m tại Thanh Hóa NDBT2T131