Mẫu thiết kế biệt thự có hồ bơi hiện đại ai thấy cũng mê
Thiết kế biệt thự có hồ bơi như đưa về sự yên bình với tuổi thơ bên dòng sông tắm mát, bên hàng cây rợp bóng hay sự yên ả trên triền đê,… Nhu cầu thiết kế biệt thự với những tiện ích đầy đủ ngày càng đón nhận được sự quan tâm của các chủ đầu tư và anh Mạnh cũng không ngoại lệ. Với quỹ đất cũng như tài chính của gia đình, chủ đầu tư của chúng tôi mong muốn xây dựng 1 căn biệt thự tích hợp cả bể bơi. Mẫu thiết kế biệt thự này không chỉ có tính ứng dụng cao mà còn tạo điểm nhấn ấn tượng cho công trình.

Dự án: Thiết kế biệt thự có hồ bơi tại Vĩnh Phúc
Khách hàng: Anh Mạnh
Địa điểm: Vĩnh Phúc
Quy mô: 1 tầng hầm, 3 tầng nổi
Diện tích: 14,5x18m
Đơn vị thiết kế: Wedo
Công năng sử dụng:
+ Tầng hầm: gara ô tô, kho, phòng kỹ thuật, WC
+ Tầng 1: sảnh đón, phòng khách, khu vực bếp, sân trong, hồ bơi, phòng giải trí, phòng thư viện, sân vườn, WC
+ Tầng 2: không gian sinh hoạt chung, phòng ngủ, phòng thay đồ, ban công, WC + sân vườn
+ Tầng 3: phòng dành cho người giúp việc, phòng ngủ dành cho khách, kho, phòng giặt, ban công, WC
Khám phá sức hấp dẫn của thiết kế biệt thự có hồ bơi

Thiết kế biệt thự có hồ bơi phong cách hiện đại vẫn đặc trưng bởi các khối bê tông đồ sộ nhưng nhờ khả năng thiết kế khéo léo của các kiến trúc sư mà công trình đã “mềm mại” đi rất nhiều, tạo không gian rộng mở gần gũi với thiên nhiên. Thay vì các khối vuông vức xếp chồng lên nhau mà chúng ta vẫn thường thấy, tại đây, Wedo đã thiết kế mẫu biệt thự 3 tầng với các khối đua ra một cách so le nhau – vừa nghệ thuật lại rất lãng mạn. Kiến trúc hiện đại được cảm nhận bằng đầy đủ các giác quan, từ thị giác cho tới xúc giác, cảm nhận bằng mắt và bằng cả tâm trí, trí tưởng tượng của mỗi người. Cách tạo hình giàu cảm xúc đó chứng tỏ nét bay bổng trong tâm hồn nghệ sĩ của các kiến trúc sư và chủ đầu tư.

Khác với các mẫu lâu đài dinh thự hay biệt thự thiết kế theo trường phái kiến trúc cổ điển được tượng trưng bằng các nét kiến trúc đối xứng nhau, các chi tiết tạo hình có quy luật chặt chẽ và rõ ràng. Thì ngược lại, kiến trúc hiện đại được thiết kế hoàn toàn với các khối phi đối xứng, đơn giản nhưng lại vô cùng tinh tế và rất dễ nằm sâu trong tâm trí người xem. Như đã phân tích ở trên, thay vì những khối hình được xếp đều chằn chặn từ dưới lên trên thì trong tác phẩm kiến trúc này, chúng tôi đã mạnh dạn thể hiện tạo hình độc đáo, với sự thay đổi hoàn toàn, thổi làn gió mới mẻ vào tư duy bố cục phi đối xứng.
Một đóng góp không hề nhỏ tạo dựng nên sự thành công của thiết kế biệt thự có hồ bơi, đó chính là vật liệu ngoại thất. Bằng cách sử dụng vật liệu tinh tế và linh hoạt của kính, gạch, gỗ, đá,… đã giúp tăng sức hút kể cả về mặt trang trí cho tới tuổi thọ công trình. Đương nhiên với một công trình to lớn và bề thế như mẫu biệt thự 3 tầng này, vật liệu được sử dụng đều ở mức khá trở lên. Giá thành và chi phí xây nhà vì thế cũng tỉ lệ thuận với mức độ đầu tư của chủ nhà. Toàn bộ sàn nhà được lát gạch cao cấp, mang lại nét sang trọng và đẳng cấp. Có thể cảm nhận không gian sống thời thượng, đầy đủ tiện nghi giống như đang ở trong một khu nghỉ dưỡng cao cấp.

Trong các nghiên cứu đều cho rằng não bộ con người nhận diện màu sắc nhanh nhất, vì thế mà màu sắc đóng vai trò quan trọng trong một tác phẩm kiến trúc. Các kiến trúc sư là những người truyền tải nội dung ý nghĩa và mục đích trong các bản vẽ thiết kế. Với mẫu thiết kế biệt thự có hồ bơi này cũng không ngoại lệ, điều cần nhất không chỉ là các khối hình đặc trưng mà ngay cả cách phối các màu hài hòa sẽ khoe được vẻ đẹp của từng mẫu nhà. Yêu cầu của chủ đầu tư đó là các gam màu cần thể hiện được sự trẻ trung, yêu đời. Màu sắc không quá mờ nhạt cũng không cần phối quá nhiều màu gây phản cảm và rối mắt. Sự cân bằng về thị giác là yếu tố bắt buộc. Với ngôi nhà 3 tầng đẹp này, chúng tôi sử dụng màu trắng như một tone màu làm nổi bật. Màu trắng được nổi bật trên nền màu nâu của gỗ. Màu nâu toát lên vẻ sang trọng lịch lãm và cũng không kém phần hài hòa, với ý nghĩa tạo dựng một tổ ấm hạnh phúc, không gian sống bình yên.

Sự xuất hiện của hồ bơi sau nhà giúp giá trị công trình kiến trúc được nâng lên một đẳng cấp mới. Ngoài công năng sử dụng, hồ bơi với dung tích nước lớn tức thủy khí nhiều còn có tác dụng chiêu tài tốt. Điều này giúp cho cuộc sống của con người luôn thuận lợi nhờ có điểm tựa vững chắc, hậu phương vững mạnh và chờ đón được những điều tài lộc, may mắn nhờ sự dồi dào, tươi tắn từ nước. Những mẫu thiết kế biệt thự hiện đại có bể bơi lại thực hiện rất tốt điều này. Bởi đó, ta hoàn toàn có thể khẳng định thiết kế biệt thự hiện đại có bể bơi thích hợp với phong thuỷ.
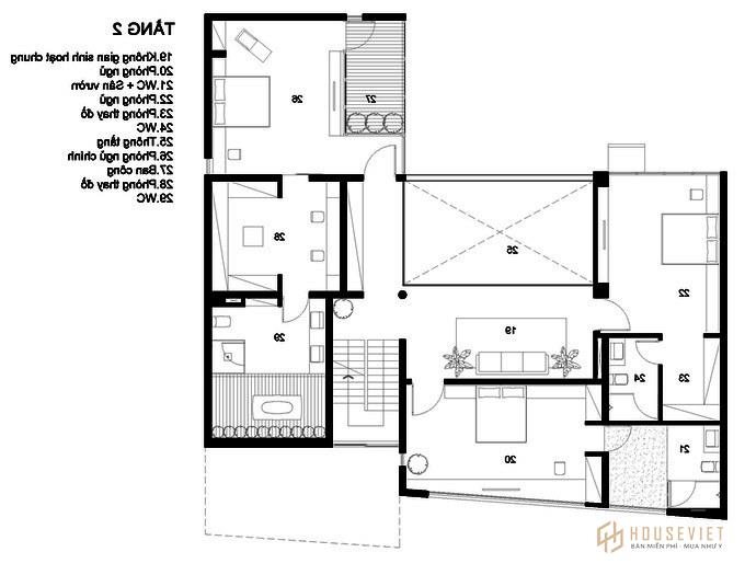
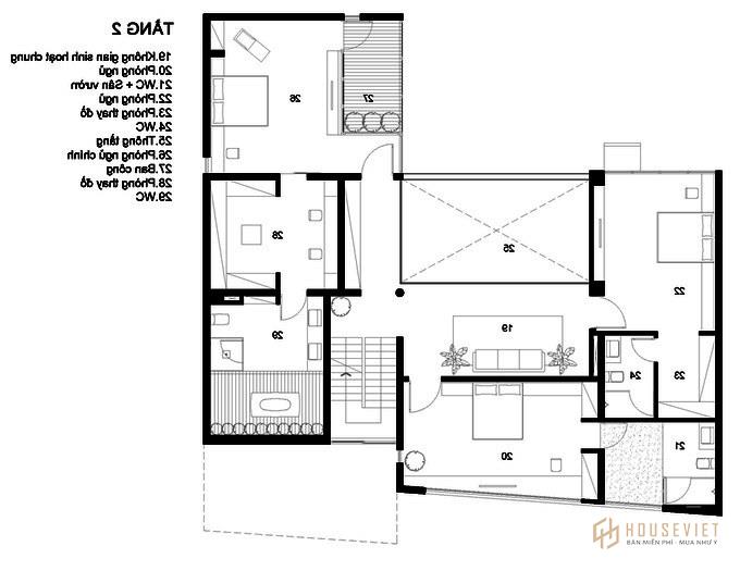
Mặt bằng công năng mẫu biệt thự hiện đại

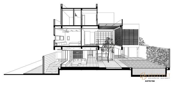
Sơ đồ công năng của mẫu thiết kế biệt thự có hồ bơi được bố trí khoa học, mở rộng không gian, phân chia các khu vực chức năng hợp lý, thẩm mỹ. Với việc thiết kế tầng hầm chìm, nhìn từ bên ngoài căn biệt thự có thiết kế 3 tầng nhưng thực tế bên trong có tới 4 tầng đáp ứng nhu cầu sinh hoạt tiện nghi. Toàn bộ không gian tầng hầm dùng làm gara xe, giải quyết bài toán không gian dành cho phương tiện di chuyển, giúp cho gia đình chủ đầu tư có thêm không gian cho sinh hoạt và sử dụng.

Đối với bố trí công năng tầng 1, anh Mạnh dành khá lớn diện tích dành cho các khu sinh hoạt chung (phòng giải trí, thư viện) và khu vực bể bơi. Do có diện tích lớn nên bố trí cả sảnh đón lẫn phòng khách để thuận tiện cho quá trình tiếp khách, lối đi liền hướng ra sân trong rất hài hòa, hợp lý.

Lên đến tầng 2 của thiết kế biệt thự có hồ bơi, đây là khu vực hướng đến không gian nghỉ ngơi, yêu cầu sự ấm cúng, yên tĩnh mà vẫn phải thông thoáng và sáng sủa. Diện tích các phòng hợp lý, không quá rộng làm giảm bớt sự ấm cúng cũng không quá hẹp gây bí bách, ngột ngạt. Ở mỗi phòng đều có khu vệ sinh riêng khép kín, thuận tiện cho sinh hoạt. Vị trí cả 3 phòng đều hướng ra ngoài không gian, nơi tiếp xúc gần nhất với thiên nhiên bên ngoài và có hệ thống cửa sổ rộng lớn.
Phòng sinh hoạt chung là nơi sum họp, thư giãn của cả gia đình. Phòng sinh hoạt chung đóng vai trò gắn kết tình cảm giữa các thành viên trong nhà. Sơ đồ công năng bố trí căn phòng này hướng ra khoảng thông tầng, mang lại ánh sáng và không khí thoáng mát.

Khu vực tầng 3 gọn và và ngăn nắp, tiết kiệm không gian với các phòng chức năng như sau: phòng dành cho người giúp việc, phòng ngủ cho khách, phòng giặt, kho, phòng giặt, ban công. Phòng ngủ dùng phục vụ cho khách cũng được sắp xếp nội thất tiện nghi như các phòng ngủ bên dưới. Đặc biệt, ngôi nhà này còn được thiết kế với hệ cây xanh lớn giúp mang đến không gian xanh.


Nội thất thiết kế biệt thự có hồ bơi
Để tạo nên một thiết kế biệt thự có hồ bơi hoàn hảo, không chỉ có kiến trúc bên ngoài mà còn cần đến cách bài trí, thiết kế nội thất phía trong phải vô cùng tỉ mỉ và chỉn chu.


Biệt thự hiện đại có bể bơi được thiết kế theo không gian mở, tuy nhiên kiến trúc sư cũng khéo léo trong việc sắp xếp nội thất khoa học đảm bảo sự gọn gàng, tối ưu diện tích một cách tối đa nhất. Không gian phòng khách rộng rãi và được sắp xếp nội thất thông minh, bộ bàn ghế màu sắc nổi bật trên nền trắng nhẹ nhàng, cung cấp chỗ thư giãn, sum họp gia đình thoải mái.

Sảnh đón với không gian mở tận dụng ánh sáng thiên nhiên bên ngoài một cách tối đa, khiến ngôi nhà như “đắm chìm” giữa thiên nhiên. Những cây xanh mang đến nét thẩm mỹ cũng như đem lại bầu không khí trong lành cho ngôi nhà.

Phòng ăn và bếp được kết nối mở với phòng khách. Sở hữu bộ bàn ghế ăn nhẹ nhàng, thanh mảnh. Phía trên là trần gỗ được thiết kế độc đáo cung cấp một không gian ăn uống tuyệt vời. Một chiếc đảo bếp rộng mang đến không gian riêng tư cho nơi nấu nướng. Với bề mặt được ốp đá cao cấp, cung cấp không gian ăn uống thư giãn cho các thành viên trong gia đình.

Không gian sinh hoạt chung nằm ở tầng 2 của thiết kế biệt thự có hồ bơi khá rộng rãi và được phối kết hợp màu sắc vật liệu nhẹ nhàng. Biệt thự hiện đại ưu tiên chất liệu bằng kính và thiết kế mở nên từ bên trong và ngoài được gắn kết với nhau. Những chiếc cửa kính kết nối thiên nhiên bên ngoài giúp cho quá trình thư giãn được thoải mái và tiện nghi hơn nhiều.

Với sự kết hợp ăn ý giữa các vật liệu nội thất hiện đại, căn biệt thự giúp người nhìn cảm nhận được sự sang trọng mà vẫn thời thượng, trẻ trung. Cầu thang chính được đặt chắn nhẹ nhàng bằng hệ lam gỗ trang trí, dẫn lối người đi thẳng về phía sân vườn. Nội thất tối giản sắp xếp linh hoạt giúp toàn bộ không gian được rộng thoáng, mát mẻ hơn rất nhiều.

Việc phân định vị trí trong khu vực nhà tắm bằng cách chia mảng vật liệu khiến cho không gian trở nên mềm mại và có điểm nhấn chính – phụ trong một tổng thể, đồng thời tạo đường dẫn thị giác, kết nối được các không gian chức năng lại với nhau, không bị rời rạc mà trở nên thú vị hơn.
Dự án thiết kế biệt thự có hồ bơi của gia đình anh Mạnh tiếp tục là một minh chứng cho tư tưởng xuyên suốt của WEDO: lấy khách hàng làm kim chỉ nam cho mọi hoạt động. Lắng nghe, thấu hiểu và hiện thực hóa những mong muốn của khách hàng dựa trên các yếu tố hài hòa về mặt kỹ thuật, tiêu chuẩn thẩm mỹ. Ngay khi hồ sơ kiến trúc được bàn giao, gia chủ vô cùng hài lòng là quyết định ký tiếp hợp đồng thi công công trình. Quý khách hàng có nhu cầu thiết kế xây dựng các công trình nhà ở như nhà phố, căn hộ, biệt thự hiện đại, biệt thự cổ điển, biệt thự tân cổ điển,…Vui lòng liên hệ với chúng tôi qua hotline: 024. 38 16 8888 để được hỗ trợ kịp thời!