Mẫu thiết kế biệt thự mini 2 tầng đẹp cho vợ chồng anh Tài Đồng Nai
Vật mẫu Mẫu thiết kế biệt thự mini 2 tầng đẹp là một trong những mẫu nhà mái thái 130m2. Bản vẽ kiến trúc nhà 1 trệt 1 lầu lát gạch hiện đại. Được thiết kế xây dựng trên khu đất có diện tích rộng 10m, sâu 23m. NDMM chúng tôi cập nhật nhanh các thông tin sau để các bạn tham khảo
- Mẫu biệt thự vườn 2 tầng 130m2 đẹp 4 phòng ngủ 1 phòng thờ
- Hồ sơ thiết kế nhà vườn 2 tầng mái thái đẹp anh Hiền

Nếu bạn cảm thấy nó không phù hợp với gu thẩm mỹ của mình. Vậy thì đừng bỏ qua liên kết Tuyển chọn những mẫu biệt thự 2 3 4 tầng đẹp hàng đầu Việt Nam 2021 Được cập nhật gần đây bởi kiến trúc sư công ty xây dựng của chúng tôi
Yêu cầu thiết kế biệt thự mini 2 tầng hiện đại 10x23m. đất
Vợ chồng ông Tài và 2 con sinh sống tại xã Xuân Hưng, huyện Xuân Lộc - Vùng đất cuối cùng giáp ranh với tỉnh Bình Thuận. Tại công ty thiết kế xây dựng Nhà Đẹp Mới chi nhánh tại Biên Hòa. Công ty chúng tôi gần 200 km nhưng sau khi nhận được yêu cầu thiết kế Biệt thự mini 2 tầng hiện đại khoảng 120m2 đến 130m2 lợp ngói. KTS Hào chúng tôi sau khi tư vấn qua điện thoại. Lắng nghe tối ưu những yêu cầu xây biệt thự 2 tầng mái thái đẹp năm 2021. Chi phí đã không ngại nắng mưa đường xa đến trực tiếp khảo sát, đo đạc và tư vấn

Theo đó, Anh Tài có lô đất mặt tiền đường lớn rộng 10m. Tài chính vừa phải từ 1,5 tỷ đến 1,8 tỷ cần 3 phòng ngủ tầng trệt và trên lầu. Vì vậy cần thiết kế biệt thự mini 2 tầng đẹp cho bài bản và thể hiện được đẳng cấp của gia chủ.
- Công trình thiết kế biệt thự 2 tầng mái thái hiện đại
- Nhà đầu tư trẻ: Anh Tài
- Địa chỉ: Xuân Lộc Đồng Nai
- Sinh năm 1980 - Canh Thân
- Ngũ hành: Thạch Lựu Mộc - Khôn Thổ - Tây Tứ Trạch
- Hướng thiết kế của biệt thự mini là hướng chính Tây của cung Thiên Yết.
- Diện tích đất 10m x 23m hướng Tây.
- Diện tích sàn xây dựng thiết kế: Rộng 8,6m dài 16m bao gồm sảnh hai bên
- Phần thô có giá hơn 1,3 tỷ đồng
- Đã hoàn thành 1,7 tỷ đồng
Ý tưởng thiết kế biệt thự mini 2 tầng đẹp diện tích 130m2
Kiểu nhà Biệt thự mini đẹp 2 tầng 130m2 xây sát với hướng chính bắc. Bức tường của nhà hàng xóm cũng chừa một lối đi rộng rãi ở phía sau và phía trước. Mặt bên phải 1.5m kết hợp điểm nhấn hình chữ L góc tường sau 1m để được ô tô. Ngõ rộng ô tô 2,3m. Quý vị có thể tham khảo thêm các hình ảnh về mẫu biệt thự mini 2 tầng đẹp. Cùng cái nhìn toàn cảnh dưới đây để tìm hiểu thêm dưới đây
- Mẫu nhà 130m2 mái thái đẹp hiện đại anh Cường
- Mẫu biệt thự đẹp 2 tầng 2 mặt tiền ngang ở nông thôn 130m2 bác Bền

Ý tưởng thiết kế biệt thự mini 2 tầng hiện đại theo phong thủy phương Tây. Ngũ hành Mộc nên thiết kế với tông màu xanh lá cây. Tường của ngôi nhà được thiết kế màu xanh lam nhạt ánh kim. Sử dụng dòng sơn Spec với 3 lớp bột trét và sơn lót để sơn chính ngoài cùng cho nội ngoại thất.
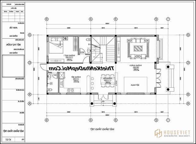
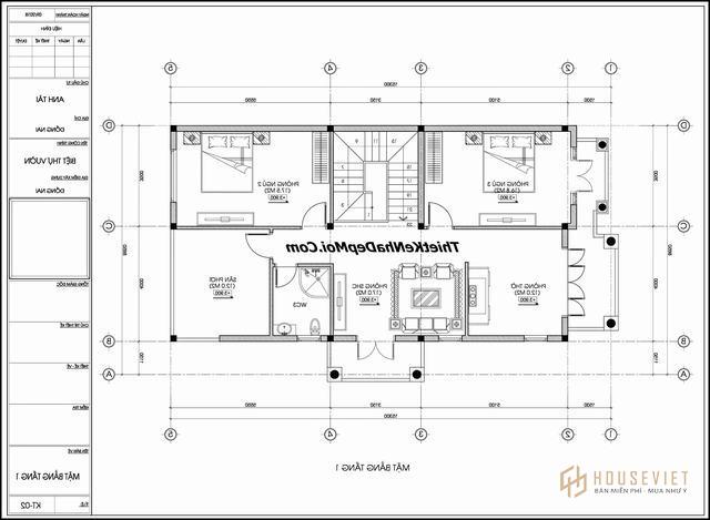
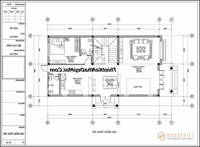
Mặt bằng công năng thiết kế biệt thự mini 2 tầng mái thái 8,6x16m
Mẫu thiết kế nhà đẹp 130m2 có 3 phòng ngủ rộng rãi và khoa học. Trong đó mẫu thiết kế biệt thự mini 2 tầng đẹp 1 phòng ngủ vợ chồng anh Tài ở tầng trệt. Thiết kế có phòng tắm và vệ sinh chung trong phòng. Không gian còn lại được thiết kế gồm phòng khách, bếp ăn, phòng karaoke chung. Sân phơi bàn thờ phía trước và phía sau. Quy mô các phòng của mẫu biệt thự mini 2 tầng mái thái như sau

Kích thước nhà biệt thự Thái Anh Tài
- Phòng khách tầng trệt: 35m2 bằng gỗ gụ nối ngang
- Phòng bếp 14m2
- Không gian bàn ăn 11,5m2 liên thông với tủ quầy bar ở giữa
- Phòng ngủ 1 13,5m2
- Phòng vệ sinh chung tầng 1: 4,6m2
- Phòng ngủ 2 tầng 1: 17m2 phía sau.
- Phòng ngủ 3: Mặt tiền 16,8m2
- Phòng khách 17m2
- Phòng thờ: 12m2
- Sân phơi: 12m2
- Phòng tắm chung tầng 2: 5,2m2

Tham khảo Biệt thự 2 tầng 4 phòng ngủ nếu gia đình bạn có nhiều thành viên hơn. Có gara trong nhà khoảng 1,2 tỷ 9x14m của anh Tuyên ở Hải Phòng
Cách thiết kế biệt thự mini 2 tầng đẹp khác
Điểm khác biệt nữa là gia đình anh Tài có truyền thống làm nghề mộc. Như vậy, bạn đã làm xong cửa chính và khung cửa sổ, cầu thang và tay vịn. Bản vẽ tam quan và hệ thống bàn ghế gỗ gụ phòng khách, cửa thông phòng .. Kệ bếp đều bằng gỗ nên bạn cần bản vẽ kích thước của các vật dụng. Làm trước để tiết kiệm chi phí và lắp ráp xong chỉ việc lắp ráp. Nhưng tôi không thể đến đó kịp vì tôi phải đốn gỗ về phơi khô, sau đó đục đẽo và điêu khắc,. Nếu chuẩn bị xây nhà, bạn cũng cần có bản vẽ trước để có phương án phù hợp. Xem thêm biệt thự An Thái TẠI ĐÂY để lựa chọn
Tại sao bạn nên thiết kế biệt thự mini 2 tầng đẹp trước khi xây dựng?
Ngành kiến trúc biệt thự mini 2 tầng hiện đại 130m2 Sau Tết, anh Tài chính thức xây dựng. Nếu chuẩn bị xây dựng nên có bản vẽ kiến trúc, kết cấu, điện nước, dự toán, xin giấy phép. Cần chuẩn bị lại vấn đề tài chính. Thứ hai, khi có đầy đủ hồ sơ, bạn có thể tham khảo giá vật tư tốt. Cách trang bị nội thất bên trong và đặt trước cửa ra vào, cầu thang ... Để thoải mái hơn, không còn bỡ ngỡ khi thực hiện từng bước. Tiến trình giai đoạn xử lý sao cho phù hợp hơn 8 lần

Mẫu biệt thự mini 2 tầng diện tích 130m2 anh Tài huyện Xuân Lộc. Kiến trúc sư thiết kế hai bên có ban công đón gió mát. Thích nghi tài chính khoảng 1,3 tỷ và mức vật chất khá. Còn nội thất phụ thì tầm 1,8 tỷ đến 2 tỷ bởi nội thất tốt, cao cấp. Nếu chi tiêu của bạn hạn hẹp hơn. Có thể thiết kế một công trình nhà ống 100m2 1 tầng thu nhỏ với diện tích nhỏ. Các bạn có thể tham khảo thêm các mẫu biệt thự mini 2 tầng đẹp giá rẻ tại link
- Biệt thự mini 2 tầng 80m2
- 200 mẫu biệt thự mini kiểu pháp hiện đại nhỏ xinh sân vườn mái thái 2 tầng
Với kinh phí xây dựng khiêm tốn khoảng 1,5 tỷ đến 1,7 tỷ và mặt tiền trực quan. Bản vẽ kiến trúc, phác thảo mặt bằng, bản vẽ thiết kế nhà biệt thự mini 2 tầng 130m2 đẹp. Nhà mái thái bán cổ điển mái ngói hiện đại. Phong cách kiến trúc của biệt thự kiểu pháp 4 phòng ngủ ở tầng trệt. Mặt tiền mềm mại theo phong cách tân cổ điển đẹp ở nông thôn. Những điều trên đây hy vọng không thể bỏ qua khi xây nhà mặt tiền đường, nhà vườn rộng trên đất nông thôn. Liên hệ 1800 6015 để gửi thêm nhiều kiểu nhà và thiết kế biệt thự vườn trên đất rộng hơn như