Mẫu thiết kế biệt thự phố đẹp 4 tầng 2 mặt tiền kiểu châu âu
Bạn có đất lô góc 2 mặt tiền đường ngay ngã 3 thích phong cách hiện đại. Mình có 5 mẫu biệt thự phố đẹp 4 tầng 2 mặt tiền kiểu này. Trước tiên là hồ sơ nhà anh Huy
Hình ảnh biệt thự phố đẹp 4 tầng 2 mặt tiền hiện đại anh Huy
Mẫu biệt thự phố đẹp 4 tầng 2 mặt tiền thiết kế trên khu đất rộng 320m2. Bản vẽ xây tọa lạc trên khu đất 2 mặt tiền rộng thoáng vị trí 77 tổ 34 Phường Phan Thiết. Đại gia đình 3 thế hệ anh Nguyễn Mai Huy mong muốn thiết kế kiến trúc biệt thự phố 1 trệt 3 lầu sân thượng đẹp mái thái hiện đại. Yêu cầu có bán hầm gara ô tô 4 chiếc kiến trúc mang nét truyền thống Á Đông mái ngói dốc bánh Ú. Kết hợp với biệt thự hiện đại phong cách châu âu đẳng cấp theo xu hướng mới 2022 hiện nay
- Xem kiểu nhà phố có tầng hầm 5m lộng gió anh Thành
- Mẫu thiết kế cải tạo mặt tiền & có thêm tầng hầm anh Thanh

Ý tưởng kiến trúc biệt thự 4 tầng 2 mặt tiền bán hầm hiện đại
Mẫu thiết kế biệt thự hiện đại 1 trệt 3 lầu hai mặt tiền đẹp mái ngói. Thiết kế kiến trúc kiểu biệt thự 4 tầng mái thái có diện tích sàn xây dựng 160m2. Mang diện mạo cổ kính mái ngói hình khối phi đối xứng trước và 2 bên mặt tiền có lối ra ban công. Không gian linh hoạt kết hợp bồn hoa và cây xanh nhịp điệu. Tỷ lệ hài hòa có sự giao thoa giữa 2 nền kiến trúc Đông – Tây. Phối kết hợp giúp cho mặt tiền mẫu biệt thự phố đẹp có tầng bán hầm trở nên quyến rũ. Cũng như thể hiện được sự trẻ trung hiện đại trong ý tưởng kiến trúc nhà phố đẹp hiện nay. Đây là mặt bằng biệt thự 4 tầng có thang máy và gara ở dưới tầng hầm

Kiểu biệt thự song lập 4 tầng hiện đại hai mặt tiền
Điểm nhấn của mẫu nhà biệt thự 4 tầng đẹp 2 mặt tiền 160m2 1 sàn chính tầng 1. Không gian nội thất cửa gỗ khung kính màu nâu, Chan hòa với màu sơn ngoại thất trắng kính cường lực cao cấp. Giúp gạo ra hiệu ứng ánh sáng từ 3 mặt tiền cũng như gió tự nhiên. Đối lưu không khí kết nối không gian nội ngoại thất trong ngoài.

Phối cảnh 3D biệt thự phố tầng bán hầm góc nhìn mặt tiền
Mẫu nhà đẹp 2 mặt phố gồm 1 tầng bán hầm 1 trệt 3 lầu sân thượng 2 mặt tiền. Có diện tích chiều ngang dọc bên hướng chính Đông mặt tiền chính rộng 16m còn mặt tiền phụ rộng 20m hướng Nam. Tuổi của anh Mai Huy sinh năm 1969 Kỷ Dậu Đông tứ trạch đại dịch thổ và khu đất quá đẹp hợp với mệnh Mộc của anh.
Góc nhìn 2 mẫu biệt thự 2 mặt phố kiểu song lập 4 tầng
Phương án mặt bằng biệt thự phố 4 tầng 2 mặt tiền đẹp phong cách hiện đại có cửa chính thiết kế trùng với hướng nhà chính Đông cung Phước Đức cửa gỗ môn mệnh tương phối. Riêng phòng thờ trên lầu 3 hướng chính Bắc cung sinh khí nhìn ra sân thượng tiểu cảnh hợp với thiên thời địa lợi và thuận theo lẽ tự nhiên của trời đất phúc lộc vẹn toàn.
- Mẫu nhà ống 4 tầng đẹp hiện đại có bán hầm gara anh Qúy Quận 9
- Kiểu nhà phố 4 tầng mặt tiền 6m vừa ở vừa kinh doanh Mr Sáng

Xem biệt thự tân cổ điển 2 mặt tiền 4 tầng anh Tạo
Có thể xem mẫu nhà biệt thự đẹp phong cách hiện đại 4 tầng có 2 mặt tiền đẹp là một trong những mẫu biệt thự nhà vườn 4 tầng mái thái 320m2 đặc trưng nông thôn cũng được bởi hai bên trước sảnh rộng thiết kế không gian tiểu cảnh bàn tròn ngoài trời tiếp khách ưa thích và không gian đại sảnh.

- Thích biệt thự 2 mặt tiền 4 tầng hướng Tây phong thủy anh Tạo thì xem đường dẫn này
Cách xây biệt thự phố 4 tầng 2 mặt tiền Tuyên Quang
Với hình khối biệt thự chữ L 4 tầng hướng Đông bố trí hợp lý. Như vậy giúp ngôi nhà phố vừa có 2 tiền sảnh rộng. Hai bên nhìn ra 2 hướng Đông Nam vừa đón gió mát từ hướng Khe Lau tả ngạn sông Lô. Và một nhánh sông Gấm. Phong thủy hữu tình mà mỗi khi thư giãn tất cả các thành viên có thể lên ban công hay sân thượng trên tầng lầu 2 hay 3.

Có thể phóng tầm mắt bao quát cả vùng trời bình yên toàn tỉnh. Cũng như ngắm được cảng Tuyên Quang. Vừa lắng đọng trong bản trường ca sông Lô của nhạc sỹ Văn Cao. Hay nếu thời điểm viết bài này có bài hát Sông Lô chiều cuối năm của Nhạc sỹ Minh Quang đã bám rễ ăn sâu vào trong lòng người yêu nhạc ” Ai tìm về bên ai, ta tìm về bên em… Người con gái ấy bao năm tháng mỏi mòn chờ đợi người lính ấy ra đi mãi mãi không về..Để lại bến sông xưa bâng khuâng một con đò..!
Mặt bằng biệt thự phố 4 tầng 2 mặt tiền đẹp ở Tuyên Quang
Trở lại với công năng sử dụng của mẫu biệt thự phố 4 tầng đẹp nhất ở Tuyên Quang anh Nguyễn Mai Huy phường Phan Thiết trong đó anh và các thành viên chia sẻ mong muốn mỗi phòng ngủ đều có không gian sống lịch sự riêng tư khi trở về phòng của mỗi thành viên nên yêu cầu mỗi phòng ngủ đều thiết kế theo kiểu master rộng 40m2 trở lên có bồn tắm nằm, phòng giặt ủi thay đồ kệ tủ, bàn làm đẹp, tivi.. trong phòng.

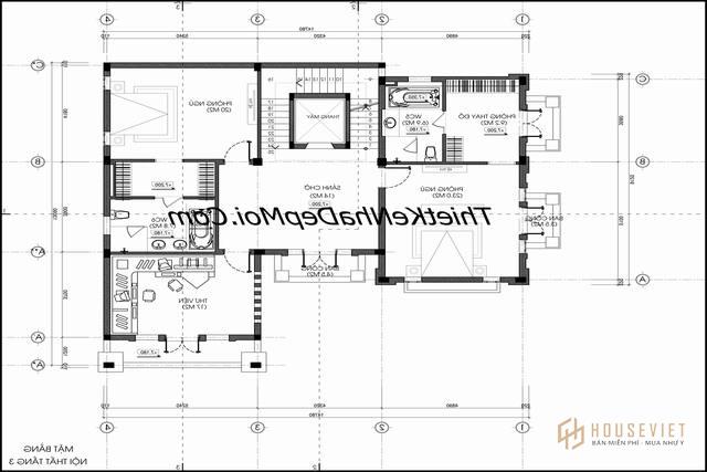
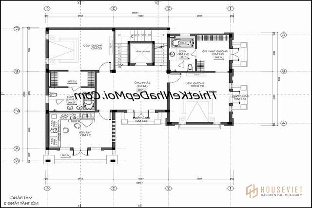
Cách bố trí mặt bằng biệt thự 2 mặt tiền có tầng hầm
Mặt bằng nội thất nhà đẹp biệt thự phố hiện đại 1 bán hầm 1 trệt 3 lầu 2 mặt tiền 160m2 phân chia như sau
- Tầng bán hầm: Nhà xe gara ô tô rộng 4 chiếc, 1 phòng ngủ cho gia nhân, sảnh chính và sảnh phụ không gian ngoài trời, cầu thang mái
- Tầng 1: Nội thất phòng khách, nội thất phòng bếp có tủ bar, phòng ăn rộng, 1 vệ sinh chung và tiền sảnh
- Tầng 2: 2 nội thất phòng ngủ master, 1 phòng ngủ thường có wc khép kín, 1 phòng sinh hoạt chung, ban công
- Tầng 3: 2 phòng ngủ master 1 phòng ngủ thường có wc khép kín, 1 phòng thư viện đọc sách, sảnh chờ, ban công
- Tầng 4: Phòng thờ, 2 sân thượng, 1 phòng giặt kho và sân phơi trồng rau, 1 phòng tập GYM thể dục rộng, 1 wc.


Tư vấn thiết kế biệt thự phố 2 mặt tiền 4 tầng kiểu châu âu
Ngoài ra với phương án thiết kế kiến trúc biệt thự phố có tầng bán hầm đẹp 4 tầng. Phong cách kiến trúc 2 mặt tiền kiểu châu âu hiện đại. cũng có thể xem là mẫu biệt thự song lập đẹp nhất hiện nay. Nếu nhìn từ hướng mặt tiền chính Nam dài 20m. Phía mặt phụ có tiền sảnh phụ vào rộng lên đến 5,6m2 để thông tầng lên trên, Có ban công đua ra giúp tạo đối lưu không gian thoáng cho hai bên. Vừa tạo sự khác biệt lạ mắt cho phong cách kiến trúc biệt thự đẹp phong cách châu âu phi đối xứng linh hoạt mới.

Bản vẽ chi tiết biệt thự phố đẹp 4 tầng 2 mặt tiền 2021
Khác biệt so với mẫu biệt thự 3 tầng mái thái kiểu song lập đẹp trước. Thì mẫu thiết kế nhà phố 4 tầng 2 mặt tiền 16 x 20m. Phong cách hiện đại châu âu thiết kế có thêm tầng bán hầm cốt chiều cao rộng 2,7m. Hơn nữa có điều khác biệt nữa là trong nhà. Ta sử dụng loại cầu thang máy Cabin Modern 8000 kích thước 1100 x 1400. Kèm theo tiêu chuẩn hố thang 1735 x 2000. Ngoài ra còn có cầu thang bộ bao quanh trục và lối thoát hiểm. Giao thông liên lạc, phòng cháy chửa cháy cũng được đội ngũ KTS công ty chúng tôi trau chuốt và vẽ kỹ hơn



Bản vẽ chi tiết mặt cắt biệt thự đẹp 4 tầng 2 mặt tiền phố
Ngoài ra mẫu biệt thự 4 tầng hiện đại 2 mặt tiền có cốt tầng 1 cao 3,7m. Tầng 2 và 3 cao 3,5m còn tầng 4 cao 3,3m từ sàn tầng 4 của mẫu nhà đẹp 4 tầng mặt phố 2 mặt tiền lên đến đỉnh nóc cao 4,3m. Có kèm theo ghi chú cụ thể chi tiết ban công, chi tiết mái kính MK1 kèm chi tiết lan can, cửa và cầu thang.. Một số hình ảnh bản vẽ kỹ thuật thi công mẫu biệt thự phố 4 tầng có bán hầm 2 mặt tiền hiện đại chúng tôi gửi thêm để quý vị có thể tham khảo thêm như sau.

Bản vẽ ý tưởng kiến trúc biệt thự mái thái hiện đại 4 tầng
Mẫu thiết kế biệt thự đẹp 4 tầng hiện đại phong cách châu có tổng diện tích sàn xây dựng 970m2. Tổng kinh phí đầu tư dự kiến 5.5 tỷ tương đương gần 6 triệu/m2. Chưa tính đồ gỗ trang trí kính báo để quý vị nắm thêm. Công ty xây dựng chúng tôi sẽ tiếp tục cập nhật những hình ảnh thi công. Do KTS và anh em kỹ sư xây dựng NHÀ ĐẸP MỚI chi nhánh phía Bắc Hà Nội thực hiện. Mình sẽ gửi về trong bản tin cẩm nang xây nhà. Mời quý vị cùng theo dõi tiến độ kiến trúc biệt thự 4 tầng mái thái có 2 mặt tiền 160m2 anh Huy ở Tuyên Quang nhé.

Các mẫu biệt thự phố đẹp 4 tầng 2 mặt tiền tân cổ
Mẫu thiết kế kiến trúc biệt thự phố 4 tầng 2 mặt tiền đẹp phong cách châu âu kiểu song lập. Hình khối phi đối xứng hiện đại do kts công ty cổ phần xây dựng kiến trúc nhà đẹp MỚI chúng tôi chủ trì thể hiện. Hồ sơ bản vẽ chi tiết gồm hồ sơ xin phép xây dựng. Bản vẽ kết cấu kiến trúc, điện nước dự toán.. hoàn chỉnh cho gia đình anh Nguyễn Mai Huy. Ở Phường Phan Thiết – Thành Phố Tuyên Quang. Xem mẫu biệt thự phố đẹp 4 tầng 2 mặt tiền 10×25 khác xây cho Cô Dung ở Gò Vấp mới đây

- Xem hồ sơ biệt thự nhà phố 2 mặt tiền tân cổ điển cô Dung di trụ sở chính NHÀ ĐẸP MỚI xây năm ngoái
Mẫu biệt thự 2 mặt tiền 6×20 4 tầng anh Cường quận Tân Phú
Nếu đất rộng ngang 6m đến 7m quay đầu. Cần xây biệt thự phố 6×20 4 tầng kiến trúc Pháp. Anh chị xem bản vẽ nhà anh Cường

Tham khảo thêm các mẫu biệt thự 4 tầng kiểu Pháp của công ty chúng tôi thêm TẠI ĐÂY có cả nội thất bên trong.
Các mẫu biệt thự phố 4 tầng đẹp nhất Việt Nam vừa vẽ
Dự kiến ăn tết xong tiến hành triển khai giải phòng mặt bằng động thổ bởi anh Huy sinh 1969 Tuổi Kỷ Dậu. Tức 51 tuổi âm xây nhà năm nay. Không vướng tam tai hay kim lâu hoàng ốc – KIẾT – xây nhà đẹp. Mẫu nhà 2 mặt phố biệt thự song lập đẹp 4 tầng 160m2. Theo gia đình ưa kiến trúc biệt thự hiện đại phong cách châu âu trên dự kiến hoàn thành khoảng 8 tháng . Ngoài ra còn biệt thự 3 tầng 1 tum chị My cho đất mặt tiền 8m. Vui lòng XEM TẠI ĐÂY nếu thích phong cách Victorian STYLE của ANH này

Bản quyền mẫu biệt thự cổ điển 4 tầng 1 tum rêu rong cổ kính
Biệt thự cổ điển tỷ lệ 3 gian 4 tầng 1 tum áp mái này xây tại Hà Nam. Của gia đình ông Được nhà này xây ở giữa có 3 mặt ngõ khác biệt. Anh chị xem hồ sơ kiến trúc biệt thự phố 3 mặt tiền đẹp 4 tầng TẠI ĐÂY nếu ưng

Phong cách biệt thự cổ 4 tầng đẹp kiểu Pháp mái ngói
Đây là hồ sơ thiết kế biệt thự 4 tầng anh Hùng. Kiến trúc mái ngói nhưng cách tân theo phong cách Pháp Baroqua. Xem thêm Ở ĐƯỜNG DẪN NÀY để biết thêm chuyên môn anh em kiến trúc sư NHÀ ĐẸP MỚI mình

Mẫu biệt thự phố đẹp 4 tầng 1 mặt tiền kinh doanh
Đây là 1 trong 2 mẫu biệt thự phố 4 tầng đẹp thiết kế có tầng bán hầm để ô tô 1 bên. Có tầng trệt phục vụ cho yêu cầu nhà vừa ở vừa kinh doanh. Anh chị có đất rộng 7m đến 10m cũng có thể xây biệt thự phố đẹp 4 tầng 2 mặt tiền kinh doanh kiểu này. Hãy BẤM TRUY CẬP TẠI ĐÂY mà xem hồ sơ hình dưới đây

Anh chị có mảnh đất 2 mặt tiền đẹp mặt phố muốn xây nhà biệt thự phố có tầng bán hầm mái ngói. Hay nhu cầu xây nhà có tầng hầm thang máy vừa ở kinh doanh buôn bán. Vừa có chỗ để xe thì liên hệ tư vấn thêm. Cám ơn.!