Mẫu thiết kế khách sạn 3 sao tân cổ điển 7 tầng 408m2 tại Vĩnh Phúc - SH KS 0057
SHAC vừa tham khảo phương án thiết kế khách sạn tân cổ điển 3 sao 7 tầng diện tích sàn 408m2 tại Vĩnh Phúc. Dự án này được xây dựng theo tiêu chuẩn chất lượng 3 sao. Với đầy đủ tiện nghi, bố trí công năng, phòng ngủ khoa học, thẩm mỹ.

Vĩnh Phúc được biết đến là tỉnh có nhiều tài nguyên và tiềm năng để phát triển du lịch. Vĩnh Phúc không chỉ là địa phương có nhiều di tích, lễ hội dân gian gắn với truyền thống lịch sử của dân tộc mà Vĩnh Phúc còn nằm trong vùng chuyển tiếp giữa đồng bằng sông Hồng với các tỉnh trung du miền núi phía Bắc. Địa hình tự nhiên tạo nên nhiều cảnh quan hấp dẫn như: dãy Tam Đảo, nơi có khu du lịch Tam Đảo - nơi nghỉ dưỡng lý tưởng cho du khách, các hồ Đại Lải, Bồ Lạc, Vạn Trục, Thanh Lanh, Xà. Hương, đầm Vạc,…
Đối mặt với tình huống này, nhu cầu du lịchtham quan ngày càng tăng nhằm đáp ứng tốt nhất nhu cầu du lịch, nghỉ dưỡng của du khách, đồng thời thúc đẩy kinh tế địa phương phát triển, trong đó không thể thiếu những công trình quy mô lớn như 3 khách sạn. sao, 4 sao, 5 sao,…
SƠ LƯỢC VỀ KHÁCH SẠN CỔ ĐIỂN 3 SAO - Khách sạn 0057
Để tạo bước đột phá trong phát triển du lịch, ngoài việc tỉnh luôn chú trọng nâng cấp và phát triển hạ tầng du lịch, các đơn vị kinh doanh trong lĩnh vực du lịch cũng tích cực tìm hướng đầu tư chiến lược nhất. Là một trong những đơn vị có kinh nghiệm hoạt động trên thị trường này, Công ty TNHH Dịch vụ nấu ăn số 1 Vĩnh Phúc đã nhanh chóng đi đến quyết định đầu tư thiết kế và xây dựng tại huyện Tam Đảo với sự hợp tác của: Công ty Cổ phần Tư vấn Xây dựng Sơn Hà (SHAC)
Thiết kế album ảnh và bản vẽ
Trên thực tế, việc đầu tư vào kinh doanh khách sạn được đánh giá là rất rủi ro vì số vốn mà chủ đầu tư phải bỏ ra là rất lớn. Vì vậy, để dự án được thực hiện thành công, tất cả các hoạt động phải được thực hiện cẩn thận và đáng tin cậy. Theo đó, ngay từ những bước đầu tiên xây dựng, khâu thiết kế được ưu tiên số một bởi đây là yếu tố khởi đầu, đặt nền móng cho sự hoàn thiện và làm ăn phát đạt của chủ đầu tư sau này.
Tóm tắt các chức năng của dự án
Khách sạn tân cổ điển 3 sao 7 tầng có mặt tiền ưa nhìn lại nằm ở vị trí thuận tiện đi lại tạo nhiều điều kiện cho các kiến trúc sư thỏa sức trổ tài với lĩnh vực kén người xem.
MẶT BẰNG THIẾT KẾ KIẾN TRÚC CỔ ĐIỂN TRUNG LẬP SANG TRỌNG
Nhiều đồng nghiệp trong ngành của chúng tôi đã nói rằng, thiết kế kiến trúc khách sạn là một công việc không hề đơn giản mà ngược lại phải được thực hiện một cách hoàn chỉnh và được tính toán tỉ mỉ. Chủ đầu tư cũng nhấn mạnh, để thiết kế cho những công trình như thế này, họ phải là những kiến trúc sư có kinh nghiệm trong nghề, được đào tạo bài bản, có trình độ và năng lực. nắm bắt xu hướng thiết kế holtel mới, đẹp, sáng tạo, chuyên nghiệp để đưa thiết kế khách sạn 3 sao trở nên khác biệt và hoàn toàn khác biệt so với các đối thủ. tranh khác.
Rõ ràng, khi đến một khách sạn nào đó để nghỉ ngơi, tiêu chí hàng đầu mà du khách luôn quan tâm đó là: Chất lượng dịch vụ; Vị trí thuận tiện; Giá tốt; Kiến trúc - nội thất phải bắt mắt đạt tiêu chuẩn xếp hạng khách sạn 3 sao.
So sánh những yếu tố này thì chỉ có chủ đầu tư SH KS 0057 mới có thể hoàn toàn tự hào về công trình khách sạn 3 sao phong cách tân cổ điển của mình.

Mặt tiền đẹp bao gồm các hình dạng và đường nét đơn giản tạo nên nét độc đáo cho khách sạn. Các hình khối đơn giản tạo nên sự nhẹ nhàng thanh thoát, không tạo cảm giác nặng nề cho các hình khối. Các khối nhà được xếp chồng lên nhau tạo thành một khối hoàn chỉnh và vững chắc, tạo sự an toàn cho khách khi nghỉ ngơi. Mặt khác, các hình khối, đường nét phải phù hợp với kiến trúc và không gian xung quanh để tạo nên sự hài hòa, bắt mắt.
Một điểm sáng trong thiết kế của công trình này là sử dụng màu vàng nhạt làm tông màu chủ đạo. Màu vàng nhạt được coi là gam màu nhẹ dễ kết hợp với các màu khác để tạo điểm nhấn cho công trình. Màu vàng nhạt còn gợi lên sự sang trọng, đẳng cấp cho thiết kế tân cổ điển sang trọng.

Trong dự án này, các kiến trúc sư đã sử dụng kính làm vật liệu chính cho tất cả các cửa sổ. Những tấm kính lớn sáng bóng tạo cảm giác tươi mới, sang trọng. Cần phải nhấn mạnh rằng việc sử dụng kính ở cửa sổ còn có tác dụng lấy ánh sáng tự nhiên vào không gian các phòng, tạo cảm giác gần gũi với thiên nhiên và không khí trong phòng thoáng mát hơn.
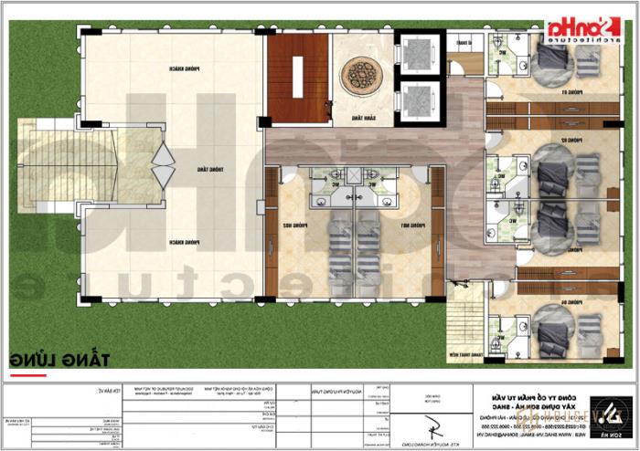
THIẾT KẾ MẶT BẰNG KHÁCH SẠN
Mời các bạn xem thêm các bản vẽ mặt bằng công năng thể hiện bố cục không gian của công trình khách sạn 3 sao:





Cảm ơn quý vị đã theo dõi bài viết giới thiệu hình ảnh và thiết kế kiến trúc khách sạn 3 sao tân cổ điển tại Vĩnh Phúc được chúng tôi giới thiệu trên đây. Nếu cần thêm mẫu hoặc tư vấn thiết kế, thi công, báo giá cụ thể, vui lòng liên hệ SHAC theo thông tin bên dưới.
Để biết thêm chi tiết vui lòng liên hệ:CÔNG TY CỔ PHẦN TƯ VẤN XÂY DỰNG SƠN HÀ (SHAC)Trụ sở chính: Số 318 - 319 HK3 Phố Bùi Viện, Lê Chân, Hải Phòng
- Điện thoại: 0225 2222 555
- Hotline: 0906 222 555
- Email: sonha@shac.vn
Văn phòng đại diện
- Tại hà nội: Số 4/172, Ngọc Hồi, Huyện Thanh Trì, TP. Hà nội
- Ở quảng ninh: Số 289, Phường Giếng Đáy, TP. Hạ Long, Tỉnh. Quang ninh
- Tại đà nẵng: Số 51m Đường Nguyễn Chí Thanh, Phường Thạch Thang. Q. Hải Châu, Tp. Đà Nẵng
- Ở sài gòn: Số 45 Đường 17, Khu B, An Phú, Quận 2, TP. Hồ Chí Minh
- Xưởng nội thất: Số 45 Thông Trực, Nam Sơn. Kiến An, Tp. Hải phòng