Mẫu thiết kế khách sạn tân cổ điển 4 sao 2000m2 tại Phú Quốc - SH KS 0060
Lĩnh vực thiết kế khách sạn tại Phú Quốc (hay rộng hơn là thiết kế khách sạn tại Kiên Giang) của SHAC thực sự mang bản sắc riêng với những công trình quy mô lớn như: Thiết kế khách sạn hiện đại tiêu chuẩn 5 sao 1078,5m2; mẫu khách sạn đẹp hiện đại thiết kế tiêu chuẩn 4 sao; thiết kế khách sạn 5 sao sang trọng;… Theo đánh giá của khách hàng SHAC, đây là những phương án thiết kế khách sạn không chỉ giàu chất xám mà còn thể hiện phong cách làm việc chuyên nghiệp của đội ngũ kiến trúc sư SHAC. Cụ thể, đó là thiết kế khả thi, bám sát thực tế, từng đường nét dựa trên sự nghiên cứu kỹ lưỡng về vị trí, văn hóa vùng miền, định hướng kinh doanh, tiêu chuẩn thiết kế khách sạn, ... và vô số vấn đề khác để công trình trở nên độc đáo trong thiết kế - chất lượng trong thi công .

NỘI DUNG CHÍNH
- Đầu tiên Khách sạn 0060 - Khách sạn tiêu chuẩn 4 sao tại Phú Quốc
- 2 Phương án thiết kế kiến trúc
- 3 Kế hoạch sàn
Tại đảo ngọc Phú Quốc, những mẫu thiết kế khách sạn 4 sao mang thương hiệu SHAC uy tín và giàu bản sắc đã được trình làng trước sự đánh giá cao của cả chủ đầu tư. Tiếp tục phát huy nội lực, khai thác lợi thế, năm 2018 hứa hẹn sẽ gia tăng mật độ phủ sóng tại các khách sạn nổi tiếng của SHAC. Trong bài viết hôm nay, chúng tôi xin giới thiệu đến các bạn bộ hồ sơ thiết kế khách sạn tân cổ điển 200m2 4 sao tại Phú Quốc.
Bạn sẽ thấy sự khác biệt đáng ngạc nhiên trong tư duy thiết kế khách sạn từ công năng, kiến trúc cho đến các vấn đề khác. Bạn cũng sẽ tổng hợp cho mình những tài liệu tham khảo hữu ích và thiết thực nhất về các tiêu chuẩn thiết kế mới nhất. Hãy theo dõi bài viết dưới đây và trải nghiệm những gì chúng tôi vừa chia sẻ.
Khách sạn 0060 - Khách sạn tiêu chuẩn 4 sao tại Phú Quốc
Nếu bạn đang tìm kiếm ý tưởng thiết kế khách sạn tân cổ điển thì chúng tôi tự tin khẳng định SH KS 0060 là một ý tưởng không tồi.
Hình ảnh thiết kế của khách sạn
Chi tiết khách sạn
Công trình khách sạn 4 sao này gồm 8 tầng nổi + 1 tầng hầm. Các tiêu chuẩn thiết kế khách sạn 4 sao được đảm bảo và thực hiện chi tiết nhất trong thiết kế tổng thể. Đây là thông tin cơ bản về dự án
Phương án thiết kế kiến trúc
Không chỉ thiết kế tiêu chuẩn của khách sạn 4 saomà đối với bất kỳ dự án nào cũng cần được đảm bảo về mặt kiến trúc (thiết kế khách sạn tân cổ điển, khách sạn hiện đại, khách sạn boutique, v.v.). Trên thực tế, có nhiều phong cách kiến trúc khác nhau nên không bắt buộc phải tuân theo một phong cách kiến trúc nào cả. Thiết kế phải đạt tiêu chuẩn, sử dụng vật liệu tốt đảm bảo yêu cầu tiêu chuẩn cho từng mẫu thiết kế khách sạn 4 sao đẹp - quan điểm này đã nhận được sự đồng thuận của nhiều người.
Mặt tiền khách sạn
Khách hàng dễ dàng nhận thấy bởi gam màu trắng ngà tinh tế được bao phủ toàn bộ ngoại thất khách sạn tân cổ điển tại Phú Quốc. Thông thường, đây cũng là gam màu chủ đạo được sử dụng trong các thiết kế khách sạn, đặc biệt là các khách sạn cao tầng, nếu không sẽ sử dụng cửa kính cho các mẫu thiết kế khách sạn tân cổ điển đẹp tiêu chuẩn 4 sao. và hoàn thành.
Thật vậy, gam màu trắng sữa đồng nhất từ ngoại thất khách sạn tạo nên nét đặc trưng trong thiết kế, làm nổi bật khách sạn 4 sao của chủ đầu tư Thủy so với các công trình cùng khu vực.

Mặt tiền của khách sạn 4 sao được thiết kế với các khối kiến trúc đua ra tạo điểm nhấn, mang đến sự bề thế, bề thế và hoành tráng cho tổng thể công trình.
Để lên phương án thiết kế kiến trúc khách sạn 4 sao tân cổ điển SH KS 0060 phù hợp với yêu cầu và nguyện vọng của chủ đầu tư, các kiến trúc sư của chúng tôi ngoài việc khảo sát kỹ lưỡng yêu cầu công năng từ phía gia chủ. Chủ đầu tư cũng rất chú trọng đến cảnh quan xung quanh để tạo điểm nhấn và điểm nhấn của dự án so với các công trình khách sạn lân cận.

Phong cách tân cổ điển đã mang đến cho khách sạn 4 sao Kiên Giang những không gian đầy màu sắc và những cung bậc cảm xúc khác nhau. Kiến trúc công trình được thiết kế gợi cảm giác thích thú cho mỗi người nhờ sự chuyển động tương phản giữa hình khối và màu sắc của từng khối chi tiết, đường gờ trang trí và các quy tắc trang trí nghiêm ngặt. ngành kiến trúc.
Kiến trúc tân cổ điển sang trọng
Với hình khối kiến trúc cân đối, việc sử dụng các đường thẳng làm nổi bật các cột trụ uy nghi khiến mẫu thiết kế khách sạn 4 sao tân cổ điển hiện lên bề thế và ấn tượng. Đặc biệt, các chi tiết hoa văn được chỉ nhẹ nhàng tạo độ mềm mại nhất định cho tác phẩm. Sảnh khách sạn ấn tượng với chất liệu đá hoàng gia nổi bật trên nền trắng trang nhã của công trình khách sạn mang đến cho du khách cảm giác sang trọng và cuốn hút lạ kỳ.


2000m2 không phải là diện tích nhưng bạn sẽ bất ngờ với một không gian khách sạn 4 sao siêu sang trọng và ấn tượng. Toàn bộ không gian khách sạn được thiết kế theo phong cách tân cổ điển, những đường gờ phào chỉ tân cổ điển nhẹ nhàng kết hợp với những họa tiết hoa văn được đưa ra một cách tinh tế có chút hướng ngoại để lại ấn tượng hoàn hảo. Hoàn toàn có sức mạnh đối với bất kỳ ai đã từng sử dụng và ngưỡng mộ nó.
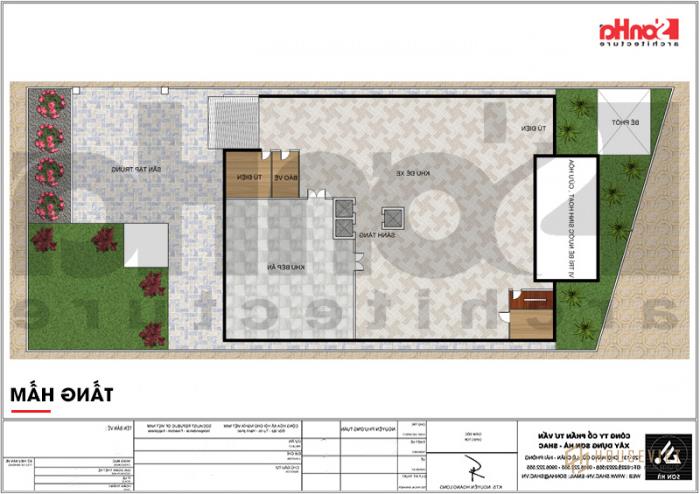
Kế hoạch sàn
Không chỉ được đánh giá cao về kiến trúc, khách sạn 4 sao tại Phú Quốc còn hạ gục chủ đầu tư bởi công năng thiết kế khoa học, tận dụng được lợi thế của khu đất.
Quan điểm làm việc của chúng tôi là khi nhận được yêu cầu tư vấn của khách hàng, các kiến trúc sư phải cố gắng nắm bắt hết những mong muốn của đơn vị đầu tư và đưa ra những giải pháp, phương án thiết kế phù hợp. thống nhất cho từng không gian sử dụng của tòa nhà. Áp dụng quan điểm thiết kế này, mọi chi tiết trong thiết kế khách sạn 4 sao tại Kiên Giang và từng công năng sử dụng đều được tính toán kỹ lưỡng. Các yếu tố đảm bảo sự vận hành chặt chẽ và thông suốt của dự án được thể hiện rõ ràng trong Cơ sở khách sạn 4 sao Chúng tôi giới thiệu dưới đây:




Để biết thêm chi tiết vui lòng liên hệ:CÔNG TY CỔ PHẦN TƯ VẤN XÂY DỰNG SƠN HÀ (SHAC)Trụ sở chính: Số 318 - 319 HK3 Phố Bùi Viện, Lê Chân, Hải Phòng
- Điện thoại: 0225 2222 555
- Hotline: 0906 222 555
- Email: sonha@shac.vn
Văn phòng đại diện
- Tại hà nội: Số 4/172, Ngọc Hồi, Huyện Thanh Trì, TP. Hà nội
- Ở quảng ninh: Số 289, Phường Giếng Đáy, TP. Hạ Long, Tỉnh. Quang ninh
- Tại đà nẵng: Số 51m Đường Nguyễn Chí Thanh, Phường Thạch Thang. Q. Hải Châu, Tp. Đà Nẵng
- Ở sài gòn: Số 45 Đường 17, Khu B, An Phú, Quận 2, TP. Hồ Chí Minh
- Xưởng nội thất: Số 45 Thông Trực, Nam Sơn. Kiến An, Tp. Hải phòng