Mẫu thiết kế khách sạn tân cổ điển tiêu chuẩn 3 sao tại Vũng Tàu - SH KS 0051
Thiết kế khách sạn phong cách tân cổ điển đang làm mưa làm gió trên thị trường kiến trúc và xây dựng và được nhiều chủ đầu tư ưa chuộng trong những năm gần đây, nó chiếm được cảm tình của rất nhiều nhà thiết kế bởi vẻ đẹp của nó. Tây lai ”, sức hút ẩn sâu bên trong Dù không phải là loại hình kiến trúc phổ biến như kiến trúc hiện đại hay kiến trúc cổ điển nhưng bất cứ ai cũng phải thừa nhận rằng họ dễ dàng bị không gian kiến trúc tân cổ điển cuốn hút với vẻ đẹp trang nhã, sang trọng và tinh tế của đường nét hình khối đặc trưng.

Dịch vụ thiết kế khách sạn đẹp từ lâu đã trở thành lĩnh vực mũi nhọn, chủ lực góp phần làm nên thương hiệu Công ty Cổ phần Tư vấn Xây dựng Sơn Hà (Son Ha Architecture - SHAC) uy tín và giàu bản sắc trong suốt thời gian qua. gần 15 năm hoạt động. Với những thành công đáng tự hào đó, đặc biệt là ở hạng mục thiết kế khách sạn tân cổ điển, hôm nay KTS Sơn Hà xin mời quý độc giả và quý khách hàng cùng đến với bộ hồ sơ thiết kế khách sạn tân cổ điển. Tiêu chuẩn 3 sao tại Vũng Tàu - SH KS 0051 vừa được chủ đầu tư bàn giao.
NỘI DUNG CHÍNH
- Đầu tiên Tổng quan về khách sạn
- 2 KIẾN TRÚC KHÁCH SẠN 3 SAO TẠI VŨNG TÀU
- 3 Giải pháp bố trí chức năng khách sạn
- 4 Thiết kế nội thất khách sạn 3 sao
Hài lòng với thiết kế kiến trúc ngoại thất, ấn tượng với không gian nội thất tiện nghi, công năng khoa học là những từ mà chúng tôi miêu tả về công trình. Thiết kế khách sạn 3 sao đây. Mời quý độc giả theo dõi bài viết để hiểu rõ hơn về ý tưởng thiết kế khách sạn tân cổ điển độc đáo của các Kiến trúc sư SHAC.
Tổng quan về khách sạn
Với hàng trăm công trình khách sạn đẹp không chỉ độc đáo về thiết kế mà còn chất lượng thi công trải dài trên khắp 3 miền đất nước, SHAC có thể tự hào khẳng định rằng lĩnh vực thiết kế khách sạn đẹp nói chung và thiết kế khách sạn Tân cổ điển nói riêng đã và đang gặt hái được nhiều thành công nhất của SHAC.
Ảnh kiến trúc & nội thất
Với ý tưởng kinh doanh khách sạn 3 sao, chủ đầu tư và kiến trúc sư SHAC thống nhất đi theo lối kiến trúc tân cổ điển với những đường nét thanh thoát, trang nhã bắt kịp nhịp sống hiện nay. . Đồng bộ sự tiện nghi và sang trọng trong từng không gian sử dụng để lại ấn tượng sâu sắc ngay từ sảnh, quầy lễ tân của khách sạn 3 sao tân cổ điển và cao cấp này.
Thông tin dự án
KIẾN TRÚC KHÁCH SẠN 3 SAO TẠI VŨNG TÀU
Khách sạn 3 sao phong cách tân cổ điển là sự giao thoa của kiến trúc cổ điển Châu Âu và kiến trúc hiện đại. Hội tụ những tinh hoa của hai nền kiến trúc nổi bật, những đường nét của SH KS 0051 vừa quyến rũ, mềm mại, vừa kiêu kỳ cuốn hút mọi ánh nhìn khó có thể rời mắt.
Video giới thiệu khách sạn
[embed]https://www.youtube.com/watch?v=GYMwBPqK8bA[/embed]
Sự thống nhất trong ý tưởng thiết kế khách sạn tân cổ điển tại Vũng Tàu của KTS Sơn Hà được các KTS Sơn Hà triển khai vô cùng logic và khoa học nên phối cảnh tổng thể ngoại thất vương giả, uy nghi hứa hẹn sẽ mang lại hiệu quả kinh doanh. cao nhất cho dự án.
Mặt tiền
Bạn đọc hãy cùng chúng tôi chiêm ngưỡng không gian kiến trúc khách sạn tân cổ điển Tiêu chuẩn 3 sao tại Vũng Tàu qua các góc nhìn:

Sở hữu diện mạo kiến trúc trang nhã, khách sạn tân cổ điển 7 tầng thu hút khách hàng không chỉ bởi vẻ đẹp hiện đại, tiện nghi mà còn bởi nét cổ điển độc đáo, sang trọng và cuốn hút. Không chỉ vậy, kế hoạch quy hoạch chức năng Khách sạn 7 tầng Điều này cũng được các kiến trúc sư của chúng tôi khảo sát kỹ lưỡng để đáp ứng nhu cầu và nguyện vọng của chủ đầu tư.
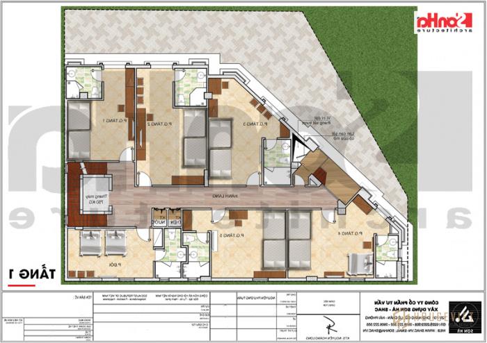
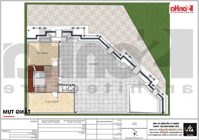
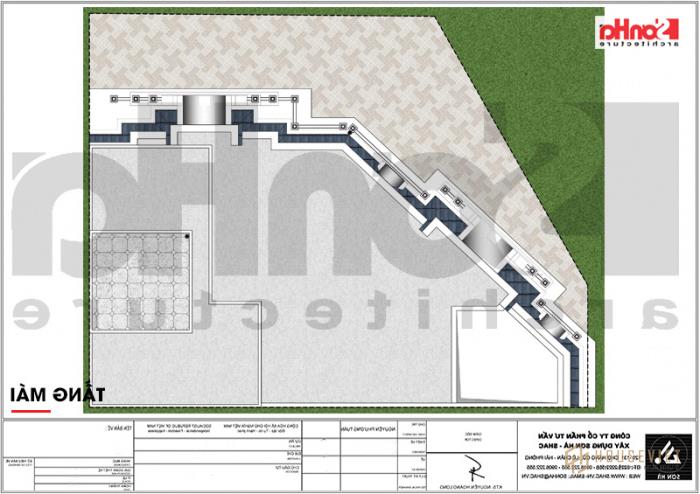
Giải pháp bố trí chức năng khách sạn
Bản vẽ chi tiết về Mặt bằng khách sạn 3 sao Diện tích 380,6 m2 (17,3mx 22m) này hoàn toàn chinh phục sự hài lòng của chủ đầu tư. Sau thời gian làm việc nghiêm túc, kiến trúc sư SHAC đã mang đến cho bạn đọc và quý khách hàng bản vẽ bố trí công năng hoàn hảo, được tính toán và cân nhắc kỹ lưỡng với mục đích sử dụng mà chủ đầu tư mong muốn. Dương đề nghị.
Dưới đây là công năng sử dụng của khách sạn 3 sao 7 tầng để các bạn tham khảo:









Thiết kế nội thất khách sạn 3 sao
Lĩnh vực thiết kế nội thất khách sạn của SHAC cũng có những bước phát triển đáng mừng với nhiều dự án phong cách đa dạng. Giải pháp thiết kế nội thất tân cổ điển khách sạn 3 sao tại Vũng Tàu được tạo ra từ sự kết hợp nhuần nhuyễn nhất giữa phong cách cổ điển với những cách tân phù hợp nhất. Từ màu sắc đến đường nét đều được các kiến trúc sư đầu tư kỹ lưỡng để tạo nên một không gian nghỉ dưỡng và ẩm thực với những trải nghiệm thú vị.
Mời các bạn tiếp tục chiêm ngưỡng mẫu thiết kế nội thất khách sạn 3 sao tại Vũng Tàu:
1, Thiết kế quầy lễ tân khách sạn tân cổ điển


2, Thiết kế nội thất phòng ăn khách sạn 3 sao
Và đây là mẫu thiết kế phòng ăn của khách sạn 3 sao được lựa chọn gam màu trầm tinh tế:


3, Thiết kế phòng bếp và phòng ăn khách sạn 3 sao
Mời các bạn xem qua những hình ảnh thiết kế phòng bếp khách sạn để thấy hết được sự tinh tế trong cách bố trí nội thất mà các kiến trúc sư đã thực hiện cho khách sạn đẹp này.




Các mẫu phòng ngủ khách sạn tiêu chuẩn 4, 3 sao
Mẫu thiết kế nội thất phòng ngủ khách sạn đẹp với cách bài trí đơn giản, thông thoáng dễ dàng đánh gục mọi “giác quan” của bất kỳ du khách nào.







Trên đây SHAC vừa giới thiệu tới bạn đọc mẫu khách sạn 3 sao tân cổ điển sang trọng tại Vũng Tàu. Chúng tôi tin rằng bạn đọc sẽ có những trải nghiệm thú vị với phương án thiết kế kiến trúc và bố trí công năng khoa học của khách sạn đẹp này.
Để biết thêm chi tiết vui lòng liên hệ:CÔNG TY CỔ PHẦN TƯ VẤN XÂY DỰNG SƠN HÀ (SHAC)Trụ sở chính: Số 318 - 319 HK3 Phố Bùi Viện, Lê Chân, Hải Phòng
- Điện thoại: 0225 2222 555
- Hotline: 0906 222 555
- Email: sonha@shac.vn
Văn phòng đại diện
- Tại hà nội: Số 4/172, Ngọc Hồi, Huyện Thanh Trì, TP. Hà nội
- Ở quảng ninh: Số 289, Phường Giếng Đáy, TP. Hạ Long, Tỉnh. Quang ninh
- Tại đà nẵng: Số 51m Đường Nguyễn Chí Thanh, Phường Thạch Thang. Q. Hải Châu, Tp. Đà Nẵng
- Ở sài gòn: Số 45 Đường 17, Khu B, An Phú, Quận 2, TP. Hồ Chí Minh
- Xưởng nội thất: Số 45 Thông Trực, Nam Sơn. Kiến An, Tp. Hải phòng