Mẫu thiết kế khách sạn tân cổ điển tiêu chuẩn 3 sao tại Vũng Tàu - SH KS 0052
Một trong những lĩnh vực mà Công ty Cổ phần Tư vấn Xây dựng Sơn Hà (thương hiệu SHAC - Son Ha Architecture) luôn hướng đến và phát triển là thiết kế khách sạn đẹp. Đây cũng là hạng mục gặt hái được nhiều thành công trên thị trường trong nhiều năm qua, mở ra nhiều cơ hội hợp tác phát triển cho công ty thiết kế khách sạn uy tín hàng đầu Việt Nam.
Tiếp nối thành công của Mô hình khách sạn 3 sao Kiến trúc tân cổ điển tại Vũng Tàu - SH KS 0051, Kiến trúc sư SHAC rất mong nhận được sự tin tưởng của chủ đầu tư là anh Trần Quốc Tuấn, hiện đang sinh sống tại thành phố Vũng Tàu - tỉnh Bà Rịa, Vũng Tàu để hợp tác. Tạo nên một khách sạn tân cổ điển tiêu chuẩn 3 sao sang trọng và cuốn hút.

Quyết định thực hiện dự án thiết kế Khách sạn tân cổ điển 3 sao tại Vũng Tàu - SH KS 0052Anh Tuấn giao cho KTS Sơn Hà từ việc nghiên cứu, lên phương án thiết kế kiến trúc, quy hoạch sử dụng một cách chặt chẽ, cẩn thận, đảm bảo đúng tiến độ để làm nên một công trình khách sạn đẹp, có dấu ấn. Kiến trúc khác biệt.
NỘI DUNG CHÍNH
- Đầu tiên Thông tin dự án thiết kế khách sạn tân cổ điển tại Vũng Tàu
- 2 Phối cảnh kiến trúc mặt tiền
- 3 Hình ảnh thực tế của khách sạn khi hoàn thành
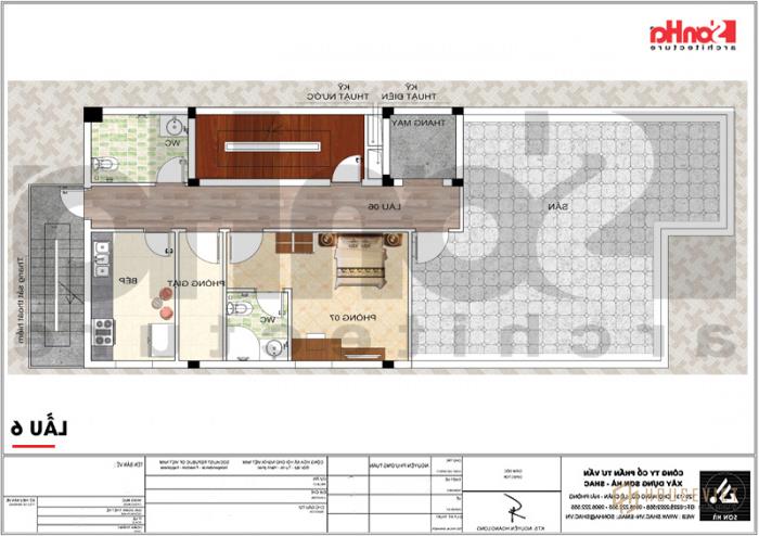
- 4 Mặt bằng S = 140m2
Tham gia bộ sưu tập thiết kế khách sạn Độc đáo và ấn tượng tại thành phố biển Vũng Tàu xinh đẹp, công trình khách sạn tân cổ điển tiêu chuẩn 3 sao sang trọng và ấn tượng vừa được KTS Sơn Hà bàn giao đã tạo nên một dấu ấn kiến trúc vô cùng tinh tế trong lòng. người dân địa phương và khách du lịch khi có cơ hội trải nghiệm khám phá.
Thông tin dự án thiết kế khách sạn tân cổ điển tại Vũng Tàu
Dưới đây là hồ sơ thiết kế khách sạn 3 sao tân cổ điển tại Vũng Tàu - SH KS 0052 trân trọng kính mời quý độc giả và quý khách hàng cùng tham khảo:
Video tổng quan
[embed]https://www.youtube.com/watch?v=MjKWfj8qOSc[/embed]
Mẫu khách sạn tân cổ điển mang thương hiệu SHAC đã không ít lần làm xôn xao giới đầu cơ và nhận được nhiều phản hồi, đánh giá tích cực từ phía khách hàng, đồng nghiệp và chủ đầu tư trên cả nước. Với tinh thần làm việc hăng say, sức trẻ, tâm huyết với nghề KTS Sơn Hà luôn nhận được sự hài lòng, đây tiếp tục là động lực to lớn để chúng tôi tiếp tục cho ra đời những công trình “Độc nhất vô nhị trong thiết kế”. Thiết Kế - Chất Lượng Trong Thi Công ”tại Vũng Tàu nói riêng cũng như trên khắp các tỉnh thành Việt Nam nói riêng.
Mẫu thiết kế khách sạn tân cổ điển 7 tầng tại Vũng Tàu - SH KS 0052 tạo được sức hút lớn đối với du khách và người dân địa phương bởi sự sang trọng, nhẹ nhàng trong phong cách mà gia chủ hướng tới. Dưới đây là thông tin chung về ứng dụng thiết kế khách sạn tại vũng tàumời bạn đọc cùng tìm hiểu chi tiết:
Thông tin dự án
Phối cảnh kiến trúc mặt tiền
Tự tin khoác lên mình lối kiến trúc tân cổ điển nhẹ nhàng, mẫu thiết kế khách sạn 3 sao 7 tầng tại Vũng Tàu này đã ngay lập tức chiếm được cảm tình của chủ dự án và khách hàng sau khi nhìn thấy. Thành công của hồ sơ thiết kế khách sạn 7 tầng đẹp tại Vũng Tàu là lối thiết kế kiến trúc vô cùng sang trọng và nâng tầm vị thế của gia chủ.
SH KS 0052 được đánh giá là độc đáo và tinh tế không chỉ bởi kiến trúc khách sạn đẹp, đẳng cấp, ý tưởng thiết kế hoàn hảo mà còn bởi việc áp dụng những tiêu chuẩn thiết kế khách sạn 3 sao vô cùng khắt khe. Phối cảnh kiến trúc trang nhã, sang trọng dưới đây của chúng tôi đủ để khẳng định khả năng tài hoa mà KTS Sơn Hà mang đến cho công trình:

Hình ảnh thực tế của khách sạn khi hoàn thành
Mặt bằng S = 140m2
Tiếp tục nội dung bài viết, SHAC mời bạn đọc cùng đến với phương án bố trí công năng của công trình khách sạn tân cổ điển 7 tầng đẹp tại Vũng Tàu diện tích sàn 140m2.








Để biết thêm chi tiết vui lòng liên hệ:CÔNG TY CỔ PHẦN TƯ VẤN XÂY DỰNG SƠN HÀ (SHAC)Trụ sở chính: Số 318 - 319 HK3 Phố Bùi Viện, Lê Chân, Hải Phòng
- Điện thoại: 0225 2222 555
- Hotline: 0906 222 555
- Email: sonha@shac.vn
Văn phòng đại diện
- Tại hà nội: Số 4/172, Ngọc Hồi, Huyện Thanh Trì, TP. Hà nội
- Ở quảng ninh: Số 289, Phường Giếng Đáy, TP. Hạ Long, Tỉnh. Quang ninh
- Tại đà nẵng: Số 51m Đường Nguyễn Chí Thanh, Phường Thạch Thang. Q. Hải Châu, Tp. Đà Nẵng
- Ở sài gòn: Số 45 Đường 17, Khu B, An Phú, Quận 2, TP. Hồ Chí Minh
- Xưởng nội thất: Số 45 Thông Trực, Nam Sơn. Kiến An, Tp. Hải phòng