Mẫu thiết kế khách sạn tiêu chuẩn 3 sao phong cách tân cổ điển trang nhã tại Quảng Ninh - SH KS 0053
Phong cách tân cổ điển luôn được đánh giá là lối thiết kế kiến trúc làm nên vẻ đẹp sang trọng và lịch lãm nhất, những mẫu khách sạn đẹp thiết kế theo phong cách này cũng tạo được ấn tượng thu hút khách hàng. ngay từ cái nhìn đầu tiên khi họ đến khách sạn của bạn. Ưu điểm của những mẫu khách sạn tân cổ điển là tạo cảm giác ấm cúng, gần gũi nhưng không kém phần trang trọng, lịch lãm.

Là người yêu thích sự sang trọng, quý phái của dòng kiến trúc tân cổ điển, chủ đầu tư Hà Văn Tố đã quyết định hợp tác với Sơn Hà - đơn vị thiết kế và thi công khách sạn trọn gói uy tín để cùng xây dựng dự án. Khách sạn tân cổ điển hiện nay Tiêu chuẩn quốc tế 3 sao. Thành công của khách sạn 3 sao tân cổ điển sang trọng tại Quảng Ninh - SH KS 0053 này là kết quả của quá trình làm việc ăn ý và hiệu quả giữa chủ đầu tư Tới và KTS Sơn Hà.
NỘI DUNG CHÍNH
- Đầu tiên Thông tin dự án thiết kế khách sạn
- 2 Thiết kế kiến trúc
- 3 Giải pháp bố trí công năng
SH KS 0053 là sự hòa quyện giữa nét tinh hoa, cổ kính và phóng khoáng của con người hiện đại, đường nét kiến trúc đơn giản, nhẹ nhàng nhưng mang tính thẩm mỹ cao. Các kiến trúc sư SHAC đã đầu tư nhiều thời gian tính toán kỹ lưỡng, quy trình xây dựng, quy hoạch công năng khoa học nhất nhằm mang đến sự hài lòng tuyệt đối cho chủ đầu tư.
Mời bạn đọc cùng đến với bộ hồ sơ thiết kế khách sạn tân cổ điển 3 sao tại Quảng Ninh để hiểu rõ hơn về ý tưởng thiết kế của KTS Sơn Hà:
Thông tin dự án thiết kế khách sạn
Mang phong cách tân cổ điển sang trọng hút mắt, thiết kế Khách sạn 7 tầng Nơi đây ngay lập tức chiếm được cảm tình của các nhà đầu tư và du khách dù chỉ một lần đặt chân đến thành phố Hạ Long - tỉnh Quảng Ninh. Khách sạn có thiết kế kiến trúc vô cùng sang trọng và nâng tầm vị thế của chủ đầu tư. Dưới đây là thông tin tổng quan nhất về dự án, mời bạn đọc tham khảo.
Thông tin dự án
Thiết kế kiến trúc
Chủ đầu tư là một người thành đạt, đã đi nhiều nơi và từng chiêm ngưỡng nhiều công trình kiến trúc nổi tiếng, chính vì vậy mà anh ấy khá tỉ mỉ, đặt ra rất nhiều yêu cầu cao cho công trình khách sạn này. KTS Sơn Hà đã khéo léo chắt lọc những tinh hoa của khách sạn phong cách tân cổ điển để mang đến cho ngoại thất công trình nét kiến trúc khỏe khoắn, vững chãi, bên cạnh đó là sự kết hợp của các hoa văn trang trí. sự tinh tế mang đến vẻ đẹp cuốn hút không thể bỏ qua. Kiến trúc của khách sạn gây ấn tượng mạnh bởi vẻ đẹp trang nhã mang hơi hướng tân cổ điển, khác biệt hoàn toàn với không gian kiến trúc xung quanh.



SH KS 0053 mang những đường nét kiến trúc khỏe khoắn, chắc chắn được thực hiện bởi đội ngũ KTS Sơn Hà giàu chuyên môn, am hiểu trong lĩnh vực thiết kế khách sạn tân cổ điển. Không chỉ vậy, phương án bố trí công năng của khách sạn 7 tầng này cũng được kiến trúc sư đưa ra một cách khoa học, ưu tiên sự thuận tiện cho khách hàng.
Giải pháp bố trí công năng
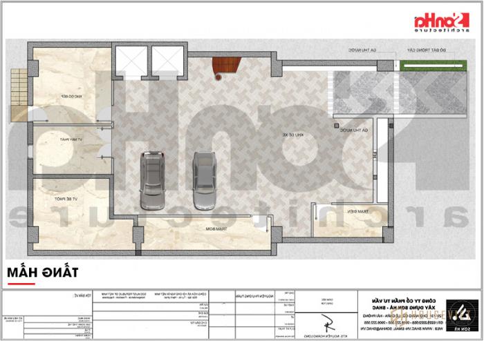
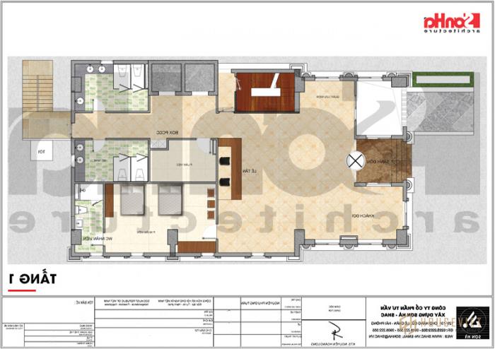
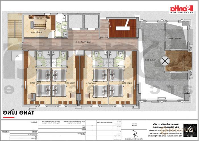
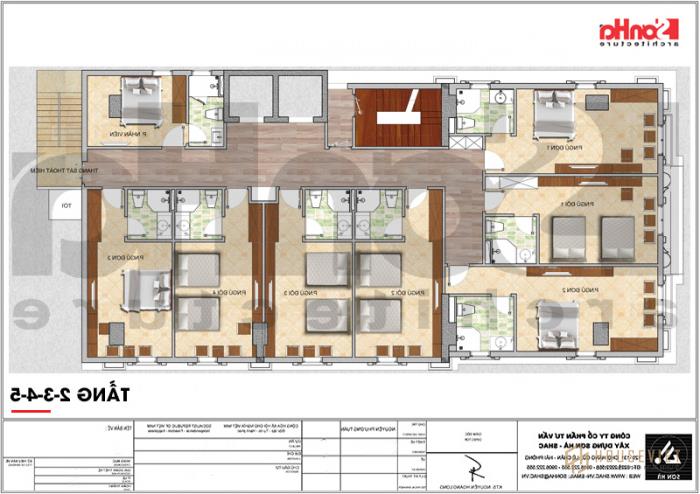
Toàn bộ mặt bằng công năng của khách sạn 7 tầng kiến trúc tân cổ điển 3 sao khang trang dưới đây sẽ giúp các bạn hình dung được một tổ hợp dịch vụ lưu trú và vui chơi giải trí vô cùng chuyên nghiệp, có thâm niên hàng đầu trong ngành mỏ, mời các bạn cùng theo dõi qua bản vẽ ấn tượng sau đây :






SHAC trân trọng cảm ơn bạn đọc đã quan tâm và theo dõi nội dung bài viết mẫu thiết kế khách sạn 3 sao tân cổ điển tại Quảng Ninh của chúng tôi. Tất cả sự tin tưởng, ủng hộ và hợp tác của Quý khách hàng sẽ là động lực để KTS Sơn Hà trình làng thêm nhiều công trình khách sạn “Độc đáo trong thiết kế - Chất lượng trong thi công”.
Để biết thêm chi tiết vui lòng liên hệ:CÔNG TY CỔ PHẦN TƯ VẤN XÂY DỰNG SƠN HÀ (SHAC)Trụ sở chính: Số 318 - 319 HK3 Phố Bùi Viện, Lê Chân, Hải Phòng
- Điện thoại: 0225 2222 555
- Hotline: 0906 222 555
- Email: sonha@shac.vn
Văn phòng đại diện
- Tại hà nội: Số 4/172, Ngọc Hồi, Huyện Thanh Trì, TP. Hà nội
- Ở quảng ninh: Số 289, Phường Giếng Đáy, TP. Hạ Long, Tỉnh. Quang ninh
- Tại đà nẵng: Số 51m Đường Nguyễn Chí Thanh, Phường Thạch Thang. Q. Hải Châu, Tp. Đà Nẵng
- Ở sài gòn: Số 45 Đường 17, Khu B, An Phú, Quận 2, TP. Hồ Chí Minh
- Xưởng nội thất: Số 45 Thông Trực, Nam Sơn. Kiến An, Tp. Hải phòng