Mẫu thiết kế nhà 1 tầng mặt tiền 7m ở Nam Định
Biệt thự Nhà 1 tầng 7x12m với kiến trúc mái thái hiện đại, công năng khoa học, kinh phí xây dựng 1,1 tỷ. Mẫu nhà đã ghi điểm cao trong mắt nhiều chủ đầu tư bởi thiết kế mới lạ, phá cách. Các điểm nhấn châu Á nổi bật trong ngôi nhà hiện đại này. Đi nào Chúng tôi làm Khám phá những ngôi nhà mẫu để làm phong phú thêm bộ sưu tập tác phẩm của bạn, một ngày nào đó bạn sẽ có được ngôi nhà gia đình như mơ ước của mình.

Thông tin mẫu nhà 1 tầng mặt tiền 7m
Chủ đầu tư: Hà Trọng Minh
Địa chỉ: Vụ Bản - Nam Định
Năm thiết kế: 2021
Phong cách: Biệt thự 1 tầng mái thái hiện đại
KTS: Ngô Minh Nghĩa
Diện tích thiết kế: 7x12m
Công năng: 3 phòng ngủ, phòng khách + phòng thờ, bếp, toilet chung
Kinh phí đầu tư: 1,1 tỷ đồng
Yêu cầu tư vấn thiết kế biệt thự 1 tầng hiện đại
Gia đình anh Minh hiện đang sinh sống tại huyện Vụ Bản, tỉnh Nam Định. Gia đình có 4 thành viên gồm vợ chồng và một cô con gái. Sau nhiều năm tích góp, hai vợ chồng dự định cuối năm 2021 sẽ khởi công xây dựng tổ ấm mới để ổn định cuộc sống.

Lô đất xây dựng khá rộng, hiện đang là vườn cây ăn trái. Diện tích sử dụng ước tính của công trình là 7x12m. Lúc đầu, vợ chồng anh định xây mẫu nhà 2 tầng, vì tính hiện đại, ngăn cách không gian sống của vợ chồng và hai con. Tuy nhiên, sau khi tính toán kỹ lưỡng, mẫu Nhà 1 tầng Vẫn là lựa chọn dài hạn tốt nhất.
Để công trình có tính thẩm mỹ cao thì kiến trúc biệt thự 1 tầng mái thái được ưu tiên lựa chọn. Để chuẩn bị kế hoạch thi công tốt nhất có thể trong tháng 8, gia đình đã thuê kiến trúc sư thiết kế từ đầu năm.
Yêu cầu đối với mẫu nhà của gia đình bạn như sau:
Thiết kế biệt thự thông thoáng, rộng rãi và hiện đại. Hình khối phải trang nhã, có sảnh phụ và sảnh phụ để dễ dàng đi ra vườn.
Bố trí phòng sinh hoạt chung với phòng thờ lưu giữ nét văn hóa quen thuộc của người dân quê Bắc Bộ.
3 phòng ngủ nên có cửa thông ra phòng xa, để đảm bảo sự riêng tư cho các thành viên trong gia đình.
Bố trí phòng khách bằng cách liên thông với phòng bếp, sử dụng vách ngăn để ngăn cách không gian. Chọn một thiết kế thoáng mát, thiết thực cho việc di chuyển cùng nhau và riêng biệt trong phòng ngủ.
Thiết kế 1 phòng vệ sinh lớn, làm nơi sinh hoạt chung của cả gia đình. Khu vệ sinh sát sảnh phụ thông ra sân, phục vụ giặt phơi quần áo bên ngoài.
Mái ngói sử dụng gam màu ghi xám, mái rộng, độ dốc vừa phải đảm bảo thoát nước.
Tổng kinh phí xây dựng hoàn thiện nội thất cơ bản của dự án không quá 1,1 tỷ.
Phối cảnh kiến trúc của mẫu nhà 1 tầng mái thái hiện đại
Sau khi nhận được mẫu yêu cầu tư vấn Nhà 1 tầng của chủ đầu tư, bộ phận chăm sóc khách hàng của Wedo đã trực tiếp liên hệ với anh Minh để hoàn thiện hồ sơ cơ bản. Cung cấp thông tin, truyền tải đến văn phòng thiết kế.

Ban đầu kiến trúc sư sẽ lên phương án mặt bằng công năng sơ bộ, sau khi chốt công năng sẽ vào thiết kế chi tiết mặt bằng, mặt đứng, tổng thể ngôi nhà.
Quá trình làm việc luôn tuân theo yêu cầu của gia đình. Kiến trúc sư đã ghi dấu ấn với gia đình, lúc đầu bảo vệ phương án, chủ đầu tư hoàn toàn đồng ý với phương án mà chúng tôi đề xuất với anh, không hề có ý kiến phản biện hay chỉnh sửa.
Do mặt tiền rộng 7 m nên kiến trúc sư thiết kế sảnh chính và ba bậc tam cấp lớn. Hai bên tạo thành bồn hoa hình chữ nhật bao quanh chân móng. Khu vực trông hài hòa được ốp bằng gạch màu vàng nâu đẹp mắt, vừa đảm bảo tính thẩm mỹ, tuổi thọ cho móng, vừa chống thấm nước và rong rêu khá hiệu quả.
Cột vuông được chọn làm cột chịu lực của các mẫu thiết kế nhà đẹp. Gờ chỉ ở chân cột và đầu cột tuy đơn giản nhưng lại có sự liên kết với các chi tiết khác.
Sảnh chính sử dụng đá hoa cương đen bóng, tạo sự tương phản với màu sơn sáng bên ngoài, không gian ngôi nhà sẽ rộng và nổi bật hơn.
Hình khối vuông vắn và chắc chắn. Mái thái rộng kết hợp với hệ thống cửa nhôm kính giả gỗ giúp ngôi nhà nổi bật hơn hẳn so với những ngôi nhà cùng phong cách.
Không gian sân chính khá thoáng và rộng, xung quanh ngôi nhà là những hàng cây ăn quả, không gian xanh bao trùm cả ngôi nhà. Mẫu nhà 1 tầng thông thoáng, rộng rãi, hợp chuẩn phong thủy hứa hẹn sẽ mang lại nhiều may mắn cho gia đình.
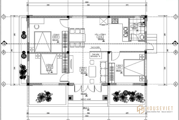
Phương án bố trí công năng của mẫu nhà 1 tầng hiện đại
Cách bố trí công năng sử dụng cho gia đình 4 người theo yêu cầu của anh Minh đã được kiến trúc sư nghiên cứu kỹ lưỡng. Các công năng được bố trí theo hướng nhà, nhu cầu sử dụng và công năng sử dụng chung của ngôi nhà.

Từ sân đi vào sảnh chính là phòng khách. Phòng khách kết hợp với phòng thờ gần cổng chính và hướng chính, đảm bảo phong thủy. Mẫu biệt thự 1 tầng đón được nhiều ánh sáng, phân bổ ở các không gian bên trong ngôi nhà. Phòng khách được ngăn cách với phòng bếp bằng một bức tường nhỏ. Không gian di động trong nhà đủ rộng, các không gian được kết nối với nhau nhưng không làm mất đi sự riêng tư.
Phòng bếp được thiết kế hình chữ nhật, bếp hình chữ L, đón ánh sáng và thông gió từ sảnh phụ. Nhà vệ sinh chung được bố trí ở góc gần cửa phụ nên dễ dàng sử dụng và di chuyển.
3 phòng ngủ được thiết kế đảm bảo sự riêng tư tuyệt đối. 3 cửa 3 buồng được thiết kế 3 đầu với 3 hướng khác nhau. Phòng ngủ chính có cửa sổ thông ra phía trước. Phòng ngủ của hai con gái liền nhau nhưng cách cửa ra vào để đảm bảo sự riêng tư cá nhân cho hai con.
Mẫu tủ cơ sở Nhà 1 tầng Bài trí khá nhỏ gọn, giường ngủ, bàn làm việc và tủ quần áo được bố trí gần góc để không bị lấn chiếm không gian.
Nhìn chung, không gian của ngôi nhà đáp ứng tối đa yêu cầu của một gia đình 4 người. Khoa học chuyển động, phòng ngủ được thiết kế theo phong thủy, hợp mệnh tốt của chủ nhân ngôi nhà.
To, chắc và đẹp. Mẫu nhà 1 lầu của gia đình anh đã thu hút nhiều nhà đầu tư khác. Hy vọng mẫu thiết kế nhà phố của gia đình anh sẽ giúp bạn có thêm nhiều ý tưởng phù hợp với không gian và điều kiện của gia đình mình.