Mẫu thiết kế nhà 2 tầng 8x10m hiện đại và cuốn hút
Mẫu thiết kế nhà 2 tầng 8x10m hiện đại đang có sức hút mạnh mẽ đối với khách hàng trong thời gian gần đây. Không chỉ mang đến kiến trúc ấn tượng mà mẫu nhà 2 tầng 8x10m còn có chi phí xây dựng hợp lý. Chủ nhân ngôi nhà được cung cấp một không gian sống tiện nghi, hài hòa đến từng chi tiết. Chính vì vậy mà nội thất House Viet xin giới thiệu đến quý khách hàng mẫu thiết kế nhà 8x10m sang trọng nhất hiện nay. Nhanh tay lưu lại những mẫu nhà 2 tầng dưới đây nhé!
Mẫu thiết kế nhà 2 tầng 8x10m mái thái hiện đại
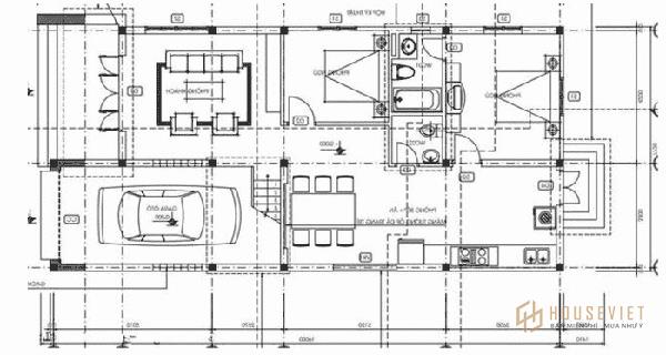
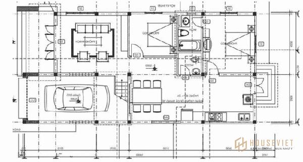
Xây nhà 2 tầng diện tích 8x10m. Mái thái với kiến trúc đơn giản, đề cao vẻ đẹp khỏe khoắn, kiên cố. Ánh sáng được kiến trúc sư tận dụng qua ô cửa kính mang đến cảm giác thông thoáng và trong lành. Màu sơn ngoại thất chọn gam màu trắng kết hợp với cửa màu đen tạo nên sự tương phản ấn tượng.


Bản vẽ nhà 8x10m có phòng khách đủ rộng, bếp và bàn ăn liên thông để hạn chế cảm giác ngột ngạt, bức bí. Cây xanh được đặt ở một số vị trí trong nhà để mang lại cho ngôi nhà sự tươi mát và gần gũi với thiên nhiên hơn.



Mẫu thiết kế nhà 2 tầng 8x10m mái bằng chắc chắn
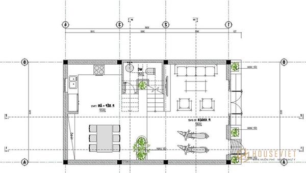
Diện tích thiết kế nhà 8x10m với kiến trúc mái bằng truyền thống giúp ngôi nhà tạo được sự vững chãi. Hàng rào bao quanh giúp ngôi nhà có được sự riêng tư và phân chia các khu vực một cách hài hòa. Cây xanh bao quanh nhà kết hợp với ban công mang đến môi trường sống trong lành, dễ chịu.


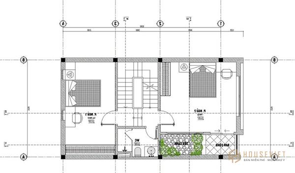
Hầu hết các mẫu nhà 2 tầng 4 phòng ngủ kết hợp phòng thờ đều được ngăn cách rõ ràng, mạch lạc. Vì vậy, việc phân chia không gian và diện tích sử dụng cần đáp ứng được nhu cầu thực hiện của khách hàng. Vì vậy, kiến trúc sư và gia chủ cần tạo ra những không gian nội ngoại thất ấn tượng.



Mẫu thiết kế nhà 2 tầng 80m2 đẹp
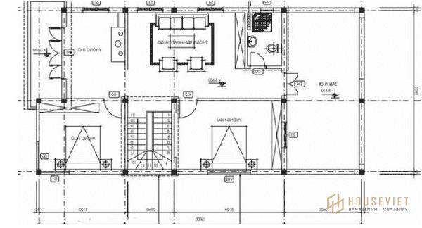
Thiết kế Mẫu nhà 2 tầng 8x10m bố trí thêm tầng áp mái rộng rãi, thoáng mát. Tầng tum được gia chủ thiết kế dạng giếng trời nhằm mục đích nghỉ ngơi, thư giãn sau những giờ làm việc căng thẳng. Sự phối hợp màu sắc của mẫu thiết kế nhà 2 tầng 8x10m giữa trắng và nâu tạo nên vẻ đẹp trang nhã.



Thiết kế nhà 2 tầng 8x10m khách hàng có thể lựa chọn kiểu mái thái, mái bằng, mái xéo tùy theo nhu cầu sử dụng của khách hàng. Tuy nhiên, những mẫu nhà 2 tầng 8x10m cần thể hiện được mạch lạc vẻ đẹp khỏe khoắn, tiện nghi giúp khách hàng có được không gian nghỉ ngơi thoải mái. Mặt tiền nhà 2 tầng hiện đại mang đến sức hút riêng không thể bỏ qua cho không gian sống gia đình bạn.


Mẫu thiết kế nhà 2 tầng mặt tiền 8m độc đáo.
Thiết kế nhà 2 tầng 8x10m lựa chọn kiến trúc 2 mặt tiền kiên cố, hiện đại. Mái thái được sử dụng triệt để tạo nên một thiết kế ấn tượng mang yếu tố phong thủy. Khoảng sân và tiểu cảnh cây xanh được bố trí hài hòa khiến ngôi nhà như một biệt thự vườn 2 tầng cuốn hút.




Kiến trúc tân cổ điển được áp dụng trong thiết kế nhà 2 tầng 8x10m một cách sáng tạo và hài hòa. Kiến trúc ấn tượng với những gam màu độc đáo tạo nên điểm nhấn không thể chối từ. Sự lựa chọn mặt tiền với những đường nét sắc sảo tạo nên sức hút riêng.


Thiết kế nhà 2 tầng 8x10m là công việc kiến tạo nên một tổ ấm tiện nghi và thoải mái nhất. Sự vận dụng hài hòa giữa màu sắc và đường nét tạo cho mẫu nhà 8x10m một sức hút riêng. House Viet sẵn sàng thiết kế và thi công mẫu nhà 2 tầng 8x10m hiện đại và tiện nghi. Đội ngũ kiến trúc sư giàu kinh nghiệm, đội thợ thi công chất lượng hứa hẹn sẽ mang đến cho khách hàng dịch vụ tốt nhất.
Xem thêm các mẫu nhà hiện đại khác:
- Mẫu thiết kế nhà ống 2 tầng 3 phòng ngủ 80m2
- 39+ Mẫu biệt thự mini 2 tầng 80m2 hiện đại khiến bạn mê mẩn
House Viet - Vững niềm tin