Mẫu thiết kế nhà 2 tầng 8x15m hình chữ L 4 phòng ngủ đẹp và hiện đại
Mẫu thiết kế nhà 2 tầng 8x15m Phần mái hình chữ L được giật cấp đẹp mắt. Ngôi nhà được thiết kế 4 phòng ngủ đáp ứng nhu cầu sinh hoạt của gia đình. Trước nhà có sân rộng rãi, có tường bao quanh, vườn hoa được trang trí đẹp mắt. Mời các bạn tham khảo mẫu nhà 8x15m 2 tầng dưới đây:
Công năng sử dụng của mẫu nhà đẹp 2 tầng
- tầng 1: Phòng khách, bếp & phòng ăn, 2 phòng ngủ, 2 vệ sinh, kho, sân sau.
- tầng 2: Phòng thờ & phòng sinh hoạt chung, 2 phòng ngủ, 2 vệ sinh, 2 ban công.
Hình ảnh 3D mẫu thiết kế nhà 2 tầng 8x15m
Nhà 2 tầng 8x15m được thiết kế theo hình chữ L. Mặt tiền ngôi nhà được thiết kế bắt mắt với phần mái lệch. Có 2 lối vào nhà vừa đi vào khu vực sảnh vừa đi vào phòng khách. Trước nhà có sân rộng rãi, ô tô đỗ cửa riêng. Điểm nổi bật của Mẫu nhà đẹp 2 tầng rộng 8m nằm trên nóc nhà.


===> Xem thêm các mẫu thiết kế nhà 2 tầng đẹp năm nay.
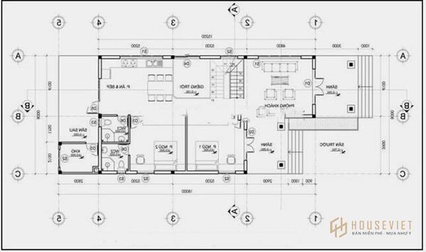
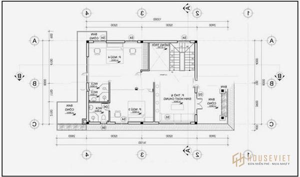
Bản vẽ mặt bằng thiết kế nhà 2 tầng 8x15m
Khu vực tầng 1 của mẫu nhà 2 tầng được thiết kế dành cho khu sinh hoạt chung của gia đình và 2 phòng ngủ. Phòng khách được thiết kế ở phần nhô ra của chữ L với sảnh vào rộng rãi.
Diện tích tầng 1 mẫu nhà 2 tầng mặt tiền 8m được chia thành 2 phần mỗi phần 4m. Từ mặt tiền nhà đi vào bên trái là không gian sinh hoạt chung với trật tự phòng khách, cầu thang & giếng trời, khu bếp nấu và bàn ăn. Căn nhà còn lại là 2 phòng ngủ, 2 vệ sinh. Phía sau nhà có sân sau và một kho nhỏ.

Cầu thang dẫn từ lầu 1 lên lầu 2 sẽ đi thẳng lên phòng thờ và phòng sinh hoạt chung. Phòng có ban công hướng ra mẫu thiết kế nhà mặt tiền 8x15m. Bên trong nhà có 2 phòng ngủ, mỗi phòng đều có phòng tắm nhỏ riêng. Phần sau là ban công.

Đây là những hình ảnh trong Mẫu thiết kế nhà 2 tầng 8x15m đẹp phong cách hiện đại. Nhà được thiết kế 4 phòng ngủ và không gian sinh hoạt chung rộng rãi, thoáng mát. Hi vọng đây sẽ là một ý tưởng thiết kế mà bạn sẽ yêu thích. Để được tư vấn thiết kế nhà 2 tầng 8x15m vui lòng liên hệ: 1800 6015. House Viet sẽ tư vấn miễn phí cho bạn.
Tìm hiểu thêm:
- Tổng hợp các mẫu thiết kế nhà 2 tầng mặt tiền 8m hiện đại và sang trọng
- TOP 5 Mẫu thiết kế nhà 2 tầng 8x10m hiện đại và cuốn hút
- Thiết kế nội thất nhà phố 2 tầng 150m2 đẹp ở Mê Linh, Hà Nội
House Viet - Vững niềm tin