Mẫu thiết kế nhà 3 tầng 5x16m có kiến trúc độc đáo và tinh tế
Đơn giản nhưng tiện nghi là những gì mà mẫu thiết kế nhà 3 tầng 5x16m mang lại cho gia chủ. Với kiến trúc ấn tượng tích hợp các chức năng trong quá trình sử dụng. Khách hàng hoàn toàn đổ gục trước mẫu nhà đẹp 3 tầng này. Bài viết dưới đây, công ty House Viet sẽ cung cấp đến quý khách hàng mẫu thiết kế nhà 5x16m đang được quan tâm nhất hiện nay..
Xu hướng nhà đẹp 5x16m 3 tầng đẹp độc đáo hiện nay
Với diện tích 80m2, gia chủ có thể sở hữu Mẫu nhà 3 tầng hiện đại hàng đầu hiện tại. Từ những kiểu dáng độc lạ cho đến những phong cách thiết kế ấn tượng. Chính vì lẽ đó, có rất nhiều xu hướng thiết kế nhà ống 3 tầng 5x16m được khách hàng lựa chọn xây dựng như:
- Mẫu nhà lệch tầng 5x16m được đông đảo khách hàng lựa chọn. Với ưu điểm là thiết kế mới lạ đi kèm với hiệu quả thẩm mỹ rõ ràng. Kiểu nhà 3 tầng này còn kết hợp màu xanh lam tự nhiên với các gam màu tương phản.

- Ưu tiên thiết kế bên ngoài đơn giản với các chức năng tích hợp. Bên cạnh đó, mẫu nhà đẹp 5x16m sử dụng lối kiến trúc hiện đại kiên cố và chắc chắn.
- Mẫu nhà đẹp 3 tầng 5m. nhà ống có một mặt tiền độc đáo, hấp dẫn. Cách thiết kế nhà 3 tầng 2 mặt tiền vừa phục vụ kinh doanh vừa đảm bảo sinh hoạt. Hiện nay, mẫu thiết kế nhà 3 tầng 5x16m với mặt tiền ấn tượng, tạo điểm nhấn được sử dụng phổ biến.

- Phối cảnh nhà phố 3 tầng 5x16m chọn giải pháp thông tầng hoặc tầng 3. Phong cách kiến trúc này tạo nên một không gian sống thoải mái và dễ chịu nhất.
>>> Bạn có thể tham khảo thêm mẫu nhà đẹp 5x15m được xây dựng với kết cấu ấn tượng hiện nay
Tổng hợp mẫu thiết kế nhà 3 tầng 5x16m đẹp và hiện đại nhất
Diện tích thiết kế nhà 5x16m Bắt kịp xu hướng xây dựng với mẫu mã đa dạng, kiểu dáng phong phú. Vậy dựa vào kinh phí xây nhà 3 tầng mà gia chủ đang sở hữu, bạn có thể tham khảo mẫu nhà 5 × 16 đẹp dưới đây:
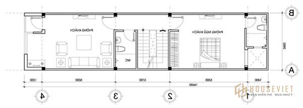
Mẫu nhà lệch tầng 5 × 16 đơn giản và độc đáo
Mẫu nhà 3 tầng mặt tiền 5m. có thể sử dụng thiết kế nhà lệch tầng. Đây là xu hướng và thiết kế có kiểu dáng độc đáo, mới lạ được đánh giá cao về hiệu quả thẩm mỹ. Mặt tiền với gam màu trắng - nâu tương phản tạo ấn tượng mạnh cho gia chủ. Bên cạnh đó, cây xanh kết hợp với lan can kính ở tầng 2 và tầng 3 tạo cảm giác thông thoáng, dễ chịu.


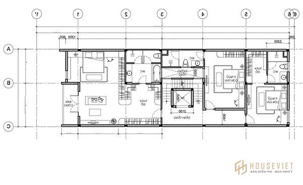
Bản vẽ thiết kế nhà phố 3 tầng 5x16m được bố trí đơn giản nhưng tích hợp các công năng. Các phòng chức năng được bố trí hài hòa, đáp ứng nhu cầu sử dụng của gia chủ. Bên cạnh đó, mẫu nhà lệch tầng 5 × 16 này có 3 phòng ngủ nhưng vẫn đảm bảo được diện tích sử dụng. Các không gian chức năng được bố trí linh hoạt, đầy đủ, mang tính logic cao.


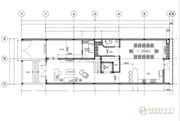
Mẫu thiết kế nhà 3 tầng 5x16m có gara ô tô tiện nghi
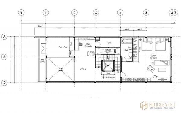
Mẫu nhà 3 tầng có gara ô tô. Được sử dụng phổ biến mang đến sự tiện lợi cho gia chủ. Thiết kế tầng trệt để ở có gara ô tô giúp tiết kiệm diện tích mà vẫn đảm bảo sinh hoạt. Màu sắc ở tầng trệt khác với màu trắng be ở tầng 2 và 3. Hiệu ứng màu sắc kết hợp với trần vân gỗ tạo nên nét độc đáo cho mặt tiền. Khung cửa lớn vừa tạo cảm giác thông thoáng vừa phù hợp với cảnh quan bên ngoài.


Tầng trệt Thiết kế nhà 3 tầng 5x16m khu vực nấu ăn và để xe đã qua sử dụng. Chính vì vậy, kiến trúc tầng 2 được thiết kế mới với phòng khách và phòng ngủ dành cho khách. Cách bố trí này tạo cho khu vực lễ tân một tầm nhìn rộng. Đồng thời mang đến cảm giác thoải mái, dễ chịu khi nghỉ ngơi trên tầng 2.


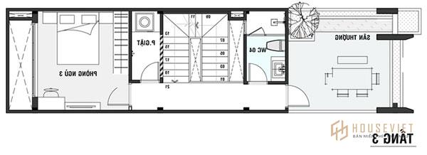
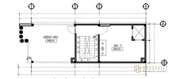
Mẫu nhà đẹp hiện đại 3 tầng 1 tum 5x16m
Mẫu nhà 3 tầng mặt tiền 5m. dưới đây theo xu hướng của mặt bằng mở. Tầng thượng rộng thoáng với những đường thông thoáng nâng cao môi trường sống. Lan can kính kết hợp với khung cửa tạo nên hiệu ứng thẩm mỹ ấn tượng. Điểm nhấn ở ban công của mẫu thiết kế nhà 3 tầng 5x16m là cây xanh và những chiếc ghế mang đến không gian thư giãn tuyệt vời.


Mẫu thiết kế nhà 3 tầng 5x16m với các phòng chức năng được bố trí đơn giản đảm bảo diện tích sử dụng. Cách bài trí tuy đơn giản nhưng đáp ứng tối đa nhu cầu của khách hàng. Kèm theo đó là cách trang trí và bài trí bắt mắt, phù hợp với từng diện tích sẵn có của ngôi nhà.



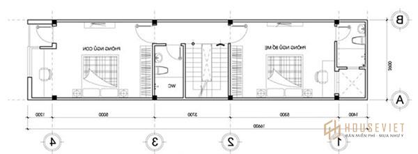
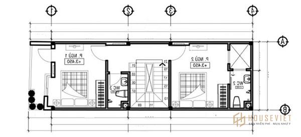
Mẫu thiết kế nhà 3 tầng 5x16m có 4 phòng ngủ
Mẫu thiết kế nhà 5x16m2 4 phòng ngủ dành cho gia đình có nhiều thành viên. Việc bố trí 4 phòng ngủ vẫn đảm bảo sự tiện dụng và khoa học trong quá trình sử dụng. Nếu như vật liệu ốp tường sử dụng gam màu tương phản với sơn trắng thì màu xanh của thiên nhiên đã cân bằng được sự tương phản đó. Sự sắp xếp bố cục và phối hợp màu sắc tạo nên một ngôi nhà 5x16m đẹp.




Mẫu thiết kế nhà ống 3 tầng 5x16m tiện nghi
Thiết kế nhà phố 3 tầng thường ưu tiên kiến trúc hình ống, kiên cố. Vì mặt tiền mẫu thiết kế nhà có diện tích hạn chế 5x16m nên cần tạo điểm nhấn thu hút, “ăn gian” diện tích. Mẫu nhà lệch tầng 5 × 16 được áp dụng triệt để tạo nên một mặt tiền cuốn hút. Ngoài ra, có thể trang trí ban công bằng những loại cây xanh độc đáo kết hợp với kiểu dáng bắt mắt.




House Viet cung cấp cho khách hàng hình ảnh và bản vẽ Thiết kế nhà 3 tầng 5x16m thông tin chi tiết. Đây là một trong những xu hướng xây nhà 3 tầng nổi bật trong thời gian gần đây. Bên cạnh đó, chúng tôi luôn hỗ trợ thiết kế và thi công các công trình với nhiều diện tích khác nhau. Quý khách hàng có thể liên hệ Hotline 1800 6015 để được sự hỗ trợ nhiệt tình của các kiến trúc sư của chúng tôi.
Xem thêm các bài viết khác:
- Xây nhà 3 tầng hiện đại 5 mẫu thiết kế nhà 3 tầng 5x10m
- Xây nhà đẹp 3 tầng hết bao nhiêu tiền?
House Viet - Vững niềm tin