Mẫu thiết kế nhà cấp 4 hiện đại nhà vườn 11x11m 2 phòng ngủ ở Sóc Sơn NDNC4177
Năm 2021 đánh dấu bước chuyển mình khá mạnh mẽ của ngành xây dựng. Đặc biệt là những căn nhà cấp 4 diện tích 11x11m, khi dịch Covid bắt đầu vào năm 2020, hầu hết người dân đã dừng xây dựng, nhưng khi cả nước kiểm soát tốt đại dịch thì người dân bắt đầu tin tưởng và làm lại từ đầu. bắt đầu xây nhà. Như vậy, hầu hết các căn nhà chuẩn bị khởi công năm 2020 sẽ chuyển sang năm 2021. Do đó, lượng khách hàng có nhu cầu xây dựng tăng đột biến. Nhà Đẹp cũng nhận được rất nhiều đơn đặt hàng của khách hàng và chúng tôi rất vui khi được phục vụ quý khách. Hôm nay công ty Nhà Đẹp xin chia sẻ đến các bạn một mẫu thiết kế nhà cấp 4 11x11m, mời các bạn cùng tham khảo.
Giữa cuộc sống bộn bề, tấp nập ngày càng “trăm hoa đua nở” của thị trường thiết kế và xây dựng nhà ở, Công ty Nhà Đẹp nổi lên là một đơn vị thiết kế nhận được nhiều sự tin tưởng và ủng hộ. Được rất nhiều khách hàng ủng hộ. Để đáp lại sự tin tưởng đó, hàng nghìn mẫu nhà cấp 4 đẹp và đẳng cấp đã ra đời. Sở hữu vẻ đẹp cuốn hút trên nền lối kiến trúc hiện đại. Những ngôi nhà cấp 4 đã chiếm được cảm tình của hàng triệu người dân Việt Nam ngay từ cái nhìn đầu tiên. Hôm nay công ty nhà đẹp chúng tôi xin giới thiệu đến toàn thể quý độc giả và quý khách hàng một mẫu thiết kế nhà cấp 4 11x11m hiện đại, đẳng cấp của gia đình chủ đầu tư là anh Hùng ở Sóc Sơn kính. Mời các bạn cùng xem và thưởng thức!
Đơn giá xây dựng mẫu thiết kế nhà cấp 4 11x11m
- Địa điểm xây dựng: Sóc Sơn - Hà Nội
- Chủ đầu tư: Anh Hùng
- Kích thước nhà: 11x11m
- Diện tích nhà: 121m2
- Diện tích vành mái: 121 × 0,4 = 48,4m2
- Tổng diện tích nhà: 121 + 48,4 = 169,4m2
- Tổng giá trị xây dựng dự kiến: 169,4m2x5.000.000 = 847.000.000 đồng
Phối cảnh 3D mẫu thiết kế nhà cấp 4 11x11m

Xem thêm: Mẫu nhà cấp 4 2 phòng ngủ
Việc sử dụng những gam màu trẻ trung, tươi tắn cùng sự phối hợp tinh tế, hài hòa cũng góp phần tạo nên sự đẳng cấp và vẻ đẹp cho mẫu thiết kế nhà 11x11m này. Với gam màu xám của hệ mái thái nổi bật trên nền sơn tường trắng tinh chủ đạo vô cùng thu hút. Chân tường được ốp bằng hệ thống gạch xám tạo điểm nhấn cho vẻ đẹp ngoại thất tổng thể của ngôi nhà cấp 4 này.
Toàn bộ sân trước của ngôi nhà được lát toàn bộ bằng gạch chống trơn trượt cùng màu với hệ thống mái thái vô cùng tinh tế và đồng bộ với màu sắc của cả ngôi nhà. Sở dĩ chọn loại gạch chống trơn trượt cao cấp này là vì mặt ngoài sân - nơi chịu tác động trực tiếp của nước mưa, nước tưới cây, rửa sân, .. nên rất cần gạch chống trơn. để mang lại sự an toàn tuyệt vời. Đối với các thành phố mang đến không gian sân chơi thoải mái cho trẻ nhỏ, vô cùng sạch sẽ và bắt mắt.

Hệ thống cửa của mẫu thiết kế nhà cấp 4 11x11m được sử dụng chất liệu kính cao cấp làm tăng vẻ đẹp độc đáo. Đặc biệt là trong việc tạo sự kết nối với không gian thiên nhiên xung quanh bên ngoài, giúp thu hút và hấp thụ nhiều ánh nắng có lợi cho ngôi nhà. Sử dụng vật liệu này có rất nhiều ưu điểm, đặc biệt là nó rất phù hợp với hầu hết các phong cách thiết kế kiến trúc. Vì vậy, kính là một giải pháp vô cùng hợp lý, vừa có tác dụng tạo không gian thoáng mát cũng như thỏa mãn mong muốn được ngắm nhìn khung cảnh thiên nhiên xung quanh từ bên trong ngôi nhà. .

Điểm nhấn nổi bật nhất của mẫu thiết kế nhà 11x11m chính là hệ thống mái thái màu xám ấn tượng. Kiến trúc mái Thái có thiết kế khá đồ sộ càng làm tăng thêm vẻ bề thế, uy nghiêm cho toàn bộ công trình. Hệ thống mái Thái lệch tầng bao trùm toàn bộ không gian bên trong và bên ngoài của ngôi nhà cũng là một nét độc đáo giúp thu hút ánh nhìn của những người xung quanh. Bên cạnh đó, do độ dốc lớn và hệ thống mái ngói nhiều lớp cũng giúp cho ngôi nhà cấp 4 mái thái này trở nên kiên cố hơn và chống chọi tốt với điều kiện thời tiết khắc nghiệt ở nước ta. Giúp đảm bảo ngôi nhà luôn thông thoáng, mát mẻ vào mùa hè và ấm áp vào mùa đông lạnh giá.
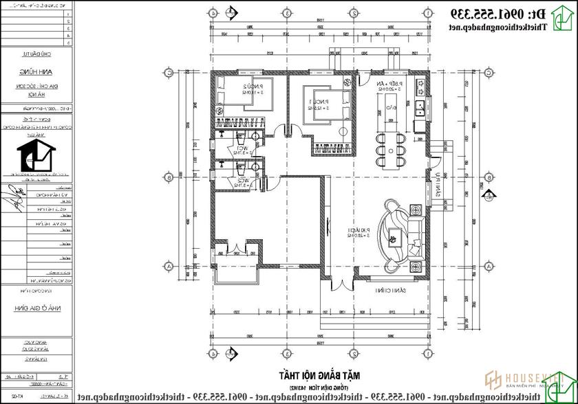
Mặt bằng công năng mẫu nhà cấp 4 11x11m mái thái đẹp

Mặt bằng công năng của mẫu thiết kế nhà cấp 4 11x11m bao gồm: phòng khách rộng ngay sảnh chính - nơi tiếp khách, quây quần của gia đình chủ đầu tư. Tiếp giáp với không gian phòng khách là khu bếp + ăn với không khí thoáng mát giúp tránh được mùi thức ăn khi nấu nướng. 3 phòng ngủ được bố trí hợp lý trong không gian ngôi nhà và có nhiều ô cửa kính lớn mang đến không khí vô cùng trong lành rất thích hợp để nghỉ ngơi, thư giãn. Gồm 1 phòng ngủ chính có thiết bị vệ sinh kèm theo. Cuối cùng, một phòng vệ sinh chung sẽ được thiết kế ngay bên cạnh các phòng ngủ để tạo sự thuận tiện cho việc đi lại và sinh hoạt cá nhân.
Hồ sơ mẫu thiết kế nhà cấp 4 11x11m đã được công ty nhà đẹp chúng tôi hoàn thiện và bàn giao cho gia đình anh Hùng ở Sóc Sơn. Chúng tôi sẽ sớm cập nhật công trình và đăng tải hình ảnh thi công thực tế trên website. Mọi yêu cầu tư vấn thiết kế nhà ở, biệt thự vui lòng liên hệ với chúng tôi qua hotline, zalo để được giải đáp chi tiết.
- Nhà cấp 4 mái thái 2 phòng ngủ 8x13m ở Sóc Sơn Hà Nội NDNC4185