Mẫu thiết kế nhà cấp 4 kiểu Mỹ hiện đại 11x15m tại Vĩnh Phúc NDNC4143
Hôm nay đơn vị thiết kế và thi công Nhà Đẹp mang đến cho các bạn một điều mới lạ và độc đáo mà lâu rồi chưa thấy xuất hiện trên website Nhà Đẹp, đó chính là thiết kế mẫu nhà cấp 4 hiện đại kiểu mỹ do chúng tôi tạo nên. . Trung ở Vĩnh Phúc làm chủ đầu tư. Mẫu nhà cấp 4 mái thái lần này thực sự là một điểm nhấn trong rất nhiều mẫu thiết kế nhà cấp 4 hiện đại khác nhờ kiến trúc ngoại thất độc đáo từ các chi tiết gờ phào chỉ, trang trí cột vuông, sơn bả… Tất cả tạo nên một tổng thể ngôi nhà mang phong cách Châu Âu thơ mộng và độc đáo.
Nhắc lại câu chuyện khi thiết kế nhà cấp 4 kiểu Mỹ cho nhà chú Trung, chúng tôi luôn ấn tượng rằng chú là một người khá sâu sắc và có cá tính. Bác Trung hiện đang làm việc ngoài thành phố, muốn xây nhà tại Vĩnh Phúc để phục vụ nhu cầu nghỉ dưỡng của gia đình mỗi khi về quê và cả khi về quê. Đất của Bác ở quê nên rất rộng, với điều kiện của Bác thì mô hình nào cũng xây được. Tuy nhiên, chú thích mẫu nhà 1 tầng phong cách Châu Âu này là do sở thích có từ trước nên đây là mong muốn từ lâu của chú về một ngôi nhà ở quê, không phô trương, hào nhoáng nhưng không kém phần sang trọng, bề thế, với sự đúng đặc điểm của một ngôi nhà nghỉ dưỡng.
Thông tin chung về mẫu nhà cấp 4 kiểu mỹ
- Chủ đầu tư: Chú Trung
- Địa điểm xây dựng: Vĩnh Phúc
- Diện tích nhà: 105,6m2 (không bao gồm sảnh)
- Diện tích đất xây dựng: 11 × 14,5m
- Công năng sử dụng: 1 phòng khách, 1 bếp, 1 phòng thờ, 3 phòng ngủ.
- Tổng kinh phí xây dựng dự kiến: 700 triệu đồng


Khu chòi nhậu có kiến trúc đồng bộ với khu nhà ở. Gia chủ có thể lên chòi để ngắm cảnh, thưởng thức những tách trà và tận hưởng không gian sống.
Phối cảnh 3D thơ mộng, chân thực đến từng chi tiết
Toàn bộ ngôi nhà được thiết kế theo phong cách hiện đại và mới lạ, từ những chi tiết nhỏ nhất được tạo nên.

Khi ngắm nhìn mặt tiền chắc chắn bạn sẽ cảm thấy rung động trước vẻ đẹp thơ mộng của ngôi nhà. Thiết kế mái thái cách điệu chứ không phải kiểu dáng truyền thống là điểm phá cách đầu tiên của ngôi nhà. Kiểu mái thái lợp ngói vừa mang tính thẩm mỹ cao vừa mang tính ứng dụng cao trong quá trình sử dụng. Mái nhà cao, không gian ngăn cách trần nhà tiếp xúc với nhiệt lượng bên ngoài giúp ngôi nhà mát mẻ hơn rất nhiều trong những ngày hè oi bức, giải quyết vấn đề về sự khắc nghiệt của thời tiết và môi trường; Ý đồ lớn nhất của kiến trúc sư là ngôi nhà sẽ mát mẻ đến mức không cần sử dụng điều hòa để tiết kiệm năng lượng và cũng là một biện pháp bảo vệ môi trường bền vững.

Màu sơn được sử dụng cho mẫu nhà cấp 4 kiểu Mỹ này là màu trắng đục, rất tươi sáng và thơ mộng. Nhìn vào công trình, bạn tưởng tượng mình đang đứng giữa một ngôi nhà ở một trời Âu nào đó chứ không phải ở mảnh đất Vĩnh Phúc. Từ thiết kế lan can, tay vịn cầu thang vào nhà, đến bậc cầu thang đều sử dụng màu sơn trắng trang nhã, phù hợp với màu sơn tổng thể của kiến trúc. Màu sơn trắng mang đến màu sắc sang trọng và trong trẻo; Màu sơn sữa làm dịu mát không gian, cũng là màu sơn rất trang nhã, quý phái, tôn lên sự đẳng cấp của ngôi nhà.
Hệ thống cửa mẫu nhà cấp 4 kiểu Mỹ là cửa kính, chia thành nhiều ô, các thanh ngang nhôm cao cấp sơn màu trắng đồng bộ với ngôi nhà. Để quyết định lựa chọn mẫu cửa này, kiến trúc sư và chủ đầu tư đã cùng nhau bàn bạc kỹ lưỡng, lựa chọn kiểu cửa này vừa phù hợp với chủ đề ngôi nhà vừa mong muốn của gia chủ.

Trên mái có thiết kế lồng chim nhỏ xinh xắn như những ngôi nhà phương Tây. Tại đây, gia chủ có thể nuôi những chú chim bồ câu rất thơ mộng, vừa là hoạt động tao nhã cho ngày thảnh thơi, vừa là biểu tượng của sự chung thủy, thủy chung trong tình cảm gia đình.
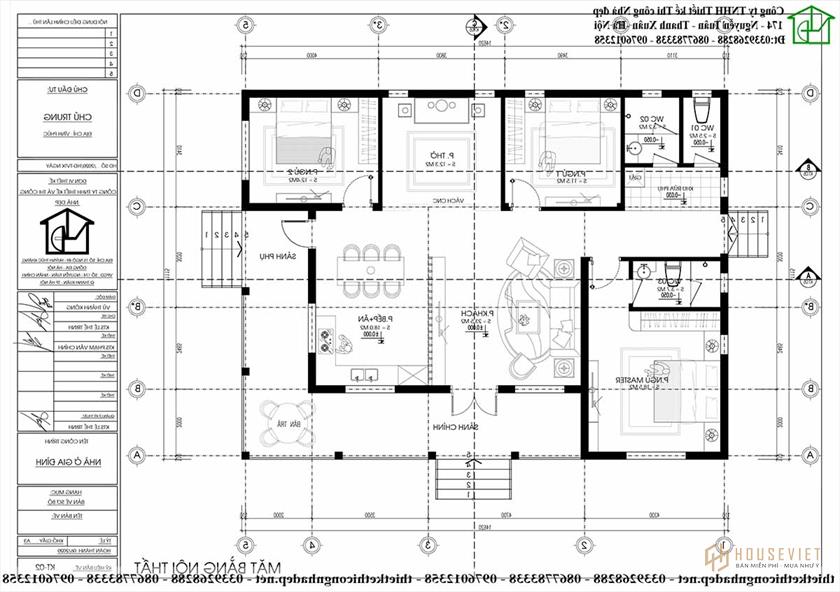
Mặt bằng công năng sử dụng

Sảnh chính rộng rãi có thể đặt một bàn trà chiều ngay hiên nhà, khá lãng mạn cho những buổi trà chiều hay hóng gió buổi tối tại gia. Bước vào nhà là phòng khách rộng rãi với diện tích 23,5m2, ngay bên cạnh là phòng thờ được ngăn cách với phòng khách bằng vách ngăn CNC mang tính thẩm mỹ cao. Công năng sử dụng 3 phòng ngủ, 1 phòng ngủ chính diện tích rộng rãi 18,5m2. Các khu sinh hoạt chung được bao bọc bởi phòng khách và phòng bếp tạo sự gắn kết giữa các thành viên trong gia đình.
Có lẽ mẫu nhà cấp 4 kiểu Mỹ mà chúng tôi giới thiệu đến bạn đọc hôm nay sẽ thuyết phục được kha khá người, từ những khách hàng khó tính nhất. Quả thực, khi nhìn vào phối cảnh 3D của mẫu nhà cấp 4 mái thái phong cách Châu Âu này, ai cũng phải gật gù khen ngợi và bị thuyết phục bởi công năng sử dụng tiện lợi và ngoại thất cuốn hút. Mọi thắc mắc vui lòng liên hệ Nhà Đẹp để được giải đáp!
Xem thêm các mẫu thiết kế nhà cấp 4 của Nhà Đẹp:
- Mẫu thiết kế nhà cấp 4 có gác lửng hiện đại
- Mẫu thiết kế nhà cấp 4 70m2 đẹp, hiện đại ở Hà Tĩnh
- Mẫu nhà cấp 4 2 phòng ngủ 9x12m hiện đại ở Hòa Lạc
- Biệt thự cổ điển
- Biệt thự 2 tầng
- Nhà phố 2 tầng